DURASTAR DRAL18F1A One Way Cassette Indoor Air Conditioner

The Durastar One-Way Cassette Indoor Unit Split-Style Air Conditioner is available in four models – DRAL06F1A, DRAL09F1A, DRAL12F1A, and DRAL18F1A. This air conditioner is designed to operate in specific temperature ranges for optimal performance and safety of the unit.
Installation Safety Precautions
Improper handling of the Durastar One-Way Cassette Indoor Unit Split-Style Air Conditioner can cause serious damage or injury.
Follow these safety precautions:
- Read the safety information in its entirety before installation, operation, cleaning, and maintenance of the air conditioner.
- Do not use the air conditioner in areas where flammable gases may leak.
- Ensure the power supply voltage is correct and stable.
- The installation must be performed in accordance with required local and national standards.
The air conditioning system comes with installation accessories such as a remote control, water receiver, screws, drain pipe, and more. The following tools are required for installation:
- Drill
- Screwdriver
- Level
- Measuring tape
- Adjustable wrench
- Flaring tool
Usage Instructions
Follow these instructions to properly use your Durastar One-Way Cassette Indoor Unit Split-Style Air Conditioner:
- Ensure the air conditioner’s temperature ranges are compatible with the room’s temperature and humidity levels.
- Plug the air conditioner into a grounded electrical outlet with the correct voltage and frequency.
- Use the remote control to turn on the air conditioner and select the desired mode – Cool, Heat, or Dry.
- To adjust the temperature or fan speed, use the remote control.
- If the humidity is high, set the vertical airflow louver to its maximum angle and set the fan to high to prevent condensation from forming and dripping.
- Clean and maintain the air filter regularly to ensure optimal performance.
- Refer to the user manual for troubleshooting tips and additional information about the Durastar One-Way Cassette Indoor
Unit Split-Style Air Conditioner.
INTRODUCTION
To better serve you, please do the following before contacting customer service:
- If you received a damaged product, immediately contact the retailer or dealer that sold you the product.
- Read and follow this owner’s manual carefully to help you use and maintain your air conditioner.
- Read the troubleshooting section of this manual as it will help you diagnose and solve common issues.
- Visit us on the web at www.durastar.com to download product guides and up-to-date information.
- If you need warranty service, our friendly customer service representatives are available via email at [email protected] or by telephone at 1-888-320-0706.
WARNINGS
Symbols Used in This Manual
The warning symbol indicates cautionary information for the user. Extra care and precautions should be taken to ensure the user’s safety.
The pencil indicates any manufacturer notes relating to surrounding content. These may include further clarifications or call-outs.
A light bulb symbol indicates suggested manufacturer tips for the user to get the most out of the Durastar equipment and to accommodate the best user experience.
IMPORTANT SAFETY PRECAUTIONS
Improper handling can cause serious damage or injury. Please read the following safety information in its entirety.
Operation, Cleaning, and Maintenance Safety Precautions
- Children and people with reduced physical, sensory, or mental capabilities, or lack of experience and knowledge, should only use this air conditioner if they are given supervision or instructions concerning use of the air conditioner in a safe way and understand the hazards involved.
- Children should not play with the air conditioner.
- Never stick fingers or any other body parts into the air conditioner openings. The internal fan may be rotating at high speeds, and may result in injury.
- After removing the filter, do not touch the fins in order to avoid injury.
- Maintenance must be performed by qualified professionals. Otherwise, you may experience personal injury or damage to the air conditioner and surrounding property.
- Do not repair the air conditioner by yourself. It may cause electric shock or damage. Please contact a qualified service representative when you need to repair the air conditioner.
- Do not block the air outlet or air inlet. This could cause a malfunction.
- Do not spill water on the remote control as this can permanently damage the remote.
- If the below problems occur, please turn off the air conditioner and disconnect power at the circuit breaker immediately. Then contact your dealer or a qualified professional for service.
- The power cord is overheating or damaged.
- There is an abnormal sound during operation.
- The circuit breaker trips frequently.
- The air conditioner gives off a burning smell.
- The indoor unit is leaking.
- If the air conditioner operates under abnormal conditions, it may cause malfunctions, electric shock, or fire hazard.
- When turning the unit on or off via the emergency operation switch, press the switch with an insulated object other than metal.
- Do not step on the top panel of the unit, or put heavy objects on the top panel. This could cause damage or personal injury.
- Cleaning and user maintenance should not be performed by children without supervision.
- Do not spray water on the indoor unit. This could cause electric shock or a unit malfunction.
- Do not use flammable materials such as hair spray, lacquer, or paint near the air conditioner as they may catch fire.
- Do not operate the air conditioner in places near combustible gases. Emitted gases may collect around the air conditioner and cause an explosion.
- Do not use fire or a hair dryer to dry the filter. This could cause a deformation or fire hazard.
- Do not wash the air conditioner with water as this could cause an electric shock.
- Disconnect the power supply by turning it off at the circuit breaker when cleaning the air conditioner. Otherwise, you could risk electric shock.
- Be careful when opening or closing valves below freezing temperatures. Refrigerant may spurt out from the gap between the valve stem and the valve body, resulting in injuries. out from the gap between the valve stem and the valve body, resulting in injuries.
Electrical Safety
- Do not modify the length of the power supply cord or use an extension cord to power the unit.
- If the supply cord is damaged, it must be replaced by the manufacturer, a service agent, or a similarly qualified person in order to avoid a safety hazard.
- Do not share the electrical outlet with other appliances. Improper or insufficient power supply can cause fire or electrical shock.
- The product must be properly grounded at the time of installation, or electrical shock may occur.
- For all electrical work, follow all local and national wiring standards and regulations. Connect cables tightly, and clamp them securely to prevent external forces from damaging the terminal. Improper electrical connections can overheat and cause fire, and may also cause shock. All electrical connections must be made according to the Electrical Connection Diagram located on the panels of the indoor and outdoor units.
- All wiring must be properly arranged to ensure that the control board cover can close properly. If the control board cover is not closed properly, it can lead to corrosion and cause the connection points on the terminal to heat up, catch fire, or cause electrical shock.
- The air conditioner’s circuit board (PCB) is designed with a fuse to provide overcurrent protection. The specifications of the fuse are printed on the circuit board.
Installation Safety
- Installation must be performed by an authorized dealer or specialist. Improper installation can cause water leakage, electrical shock, or fire. (In North America, installation must be performed in accordance with NEC and CEC requirements by authorized personnel only.)
- Installation must be performed according to the installation instructions. Improper installation can cause water leakage, electrical shock, or fire.
- This air conditioner shall be installed in accordance with national and local wiring regulations.
- Contact an authorized service technician for repair or maintenance of this unit.
- Only use the included accessories, parts, and specified parts for installation. Using non-standard parts can cause water leakage, electrical shock, fire, and can cause the unit to fail.
- Install the unit in a firm location that can support the unit’s weight. If the chosen location cannot support the unit’s weight, or the installation is not done properly, the unit may fall and cause serious injury and damage.
- Install drainage piping according to the instructions in the installation manual. Improper drainage may cause water damage to your home and property.
- For units that have an auxiliary electric heater, do not install the unit within 3 feet (1 meter) of any combustible materials.
- Do not install the unit in a location that may be exposed to combustible gas leaks. If combustible gas accumulates around the unit, it may cause a fire.
- Do not turn on the power until all work has been completed.
- When moving or relocating the air conditioner, consult experienced service technicians for disconnection and re-installation of the unit.
- Be careful when opening or closing valves below freezing temperatures. Refrigerant may spurt out from the gap between the valve stem and the valve body, resulting in injuries.
Additional Precautions
- Turn off the air conditioner and disconnect the power if you are not going to use it for a long time.
- Turn off the unit during electrical storms to avoid damaging the unit.
- Make sure that water condensation can drain unhindered from the unit.
- Do not operate the air conditioner with wet hands. This may cause electric shock.
- Do not use this device for any other purpose than its intended use.
- Do not climb onto or place objects on top of the outdoor unit.
- Do not allow the air conditioner to operate for long periods of time with doors or windows open, or if the humidity is very high.
OPERATING TEMPERATURES
The air conditioner is designed to operate within specific temperature ranges for optimal performance and safety of the unit.
The temperature ranges for Cool, Heat, and Dry mode are as follows:
| Indoor Air Temperature | Outdoor Air Temperature | |
|---|---|---|
| Cool mode | 64°F to 90°F | 50°F to 118°F |
| Heat mode | 50°F to 86°F | 5°F to 75°F |
| Dry mode | 64°F to 90°F | 50°F to 118°F |
Your air conditioner is designed to operate in the following indoor and outdoor temperatures. When your air conditioner is used outside of the following temperature ranges, certain safety features may activate and turn off the unit to protect it from damage.
TEMPERATURE RANGES
| COOL mode | HEAT mode | DRY mode | |
| Indoor Air Temperature | 60°F – 86°F (16°C – 30°C) | 32°F – 86°F (0°C – 30°C) | 60°F – 86°F (16°C – 30°C) |
| Outdoor Air Temperature | 5°F – 122°F (-15°C – 50°C) | -13°F – 75°F* (-25°C – 24°C)* | 32°F – 122°F (0°C – 50°C) |
The minimum operating temperature depends on the outdoor unit. Low ambient models have a minimum operating temperature in heat mode of -22°F (-30°C).
To further optimize the performance of your unit, do the following:
- Keep doors and windows closed.
- Limit energy usage by using TIMER ON and TIMER OFF features.
- Do not block air inlets or outlets.
- Regularly inspect and clean air filters.
NOTE: Your Durastar air conditioner’s outdoor unit is equipped with a base pan heater, allowing it to continue to operate at freezing temperatures as low as -22°F (-30°C). When outdoor air temperatures are at or below 32°F (0°C), we strongly recommend keeping the unit plugged in at all times to ensure smooth ongoing performance.Keep the room’s relative humidity below 80%. If the air conditioner operates in excess of this, the surface of the air conditioner may attract condensation. To help prevent condensation from forming and dripping, set the vertical airflow louver to its maximum angle (vertically to the floor) and set the fan to HIGH.
ACCESSORIES
INCLUDED INSTALLATION ACCESSORIES
The air conditioning system comes with the following accessories.
TOOLS NEEDED
The following tools are required for installation.
- Phillips screwdriver
- Drill with 2 1/2″ or 3 1/2″ (indoor unit model depending) core bit
- Vacuum pump
- HVAC manifold gauge set
- Micron Gauge
- Refrigerant leak detector
- Copper pipe cutter
- Flaring tool
- Burr reamer
- Crescent or spanner wrench
- Hexagonal wrench set
- Torque wrench
- Multimeter
- Electroprobe
- Level
- Hammer
- Wire strippers
- Wire crimper
FIELD SUPPLIED INSTALLATION ACCESSORIES
The following installation accessories are required and must be purchased separately.
- Refrigerant piping (line set)
- Indoor and outdoor connection wire
- Outdoor power supply cord
- Drain pipe
- Pipe and cable wrapping tape
- Wall hole sleeve and cover
- Putty
- Suspension bolts and necessary hardware to hang indoor unit
- Wiring u-lugs
PARTS IDENTIFICATION
NOTE: The installation must be performed in accordance with the required local and national standards. The installation may be slightly different in different markets.

NOTE: Illustrations in this manual are for explanatory purposes. The actual shape of your mini-split equipment may vary slightly.
UNIT DIMENSIONS

INSTALLATION OVERVIEW – INDOOR UNIT

INDOOR UNIT INSTALLATION
STEP 1: SELECT INSTALLATION LOCATION
Before installing the indoor unit, you must choose an appropriate location. The following standards must be met for an appropriate location for the unit:
- Mounting surface is horizontal
- Good air circulation
- Convenient drainage
- Noise from the unit will not disturb other people
- Firm and solid – the location will not vibrate
- Strong enough to support the weight of the unit
- A location at least five (5) feet (1.5m) from all other electrical devices (e.g., lights, speakers)
- Install the unit at least 10 ft. (3 m) away from TV or radio antennas. Operation of the unit may interfere with antenna reception in areas where the signal is weak. An amplifier may be needed for affected devices.
DO NOT install unit in the following locations:
- Near any source of heat, steam, or combustible gas
- Near flammable items such as curtains or clothing
- Near any obstacle that might block air circulation
- Near a doorway
- In a location subject to direct sunlight
Refer to the following diagrams to ensure proper distance from walls, ceiling and other units:
NOTE: If there is no pre-existing piping, when choosing a location, leave ample room for a wall hole (See Step 5: Drill Wall Hole for Connective Piping). Think about the path the signal cable and refrigerant piping may take and if drilling joists may be necessary.
STEP 2: INSTALL THE ONE-WAY CEILING CASSETTE
The ceiling cassette can be installed with screws on ceiling joists or hung up in the ceiling with suspension bolts.

Joist Installation
To install the unit between ceiling joists, do the following:
- Use the included template to cut a rectangular hole in the ceiling between two ceiling joists, leaving at least 8″(203mm) space from the walls on all sides. The ceiling opening must be slightly larger than the cassette body and smaller than the panel for the components to install correctly.
- With two (2) people, use the provided holes running along to the long sides of the cassette to screw the cassette to the ceiling joists. Use six (6) ST8.0*50 screws.

NOTE: The cassette fits between beams spaced 16″ apart, with 1/2″ allowance on both sides.
Hanging Installation
To hang the unit from suspension bolts, do the following:
- Use the included paper template to cut a rectangular hole in the ceiling, leaving at least
8″(203mm) space from the walls on all sides. The ceiling opening must be slightly larger than the cassette body and smaller than the panel for the components to install correctly. - Carefully measure and mark the locations where the ceiling holes will be drilled for the suspension bolts.
- Drill four holes at least 5″ deep in the internal ceiling for each of the required suspension bolt anchors (field supplied). Make sure to hold the drill at a 90o angle to the ceiling.
- Using a hammer, insert the suspension bolt anchors into the pre-drilled holes.
- Install the four suspension bolts.
- Mount the indoor unit. Using two people to lift and secure it, insert the suspension bolts into the unit’s hanging bracket holes and secure in place with washers and nuts. Make sure the unit is level and the bottom of the unit is ≤ 5/8″(16mm) higher than the ceiling board to accommodate the unit’s panel.

WARNING: Ensure that the indoor unit is completely level. Improper installation can cause the drain pipe to back up into the unit and water leaks.
STEP 3: CONNECT SIGNAL WIRES TO INDOOR UNIT
BEFORE PERFORMING ANY ELECTRICAL WORK, READ THESE REGULATIONS
- All wiring must comply with local and national electrical codes and regulations, and must be installed by a licensed electrician.
- All electrical connections must be made according to the Electrical Connection Diagram located on the panels of the indoor and outdoor units.
- If there is a serious safety issue with the power supply, stop work immediately and contact a licensed electrician. Do not continue with the installation until the safety issue is properly resolved.
- Power voltage should be within 90-110% of rated voltage. Insufficient power supply can cause malfunction, electrical shock, or fire.
- If connecting power to fixed wiring, install a surge protector and main power switch with a capacity of 1.5 times the maximum current of the unit.
- If connecting power to fixed wiring, a switch or circuit breaker that disconnects all poles and has a contact separation of at least 1/8″ (3mm) must be incorporated in the fixed wiring. A qualified technician must use an approved circuit breaker or switch.
- Only connect the unit to an individual branch circuit outlet. Do not connect another appliance to that outlet.
- Make sure to properly ground the air conditioner.
- Every wire must be firmly connected. Loose wiring can cause the terminal to overheat, resulting in product malfunction and possible fire.
- Do not let wires touch or rest against refrigerant tubing, the compressor, or any moving parts within the unit.
- If the unit has an auxiliary electric heater, it must be installed at least 40″ away from any combustible materials.
- To avoid getting an electric shock, never touch the electrical components soon after the power supply has been turned off. After turning off the power, always wait 10 minutes or more before you touch the electrical components.
WARNING: Before performing any electrical or wiring work, turn off the main power to the system.
The signal cable enables communication between the indoor and outdoor units. You must first choose the right cable size before preparing it for connection.
USE THE RIGHT CABLE
- Indoor Power Cable / Signal Cable: 14/4 stranded, unshielded
- Outdoor Power Cable: Determined by the amperage of system and the local codes in your area.
CABLE SIZING
Use a minimum of 14 AWG for power and signal cables connected to and between the indoor and outdoor units.
Choose the correct size of cable
The size of the power supply cable, signal cable, fuse, and switch needed is determined by the maximum current of the unit. The maximum current is indicated on the nameplate located on the side panel of the unit. Refer to this nameplate to choose the right cable, fuse, or switch.
Prepare the cable for connection
- Using wire strippers, strip the jacket from both ends of the cable to reveal about 6″ of the wires.
- Strip the insulation from the ends of the wires.
- Using a wire crimper, crimp u-lugs to the ends of the wires.
To connect the signal wires to the indoor unit circuit breaker, do the following:
- Remove the four (4) screws to open the indoor control box and the circuit breaker box.

- Remove the desired knock-out hole on the circuit breaker box, from the options shown below. Make sure to direct the cable through the knock-out hole.

- Install the provided rubber ring in the hole to cover sharp sides.
- Connect the wires to the breaker according to the wiring diagram. Ensure the ground wire is screwed in tightly.

- Fasten the wires together with a cable tie.

NOTE: If installing a wired thermostat, it is recommended to do that now before closing the breaker cover. Please see the wired thermostat instructions provided with the thermostat at www.durastar.com - Install the breaker cover by replacing the two screws.

STEP 4: CONNECT DRAIN PIPE
The drain pipe is used to drain condensate water away from the unit. Improper installation may cause leaks and unit or property damage.
- Connect a 1″ drain pipe (field supplied) to the unit’s connecting port using the drain adaptor and metal worm clamps provided.. Make sure it secured tightly and can not be easily pulled loose.

- Insulate the connecting port and pipe with the accessory sheath (sleeve) provided.
- The drain pipe must be installed with a downward slope of at least a 1/100 gradient to prevent water from flowing back into the unit. To keep the drain pipe from sagging, install hanging wires

- This unit is equipped with a drain pump that allows the outlet of the drain pipe to be higher than the pipe’s connecting port. The vertical lift pipe must be installed no higher than 29 1/2″ (750mm) from the ceiling board. Install hanging wires every 3-5′ to keep the drain pipe from sagging, and wrap the indoor portion of the pipe with foam pipe insulation to prevent condensation. Incorrect installation can cause water to flow back into the unit and leaks.

- If connecting multiple drain pipes, install the pipes as illustrated below.

- Pass the drain pipe through the wall hole to the outside. The end of the pipe should be at least 2″ (50mm) above the ground. If it touches the ground, the pipe may become blocked. Make sure the water drains to a safe location where it will not cause water damage or a slipping hazard.
STEP 5: DRILL WALL HOLE FOR CONNECTIVE PIPING
- Determine the location of the wall hole based on the location of the outdoor unit.
- Using a 3 1/2″ (90mm) core drill, drill a hole in the wall. Make sure that the hole is drilled at a slight downward angle, so that the outdoor end of the hole is lower than the indoor end by about 3/16 – 1/4″ (5mm to 7mm). This will ensure proper water drainage.

- Place the protective wall hole sleeve (field supplied) into the hole. This protects pipes and cables from sharp edges and will help seal the opening when you finish the installation process. After the sleeve is inserted through the wall, connect the wall hole sleeve cover to the wall sleeve on the outside end. Make sure the cover is flush with the outside wall.
STEP 6: PREPARE REFRIGERANT PIPING
- If pre-existing refrigerant piping is already embedded in the wall, proceed directly to Step 8: Install Panel.
- If there is no pre-existing piping, connect the indoor unit’s refrigerant piping to the connective piping that will join the indoor and outdoor units. Refer to the Refrigerant Piping Connections section of the outdoor unit’s installation manual for detailed instructions.
WARNING: Be extremely careful not to dent or damage the piping while bending them away from the unit. Any dents in the piping will affect the unit’s performance.
STEP 7: WRAP PIPES AND CABLE
Before passing the refrigerant piping, drain pipe, and the signal cable through the wall hole, you must bundle them together to save space, protect them, and insulate them.
- Bundle the drain pipe, refrigerant pipes, and signal cable as shown below:
NOTE: The drain pipe MUST be at the bottom of the bundle. Putting the drain pipe at the top of the bundle can cause the drain pan to overflow, which can lead to fire or water damage.
DO NOT intertwine the signal cable with any of the other wires while bundling these items together. - Using adhesive vinyl tape, attach the drain pipe to the underside of the refrigerant pipes.
- Using insulation tape, wrap the signal wire, refrigerant pipes, and drain pipe tightly together. Double-check that all items are bundled.
NOTE: When wrapping the bundle, keep the ends of the piping unwrapped. You need to access them to test for leaks at the end of the installation process (refer to the Electrical and Gas Leak Checks section of the outdoor unit’s installation manual).
STEP 8: ATTACH WATER RECEIVER
Attach the water receiver, supplied with the accessories, to the indoor unit using the ST4.8*12 screw. An extra ST4.8*12 screw is provided.

NOTE: Perform after connecting and wrapping the refrigeration tubing. See the instruction manual of the outdoor unit for details on connecting refrigeration tubing.
STEP 9: INSTALL PANEL
WARNING: DO NOT place the panel face down on the floor, against a wall, or on uneven surfaces. Damage to the panel may result
- Press the circle indentation on the two (2) screw covers to open.
- Remove the two (2) screws..

- Hold open the grille and push both latches toward the middle to unlock the grille.
- Remove the grille panel.

- Fix the panel to the one-way cassette by two (2) plastic buckles.

- Manually rotate the air deflector and fix the panel to the cassette by using 3×M4*22 screws and a ST3.9*16 screw.
NOTE: The ST3.9*16 screw is behind a cover. - Open the two covers on both sides of the panel , fix the panel to the cassette by using 3× M4*22 screws.

- Connect the display board in the panel to the main control board.
NOTE: Up to four wires are required.
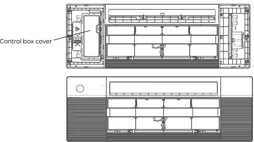
- Install the control box cover.

- Close the two (2) plastic covers, located on both sides of the panel.
- Reinstall the grille by pushing it into the latch to lock it.
- Reinstall the two screws under the screw covers.

STEP 10: COMPLETE A WATER DISCHARGE TEST
Before the test, make sure that the water discharge pipeline is sloped smoothly and check that each connection is sealed properly. Conduct the water discharge test in the new room before the ceiling is installed.
- Connect the power supply and set the air conditioner to operate in the cool mode. Check the running sound of the drainage pump.
- Keep cool mode running for at least 10 min.
- Stop the air conditioner. Wait for three (3) minutes, and then check if there is anything unusual. If the water discharge piping layout is not correct, the excessive water flow will cause the water level error and “EHOE” error code will be displayed on the display panel. There may even be water overowing from the water pan.
- Add water by slowly pouring it into the water receiver under the refrigeration tubing, until the alarm for excessive water levels is triggered. Check if the drainage pump drains water immediately. After three (3) minutes, if the water level does not fall below the warning level, the unit will shut down.
At this time, you need to turn off the power supply and drain away the accumulated water, using the drainage plug located on the bottom of the unit directly under the drainage tube outlet, before you can turn on the unit normally. - If the water is not draining properly check the rise height and slope of the drain tubing. Also check to make sure there is not an obstruction.
NOTE: The drainage plug at the bottom of the unit body is used to discharge accumulated water from the drain pan when the air conditioner malfunctions. When the air conditioner is operating normally, make sure the drainage plug is properly plugged to prevent water from leaking.
TROUBLESHOOTING
SAFETY PRECAUTIONS
If ANY of the following conditions occurs, turn off your unit immediately
- The power cord is damaged or abnormally warm
- You smell a burning odor
- The unit emits loud or abnormal sounds
- A power fuse blows or the circuit breaker frequently trips
- Water or other objects fall into or out of the unit
DO NOT ATTEMPT TO FIX THESE YOURSELF! CONTACT AN AUTHORIZED SERVICE PROVIDER IMMEDIATELY!
COMMON ISSUES
The following problems are not a malfunction and in most situations will not require repairs.
| ISSUE | POSSIBLE CAUSES |
| Unit does not turn on when pressing ON/OFF button | The Unit has a 3-minute protection feature that prevents the unit from overloading. The unit cannot be restarted within three minutes of being turned off. |
| The unit changes from COOL/HEAT mode to FAN mode | The unit may change its setting to prevent frost from forming on the unit. Once the temperature increases, the unit will start operating in the previously selected mode again. |
| The set temperature has been reached, at which point the unit turns off the compressor. The unit will continue operating when the temperature fluctuates again. | |
| The indoor unit emits white mist | In humid regions, a large temperature difference between the room’s air and the conditioned air can cause white mist. |
| Both the indoor and outdoor units emit white mist | When the unit restarts in HEAT mode after defrosting, white mist may be emitted due to moisture generated during the defrosting process. |
| The indoor unit makes noises | A rushing air sound may occur when the louver resets its position. |
| A squeaking sound may occur after running the unit in HEAT mode due to expansion and contraction of the unit’s plastic parts. |
| ISSUE | POSSIBLE CAUSES |
| Both the indoor unit and outdoor unit make noises | Low hissing sound during operation: This is normal and is caused by refrigerant gas flowing through both indoor and outdoor units. |
| Low hissing sound when the system starts, has just stopped running, or is defrosting: This noise is normal and is caused by the refrigerant gas stopping or changing direction. | |
| Squeaking sound: Normal expansion and contraction of plastic and metal parts caused by temperature changes during operation can cause squeaking noises. | |
| The outdoor unit makes noises | The unit will make different sounds based on its current operating mode. |
| Dust is emitted from either the indoor or outdoor unit | The unit may accumulate dust during extended periods of non- use, which will be emitted when the unit is turned on. This can be mitigated by covering the unit during long periods of inactivity. |
| The unit emits a bad odor | The unit may absorb odors from the environment (such as furniture, cooking, cigarettes, etc.) which will be emitted during operations. |
| The unit’s filters have become moldy and should be cleaned. | |
| The fan of the outdoor unit does not operate | During operation, the fan speed is controlled to optimize product operation. |
| Operation is erratic, unpredictable, or unit is unresponsive | Interference from cell phone towers and remote boosters may cause the unit to malfunction. In this case, try the following: • Disconnect the power, then reconnect. • Press ON/OFF button on remote control to restart operation. |
NOTE: If problem persists, contact a local dealer or your nearest customer service center. Provide them with a detailed description of the unit malfunction as well as your model number.
When troubles occur, please check the following points before contacting a repair company.
| PROBLEM | POSSIBLE CAUSES | SOLUTION |
| Poor Cooling Performance | Temperature setting may be higher than ambient room temperature. | Lower the temperature setting. |
| The heat exchanger on the indoor or outdoor unit is dirty. | Clean the affected heat exchanger. | |
| The air filter is dirty. | Remove the filter and clean it according to instructions. | |
| The air inlet or outlet of either unit is blocked. | Turn the unit off, remove the obstruction and turn it back on. | |
| Doors and windows are open. | Make sure that all doors and windows are closed while operating the unit. | |
| Low refrigerant due to leak or long- term use. | Check for leaks, re-seal if necessary and top off refrigerant. | |
| Excessive heat is generated by sunlight. | Block sunlight in installation area. Close windows and curtains during periods of high heat or bright sunshine. | |
| Too many sources of heat in the room (people, computers, electronics, etc.). | Reduce amount of heat sources. | |
| Poor Heating Performance | The outdoor temperature is extremely low. | This model is designed to work at low temperatures, however, heating performance is impacted at temperatures below freezing. |
| Cold air is entering through doors and windows. | Make sure that all doors and windows are closed during use. | |
| Low refrigerant due to leak or long-term use. | Check for leaks, re-seal if necessary, and top off refrigerant. | |
| The unit starts and stops frequently | There’s too much or too little refrigerant in the system. | Check for leaks and recharge the system with refrigerant. |
| Incompressible gas or moisture has entered the system. | Evacuate and recharge the system with refrigerant. | |
| The compressor is broken. | Replace the compressor. | |
| The voltage is too high or too low. | Install a manostat to regulate the voltage. |
| PROBLEM | POSSIBLE CAUSES | SOLUTION |
| The unit is not working | Power failure. | Wait for the power to be restored. |
| The power is turned off. | Turn on the power. | |
| The fuse is burned out. | Replace the fuse. | |
| Remote control batteries are dead. | Replace the batteries. | |
| The Unit’s 3-minute protection has been activated. | Wait three minutes after restarting the unit. | |
| Timer is activated. | Turn timer off. | |
| Indicator lamps continue flashing or error code appears | The unit may stop operation or continue to run safely. If the indicator lamps continue to flash or error codes appear, wait for about 10 minutes. The problem may resolve itself. If not, disconnect the power, then connect it again. Turn the unit on. If the problem persists, disconnect the power and contact your nearest customer service center. | |
NOTE: If your problem persists after performing the checks and diagnostics above, turn off your unit immediately and contact an authorized service center.
ERROR CODES
| Display | function & protection indication |
| EH00 | Indoor EEPROM malfunction |
| EH0A* | Indoor EEPROM parameter error |
| EL01 | Communication malfunction between indoor and outdoor units |
| EL11 | Communication malfunction between main unit and second- ary units |
| EH12 | Main unit or secondary units malfunction |
| EH03 | Indoor fan speed malfunction |
| EC50 | Outdoor temperature sensor error |
| EC51 | Outdoor EEPROM malfunction |
| EC52 | Condenser coil temperature sensor (T3) malfunction |
| EC53 | Outdoor ambient temperature sensor (T4 ) malfunction |
| EC54 | Outdoor unit exhaust temperature sensor error |
| EH60 | Indoor Room Temperature Sensor T1 Error |
| EH61 | Indoor Evaporator coil Temperature Sensor T2 Error |
| EC07 | Outdoor DC fan speed malfunction |
| EH0b | Indoor PCB and display board communication error |
| EL0C | Refrigerant leakage detection |
| EH0E | Indoor water level warning Error |
| PC00 | Inverter module (IPM) protection |
| PC01 | Over high voltage or over low voltage protection |
| PC02 | High temperature protection of compressor top/ IPM Temperature protection |
| PC04 | Inverter compressor drive Error |
| PC60 | Discharge high temperature Error |
| PC03* | Low pressure protection |
| PCOL | Low temperature protection of outdoor unit |
| ——- * | Indoor units mode conflict |
NOTE:The digital tube shows that DF / FC is in normal operation state, not fault or protection.Applicable to only some units.
WIRING DIAGRAM


DRAL06F1A, DRAL09F1A, DRAL12F1A, DRAL18F1A













NOTE: The drain pipe MUST be at the bottom of the bundle. Putting the drain pipe at the top of the bundle can cause the drain pan to overflow, which can lead to fire or water damage.



























