TROY LIGHTING B8224-PN Jonah Bathroom Vanity Light Installation Guide
WARNING/CAUTION
- DISCONNECT POWER BEFORE RE-LAMPING OR WIRING THE FIXTURE. READ ALL INSTRUCTIONS COMPLETELY BEFORE STARTING INSTALLATION
- TO AVOID THE RISK OF FIRE OR SHOCK, FIXTURE MUST BE INSTALLED IN COMPLIANCE WITH ALL APPLICABLE NATIONAL AND LOCAL ELECTRICAL/BUILDING CODES. THE INSTALLATION AND MAINTENANCE OF THIS UNIT SHOULD BE COMPLETED BY A LICENSED ELECTRICIAN OR CERTIFIED FACTORY TRAINED TECHNICIAN.
- CALIFORNIA PROP 65: THIS LIGHTING FIXTURE CONTAINS CHEMICALS KNOWN TO THE STATE OF CALIFORNIA TO CAUSE CANCER, BIRTH DEFECTS, AND/OR OTHER REPRODUCTIVE HARM. WASH HANDS AFTER USE.
- UNPACK FIXTURE, PARTS AND PARTS BAG(S) BEFORE DISCARDING THE CARTON. MAKE CERTAIN THAT ALL PARTS ARE FOUND. INSPECT THE FIXTURE PRIOR TO INSTALLATION FOR ANY DAMAGE. HVLG DOES NOT PAY OR REIMBURSE ELECTRICIAN FEES. FIXTURE MAY NOT BE RETURNED ONCE IT HAS BEEN INSTALLED. SEE WARRANTY FOR EXCEPTIONS.
- PLEASE CLEAN WITH A SOFT, DRY CLOTH ONLY! DO NOT USE CLEANSERS.
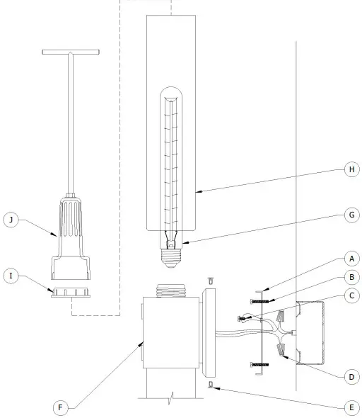
FIXTURE INSTALLATION

- Attach the MOUNTING PLATE (A) onto the junction box using the MOUNTING SCREWS (B). This fixture is designed to be mounted on standard round or octagen junction box. The junction box must be securely mounted to the structure of the building.
- Attach the Ground wire (Green) to the ground inside the outlet box (Generally green or bar copper wire) or the GROUND SCREW (C) on the MOUNTING PLATE (A). NEVER CONNECT GROUND WIRE TO “HOT” WIRE! FAILURE TO FOLLOW THIS COULD RESULT IN SERIOUS INJURY OR DEATH!
- Connect the white fixture lead to the neutral (Generally white) wire in the outlet box. Fasten the wires together with an approved fastener (WIRE NUT) (D). Starting I” below the fastener, tightly wrap the connection with electrical tape so that the connections sedls the end of the fastener. MAKE SURE THERE ARE NO EXPOSED WIRE OF STRANDS THAT COULD CAUSE A DANGEROUS SHORT CIRCUIT!
- Connect the black fixture leads to the hot (Generally black) wire in the junction box. Fasten the joined wires same as previous step. NEVER REVERSE HOT AND NEUTRAL WIRES. FAILURE TO FOLLOW THIS COULD RESULT IN SERIOUS INJURY OR DEATH!
- Attach the FIXTURE ASSEMBLY (F) to the MOUNTING PLATE (A) and secure with the SET SCREWS (E).
- Screw the BULB (G) up into the SOCKET of the fixture. THIS FIXTURE IS RATED FOR 75 WATT TYPE TI0-9.5 LAMP. DO NOT EXCEED THE RECOMMENDED WATTAGE!
- Slid the GLASS (H) over the BULB (G) and secure the GLASS (H) with the SOCKET RING () using the SOCKET RING TOOL ().
- Restore power to the outlet at the breaker or fuse box.
| PART(S) | REPLACEMENT PART NAME | NUMBER |
| A,B,C,D,E | HARDWARE KIT | HDW-BŁĻ1Ľ |
| G | BULB | BLB-75-T10-9.5 |
| H | GLASS | GLS-BŁĻĻĽ |
| I | SOCKET RING | RNG-BŁĻ1Ľ |
| J | SOCKET RING TOOL | RNG-BŁĻ1Ľ |

















