Kensol KS400M-SH PV Solar Monocrystalline Shingled Shingle

SCOPE
This installation manual specifies the installation and maintenance requirements for crystalline silicon photovoltaic modules.
This installation manual is applicable to the installation and maintenance of Kensol shingled PV modules (hereinafter referred to as “PV modules” refer to conventional PV modules) to help customers properly install PV systems, thus enabling the design system to realize its potential.
INTRODUCTION TO THE INSTALLATION MANUAL
Overview
This manual contains important electrical and mechanical installation information. For proper installation and stable power output, please install and maintain. Read and understand all the installation instructions in the manual before the PV modules, and keep
this manual in a safe place for future reference in the maintenance or sale of PV modules.
This installation manual does not have any warranty, express or implied. Compensation schemes for losses incurred in connection with or associated with the installation, operation, use or maintenance of photovoltaic modules, damage to photovoltaic modules, or other costs are not specified.
Installation of PV modules is subject to all safety precautions and local laws and regulations in this manual and should be installed and maintained by qualified personnel. The personnel must have professional skills and familiarity with the mechanical and electrical requirements of the system.
Mechanical installation and electrical installation of PV modules should be in accordance with applicable laws and regulations, including electrical, construction, and electrical connection requirements. These regulations vary with the location of the installation, such as building roof installations, surface installations, and automotive applications.
Requirements may also vary depending on the voltage at which the system is installed, whether it is DC or AC. Please refer to the relevant local laws and regulations for specific terms.
If you have any questions, please contact the Kensol sales staff or customer service staff for further explanation.
Applicable products
This manual applies to the following series of PV modules:
| MONOCRYSTALLINESHINGLED PV MODULES |
| KSxxxM5-S (xxx = 370-480, in steps of 5, shingled) |
| KSxxxM5-SA (xxx = 370-480, in steps of 5, shingled) |
| KSxxxM-SH (xxx = 370-480, in steps of 5, shingled) |
| KSxxxM5-SB (xxx = 370-480, in steps of 5, shingled) |
| KSxxxM5-S (xxx = 370-480, in steps of 5, shingled) |
| KSxxxM5-SA (xxx = 370-480, in steps of 5, shingled) |
| KSxxxM-SH (xxx = 370-480, in steps of 5, shingled) |
PRODUCT INFORMATION
PV module profile structure and component description

- Frame
- Superstrate
- Encapsulant
- Solar cell
- Backsheet
- Adhesive
- Junction box
- Cable
- Connector
- Label
- Ground hole
- Mounting holes
- Drainage hole
Conventional single-glass photovoltaic module model coding rules

Conventional single-glass PV modules consist of numbers, letters, and characters, as detailed below:
First part: two letters which stand for the abbreviation of the company name: KS (stands for Kensol).
Second part: three characters, corresponding to the power of the modules.
Third part: sixth character, representing the manufacturing technology, M stands for monocrystalline, P for polycrystalline.
Fourth part: seventh and eighth characters, representing the manufacturing technology, SH stands for shingled.
PV module label information
Two labels are attached to each PV module to provide the following information:
a) Nameplate: Describes the product name, PV module model, rated power under rated test conditions, rated voltage, rated current, open circuit voltage, short circuit current, maximum system voltage, PV module size, weight, quality class, current bin and other information.
b) Barcode: Each PV module has a unique bar code number, and the bar code is permanently encapsulated inside the PV module, which can be clearly seen from the upper right corner of the PV module front. The barcode number can be used to trace the relevant information of the PV module production process.
Photovoltaic module electrical performance parameters
The electrical performance parameters of the PV modules were tested under standard test conditions (1000 W/m2 irradiance, AM 1.5 spectrum, 25 °C ambient temperature) with a test uncertainty of ± 3%. The maximum system voltage of PV modules is 1500V. The electrical performance parameters are detailed in the PV module nameplate or PV module technical specifications.
INSTALLATION
Safety General
- Kensol PV modules are designed in accordance with the International Electrotechnical Commission IEC 61215 and IEC 61730 standards, and their application grades are in Class A. The safety level of PV modules is Class II and the fire rating is Class C.
- When installing PV modules, the laws and regulations clearly stipulated by the relevant areas and countries in the installation site should be observed. If necessary, the required documents such as building permits should be obtained.
- The installation of PV modules shall be carried out by qualified personnel who are required to have the expertise and familiarity with the mechanical and electrical requirements of the system. You should be aware of the risks of injury that may occur during installation, including electric shocks.
- Photovoltaic modules are used in outdoor environments such as the ground, roof, vehicles or boats. It is the responsibility of the system designer or installer to properly design the support structure. When applied to a roof installation, the overall fire rating of the final structure needs to be considered, and the overall maintenance at a later stage needs to be considered. The roof system can only be installed on roofs that have been evaluated by construction experts and have formal structural analysis results.
- For your safety, do not install PV modules without safety precautions.
- For your safety, do not install and dispose of PV modules in the humid and unfavorable environment of PV modules, including but not limited to strong winds, gusts, sand roofs, and humid environments.
Electrical performance safety
- When the PV module is exposed to sunlight or other light sources, DC current is generated in the PV module. At this time, contact with the electrical part of the PV module may cause electric shock.
- To avoid arcing and electric shock hazard, do not disconnect the electrical connections under load, keep the connectors dry and clean, and ensure that the PV modules are in good working order. Do not insert other metal objects into the connector or make electrical connections in any other way.
- Do not paint or other adhesive on the surface of the PV module. Do not use corrosive chemicals to wipe the PV module.
- Do not use a mirror or lens to focus the sun on the PV module. Do not expose the back of the PV module directly to the sun for a long time.
- Do not change the wiring of the bypass diode, do not disassemble the PV module.
- Do not touch the PV modules when the PV modules are wet, unless you need to clean the PV modules according to the requirements of the manual.
Handling safety
- Before the PV module arrives at the installation site, do not open the package.
- During all handling, please ensure that the PV modules are not subject to large vibration, the PV modules fall to the ground or the objects fall. On photovoltaic modules, can damage the PV modules or the cells inside the PV modules. Pay special attention to not being able to collide, scratch and squeeze onto the back of the PV module.
- Do not allow children and unauthorized personnel to carry PV modules. Improper handling and placement may result in glass breakage or loss of electrical performance of the PV modules and loss of use of PV modules.
- Handle and install the PV modules with care. Under no circumstances should the lifting of the PV module be lifted using a pull-out junction box or cable. Two or more people must hold the edge of the PV module with both hands.
- It is forbidden to step on, stand or sit on the PV module, which will damage the PV module and pose a risk of injury to people.
- Do not place any heavy objects on the front and back of the PV module. Do not place the PV module on a sharp object surface.
Installation Security
- Observe the safety rules that apply to all installed components. For wires and cables, connectors, charge controllers, inverters, batteries, etc., only equipment, connectors, wires and brackets that match the solar power system can be used. PV modules of the same size and specification can be connected in series.
- Do not install or operate the PV module when the humidity or wind is high.
- The glass of the PV module has the function of protecting the PV module.
The unreasonable operation will cause the glass to break. Damaged PV modules have the risk of electric shock and fire. Such PV modules cannot be repaired or repaired and should be replaced immediately. - When the sun is shining on the front of the PV module, the PV module generates electrical energy and the DC voltage may exceed 30V. Avoid direct contact with voltages of 30V or higher to prevent danger.
- To reduce the risk of electric shock or burning, the surface of the PV module may be covered with an opaque material when installing the PV module. The installation of the PV module array must be carried out with an isolated solar device. Do not wear metal rings, watches, earrings, and other metal accessories when installing or servicing PV systems. Do not touch the electrical parts of the PV modules directly with your hands. Use insulated tools for electrical connections and keep the tools dry.
- The triangular hole opened on the back frame of the PV module is the drain hole, so be careful not to be blocked.
- The maximum system voltage of the PV module is indicated on the nameplate as 1500V. During the installation of a PV system, the voltage generated by the PV modules connected in series must not exceed the maximum system voltage.
- When interconnecting PV modules, ensure that the connecting cables are fixed to the support frame on which the PV modules are mounted, limiting the amplitude of the slack in the cable.
- Observe the minimum allowable bending radius of the cable (recommended not less than 43mm).
- Where animals and children are accessible, the conduit must be used to protect the cable.
- Use connectors specially designed for photovoltaic systems. Use the tools recommended or specified by the manufacturer when assembling the connectors. For connectors for solar PV systems, please contact your local supplier. It is forbidden to plug in different types of connectors from different manufacturers.
- When the PV module is connected to the inverter, or the battery, or the combiner box, pay attention to the correct polarity to avoid damage to the internal bypass diode of the PV module due to the polarity error.
- It is forbidden to drill holes in the frame of the PV module, which may reduce the load capacity of the frame and cause corrosion of the frame.
- Do not scratch the anodized layer on the surface of the aluminum alloy frame. In addition to the ground connection, scratches can cause the frame to corrode to affect the mechanical load capacity.
- PV modules cannot be used to replace roof and wall materials, and partial replacement is not allowed.
- It is not possible to dismantle any parts (including nameplates) of photovoltaic modules supplied by Kensol Sp. z o.o.
INSTALLATION CONDITIONS
Working environment
- Recommended working environment temperature: -20 ° C to 45 ° C
- Photovoltaic module limit working environment temperature: -40 ° C to 85 ° C
- Humidity: less than 85% RH.
- Mechanical load bearing capacity: wind pressure of 2400Pa and snow pressure of 5400Pa (only limited to the PV module type referred to in this manual), according to the requirements of IEC 61215-2:2016 standard MQT 16 static mechanical load test, photovoltaic module Load applied = safety factor × design load, design load: 3600pa on the front, 1.5 on the safety factor; 1600pa on the back and 1.5 safety factor.
Note: The mechanical load of the PV module is based on the installation method and installation location. It is calculated by the professional installer according to the design requirements of the system when calculating the mechanical load.
Installation location
- In most PV module applications, PV modules should be installed in locations where the maximum exposure to sunlight is achieved throughout the year. In the northern hemisphere, the light-receiving side of the PV module is usually installed to the south; if it is in the southern hemisphere, the light-receiving side of the PV module is usually installed to the north.
- When selecting the installation position of the PV module, the location where the sunlight can be fully irradiated should be selected, and some or all of the obstruction (trees, buildings, clothing, tools, packaging materials and other obstacles) should be avoided on the surface of the PV module. Objects form shadows on the PV modules that cause loss of output power from the solar PV system.
- Photovoltaic modules should be installed in a well-ventilated location to ensure sufficient air circulation on the back and sides of the PV modules to facilitate timely dissipation of heat generated by the PV modules during operation.
- Photovoltaic modules shall not be in excess or bad in hail, snow, sand, smoke, serious air pollution, soot, flammable gases, close to open flames, strong corrosive substances (such as salt, salt spray, salt water, acid rain). Used in the environment as this will affect the safety and performance of the PV modules. If the installation environment is special, such as seaside, farm, high humidity or large sand, please consult your local dealer for professional support and confirmation.
- PV modules should be installed on suitable buildings or other suitable locations for installing PV modules (eg floor, garage, building facade, roof).
- If the PV modules are installed in places with frequent lightning activities, the PV modules must be installed with lightning protection devices.
- Please do not install PV modules in places with water immersion, sprinklers or water spray devices.
- The pressure of wind or snow received after installation of PV modules shall not exceed the maximum allowable load.
Selection of inclination
- PV module inclination: The angle between the surface of the PV module and the horizontal plane. When the PV module is facing the sunlight, the PV module obtains the maximum power output, as shown in Figure 2.

- Photovoltaic modules Each PV module connected in series with the same array must be in the same direction and angle. Different installation directions and angles will cause the PV module to absorb the difference in the total amount of solar radiation, causing loss of output power, thereby reducing the operating efficiency of the system.
- When direct sunlight is applied to the PV module, the generated power is the largest.
- In order to facilitate the cleaning of PV modules and the dust on the surface of PV modules is easily washed away by rain when raining, please refer to the recommendations of experienced PV module installers for detailed installation angles.
MECHANICAL INSTALLATION
All installation methods described here are for reference only. Kensol is not responsible for providing related installation components and PV module installation services.
General requirements
- Ensure that the PV module installation method and the bracket system are strong enough that the entire array system consisting of PV modules must be able to withstand the predetermined mechanical load pressure, which is a guarantee that the bracket installer must provide. Third-party testing organizations with mechanical analysis capabilities are tested using international or national standards.
- Photovoltaic module mounting brackets must be composed of materials resistant to corrosion, rust and UV.
- Photovoltaic component requirements must be securely mounted on the system bracket.
- It is forbidden to drill additional mounting holes on the PV module frame and glass, otherwise the PV module warranty will be invalid.
- PV module support structure will have thermal expansion and contraction effect.
To avoid affecting the performance and use of PV modules, it is recommended that the distance between the two PV modules be at least 10mm, but to ensure good ventilation of PV modules, reduce For load, it is recommended that the installation distance between the two PV modules be 30mm. - In areas with large snow cover in winter, choose a higher mounting bracket so that the lowest point of the PV module will not be covered by snow for a long time.
- The supporting surface of the mounting bracket must be flat, without distortion or deformation, and there is no ups and downs between the connected brackets.
- PV module installation methods do not cause electrochemical corrosion between the aluminum frame of the PV module and different metals.
Three application sites for PV module installation
Roof installation
- It is necessary to provide a special support frame for the roof installation. When installing PV modules on a roof or building, be sure to be safely fixed and not damaged or dropped by strong winds or heavy snow. When installing the roof, check the building code used to ensure that the building and its structure installed in the PV module have sufficient load-bearing and sealing properties. The roof that needs to be penetrated when installing the fixed PV module should be sealed to prevent rainwater leakage.
- When installing in a tiled installation, the photovoltaic modules shall be as parallel as possible to the surface of the building wall or roof, and the distance between the photovoltaic modules and the wall or roof shall be at least 60 mm, so that the air circulation on the back of the PV module is easy to dissipate heat. When stacking PV modules, ensure that the PV modules are installed on a fireproof roof. The PV modules have a Class C fire rating and are suitable for installation on roofs with fire rating A or higher.
- For the roof system with large snow or snow record in the installation area, the customer shall carry out bracket reinforcement treatment on the bottom frame of the bottom part of the whole system to ensure that the bottom frame is protected from the snow from top to bottom.
Pillar installation
When installing PV modules on the pillars, select the pillars and PV module mounting brackets that can withstand the local expected wind.
Ground installation
Select the appropriate installation height for ground installation to prevent the lower half of the PV module from being covered by snow for a long time during winter
snowing.
Two fixing methods for PV module installation
General
a) The PV module can be mounted directly through the mounting holes by bolting or pressure clamp clamping. Installation of PV modules must be carried out in the following manner, otherwise the warranty will be invalid.
b) Kensol PV modules have met the requirements of the IEC standard for mechanical loads. When installing, use screws to fix the PV module to the bracket by using four screws or six symmetrical mounting holes on the inside of the frame. PV modules can withstand wind pressures of 2400Pa and snow pressures of 5400Pa.
c) Brackets and other required materials (such as bolts) should be made of durable, rust- and UV-resistant materials.
Screw mounting
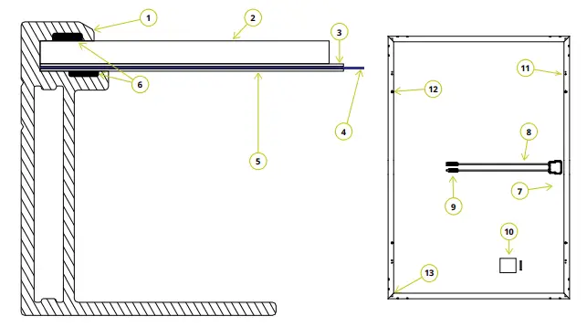
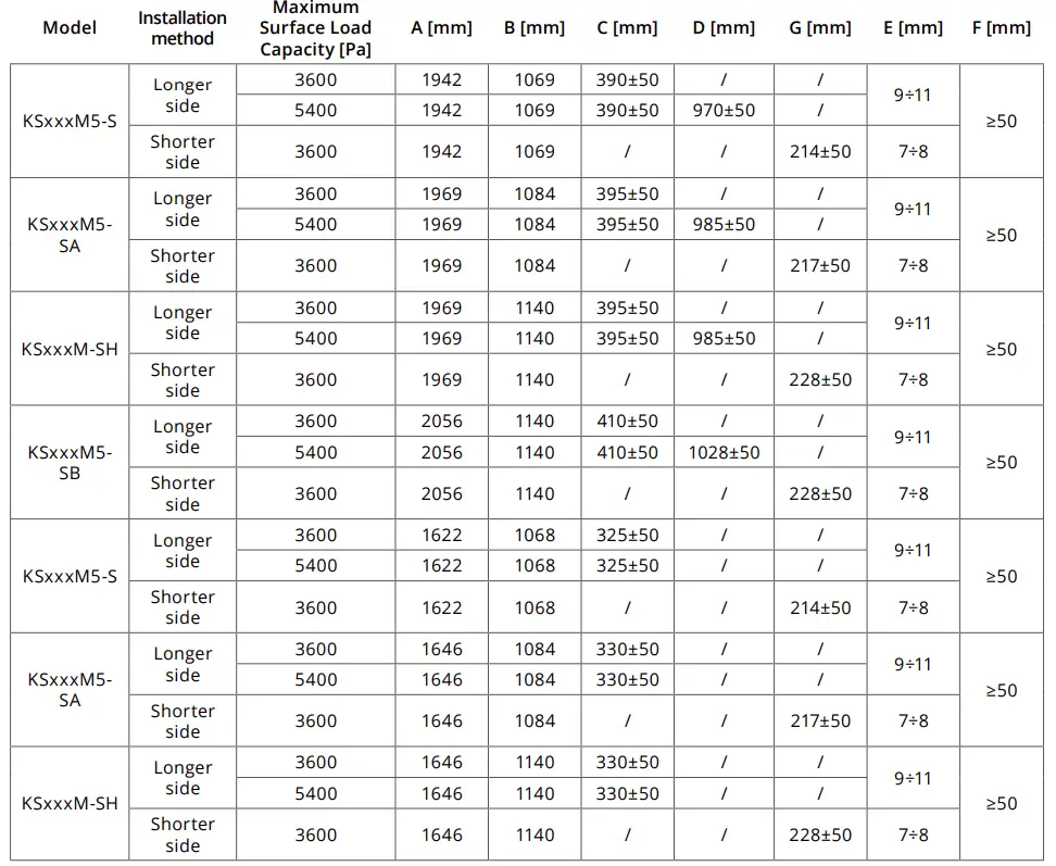
- Use anti-corrosion M8 bolts to secure through the mounting holes on the PV module frame. See the schematic diagram of the mounting holes for fixed PV modules in Table 1. If it is necessary to strengthen the installation, it is recommended to use the fixture installation method.
- When fixing with M8 bolts, spring washers and flat washers must be added to the symmetrical mounting holes of 4 or 6, see Table 1. In the middle bolt fixing diagram, it is recommended that the torque of the screw tightening is 16 N•m. The recommended accessories are shown in Table 2.
Mounting holes location in module

Screw bolts fasten method

Recommended accessories

Fixture installation
- Fix the PV module on the mounting bracket with a certain number of fixtures.
The clamp length should be ≥50mm, the width of the contact between the clamp and the A side of the frame: 9~11mm). - When installing the fixing fixture, do not touch the front glass, do not scratch the aluminum frame during the installation process or cause it to deform. Ensure that the drainage hole is not blocked during installation.
- Each PV module needs to be fixed with at least four fixtures. Depending on the local application conditions (the actual conditions of wind and snow load), additional fixtures may be required. To ensure that the solar PV modules and systems are subjected to the corresponding loads, the fixtures of the following conditions are recommended (as shown in Figure 4).

Clamp A: for fixtures for edge PV modules
Clamp B: for intermediate PV module fixtures
- When clamping the fixture to the frame of the PV module, use spring washers, flat washers and bolts to fix the PV module on the mounting bracket. It is recommended to use the M8 bolts are fixed and the torque for screw tightening is 8N•m.
Module clamp fixture

(a) Be careful with the module frame and prevent its deformation.
(b) Avoid causing module shading by clamps.
(c) Avoid damaging the surface of the aluminum alloy frame.
Ensure that the drainage hole is not blocked during installation

KS390M-SH
A: 280 mm
B: 380 mm
C: 228±50 mm
KS470M-SH
A: 345 mm
B: 445 mm
C: 228±50 mm
If the client has a specific installation and fixture diagram not described in this manual, please consult your local dealer for professional support.
ELECTRICAL INSTALLATION
Electrical performance
- Under normal outdoor conditions, the current and voltage generated by the PV modules will be different from those measured under the standard test conditions on the nameplate of Kensol PV modules, so the rated voltage and wire capacity in the photovoltaic system are determined. When the fuse capacity, controller capacity, etc. are
related to the PV module power output, the corresponding short-circuit current and open circuit voltage of the PV module shall be designed and installed according to the value of 125%. - Try to use the same configuration of PV modules on the same PV system. If the PV modules are connected in series, the total voltage is equal to the sum of the voltages of the individual PV modules, and the voltage of each string cannot exceed the maximum voltage value of the system (the maximum system voltage of Kensol PV modules is
1500V). The maximum number of series of PV modules that can be connected in series is calculated according to the relevant regulations. The value of the open circuit voltage under the local minimum expected temperature cannot exceed the maximum system voltage value specified by the PV modules and the values required by other DC electrical components. System voltage is used.
Formula:
System voltage = N×Voc×[1+λvoc(Tmin-25°C)]
In the formula:
N – Number of PV modules connected in series
Voc – open circuit voltage value of PV modules under STC (see PV module nameplate)
Λvoc – the open circuit voltage temperature coefficient of the PV module (see PV Module Technical Data Sheet)
Tmin – the lowest temperature of the PV module installation location (minus 20 degrees Tmin = -20) - In the case of systems requiring high currents, several PV modules can be connected in parallel, the total current is equal to the sum of the currents of the individual PV
modules, and the maximum number of PV modules N = Imax (maximum fuse current)/Isc. - If there is a possibility that a reverse current exceeding the maximum fuse current of the PV module passes through the PV module, an over-current protection device of the same specification must be used to protect the PV module. If the number of parallel connections is greater than or equal to 2 strings, there must be an overcurrent protection device on each string of PV modules.
- When installing the PV module, install the junction box end to avoid being exposed to rain.
- Do not install in rainy weather.
Cables and connections
- Photovoltaic modules use junction boxes with protection class IP67 or higher. The junction box has connected cables and connectors. Each PV module’s junction box is equipped with two separate wires, one positive and one negative. By inserting the positive interface of one PV module into the socket of the negative wire of the adjacent PV module, the two PV modules can be connected in series.
- During the installation process, it is forbidden to use lubricating oil or alkane-based cleaning agent to clean the connectors, junction boxes, cables and other components.
- The cross-sectional area and connector capacity of the selected cable must meet the maximum short-circuit current of the PV module (for a single PV module, the cross-sectional area of the cable is 4mm2, and the temperature range of the cable is -40°C to +90°C).
- When the cable is fixed on the bracket, it is necessary to avoid mechanical damage of the cable or the PV module. The cable is fixed on the bracket with a specially designed light-resistant cable tie and cable card. The cable is resistant to light and water, but it should also be protected from direct sunlight and water soaking the cable.
Connector
- When connecting PV modules, ensure that the connectors of the same series of PV modules are the same manufacturer or fully compatible.
- Before connecting, please check whether the nut of the connector is tightened.
Please keep the connector dry and clean. Do not connect the connector when the connector is wet or dirty, etc., to avoid the connector being blocked.
Bypass Diode
The junction box of Kensol PV modules contains a bypass diode and forms a parallel structure with the cell circuit. When the PV module cell is blocked or damaged, the PV module locally generates hot spots, and the diode will work, so that the current is no longer the hot spot cell flows over it, thereby limiting the heat generation and performance loss of the photovoltaic module. Please note that the bypass diode is not an overcurrent protection device.
Grounding
- Photovoltaic modules use anodized corrosion-resistant aluminum alloy frame as a rigid support. In order to avoid lightning and static damage to the PV modules and to protect personal safety, all PV module frames and mounting brackets must be grounded. If there are no special regulations, please follow the International Electrotechnical Commission standards or other international standards. Connect the grounding cable to the PV module frame using the recommended connection terminals. A 12AWG size copper core wire is recommended for the grounding wire. As shown in Figure 5, the grounding hole on the photovoltaic module and its identification, the photovoltaic module grounding method shown in Figure 6.

- The frame has been pre-drilled and marked with a grounding mark. These holes are only used for grounding. They cannot be used to install PV modules. Do not drill any additional grounding holes on the frame of the PV module. Otherwise, the PV module warranty will be invalid.
- When grounding, the grounding device must be in full contact with the inside of the aluminum alloy, penetrate the oxide film on the surface of the frame, and connect the photovoltaic module frame and the supporting member to achieve a good grounding effect. A plated support frame is used to ensure good electrical conductivity.
- The grounding conductor must be connected to the ground through a suitable ground electrode. It is recommended to use a grounding wire fitting (wiring nose) to connect the grounding cable. Solder the grounding cable into the socket of the wiring nose, then insert the M4 screw into the ring of the wiring nose and the hole in the middle of the PV module frame, and fasten it with a nut. A spring washer should be used to prevent the screw from loosening and causing poor grounding.
- Kensol PV modules can be grounded using a third-party grounding device, but the grounding must be reliable and certified. The grounding device is operated according to the manufacturer’s requirements.
MAINTENANCE
PV modules require regular inspection and maintenance, especially during the warranty period. In order to ensure optimal performance of PV modules, the following maintenance measures are recommended.
Cleaning
When working on PV modules, there should be no environmental factors that cast shadows on the PV modules and block some or all of the PV modules, such as other PV modules, PV module system brackets, plants, dirt or a lot of dust, which will lead to output power. Significantly reduced and may cause hot spots, so the glass surface of the PV module needs to be cleaned regularly. Pay attention to the following when cleaning PV modules:
a) The frequency of cleaning PV modules depends on the speed at which the dirt accumulates. Under normal conditions, rainwater will clean the surface of the PV modules, but it is still necessary to clean the PV modules regularly with a soft sponge or rag (dry or dilute water). In no case should you use a rough surface material to clean the PV modules or use an acid-base cleaner to remove the dirt.
b) Avoid partial pressure on the PV module when cleaning the PV module, which will cause the PV module glass to deform, damage the battery, and reduce the service life of the PV module.
c) Clear the snow on the PV modules in time to avoid the long-term accumulation of snow and the damage caused by the snow melting and icing.
d) Avoid puncturing the backing film when cleaning the back of the PV module.
e) It is recommended to clean the PV modules in the early morning or evening when the illumination is not strong and the temperature of the PV modules is low, especially for areas with high temperatures.
f) Do not attempt to clean PV modules with broken glass or exposed wires, which may expose you to electric shock.
Visual inspection of photovoltaic modules
Please carefully check the PV module for appearance defects, and focus on the following items:
a) Check if the PV module glass is damaged;
b) Check whether the front of the PV module is blocked by obstacles or foreign objects;
c) Check whether the back panel of the PV module has hot spots, back film bulging, burn marks, etc.;
d) Check whether the welding of the main grid wire of the battery piece is rusted, whether the photovoltaic module packaging material has delamination, air bubbles, etc.;
e) Check the tightness of the bolts at the connection between the PV module and the bracket and the condition of the electrical wiring.
Cable and connector inspection
It is recommended to conduct a preventive inspection every 6 months. The inspection items are as follows:
a) Check if the sealant at the junction box is cracked or cracked;
b) Check the sealability of the connector interface and whether it is loose, melted, or corroded and aged;
c) Check that the cable connections are secure and that the PV modules are well grounded.
When the PV module is found to be abnormal, please consult a professional maintenance person. If maintenance is required, it should be handled by a professional maintenance person. When repairing PV modules, cover the surface of the PV modules with opaque materials to prevent electric shock. PV modules will generate high voltage when exposed to sunlight.
Note:
- If any problems are found during maintenance, please feedback to the professional maintenance personnel for confirmation;
- If you use maintenance measures not included in this manual, please consult your local dealer for professional support.
DISCLAIMER
- Due to the use of this manual and the conditions and methods of installation, operation, use and maintenance of PV modules are beyond the control of Kensol, Kensol shall not be liable for any loss, damage or expense caused by installation, operation, use or maintenance. responsibility.
- Kensol shall not be liable for product damage caused by installation or power system design defects.
- Kensol does not assume any liability for the infringement of patents and third party rights that may result from the use of PV modules. Customer does not obtain any license to use any patent or patent rights, whether express or implied, as a result of the use of Kensol PV modules.
- Kensol does not provide any warranty when the customer fails to follow the requirements listed in this manual when installing PV modules.
- The information in this manual is based on the knowledge and experience of Kensol, but the information and recommendations, including but not limited to the above, do not constitute any warranty, express or implied.
- Kensol reserves the right to modify the installation manual, PV module technical specifications, nameplate or product information without prior notice.
Meaning of crossed – out wheeled dustbin:
![]()
- Do not dispose of electrical appliances as unsorted municipal waste, use separate collection facilities.
- Contact your local government for information regarding the collection systems available.
- If electrical appliances are disposed of in landfills or dumps, hazardous substances can leak into the groundwater and get into the food chain, damaging your health and well-being.
- When replacing old appliances with new ones, the retailer is legally obligated to take back your old appliance for disposals at least free of charge.
KENSOL Customer Service:
KENSOL Sp. z o.o.
Adres: ul. Daszyńskiego 609a, 44-151 Gliwice
Tel.: +48 725 270 013
www.kensol.pl























