Puretec Sparq S4 Sparkling Chilled and Ambient Water Filter System User Guide
Installation Record
For future reference, fill in the following data:
| PRODUCT INFORMATION | |
| Model Number: | SPARQ-S4 |
| Serial / Batch Number: (Refer to label on the rear of the unit) | |
| Purchased From: | |
| Date of Installation: | |
| Installer / Plumber Details: | |
All installation and service work should be completed by qualified tradespeople. Faulty operation due to unqualified persons will result in voided warranty. All plumbing must comply with AS 3500.1 and AS3500.2.15.
Before Installation
VERY IMPORTANT! Carefully read through this instruction booklet and check that all requirements can be met. Faulure to meet requirements may result in voided warranty.
- Check the mains water pressure is between 172 – 500kPa.
Note: Where maximum line pressure exceeds 500 kPa, the supplied multivalve must be installed to comply with Australian Plumbing Standards. - The Sparq S4 system is designed for mains/towns warter supply only.
- Caution: Do not use with water that is microbiologically unsafe or without adequate disinfection before or after the system.
- Check the appliance rating plate and ensure correct power supply is available for the appliance and the relevant circuit will not be overloaded (see Specifications).
- Check both unit and tap locations are within reach of each other and within reach of the power and water connections
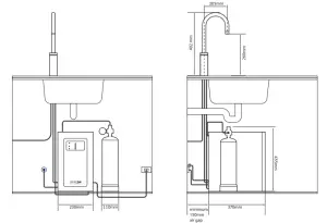
- Check there is sufficient room for the appliance inclusive of ventilation requirements within the cupboard and that the cupboard is capable of supporting the appliance with a net weight of 24 kg including the gas bottle (see Fig. 1).
Note: It may be required for additional ventilation to be installed within the cupboard/door to ensure there is adequate cross ventilation to mitigate cupboard temperature reaching 40°C or above. Inadequate ventilation can lead to malfunction and void warranty
Installation Note: A water filter system/tap, like any product, has a limited life and may eventually fail. Also sometimes failure happens early due to unforeseen circumstances. To avoid possible property damage, this product should be regularly examined for leakage and/or deterioration and replaced when necessary. A drain pan, plumbed to an appropriate drain or outfitted with a leak detector, should be used in those applications where any leakage could cause property damage, and/or the water supply should be turned off if no one is home/present.
Parts Included
Unpack the equipment. Ensure all parts are present and have not been damaged in transport. You should have:
- Sparq Unit

- Faucet/Tap

- CO2 Bottle

- Regulator

- SmartTeeTM

- Multivalve

- Straight Connector

- Wiring Loom

- Tubing

- Power Cord

- Spacer

Specifications
| Model: | SPARQ-S4 |
| Flow: | 20 Lph |
| Chilled Temperature: | 4°C to 10°C |
| Power Requirements: | 50Hz / 220~240 V |
| Max Power Consumption: | 100 W |
| Tap Dimensions: | 402 (H) x 205 mm (W) |
| Appliance Dimensions: | 435 (H) x 230 (W) x 370 (D) mm |
| Warranty: | 1 year^ |
System Identification
Figure 1 – Dimensions

A Ø26mm hole is required for faucet (Max. 30mm).
Warranty cover parts and labour for the period of 1 year where applicable subject to approval.

Figure 3 – CO2 Bottle

Figure 4 – Exploded Diagram

Note: All lines are 1/4″ tube.
How To Operate The Tap
When the blue light is on, the tap is in ‘Sleep Mode’. Press the desired button once and the LED light will change from blue to green to indicate that the tap is ready. Press the button again to start dispensing water.
- Push the
button (top) for cold water. - Push
the button (middle) for sparkling water. - Push the
button (bottom) for ambient water.
Figure 5 – How To Use Quick Connect Fittings
- Cut the tube square and push in to the tube stop. For metal tube remove burrs and chamfer tube end to prevent O-Ring seal being damaged.

- Fitting grips before it seals. Ensure tube is pushed in to tube stop.

- Tube is secured in position.

- DISCONNECTION PROCEDURE
Push collet against body and slide tube out of fitting.
Figure 6 – SmartTee™ Quick Connect Fitting
- Turn the quick connect nut on the SmartTee™ anticlockwise to release the collet.

- Cut the tube square and push into into the tube stop (inside the collet). For metal tube; remove burrs and chamfer tube end to prevent O-ring seal being damaged.

- The fitting grips before it seals. Ensure the tube is pushed all the way into the tube stop.

- Once the tube is secured in position, turn the quick connect nut clockwise to secure.

Note: Hand tighten only. Do not overtighten.
DISCONNECTION PROCEDURE - Turn the quick connect nut on the SmartTee™ anticlockwise to release the collet.

- Push the collet against the quick connect nut and slide tube out of fitting.

Installation
VERY IMPORTANT! The following installation sequence must be followed in the correct order and as specified in this userguide by suitably qualified tradespeople. The unit and CO2 Bottle must be installed upright (as depicted within this user guide) In the event of a leak or electrical fault, the unit must be isolated from both power and water. Advice should be sought out by the relevant licenced tradesperson.
Installation Note: A water filter system/tap, like any product, has a limited life and may eventually fail. Also sometimes failure happens early due to unforeseen circumstances. To avoid possible property damage, this product should be regularly examined for leakage and/or deterioration and replaced when necessary. A drain pan, plumbed to an appropriate drain or outfitted with a leak detector, should be used in those applications where any leakage could cause property damage, and/or the water supply should be turned off if no one is home/present.
- Select a suitable position for the tap so that it dispenses into the sink bowl with ample clearance below the outlet and drill a 26 mm hole (max 30 mm).
- Isolate water supply. Uninstall the connections on the cold water line and connect the SmartTee™ (see Fig. 6). Reinstall the previous connection to the SmartTee™.
- Connect the inlet of the multivalve to the outlet of the SmartTee™ with a length of blue tubing. Please see Fig. 4 for water flow direction.
- Connect the straight connector to the white tube on the tap (see Fig.4).
- Remove the black plastic nut from the tap thread and connect the wiring loom to the tap (see Fig.4). Take care not to bend or break the pins.
- Carefully feed the straight adaptor, tap connections and wiring loom through the tap hole and place tap into position ensuring it sits flush to the sink/benchtop.
- Screw the tap nut on and tighten making sure the tap is correctly positioned on top. Fixing the tap to a sink may require more care to align all the parts. HAND TIGHTEN ONLY. Do not overtighten as overtightening may split the plastic nut.
Note: For thin bench tops or a sink mount, use the supplied spacer, slipping it up the thread, followed by the black nut to tighten. - Choose the best position for the unit with the required 150 mm clearance for ventilation to the rear and top of the unit. Remember to allow access room for changing filters at the top of the unit and a suitable place where water spillage will not cause damage.
Note: If cupboard does not permit enough space for filter changes, leave enough tube length to allow the filter system to come out of the cupboard to change the filters. - With a length of blue tubing, connect the outlet of the multivalve to the inlet at the back of the unit (see Fig. 4).
- With a length of white tubing, connect the straight adaptor to the water outlet, trimming back any ecess tubing.
- Attach the wiring loom from the tap to the unit, taking care not to bend or break the pins (see Fig. 4).
- Leaving the power off, connect the power cord at the rear of the unit to the power outlet (DO NOT TURN POWER ON).
Note: DO NOT turn on the water/and or power supply, this will be done in the Cold/ Ambient Water Commissioning steps. - Position the CO2 bottle as close to the unit as possible, ensuring the bottle is upright.
Note: Any CO2 bottles should always be upright during use, storage and transit. If the bottle has been left horizontal, place upright and let stand for 60+ minutes to allow contents to settle before initialising. The SPARQ-CO2 is NOT refillable. - Ensure the regulator is in the off position by turning the black knob fully counterclockwise (-) until home (see Fig.3).
- Connect the CO2 bottle to the regulator by screwing the regulator clockwise onto the bottle firmly, but taking caution not to overtighten as this may cause the sealing rubber to perish and leak. Use soapy water on the connection between the bottle and regulator to test for leaks.
Note: Some CO2 will escape as the valve in the bottle is depressed during connection. - Attach the black tube connect the “CO2 IN” connection at the back of the unit to the CO2 regulator (See Fig.3).
Note: DO NOT open the regulator, this will be done in the Soda/Sparkling Water Commissioning Sequence. - Ensure there is adequate ventilation around the unit (150 mm).
- Check all tubes from the undersink unit to the tap ensuring there are no kinks in the tubing, and any tube sag is minimised as it can cause flow to be reduced.
- Double check all tubes, fittings and connections to and from the unit and tap have been connected and fitted correctly.
- Check all electrical connections are firmly fitted and there is no damage
Cold/Ambient Water Commissioning
- Turn on the water supply at the inlet (SmartTee™ valve).
- Turn on the power supply at the power point -The tap light should illuminate.
- Flush the filters by pressing the cold button
on the tap for 1-2 minutes followed by the ambient button
for another 1-2 minutes or until water runs clear of carbon fines. (It is normal for black fines, cloudiness or micro bubbles to come through during the filter flush).
Note: To activate water flow, press the button once and the ring light on the top of the tap body will go green, then press and hold the button again for water flow. - Turn on the COLD power switch on the back of the chiller. The chilling indicator on the front panel of the unit will turn off once the correct temperature is reached.
Note: The temperature is preset to 4-10 degrees within the tank. It takes approx 20- minutes to complete its chill cycle dependent on incoming water temperature and ambient surrounds of the unit.Soda/Sparking Water Commissioning
- Ensure the CO2 bottle is connected firmly to the regulator and the black gas tube is fitted correctly.
- Slowly open the CO2 regulator by turning the black knob clockwise (+) until the gauge reads 3 Bar.
- Turn off the water supply at the inlet (SmartTee™ valve).
- Purge the soda water line of any air by pressing on the sparkling button
on the tap for 30 seconds. - Turn on the water supply at the inlet (SmartTee™ valve).
- Turn on the SODA power switch on the back of the chiller and operate the sparkling button
on the tap for 15 seconds allowing any excess CO2 to be dispensed. - Allow 2-5 minutes for the soda tank to fill completely.
Note: The bar pressure on the CO2 gauge will increase during this process. Venting from the CO2 gauge and/or the pressure relief valve within the unit is normal during this step. - Operate the sparkling button on the tap for 10 – 15 seconds and allow the tank to refill for approximately 1 minute, repeating this process 1-3 more times or until water carbonation is noticed.
Note: The bar pressure on the CO2 gauge will fluctuate between 3-4 Bar during this process and during normal operation. - Allow 1-2 hours for the water to both chill and reach full carbonation.
Note: A small amount of water will come out after using the sparkling feature for 1-2 seconds. This is normal as the CO2 is purged from the line.
Filter Maintenance
Every 12 Months or When Taste Returns
- Isolate water at the SmartTee™ and depressurize lines by pressing the Ambient tap button until flow stops.
- Remove filter cover by pushing the clip in on top of the unit.

- Push in the release button on the filter manifold and lift out of the unit

- Unscrew old filters from the manifold in an clockwise direction.
- Clean inside manifold (wipe down) so there is no excess water.
- Remove all packaging from the new filter cartridges. Insert each new cartridge into the manifold by pushing up and rotating in a anti-clockwise direction until it stops.
- Reinsert the manifold ensuring it clicks in securely.
- Restore the water supply (SmartTee™ valve), checking that there are no water leaks.
- Reinstall the filter cover.
- Flush the filters for 5-10 minutes by operating the chilled water button
firstly for a few minutes followed by the ambient water button
for a further few minutes or until black carbon fines have cleared. It is normal for black fines, cloudiness or microbubbles to come through during the filter flush.
Gas Replacement
As Required
- Isolate the CO2 by turning the black knob fully counter-clockwise (-) until home.
- Unscrew the depleted CO2 bottle from the regulator. (Turn the empty Co2 bottle clockwise).
Note: Some CO2 will escape as the valve in the bottle is depressed. - Connect the new CO2 bottle to the regulator by screwing the bottle counter-clockwise onto the regulator firmly, but taking caution not to overtighten as this may cause the sealing rubber to perish and leak.
Note: Use soapy water on the connection between the bottle and regulator to test for leaks.
Note: Some CO2 will escape as the valve in the bottle is depressed. - Slowly open the CO2 regulator by turning the black knob clockwise(+) until the gauge reads 3 Bar.
- Operate the sparkling button
on the tap for 10 – 15 seconds and allow the tank to refill for approximately 1 minute, repeating this process until water carbonation is noticed in the dispensed water.
Note: The Bar pressure on the CO2 gauge will fluctuate between 3-4 Bar during this process and normal operation. - Allow 1-2 hours for the water to both chill and reach full carbonation.
Note: A small amount of water will come out after using the sparkling feature for 1-2 seconds. This is normal as the CO2 is purged from the line. - Check with your local governing bodies for any disposal requirements and discard the empty bottle
Troubleshooting
| SYMPTOMS | POSSIBLE CAUSE | POSSIBLE SOLUTION |
| No cold water. | Cold temperature switch is off. | Please turn the cold temperature switch on. |
| Refrigerant is low. | Call your service provider. | |
| Problem with compressor or thermostat. | Call your service provider. | |
| No cold water from tap. | Ice blockage. | Please turn off the power supply and allow 24 hrs for the blockage to melt. |
| No water inside the cold water tank. | Please check mains water supply. | |
| Soda not working or flat. | CO2 bottle is empty. | Replace CO2 bottle. |
| Soda power is off. | Turn on the soda power switch. | |
| CO2 line needs re- commissioning. | Follow the Soda/Sparkling Water Commissioning steps. | |
| Not enough bar pressure. | Slightly increase CO2 bar pressure. DO NOT exceed 4 bar. |
Warranty
Any claim under this warranty must be made within 1 year of the date of purchase of the product. This product is warranted to be free of defect of material and workmanship for 1 year from date of purchase. Puretec is renowned for its quality and after-sales support so if you have any issues please call 1300 140 140 (AU) or 0800 130 140 (NZ). To make a warranty claim, contact us directly or the place of original purchase. All costs relating to a warranty claim must be approved by Puretec prior to any work being carried out.
1 year warranty is parts and labour. Excludes cartridges and canisters.
Puretec will pay your reasonable, direct expenses of claiming under this warranty. You may submit details and proof of your expense claim to place of purchase for consideration.
The warranty only applies if the product was used and/or installed in accordance with the user guide and/or installation instructions. This warranty is given in lieu of all other express or implied warranties and manufacturer shall in no circumstance be held liable for damages consequential or otherwise or delays caused or faulty manufacturing except as excluded by law.
Applicable to all above, is that the warranties need to be approved by Puretec to ensure product was not incorrectly used, installed or claimed. False and incorrect claims will be pursued at Puretec’s discretion, including chargeable inspection and labour costs incurred.
WARRANTY / AUSTRALIA
This warranty is given by Puretec Pty Ltd, ABN 44 164 806 688, 37-43 Brodie Road Lonsdale SA 5160, telephone no. 1300 140 140 and email at [email protected]. This warranty is provided in addition to other rights and remedies you have under law: Our goods come with guarantees which cannot be excluded under the Australian Consumer Law. You are entitled to replacement or refund for a major failure and to compensation for other reasonably foreseeable loss or damage. You are also entitled to have the goods repaired or replaced if the goods fail to be of acceptable quality and the failure does not amount to a major failure.
WARRANTY / NEW ZEALAND
This warranty is given by Puretec Ltd, Reg. No 4464398, PO Box 875, Cambridge 3450, NZ, telephone no. 0800 130 140 and email at [email protected].
This warranty is provided in addition to other rights and remedies you have under law: Our goods come with guarantees which cannot be excluded under the Consumer Guarantees Act. You are entitled to replacement or refund for a major failure and to compensation for other reasonably foreseeable loss or damage. You are also entitled to have the goods repaired or replaced if the goods fail to be of acceptable quality and the failure does not amount to a major failure.
Puretec Customer Service
Thank you for purchasing a Puretec Sparq S4 Drinking Water Appliance. The Sparq S4 is a proven performer manufactured from only quality materials and components. It will give years of reliability and trouble-free operation if maintained properly.
Caution: Do not use with water that is microbiologically unsafe or without adequate disinfection before or after the system
The Puretec Sparq S4 is designed for metropolitan supply water only. Flush the system for 5 minutes or more, after any period of non-use, more than 2 weeks.
Note: Where maximum line pressure exceeds 500 kPa, the supplied multivalve (pressure limiting valve) must be installed to comply with Australian Plumbing Standards.
Australia
P: 1300 140 140
E: [email protected]
w: puretec.com.au
New Zealand
P: 0800 130 140
E: [email protected]
W: puretec.co.nz
































