
INSTALLATION AND USER’S MANUAL
CONDOR 220 / 350 / ONE
Swing gates automation with articulated arms.
Suitable for lightweight gates and for single leaves and for use with large posts

comunello.com
INSTALLATIONS-UND GEBRAUCHSANLEITUNG

| α | B | D | A | C |
| 90 ° | 205 | 0 | 415 | 209 |
| 90 ° | 190 | 50 | 415 | 135 |
| 90 ° | 185 | 100 | 395 | 159,5 |
| 90 ° | 170 | 150 | 372 | 278 |
| 110° | 250 | 0 | 365 | 287 |
| B | D | A | º | C |
| 150 | 0 | 466,5 | 90 | 250 |
| 50 | 463,5 | 90 | 231 | |
| 100 | 457,0 | 90 | 250 | |
| 150 | 446,0 | 90 | 260 | |
| 200 | 0 | 416,5 | 100 | 256 |
| 50 | 414,0 | 99 | 260 | |
| 100 | 407,0 | 98 | 268 | |
| 150 | 396,0 | 90 | 240 | |
| 250 | 0 | 366,5 | 110 | 275 |
| 50 | 364,0 | 110 | 274 | |
| 100 | 357,0 | 100 | 245 | |
| 150 | 346,0 | 100 | 230 |











INSTALLATION AND USER’S MANUAL CONDOR 220/350/ONE
EC DECLARATION OF CONFORMITY:
The undersigned Mr. Luca Comunello, representing the following manufacturer,
Fratelli COMUNELLO Spa
Via Cassola 64, 36027 Rosà (VI) – Italy
DECLARES that the equipment described below:
Description: Swing gates automation with articulated arms.
Model: CONDOR 220 / 350 / ONE
Is in compliance with the provisions set down in the following directives:
- 2014/30/EU (Directive EMCD)
- 2011 /65/EU (Directive RoHS)
- 2014/35/EU (Directive LVD)
- 1999/5/CE (Directive R& TTE)
and that all the rules and/or technical specifications shown below have been applied:
EN61 000-6-2:2005 + EN61 000-6-3:2007
EN62233 :2008 + EN50366:2003
EN301489-3
EN60335-2-1 03 :2003 + EN60335-1 :2002
and the following amendments.
Rosà (VI) – Italia
21-04-2016
and he also declares that it is not allowed to commission the device until the machinery where it will be incorporated or whose it will become a component will have been identified and will have been declared in compliance with the conditions of the 2006/42 EC Directive and with the national legislation that transposes it.

Fratelli Comunello S.p.A.
Company with certified Quality Management System UNI EN ISO 9001:2015.
PRESCRIPTIONS
1.1 SAFETY PRESCRIPTIONS
This installation manual is addressed exclusively to professionally skilled personnel. Read all the instructions carefully before starting the installation procedures. Any operations not expressly set down in these instructions are to be considered prohibited; improper use may damage the product and place persons and property at risk. The manufacturer declines all liability for failure to observe best practices in gate construction and for any possible deformation that may occur during use of the product. Store this manual in a safe place for future reference. The design and construction of the devices of which model CONDOR is composed and this manual are in full compliance with statutory legislation. In consideration of potential hazards that may arise during the installation and use of CONDOR, the installation procedures must be carried out in full compliance with the applicable laws, standards, and regulations; namely:
1.2 INSTALLATION PRESCRIPTIONS
- Before starting the installation procedures make sure you have any additional devices and materials that may be required to complete the CONDOR gate opener system
in consideration of the specific application. - The automation system must not be used until the gate has been made safe
- Dispose of packaging materials in compliance with local regulations.
1.3 OPERATING PRESCRIPTIONS
- No modifications can be made to any part of the product unless specified in this manual. Unauthorized modification of the product is likely to lead to malfunctions and risks. The manufacturer declines all liability for damage caused by unauthorized modifications.
- The parts of the automation system must never be immersed in water or other liquids. During the installation, procedures ensure that no liquids penetrate inside the control unit or other open devices.
- If liquids penetrate any parts of the gate opener disconnect the electrical power supply immediately and consult Comunello technical service; the use of CONDOR in such conditions may give rise to potentially hazardous situations.
- Keep all parts of CONDOR away from heat sources and open flames; exposure to heat or flames may damage the devices and cause faults, fire, or hazardous situations.
- When the equipment remains unused for a long time, remove the optional battery and store it in a dry place to avoid the risk of leakage of harmful substances.
- Connect the control unit exclusively to an electrical power supply line equipped with an efficient protective earth conductor.
- Any operations that require the housing of CONDOR to be opened must be performed with the control unit and the electrical power supply disconnected; if the disconnect device is not clearly visible, attach a warning notice to the effect: “WARNING – MAINTENANCE IN PROGRESS”.
- In the case of tripping of circuit breakers or blowing of fuses, find the fault and remedy it before resetting the circuit breaker or changing the fuse.
- If the fault cannot be remedied using the information given in this manual, consult COMUNELLO technical service
PRODUCT DESCRIPTION AND INTENDED USE
2.1 PRODUCT DESCRIPTION
Electromechanical articulated arm operator designed for use with lightweight structures and for single leaves up to 2.2 meters and 3.5 meters. Composed of a compact aluminum housing and die-cast alloy arm.
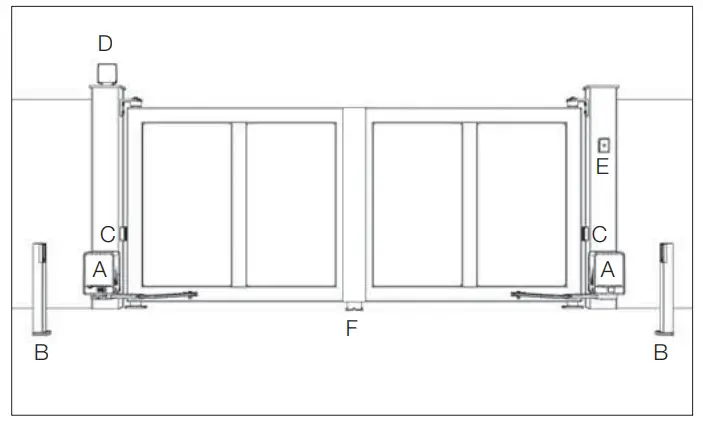
2.2 TYPICAL INSTALLATION

KEY
AN OPERATOR
B OPENING PHOTOCELLS
C CLOSING PHOTOCELLS
D FLASHING LIGHT
E KEY SELECTOR SWITCH
F CENTRAL CLOSING STOP
TECHNICAL SPECIFICATIONS
| CONDOR 220 | CONDOR 350 | ||
| Power supply | 230V ~ 50 Hz | ||
| Operator power supply | 24V ONE 24V | 230V ~ | 24V ONE 24V |
| Power consumption | 110 W | 280 W | 150 W |
| Current input | 5 A | 1,2 A | 6,5 A |
| Torque | 150 Nm | 250 Nm | 200 Nm |
| Duty cycle | 30% | Intensive use | |
| Protection rating | IP 44 | ||
| Insulation class | I I | 1 earth | I I |
| Working temperature | from -20°C to + 50°C | ||
| Speed | 0,10 rad/s | ||
| Weight | 10 Kg | 10 Kg | 10 Kg |

INSTALLATION
4.1 PRELIMINARY CHECKS
Ensure that all material used is in perfect condition and fit for purpose.
- Make sure that the mechanical structure of the gate is suitable for automation. This product cannot be used to automate a gate unless the gate is already in good working order and safe and it cannot remedy defects caused by incorrect installation or lack of maintenance of the gate.
- Check the stated operating limits.
- Move the gate leaves manually in both directions to ensure the force required is constant throughout the full range of movement.
- Move the gate leaves manually to any position then release them to check that they remain stationary.
- Check that the area in which the operator is to be mounted is compatible with the size of the unit and make sure there is sufficient clearance for the full movement of the arm.
- Ensure that there is sufficient space around the operator to perform the manual release procedure.
- Ensure that the surfaces on which the devices are to be mounted are solid and able to provide a secure anchorage.
- Ensure that all devices to be installed are in a protected location and such as to minimize the risk of accidental impact.
4.2 OPERATING LIMITS
Before starting the installation work make sure the operator is correctly sized in relation to the dimensions and length of the gate leaves and within the limits of the values given in the chapter “Product technical specifications”: For installation purposes, the minimum width of the gate pillar is 200mm. The operator arm must be secured to the gate leaf in a sufficiently robust position (e.g. on the gate frame).
4.3 PREPARATORY WORK FOR INSTALLATION
(FITTING THE ARTICULATED ARMS)
- Release the operator (see heading 4.4.3)
- Assemble arm 1 and arm 2 (FIG. 3)
- Fix the arms to the drive shaft (FIG. 4)
- Fit the cover and secure it with the two screws supplied (FIG. 5). The sole difference between the LH and RH leaves lies in the position of arm 2.
4.4 INSTALLATION 4.4.1 INSTALLATION
- With reference to FIG. 1 measure distance D and, depending on the required opening angle, you can obtain dimensions B and A.
- Check that the arm has sufficient operating clearance to complete the opening movements (dimensions C and E). (FIG. 1).
- Referring to fig. 6, drill 4 holes of suitable diameter in relation to the type of anchor bolts used to fix plate P.
- Comply with the minimum dimension of 150 mm required to avoid installing the operator too close to the ground. (FIG. 6).
- Drill 2 holes for fixing the articulated bracket S, complying with the value of dimension A (FIG. 1) and ensuring alignment (dimension 60 mm) with the operator bracket P shown in (FIG. 6).
- If the areas of fixing are too insubstantial or insufficiently sturdy, they must be reinforced.
- Bring the gate leaf to the fully closed position (FIG. 7).
- Remove the operator cover by unscrewing the 2 lateral screws elimina and the central screw located under the release lever (FIG. 8).
- Fix the operator to the bracket with the two nuts and bolts supplied; (FIG. 9).
- Fix the arm to the articulated bracket using bushing, washer, nut, and bolt (FIG. 10).
- Check that the bracket and arm are perfectly level.
- With the operator released, open the gate leaves completely and check the operating clearances of the two arms.
- Adjust the limit stop as described in heading 4.4.2.
4.4.2 INSTALLATION OF LIMIT STOPS AND SWITCHES
Mechanical limit stop
The operator is equipped with two adjustable mechanical limit stops that arrest the gate when the fully open and fully closed positions are reached.
- With the operator released, bring the gate leaf to the desired opening position (FIG.11).
- Fix the mechanical limit stop fully home against arm 1 and secure it with the supplied screw (FIG. 12).
- The toothed profile of the limit stops and the lower surface make it possible to adjust the position in 5° steps.
- Perform the same procedure with the gate leaf in its fully closed position (FIG. 13).
Electronic limit switches
If the cover is fitted, remove it as shown in fig. 8
- Bring the gate leaf to its fully closed position (FIG.14).
- Rotate the lower cam until causing the lower switch to trip (FIG.15).
- Lock the cam by tightening the screw.
- Bring the gate leaf to its fully open position (FIG.16).
- Lock the cam by tightening the screw.
- Rotate the upper cam until causing the upper switch to trip (FIG.17).
- Connect the limit switches to the electronic board located at the top of the operator, as described in chapter 5 “electrical connections”.
4.4.3 OPERATOR MANUAL RELEASE
Perform the manual release procedure when the gate is to be opened manually. Activation of the release system may result in uncontrolled movements of the gate in the presence of imbalance or mechanical faults.
- Open the front hatch and insert the supplied key (FIG. 18).
- Turn the key clockwise through 90°. Grasp the release lever and pull it counterclockwise (FIG.19) as far as it will go. This action serves to disengage the operator transmission thereby allowing the gate to be opened manually.
- Do not swing the gate leaf with force but rather accompany it through its full movement (FIG. 20).
- The key cannot be removed from the lock until the release lever is returned to its initial position.
- To resume motorized control of the gate, first, return the release lever to its starting position and then turn the key back to the locked position (FIG. 21).
- Remove the key and stow it in a safe place that is known only to persons authorized to use the gate. (FIG. 22).
PREPARATION FOR ELECTRICAL CONNECTIONS
WARNING! Connect to the mains using a multicore cable of at least
3×1.5mm2 section and of a type that complies with the regulations in force.
- Perform the manual release as illustrated in heading 4.4.3.
- Remove the operator cover by undoing the 2 lateral screws elimina and the front screw located under the release lever (FIG. 8).
- Remove the cover upward (FIG. 8).
- Connect the yellow/green wire (earth) to the terminal eye already present alongside the cable inlet hole. (FIG. 23). (for models of class I).
- Route the wires to the electronic board located at the top of the operator (FIG. 24).
TESTING
Each part of the automation system, e.g. safety edges, photocells, emergency stop, etc. must be tested; follow the procedures shown in the instruction manuals supplied with the devices in question. Perform the following sequence of operations for testing CONDOR:
- Check that all the prescriptions in this manual have been followed scrupulously with special attention to the matters set down in chapter 1 “Prescriptions”;
- Using the supplied control or stopping devices (key selector switch, control
buttons or radio transmitters), perform gate opening, closing, and stopping tests
and make sure the gate responds correctly to the various commands. - Check the operation of all the system’s safety devices (photocells, safety edges, emergency stop, etc.) one by one.
- If potentially hazardous situations caused by the movement of the gate leaf have been eliminated by limitation of impact force, the associated force must be measured as prescribed in standard EN 12445.
PRODUCT MAINTENANCE
Maintenance must be carried out at regular intervals by qualified personnel in compliance with the provisions of statutory legislation and the regulations in force. CONDOR must be serviced at least once every 6 months or after 10,000 operating cycles since the last service.
- Disconnect the operator from all power supplies
- Check all the moving parts and replace any worn parts
- Check all parts of the automation system for signs of deterioration
SPARE PARTS
Spare parts can be purchased by contacting the technical service.
DISPOSAL
At the end of its useful life the automation system must be dismantled by qualified personnel and the materials must be recycled or disposed of in compliance with the local legislation in force.
WARRANTY
a) In business relationships or in the case of products sold for professional use, this warranty is limited to the repair or replacement of product parts that FRATELLI COMUNELLO SPA acknowledges as defective, through equivalent re-manufactured Products (the “Conventional Warranty”); the warranty does not include the costs necessary for repairing or replacing the material (e.g. labor costs, rental of equipment, etc).
b) The provisions contained in articles 1490 to 1495 of the Italian Civil Code shall not apply.
c) FRATELLI COMUNELLO SPA warrants the proper operation of the products within the limits indicated in 1 above. Unless otherwise agreed, the validity of the Conventional Warranty is 24 (twenty-four) months from the production date, which can be found on the products. The Warranty shall be effective and binding on COMUNELLO only if the product has been correctly installed and maintained in accordance with the installation and safety rules set out in the documentation provided by COMUNELLO or otherwise available on the website http://www.comunello.com/corporate/general_conditions_sales/
d) The warranty does not cover: failures or damage caused by transport; failures or damage caused by defects in the electrical system of the buyer and/or by carelessness, negligence, inadequate or abnormal use of such system; failure or damage due to tampering carried out by unauthorized personnel or due to incorrect use/installation (in this regard, system maintenance at least every six months is recommended) or the use of nonoriginal spare parts; defects caused by chemical agents and/or atmospheric phenomena. The warranty does not cover the cost of consumables; in any event, COMUNELLO shall be entitled to consideration for the work performed at the Customer, where such work proves useless as the warranty did not apply or because the customer had used the Comunello product in a negligent, reckless or incompetent manner, such that the proper use of the product could have avoided the work.
e) Implementation terms: unless otherwise agreed, the right to the Conventional Warranty is exercised by showing a copy of the purchase document (invoice) to COMUNELLO. Any defect must be notified to COMUNELLO within the time limit of thirty (30) days from detection of the defect. The action must be exercised within the limitation period of 6 (six) months from detection of the defect. The Product parts for which the Customer requests application of the Conventional Warranty must be returned by the Customer to FRATELLI COMUNELLO SPA, Via Cassola 64, 36027 Rosà (VI) Italy.
f) The Customer cannot claim compensation for indirect damage, loss of profits, or loss of production, and in any case, it cannot claim compensation for an amount that exceeds the value of the supplied components or products. All transport costs for Products that have been repaired or are to be repaired, although covered by the Conventional Warranty, shall be charged to the Customer.
g) No external work carried out by Comunello technical staff is covered by the Conventional Warranty.
h) Specific amendments to the Conventional Warranty conditions described herein can be defined by the parties in their commercial contracts.
i) The Court of Vicenza (Italy) shall be the place of jurisdiction for any dispute which will be settled according to the Italian laws.
NOTES
FRATELLI COMUNELLO S.P.A.
AUTOMATION GATE DIVISION
Via Cassola, 64 – C.P. 79
36027 Rosà, Vicenza, Italy
Tel. +39 0424 585111 Fax +39 0424 533417
[email protected] www.comunello.com![]()
COMUNELLO ®Copyright 2021 – All rights reserved
91300219 – Rev. 06 – 07.01.2021
References
Fratelli COMUNELLO | Gate - Automation - Frame - Frame automation
Fratelli COMUNELLO | Gate - Automation - Frame - Frame automation
Fratelli COMUNELLO | Gate - Automation - Frame - Frame automation
CORPORATE - Fratelli COMUNELLO
Corporate General sales conditions - Fratelli COMUNELLO
CORPORATE - Fratelli COMUNELLO
















