![]()
JENN-AIR RISE 60cm Small Built-In Steam Oven
Your safety and the safety of others are very important,
We have provided many important safety messages in this manual and on your appliance. Always read and obey all safety messages. This is the safety alert symbol. This symbol alerts you to potential hazards that can kill or hurt you and others, Al safety messages will follow the safety alert symbol and either the word “DANGER” or “WARNING. These words mean:
DANGER You can be killed or seriously injured if you don’t immediately follow instructions.
WARNING You can be killed or seriously injured if you don’t follow instructions. All safety messages will tell you what the potential hazard is, tell you how to reduce the chance of injury, and tell you what can happen I the instructions are not followed.
IMPORTANT:
Save for local electrical inspector’s use.
IMPORTANT :
Conserver ces instructions à l’usage de l’inspecteur des installations électriques local.
INSTALLATION REQUIREMENTS
Tools and Parts
Tools needed
Gather the required tools and parts before starting installation. Read and follow the instructions provided with any tools listed here.
- Measuring tape
- Pencil
- Phillips screwdriver
- Electric drill
- 5/64″ (2 mm) drill bit
Parts Supplied
- Screws (2 for bottom trim)
- Bottom trim (optional)
- 4 x 25 screws (2 for oven installation)
Location Requirements
IMPORTANT: Observe all governing codes and ordinances.
- The Cabinet opening dimensions that are shown must be used. Given dimensions provide minimum clearance with the oven.
- The recessed installation area must provide a complete enclosure around the recessed portion of the oven.
grounded electrical supply is required. See the “Electrical Requirements” section.
- The oven support surface must be solid, level, and flush with the bottom of the cabinet cutout. The floor must be able to support an oven weight of 111 lbs (50 kg).
IMPORTANT: To avoid damage to your cabinets, check with your builder or cabinet supplier to make sure that the materials used will not discolor, delaminate or sustain other damage. This oven has been designed in accordance with the requirements of UL and CSA International and complies with the maximum allowable wood cabinet temperature of 194°F (90°C).
Undercounter Installation (with the cooktop installed above):
Ovens approved for this type of installation have an approval label located on the top of the oven. Refer to undercounter installation instructions for cutout dimensions and approved oven cooktop combinations (separate sheet).
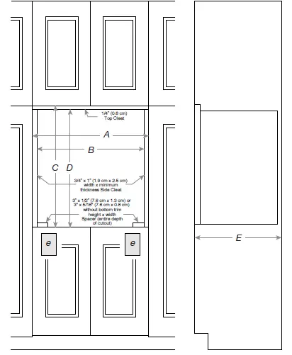
Product Dimensions
Top View
Minimum Dimensions
Cabinet Dimensions – Traditional Install
For proper installation, the following minimum clearances must exist above and below the cutout opening.
Installed in Cabinet
Front View Rear View
(Without cooktop installed above)
- 235/8″ minimum (60 cm) width of cabinet
- 22″ (55.8 cm) width of cutout
- 1713/16″ (45.3 cm) recommended height of cutout*
- 1/2″ (1.2 cm) top of cutout to underside of countertop
- 1/2″ (1.2 cm) bottom of cutout to floor or 5/16″ (8 mm) without bottom trim installed.
- Recommended junction box location
- Will fit cutout height from 173⁄4″ (45 cm) to 1715⁄16″ (45.6 cm).
NOTE: True dimensions are in mm or cm and converted to inches.
Cabinet Dimensions – Flush Installation
Installed in Cabinet
- 2311⁄16″ (60.2 cm) width of flush inset cutout (minimum)
- 22″ (55.8 cm) width of opening (minimum)
- 189⁄16″ (47.2 cm) height of flush inset cutout (minimum)
- 183⁄8″ (46.6 cm) height of opening (minimum)
- 203⁄8″ (51.8 cm) depth of cutout (minimum)
NOTE: True dimensions are in cm and converted to inches.
Installed under Counter (Without cooktop installed above)
- 2311⁄16″ (60.2 cm) width of flush inset cutout (minimum)
- 22″ (55.9 cm) width of opening (minimum)
- 189⁄16″ (47.2 cm) height of flush inset cutout (minimum)
- 183⁄8″ (46.6 cm) height of opening (minimum)
- Recommended junction box location
Top View
- True dimensions are in mm and converted to inches.
Electrical Requirements
WARNING
Electrical Shock Hazard Plug into a grounded 3 prong outlet.
Do not remove ground prong. Do not use an adapter.
Do not use an extension cord. Failure to follow these instructions can result in death, fire, or electrical shock.
IMPORTANT: The oven must be electrically grounded in accordance with local codes and ordinances, or in the absence of local codes, with the National Electrical Code, ANSI/NFPA 70 or Canadian Electrical Code, CSA C22.1. If codes permit and a separate ground wire is used, it is recommended that a qualified electrical installer determine that the ground path is adequate. A copy of the above code standards can be obtained from:
- National Fire Protection Association 1 Batterymarch ParkQuincy,
- MA 02169-7471
- CSA International
- 8501 East Pleasant Valley Road Cleveland, OH 44131-5575
- A 120 V, 60 Hz, AC only, 15 A fused, electrical circuit is required. A time-delay fuse or circuit breaker is also recommended. It is recommended that a separate circuit serving only this range be provided.
- Check that the outlet provides 120 V power and is correctly grounded.
- The wiring diagram is located on the back of the oven in a clear plastic bag.
NOTE: The metal chassis of the oven must be grounded in order for the control panel to work. If the metal chassis of the oven is not grounded, no keypads will operate. Check with a qualified electrician if you are in doubt as to whether the metal chassis of the oven is grounded.
INSTALLATION INSTRUCTIONS
Install Oven (24″ [59.5 cm] Installation Only)
WARNING
Excessive Weight Hazard
Use two or more people to move and install oven. Failure to do so can result in back or other injury.
NOTE: For this oven, the door handle may be used for lifting. Do not use any other portion of the control panel, side brackets, front frame or trim for lifting.
- Empty oven of any loose items.
- Using 2 or more people, slide the oven all the way into the opening.
- Center the oven within the opening. Open the oven door.

- Mark 2 holes (1 on each side) in the door facing frame of the oven.
- To avoid damage to the frame while drilling during the next step, close the door and remove the oven.
- NOTE: The bottom trim on this product is optional. 6. Drill the 2 holes using 1/16″ (2 mm) drill.
WARNINGElectrical Shock Hazard Plug into a grounded 3 prong outlet.Do not remove ground prong.
Do not use an adapter.
Do not use an extension cord. Failure to follow these instructions can result in death, fire, or electrical shock. - With the oven near the opening, plug the oven into the grounded 3-prong outlet.
- Replace oven in cutout opening
- Open the oven door. The holes in the door facing frame should align with the holes just drilled into the cabinet. Fasten the oven door facing to the cabinet using two 4 x 25 screws.
- Proceed to “Complete Installation” section.
Complete Installation
- Check the steam oven by running the steam and convection bake functions according to the Use and Care Guide.
- If the steam oven does not operate:
- Check that a household fuse has not blown, or a circuit breaker tripped. Replace the fuse or reset the circuit breaker. If the problem continues, call an electrician.
- Check that the power supply cord is plugged into a grounded 3 prong outlet.
- See the Use and Care Guide for troubleshooting information.
Installation is now complete. Save these Installation Instructions for future use.
If you need Assistance or Service:
Please reference the “Assistance or Service” section of the Use and Care Guide, or contact the dealer from whom you purchased your built-in oven.




















