DOMETIC DM20D Drawer Minibar with Door Panel Instruction Manual
© 2021 Dometic Group. The visual appearance of the contents of this manual is protected by copyright and design law. The underlying technical design and the products contained herein may be protected by design, patent or be patent pending. The trademarks mentioned in this manual belong to Dometic Sweden AB.
All rights are reserved.
Explanation of symbols
Please read these instructions carefully and follow all instructions, guidelines, and warnings included in this product manual in order to ensure that you install, use, and maintain the product properly at all times.
These instructions MUST stay with this product.
By using the product, you hereby confirm that you have read all instructions, guidelines, and warnings carefully and that you understand and agree to abide by the terms and conditions as set forth herein. You agree to use this product only for the intended purpose and application and in accordance with the instructions, guidelines, and warnings as set forth in this product manual as well as in accordance with all applicable laws and regulations. A failure to read and follow the instructions and warnings set forth herein may result in an injury to yourself and others, damage to your product or damage to other property in the vicinity. This product manual, including the instructions, guidelines, and warnings, and related documentation, may be subject to changes and updates. For up-to date product information, please visit documents.dometic.com, dometic.com.
Explanation of symbols
DANGER!
Safety instruction: Indicates a hazardous situation that, if not avoided, will result in death or serious injury.
WARNING!
Safety instruction: Indicates a hazardous situation that, if not avoided,
could result in death or serious injury.
CAUTION!
Safety instruction: Indicates a hazardous situation that, if not avoided,
could result in minor or moderate injury.
NOTICE!
Indicates a situation that, if not avoided, can result in property damage.
NOTE
Supplementary information for operating the product.
Safety instructions
General safety
WARNING! Failure to obey these warnings could result in death or serious injury.
Electrocution hazard
- Ensure that the minibar has been installed by a qualified technician in accordance with the Dometic installation manual.
- Do not operate the minibar if it is visibly damaged.
- If this minibar’s power cable is damaged, it must be replaced by the manufacturer, service agent or a similarly qualified person in order to prevent safety hazards.
- This minibar may only be repaired by qualified personnel. Inadequate repairs may cause serious hazards.
- When positioning the minibar, ensure the supply cord is not trapped or damaged.
- Do not locate multiple portable socket-outlets or portable power supplies at the rear of the appliance.
Fire hazard
- The refrigerant in the refrigerant circuit is highly flammable.
In the event of any damage to the refrigerant circuit:- Switch off the minibar.
- Avoid naked flames and sparks.
- Air the room well.
- Keep ventilation openings, in the minibar enclosure or in the built-in structure, clear of obstruction.
- Do not use mechanical devices or other means to accelerate the defrosting process, other than those recommended by the manufacturer.
- Do not open the refrigerant circuit under any circumstances.
- Do not use electrical devices inside the minibar unless they are recommended by the manufacturer for that purpose.
Explosion hazard
- Do not store any explosive substances, such as spray cans with
propellants, in the minibar.
Health hazard
- This minibar can be used by children aged from 8 years and above and persons with reduced physical, sensory or mental capabilities or lack of experience and knowledge if they have been given supervision or instruction concerning use of the minibar in a safe way and understand the hazards involved.
- Children shall not play with the minibar.
- Cleaning and user maintenance shall not be made by children without supervision.
- Children aged from 3 to 8 years are allowed to load and unload the minibar.
CAUTION! Failure to obey these cautions could result in minor or
moderate injury.
Risk of crushing
- Do not put your fingers into the hinge.
Health hazard
- Foodstuff may only be stored in its original packaging or in suitable containers.
NOTICE! Damage hazard
- Check that the voltage specification on the type plate is the same as
that of the power supply. - The minibar is not suitable for storing substances which are caustic or contain solvents.
- The insulation of the cooling device contains flammable cyclopentane and requires special disposal procedures. Deliver the cooling device at the end of its life-cycle to an appropriate recycling center.
- Keep the drainage outlet clean at all times.
- Only carry the minibar upright
Operating the minibar safely
DANGER! Failure to obey these warnings will result in death or
serious injury.
Electrocution hazard
- Do not touch exposed cables with your bare hands.
CAUTION! Failure to obey these cautions could result in minor or
moderate injury.
Electrocution hazard
- Before starting the minibar, ensure that the power supply line and the plug are dry.
Health hazard
- Make sure that you only put items in the minibar which may be chilled at the selected temperature.
- Food may only be stored in its original packaging or in suitable containers.
- Opening the door for long periods can cause significant increase of the temperature in the compartments of the minibar.
- Clean regularly surfaces that can come in contact with food and accessible drainage systems.
- If the minibar is left empty for long periods:
- Switch off the minibar.
- Defrost the minibar.
- Clean and dry the minibar.
- Leave the door open to prevent mould developing within the minibar.
NOTICE! Damage hazard
- Do not place it near naked flames or other heat sources (heaters, direct sunlight, gas ovens etc.).
- Never immerse the minibar in water.
- Protect the minibar and the cable against heat and moisture.
- Make sure that foodstuffs do not touch the walls of the cooling area.
Scope of delivery
The following main alternatives are obtainable:
- Minibar DM20D with door panel, without lock
- Minibar DM20D with door panel, with lock
- Minibar DM20F without door panel, without lock
- Minibar DM20F without door panel, with lock
Quantity Description 1 Minibar 1 AC connection cable 2 Screw Æ 4 x 45 mm (Æ 0.16 x 1.77 in., installation) 2 Screw Æ 4 x 25 mm (Æ 0.16 x 0.98 in., installation of the front feet) 2 Screw M4 x 45 mm (M4 1.77 in., handle installation) 2 Plug (Installation) 1 Handle DM20D only 2 Plug (Handle installation) DM20D only 2 Plug (Wooden panel) DM20F wooden version only 1 Lock decor (Wooden panel) DM20F wooden version with lock only 2 Key Lock version only 1 Installation and Operating manual
Intended use
The refrigeration appliance (also referred to as minibar) is intended to be used in household and similar applications such as:
- Staff kitchens in stores, offices and other work areas
- Farmhouses
- By clients in hotels, motels and other residential type environments
- Bed and breakfast type environments
- Catering and similar non-retail applications
The minibar is not suitable for installation in caravans or mobile homes.
The minibar is intended for installation in a piece of cabinetry or an installation niche.
The minibar is designed exclusively for cooling and storing of beverages and foods in closed containers.
The minibar is not suitable for storing fresh foods and medicine or freezing foodstuffs.
This minibar is only suitable for the intended purpose and application in accordance with these instructions.
This manual provides information that is necessary for proper installation and/or operation of the minibar. Poor installation and/or improper operating or maintenance will result in unsatisfactory performance and a possible failure.
The manufacturer accepts no liability for any injury or damage to the product resulting from:
- Incorrect assembly or connection, including excess voltage
- Incorrect maintenance or use of spare parts other than original spare parts provided by the manufacturer
- Alterations to the product without express permission from the manufacturer
- Use for purposes other than those described in this manual
Dometic reserves the right to change product appearance and product
specifications.
Technical description
The minibar has a drawer with room for 12 cans (plus snacks bars).
On delivery the provided shelves and compartments are positioned so that the device can be operated in an energy-efficient manner.
The minibar DM20D comes with a anthracite panel and pull handle.
The minibar DM20F is delivered without panel and is prepared for fitting the hotel’s own door decor.
Its cooling system is a non-wearing Peltier cooling system.
A lock is optionally available.
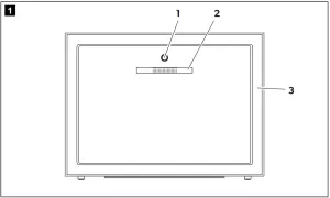
Description of the device
Front side
| No. in fig.1, page 3 | Description |
| 1 | Lock (optional) |
| 2 | Handle (DM20D only) |
| 3 | Door panel (DM20D only) |

Rear side
| No. in fig.2, page 3 | Description |
| 1 | Drip tray |
| 2 | Mains adapter |

Control panel (inside the device
No. in fig.3, page 4 | Description |
1 | Lamp |
2 | Error LED |
3 | Status LED |
4 | Setting button |

Main drawer
No. in fig.4, page 4 | Description |
1 | Divider |
| 2 | Bottle finger |

Installation
CAUTION! Health hazard
To avoid a hazard due to instability of the device, it must be fixed in accordance with the instructions.
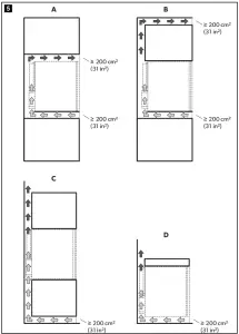
- Notes on mounting into furniture
You can mount the minibar in four ways into furniture. Choose your favored alternative (fig.5, page 5).
Observe the following:- The cut-out dimensions H x W x D are:
- DM20D: 385 x 404 x 428 mm (15.2 x 15.9 x 16.9 in.)
- DM20F: 385 x 404 x 426+d mm (15.2 x 15.9 x 16.8 +d in.) d is the thickness of the hotel‘s own decor
- The clearance between the minibar‘s back and the furniture wall should be approx. 10 mm (0.39 in.).
- The ventilation openings for the chosen alternative have to be produced (fig.5, page 5).
- Air passing through the inlet air duct must not be heated by any heat sources (heaters, direct sunlight, gas ovens etc.).
- Fix the refrigerator in place using suitable screws (fig.6 1 and 2, page 6).

- The cut-out dimensions H x W x D are:
- Connecting the minibar electrically
- Plug the AC connection cable into the AC voltage socket and connect it to the
AC mains supply.- The status LED lights up.
- The minibar starts cooling the interior.
- Plug the AC connection cable into the AC voltage socket and connect it to the
- Mounting hotel’s own door decor (DM20F only)
- The hotel’s own door decor has to comply with the following requirements:
- Maximum weight: 2 kg (4.4 lb.)
- Maximum thickness: 14 mm (0.55 in.)
- Fasten the decor with four screws.
- The hotel’s own door decor has to comply with the following requirements:
- Mounting the lock (lock version only)
- Drill a hole with a diameter of 35 mm (1.4 in.) into the decor.
- Mount the lock together with the lock decor.
- Mounting the lock (no lock version only)
Disassembling the drawer (fig.7, page 7)
- Open the drawer completely.
- Press the rail lock (A 1).
- Pull the drawer out of the cabinet.
- Remove the gasket (B 1).
- Remove the lock cover (B 2).
- Remove the plugs (C 1) from the screws of the door handle (C 3).
- Unscrew the screws (C 2) of the door handle (C 3).
- Remove the door handle (C 3).
Drilling the holes (fig.8, page 7)
- Drill a hole with a diameter of 25 mm (0.98 in.) through the decor and the door (A 1).
- Unscrew the screws (B 1) of the decor frame (B 2).
- Remove the decor frame (B 2).
Assembling the lock (fig.9, page 8)
- Put the new lock cover (A 1) into place.
- Put the decor (B 1) into the decor frame (B 3).
- Screw the decor frame (B 3) onto the door (B 2).
- Install the door lock (C 1).
- Install the lock catch in the cabinet (D 1).
Assembling the drawer (fig.10, page 8)
- Push the gasket (1) on the decor frame (2).
- Screw the door handle (4) onto the door.
- Push the plugs (3) on the screws of the door handle (4).
- Push the drawer into the cabinet.

Operation
NOTICE! Damage hazard
The lamp can only be replaced by the manufacturer, a service agent or similarly qualified person to avoid hazard.
- Saving energy
- Only open the minibar as often and for as long as necessary.
- Avoid unnecessarily low temperature settings.
- For optimal energy consumption, position the shelves and drawers according to their position on delivery.
- On a regularly basis, make sure the door seal still fits properly.
- Clean dust and dirt from the condenser at regular intervals.
- Using the minibar
The minibar starts cooling when connected to power. During normal operation the Status LED is glowing. If an error occurs the Error LED is blinking (see chapter “Troubleshooting”). - Setting the temperature
To avoid food waste, note the following:- Keep temperature fluctuation as low as possible. Only open the minibar as often and for as long as necessary. Store the foodstuff in such a way that the air can still circulate well.
- The minibar is equipped with an automatic temperature regulation function.
Select the average of the possible temperature values. - Adjust the temperature to the quantity and type of the foodstuff.
The minibar is set by default to a cooling temperature of 7 °C (47 °F) at an ambient temperature of 25 °C (77 °F).
You can use the setting button (fig.3 4, page 4) to set the cooling temperature to one of three values: 5 °C, 12 °C and 7 °C (41 °F, 54 °F and 45 °F).
Thereby the temperature will be changed in the order 5 °C … 12 °C … 7 °C … 5 °C (41 °F … 54 °F … 45 °F … 41 °F) etc.
- Keep temperature fluctuation as low as possible. Only open the minibar as often and for as long as necessary. Store the foodstuff in such a way that the air can still circulate well.
- Press the setting button (fig.3 4, page 4) and keep it pressed for 5 s, until the lamp (fig.3 1, page 4) starts to blink.
- Press immediately the setting button (fig.3 4, page 4) again.
- The lamp (fig.3 1, page 4) indicates the setting temperature:
- 5 °C (41 °F): the lamp flashes five times in three intervals
- 12 °C (54 °F): the lamp flashes once in three intervals
- 7 °C ( 45 °F): the lamp flashes three times in three intervals
- The lamp (fig.3 1, page 4) indicates the setting temperature:
NOTE
The minibar sets the cooling temperature automatically to 7 °C (47 °F), when it is connected to a power source.
Troubleshooting
Fault | Possible cause | Suggested remedy |
| Device does not function, Status LED does not glow | No voltage present in the AC voltage socket. | Try using another plug socket |
| The mains adapter is defective | Contact service agent. | |
| The device does not cool (plug is inserted, Status LED glows). | The cooling element is defective. | Contact service agent |
| The Error LED flashes once per second. | Temperature sensor is defective. | Contact service agent. |
| Device does not cool sufficiently, Status LED glows, Error LED does not glow. | The cooling element is defective. | Contact service agent. |
| Poor ventilation | Check the ventilation. Clean the filter underneath the device |
Cleaning and maintenance
WARNING! Electrocution hazard
Always disconnect the minibar from the mains before you clean and service it.
NOTICE! Damage hazard
- Do not use abrasive cleaning agents or hard objects during cleaning as these can damage the minibar.
- Never use hard or sharp tools to remove ice or to free objects frozen onto the minibar.
- Do not use any mechanical tools or any other tools to speed up the defrosting process.
- Clean the minibar regularly and as soon as it becomes dirty with a damp cloth.
- Make sure that no water drips into the seals. This can damage the electronics.
- Wipe the minibar dry with a cloth after cleaning.
- Check the condensate drain regularly.
Clean the condensate drain when necessary. If it is blocked, the condensate collects on the bottom of the minibar. - Occasionally clean the inlet filter.
- If you find water in the drip tray (fig.2 1, page 3) check whether the drainage system is blocked.
NOTICE! Damage hazard
The lamp can only be replaced by the manufacturer, a service agent or similarly qualified person to avoid hazard.
Warranty
Refer to the sections below for information about warranty and warranty support in the US, Canada, and all other regions.
United States and Canada
LIMITED WARRANTY AVAILABLE AT DOMETIC.COM/WARRANTY.
IF YOU HAVE QUESTIONS, OR TO OBTAIN A COPY OF THE LIMITED WARRANTY
FREE OF CHARGE, CONTACT:
DOMETIC CORPORATION CUSTOMER SUPPORT CENTER 2320 INDUSTRIAL PARKWAY
ELKHART, INDIANA 46516 1-800-544-4881 [email protected]
All Other Regions
The statutory warranty period applies. If the product is defective, please contact the manufacturer’s branch in your region (dometic.com/dealer) or your retailer.
For repair and warranty processing, please include the following documents when you send in the device:
- A copy of the receipt with purchasing date
- A reason for the claim or description of the fault
Disposal
- Place the packaging material in the appropriate recycling waste bins, wherever possible.
Consult a local recycling center or specialist dealer for details about how to dispose of the product in accordance with the applicable disposal regulations.
Technical data
For the current EU declaration of conformity for your device please refer to the respective product page on dometic.com or contact the manufacturer directly (see dometic.com/dealer).
The refrigerant circuit contains R600a.
| DM 20D | DM 2OF | |
| Voltage: | 100-120W.- , 50/60 Hz | |
| Cooling capacity: | max. 20 °C (68 °F) below ambient temperature adjustable in three steps: +5 °C, +7 °C, +12 °C (41 °F, 45 °F, 54 °F) | |
| Category: | Cellar | |
| Total volume: | 201(21.1 US liq.qt.) | |
| Energy efficiency class: | G | |
| Climatic class: | N | |
| Intended ambient temperature use: | +16 °C to +32 °C (+61 °F to +90°F) | |
| Noise emission: | 0 dB(A) | |
| Refrigerant quantity: | 24 g (0.85 oz.) | |
| Dimensions main drawer WxDx H: | 285 x 228.5 x 112 mm (11.2 x 9 x4.4 in.) | |
| Dimensions H xWxD (see also fig. m, page 9): | 365 x 384 x428 mm (14.4 x 15.1 x 16.9 in.) | 365 x 384 x 398 mm (14.4 x 15.1 x 15.7 in.) |
| Weight: | 12.3 kg (27.1 lb.) | |
Follow EPA use conditions.






















