
REFRIGERATION
DESIGN
DM50NTE
Drawer Minibar
Installation and Operating Manual
© 2021 Dometic Group. The visual appearance of the contents of this manual is protected by copyright and design law. The underlying technical design and the products contained herein may be protected by design, patent, or be patent pending. The trademarks mentioned in this manual belong to Dometic Sweden AB.
All rights are reserved.
DM50NTE
![]() | ![]() |
![]() | ![]() |
![]() | |





Explanation of symbols
Please read these instructions carefully and follow all instructions, guidelines, and warnings included in this product manual in order to ensure that you install, use, and maintain the product properly at all times. These instructions MUST stay with this product. By using the product, you hereby confirm that you have read all instructions, guidelines, and warnings carefully and that you understand and agree to abide by the terms and conditions as set forth herein. You agree to use this product only for the intended purpose and application and in accordance with the instructions, guidelines, and warnings as set forth in this product manual as well as in accordance with all applicable laws and regulations. A failure to read and follow the instructions and warnings set forth herein may result in an injury to yourself and others, damage to your product, or damage to other property in the vicinity. This product manual, including the instructions, guidelines, warnings, and related documentation, may be subject to changes and updates. For up-to-date product information, please visit documents.dometic.com.
Explanation of symbols
WARNING!
Safety instruction: Indicates a hazardous situation that, if not avoided, could result in death or serious injury.
CAUTION!
Safety instruction: Indicates a hazardous situation that, if not avoided, could result in minor or moderate injury.
Safety instructions
NOTICE!
Indicates a situation that, if not avoided, can result in property damage.
NOTE
Supplementary information for operating the product.
Safety instructions
General safety
WARNING! Failure to obey these warnings could result in death or serious injury.
Electrocution hazard
- Ensure that the minibar has been installed by a qualified technician in accordance with the Dometic installation
- Do not operate the minibar if it is visibly
- If this minibar’s power cable is damaged, it must be replaced by the manufacturer, service agent or a similarly qualified person in order to prevent safety
- This minibar may only be repaired by qualified personnel. Inadequate repairs may cause serious hazards.
- When positioning the minibar, ensure the supply cord is not trapped or
- Do not locate multiple portable socket-outlets or portable power supplies at the rear of the
Fire hazard
- The refrigerant in the refrigerant circuit is highly In the event of any damage to the refrigerant circuit:
– Switch off the
– Avoid naked flames and
– Air the room
- Keep ventilation openings, in the minibar enclosure or in the built-in structure, clear of
- Do not use mechanical devices or other means to accelerate the defrosting process, other than those recommended by the
- Do not open the refrigerant circuit under any circumstances
- Do not use electrical devices inside the minibar unless they are recommended by the manufacturer for that purpose.
Explosion hazard
- Do not store any explosive substances, such as spray cans with propellants, in the minibar.
Health hazard
- This minibar can be used by children aged 8 years and above and persons with reduced physical, sensory or mental capabilities or lack of experience and knowledge if they have been given supervision or instruction concerning the use of the minibar in a safe way and understand the hazards
- Children shall not play with the
- Cleaning and user maintenance shall not be made by children without
- Children aged from 3 to 8 years are allowed to load and unload the
CAUTION! Failure to obey these cautions could result in minor or moderate injury.
Risk of crushing
- Do not put your fingers into the
Health hazard
- Foodstuff may only be stored in its original packaging or in suitable
NOTICE! Damage hazard
- Check that the voltage specification on the type plate is the same as that of the power
- The minibar is not suitable for storing substances that are caustic or contain
- The insulation of the cooling device contains flammable cyclopentane and requires special disposal Deliver the cooling device at the end of its life-cycle to an appropriate recycling center.
- Keep the drainage outlet clean at all
- Only carry the minibar upright.
Operating the minibar safely
DANGER! Failure to obey these warnings will result in death or serious injury.
Electrocution hazard
- Do not touch exposed cables with your bare
CAUTION! Failure to obey these cautions could result in minor or moderate injury.
Electrocution hazard
- Before starting the minibar, ensure that the power supply line and the plug are
Health hazard
- Make sure that you only put items in the minibar which may be chilled at the selected temperature.
- Food may only be stored in its original packaging or in suitable
- Opening the door for long periods can cause a significant increase in the temperature in the compartments of the minibar.
- Clean regularly surfaces that can come in contact with food and accessible drainage
- if the minibar is left empty for long periods:
– Switch off the
– Defrost the
– Clean and dry the
– Leave the door open to prevent mold from developing within the
NOTICE! Damage hazard
- Do not place it near naked flames or other heat sources (heaters, direct sunlight, gas ovens).
- Never immerse the minibar in water.
- Protect the minibar and the cable against heat and moisture.
- Make sure that foodstuffs do not touch the walls of the cooling
Scope of delivery
The following main alternatives are obtainable:
- Minibar DM50NTE D with door panel, without lock
- Minibar DM50NTE D with door panel, with lock
- Minibar DM50NTE F without door panel, without lock
- Minibar DM50NTE F without door panel, with lock
| Quantity | Description | |
| 1 | Minibar | |
| 1 | Cable for 230 Vw connection | |
| 4 | Screw ø4 x 45 mm (Installation) | |
| 4 | Plug (Installation) | |
| 1 | Handle | DM50NTE D only |
| 2 | Plug (Handle installation) | DM50NTE D only |
| 1 | Inlet filter | |
| 6 | Screw ø3 x 12 mm (Filter installation) | |
| 2 | Plug (Wooden panel) | DM50NTE F wooden version only |
| 1 | Lock decor (Wooden panel) | DM50NTE F wooden version with a lock only |
| 2 | Key | Lock version only |
| 1 | Installation and Operating manual |
Intended use
The refrigeration appliance (also referred to as a minibar) is intended to be used in household and similar applications such as:
- Staff kitchens in stores, offices, and other work areas
- Farmhouses
- By clients in hotels, motels, and other residential type environments
- Bed and breakfast type environments
- Catering and similar non-retail applications
Technical description
The minibar is not suitable for installation in caravans or mobile homes.
The minibar is intended for installation in a piece of cabinetry or an installation niche.
The minibar is designed exclusively for cooling and storing beverages and foods in closed containers.
The minibar is not suitable for storing fresh foods and medicine or freezing foodstuffs.
This minibar is only suitable for the intended purpose and application in accordance with these instructions.
This manual provides information that is necessary for the proper installation and/or operation of the minibar. Poor installation and/or improper operating or maintenance will result in unsatisfactory performance and a possible failure.
The manufacturer accepts no liability for any injury or damage to the product resulting from:
- Incorrect assembly or connection, including excess voltage
- Incorrect maintenance or use of spare parts other than original spare parts provided by the manufacturer
- Alterations to the product without express permission from the manufacturer
- Use for purposes other than those described in this manual
Dometic reserves the right to change product appearance and product specifications.
Technical description
The minibar has a main drawer for bottles and cans as well as a mini drawer for miniatures and snacks. The main drawer has room for 33 bottles with a maximum height of 28 cm.
The minibar DM 5ONTE D comes with an anthracite panel and pull handle.
The minibar DM 5ONTE F is delivered without a panel and is prepared for fitting the hotel’s own door decor.
A lock is optionally available.
Description of the device
Front panel
| No in fig. 1, page 3 | Description |
| 1 | Lock (optional) |
| 2 | Handle (DM50NTE D only) |
| 3 | Door panel (DM50NTE D only) |
Rear side
| No in fig. 2, page 3 | Description |
| 1 | Mains adaptor |
| 2 | 12 Vg socket |
| 3 | Drip tray |
| 4 | Heat pipe |
Control panel (inside the device)
| No in fig. 3, page 4 | Description |
| 1 | Lamp |
| 2 | Error LED |
| 3 | Power Status LED |
| 4 | Setting button |
Main drawer
| No in fig. 4, page 4 | Description |
| 1 | Wide divider |
| 2 | Separator |
| 3 | Small divider |
| 4 | Bottle finger |
Mini drawer
| No in fig. 5, page 5 | Description |
| 1 | Rotatable divider |
| 2 | Miniature bottle holder |
Installation
CAUTION! Health hazard
To avoid a hazard due to the instability of the device, it must be fixed in accordance with the instructions.
Notes on mounting into furniture
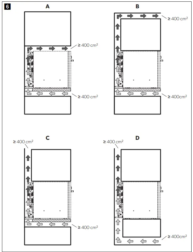
You can mount the minibar in four ways into furniture. Choose your favored alternative according to fig. 6, page 6.
Observe the following:
- The cut-out dimensions W x D x H are:
– DM50NTE D: 570 x 524 x 438 mm
– DM50NTE F: 570 x (504 + d) x 438 mm d is the thickness of the hotel‘s own decor - The clearance between the minibar‘s back and the furniture wall should be approx. 15 mm.
- The ventilation openings for the chosen alternative have to be produced as shown in fig. 6, page 6.
- The air passing through the inlet air duct must not be heated by any heat sources (heaters, direct sunlight, gas ovens, etc.).
Pressing out the ventilation opening
fig. 7, page 7, fig. 8, page 7
- Produce a ventilation opening of 75 x 550 mm in the bottom of the furniture into which you place the minibar.
Measure the distance of 504 mm from the minibar‘s door front excluding any own decor.
Mounting the minibar into a piece of furniture
| No in fig. 9, page 7 | Description |
| 1 | Screw ø4x45mm |
| 2 | Plug |
- Fasten the minibar with the four screws 04 x 45 mm (fig. 9 1, page 7).
- Insert the four plugs (fig. 9 2, page 7) into the
Connecting the minibar electrically
- Plug the 230 V connection cable into the AC voltage socket and connect it to the 230 V AC mains
- The Power Status LED lights
- The lamp lights up and the minibar starts cooling the
Mounting hotel’s own door decor (DM 5ONTE F only)
The hotel’s own door decor has to comply with the following requirements:
- Maximum weight: 4 kg
- Maximum thickness: 18 mm (lock version only)
- Fasten the decor with four screws.
Mounting the lock (lock version only)
- Drill a hole with a diameter of 35 mm into the
- Mount the lock together with the lock
Mounting the lock (no lock version only)
Disassembling the drawer (fig. 10, page 8)
- Open the drawer completely (A).
- Press the rail lock (A 1).
- Pull the drawer out of the cabinet (B).
Only for DMSONTE D:
- Remove the two plugs (C 1) from the screws (C 2) of the door handle (C 3). )0. Unscrew the two screws (C 2) of the door handle.
- Remove the door handle (C 3).
- Remove the gasket.
- Remove the lock cover.
Drilling the holes (fig. 1l, page 8)
- Drill a hole (Al) with a diameter of 23.6 mm through the decor (only DMSONTE D) and the door.
- Unscrew the twelve screws It 1) of the decor frame It 2) (only DMSONTE 0). )
- Remove the decor frame (only DMSONTE D).
Assembling the lock (fig., page 9)
- Put the new lock cover (A 1) into place.
- Put the decor (B 1) into the decor frame.
- Screw (B 2) the decor frame (B 3) onto the Install the door lock (C 1).
- Install the lock catch (D 1) in the cabinet.
Assembling the drawer (fig. in, page 9)
- Push the gasket (1) on the decor frame (2).
- Screw the door handle (4) onto the door.
- Push the plugs (3) on the screws of the door handle (4).
- Push the drawer into the cabinet.
Operation
WARNING! Fire hazard!
- When positioning the device, ensure the supply cord is not trapped or damaged.
- Do not locate multiple portable socket outlets or portable power supplies at the rear of the device.
NOTICE! Damage hazard
The lamp can only be replaced by the manufacturer, a service agent, or a similarly qualified person to avoid hazards.
Saving energy
- Only open the minibar as often and for as long as necessary.
- Avoid unnecessarily low temperature
- For optimal energy consumption, position the shelves and drawers according to their position on delivery.
- On a regular basis, make sure the door seal still fits
- Clean dust and dirt from the condenser at regular
Using the minibar
The minibar starts cooling when connected to power. During normal operation, the Power Status LED is glowing. If an error occurs the Error LED is blinking (see chapter “Troubleshooting” on page 22).
Using the temperature setting function
To avoid food waste, note the following:
- Keep temperature fluctuation as low as possible. Only open the minibar as often and for as long as Store the foodstuff in such a way that the air can still circulate well.
- The minibar is equipped with an automatic temperature regulation Select the average of the possible temperature values.
- Adjust the temperature to the quantity and type of the foodstuff.
The minibar is set by default to a cooling temperature of 7 °C at an ambient temperature of 25 °C.
You can use the setting button (fig. 3 4, page 4) to set the cooling temperature to one of three values (5 °C, 12 °C, and 7 °C).
Thereby the temperature will be changed in the order 5 °C … 12 °C … 7 °C … 5 °C etc.
- Press the setting button (fig. 3 4, page 4) and keep it pressed for 5 s until the internal lamp (fig. 3 1, page 4) starts to blink.
- Press immediately the setting button (fig. 3 4, page 4) again.
- The internal lamp (fig. 3 1, page 4) indicates the setting temperature:
– 5 °C: the lamp flashes five times in three intervals
– 12 °C: the lamp flashes once in three intervals
– 7 °C: the lamp flashes three times in three intervals
NOTE
The minibar sets the cooling temperature automatically to 7 °C when it is connected to a power source.
Troubleshooting
| Fault | Possible cause | Suggested remedy |
| The device does not function, Power Status LED does not glow. | No voltage is present in the AC voltage socket. | Try using another plug socket. |
| The mains adapter is defective. | This can only be repaired by an authorized repair center. | |
| The device does not cool (plug is inserted, Power Status LED glows). | The cooling element is defective. | This can only be repaired by an authorized repair center. |
| The Error LED flashes once per second. | The temperature sensor is defective. | This can only be repaired by an authorized repair center. |
| The device does not cool sufficiently, Power Status LED glows, Error LED does not glow. | The cooling element is defective. | This can only be repaired by an authorized repair center. |
| Poor ventilation | Check the ventilation. Clean the filter underneath the device. |
Cleaning and maintenance
NOTICE! Damage hazard
- Never clean the cooling device under running water or in dishwater.
- Do not use abrasive cleaning agents or hard objects during cleaning as these can damage the cooling device.
- Occasionally clean the cooling device interior and exterior with a damp cloth.
- Make sure that the air inlet and outlet vents on the device are free of any dust and dirt, so that heat can be released and the device is not damaged.
- Occasionally clean the inlet filter.
- If you find water in the drip tray (fig. 2 3, page 3) check whether the drainage system is blocked.
Warranty
The statutory warranty period applies. If the product is defective, please contact your retailer or the manufacturer’s branch in your country (see dometic.com/dealer).
For repair and warranty processing, please include the following documents when you send in the product:
- A copy of the receipt with purchasing date
- A reason for the claim or description of the fault
Disposal
- Place the packaging material in the appropriate recycling waste bins, wherever possible.
Consult a local recycling center or specialist dealer for details about how to dispose of the product in accordance with the applicable disposal regulations.
Technical data
| DM50NTE D | DM50NTE F | |
| Voltage: | 100 – 240 View, 50 – 60 Hz | |
| Cooling capacity: | max. 21 °C below ambient temperature (adjustable in three steps: 5 °C, 7 °C, 12 °C) | |
| Category: | 2 (Cellar) | |
| Total volume: | 50 l | |
| Energy efficiency class: | G | |
| Climatic class: | N | |
| Refrigerant quantity: | 28 g (R600a) | |
| Dimensions main drawer W x D x H: | 430 x 330 x 302 mm | |
| Dimensions mini drawer W x D x H: | 159 x 285 x 88 mm | |
| Dimensions W x D x H (see also fig. 7, page 7): | 550 x 524 x 418 mm | 550 x 496 x 418 mm |
| Maximum internal storage load: | 31 kg | |
| Weight: | 23.5 kg | 23.0 kg |
| Inspection/certification: | ||
The cooling unit is hermetically sealed.
Further product information can be accessed via QR code on the energy label in the figures or via April.etc.Europa.eu.






















