
Comfort, Quality & Style Since 1998
Wall Mount Electric Fireplace Item#: 60757



UNIT MUST BE ON A DEDICATED ELECTRICAL CIRCUIT.
PLEASE READ THESE INSTRUCTIONS CAREFULLY BEFORE USING YOUR NEW FIREPLACE.
WARNING FOR YOUR SAFETY
- Improper installation, adjustment, alteration, service or maintenance can cause injury or property damage.
- Read the installation, operation, and maintenance instructions thoroughly before installing or servicing this equipment.
- Failure to follow these instructions could result in fire or explosion, which could cause property damage, personal injury, or death.
CAUTION Risk of Electric Shock — Do not open.
No user – serviceable parts inside.
WARNING
This product can expose you to chemicals including Lead, Chromium (hexavalent compounds), Di(2-ethylhexyl) phthalate (DEHP) and Diisononyl phthalate (DINP), which are known to the State of California to cause cancer and birth defects or other reproductive harm. For more information, go to www.P65Warnings.ca.gov.
ATTACH YOUR RECEIPT HERE
Keep a copy of your proof of purchase or order confirmation which will be needed if you need to contact us about warranty coverage.
Purchase Date: ____________________
Questions, problems, missing parts?
Before returning to your retailer, our exceptional customer service is available.
Call toll-free (866) 985-7877 9 a.m. 9 p.m., EST
Email [email protected]
Live chat www.wtliving.com 9 a.m. – 4 p.m., EST, Monday – Friday
1203019
BEFORE YOU BEGIN
Please read and understand this entire manual before attempting to assemble, operate or install this appliance. If you have any questions regarding the product, please call us toll-free at (866) 985-7877 9 a.m. 9 p.m., EST, email us at [email protected], or go online and live chat at www.wtliving.com. English & Spanish speaking.
This manual contains important information about the assembly, operation and maintenance of this appliance. General safety information is presented in the first few pages and is also located throughout this manual. Keep this manual for future reference and to educate new users of this appliance.
2
SAFETY
SAFETY
- Children of less than 8 years old should be kept away unless continually supervised.
- Children aged less than 8 years old shall only switch on/off the appliance provided that is has been placed or installed in its intended normal operating position and they have been given supervision or instruction concerning use of the appliance in a safe way and understand the hazards involved. Children aged under 8 years old shall not plug in, regulate and clean the appliance or perform user maintenance.
- CAUTION: Some parts of this product can become very hot and cause burns. Particular attention must be given where children and vulnerable people are present.
- Children shall not play with appliance. Cleaning and user maintenance shall not be done by children.
- When the power cord is damaged, it must be replaced by authorized agent or other trained professional to avoid danger.
- DO NOT position immediately above or below an electrical socket.
- WARNING: This fireplace is not equipped with a device to control the room temperature. Do not use this fireplace in small rooms when they are occupied by persons not capable of leaving the room on their own, unless constant supervision is provided.
WARNING
To Reduce the Risk of Fire
- Do not place any objects such as furniture, papers, clothes and curtains within 3 ft. / .91 m to the front of the fireplace and keep them away from the sides and rear when the fireplace is plugged in.
- Do not place the fireplace near a bed because objects such as pillows or blankets can fall off the bed and be ignited by the fireplace.
- Always unplug the fireplace if it is not being used.
- Avoid using an extension cord because the extension cord may overheat and cause a risk of fire. However, if you must use an extension cord, the cord should be N014 AWG minimum size and rated not less than 1875 watts.
NOTICE
This electric fireplace meets the construction and safety standards of H.U.D. for application in manufactured homes when installed according to these instructions.
CAUTION Risk of Fire
Keep combustible materials such as furniture, papers, clothes and curtains at least .91 m / 3 ft from the front of the fireplace, and away from the sides and rear. Attach base before using.
CAUTION Risk of Electric Shock — Do not open.
No user-serviceable parts inside.
WARNING
This electric fireplace is tested and listed for use only with the optional accessories listed in these instructions. Use of accessories not specifically tested for this electric fireplace could void the heater warranty and/or result in a safety hazard.
LISITING APPROVALS
This heater has been tested in accordance with the CSA Standards.
| Model Number | Length | Height | Depth |
| 60757 | 30.55” | 19.13” | 5.67” |
| Description | Wall Mount Electric Fireplace | ||
| Voltage | 120V AC, 60Hz | ||
| Watts: | Max 1400W | ||
| Amps: | 15Amp grounded circuit | ||
3
IMPORTANT SAFETY INSTRUCTIONS
When using electrical appliances, to reduce the risk of fire, electric shock and injury to persons, always follow basic precautions, including the following:
- Read all instructions before use.
- This heater is hot when in use. To avoid burns, do not let bare skin touch hot surfaces. If provided, use handle when moving this heater.
- Keep combustible materials such as furniture, pillows, bedding, papers, clothes, and curtains 3 ft / .91 m or further away from the front, sides, and back of heater.
- Extreme caution is necessary when any heater is used by or near children or invalids and whenever the heater is in operation it must not be left unattended.
- Always unplug the heater when not in use.
- Do not operate any heater with damaged cord or plug or after the heater has malfunctioned or has been dropped or damaged in any manner. Return heater to an authorized service facility for repair.
- Do not use outdoors.
- This heater is not intended for use in bathrooms, laundry areas and similar indoor locations where water may be present. Never locate heater where it may fall into a bath tub or other water container.
- Do not run cord under carpeting. Do not cover cord with throw rugs, runners or the like. Arrange cord away from traffic areas and where it will not be tripped over.
- To disconnect heater, turn control to off, then remove plug from outlet.
- Connect to properly grounded outlet only.
- Do not insert or allow foreign objects to enter any ventilation or exhaust opening as this may cause an electric shock or fire, or damage the heater.
- To prevent a possible fire, do not block air intake or exhaust in any manner.
- Do not use on soft surfaces, like a bed, where openings may become blocked.
- A heater has hot and arcing or sparking parts inside. Do not use it in areas where gasoline, paint or flammable liquids are used or stored.
- Use this heater only as described in manual. Any other use not recommended by the manufacturer may cause fire, electric shock, or injury to persons.
- Avoid the use of an extension cord because the extension cord may overheat and there is a risk of fire.
- Do not strike the heater glass.
- Always use properly grounded outlets; it may break fused and polarized outlets.
- Always disconnect power before performing any cleaning or maintenance, or relocating the heater.
- When transporting or storing the heater, keep in a dry place, free from excessive vibration and store so as to avoid damage.
- The flame effect is powered by a motor and it is normal for the motor to make some noise as it slowly rotates and helps to create the beautiful 3D flame effect. Some rooms have more or less furnishings than others resulting in varying noise amplification.
- While every effort is made to ensure packing materials are kept outside of the plastic bag which covers your heater in the box, there is some chance that packing material may lodge itself in the heater part of the unit. If you notice this on inspection, please remove it.
- When turning your heater on for the first time it is normal for the heater to emit a mild ‘new heater’ smell which quickly passes.
- You may notice some light coming from under or from the sides of the unit. This is normal and the holes allow the unit to ‘breathe’. Do not attempt to block these holes.
- This heater is to be used on a 110 / 120 V, 11.2 A MP, grounded circuit. Do not use in an outlet controlled by a switch or dimmer switch. The cord supplied with the heater has a 2 blade plug with a round pin on the plug for grounding purposes. If a 3 slot receptacle/outlet is not available, you must use an adapter which must be properly grounded to the outlet box. Avoid plugging other appliances into the same circuit as heater.
CAUTION
- RISK OF ELECTRIC SHOCK
- DO NOT OPEN THE UNIT
- NO USER-SERVICEABLE PARTS INSIDE
- HIGH TEMPERATURE
- KEEP ELECTRICAL CORDS, DRAPERY AND OTHER FURNISHINGS AT LEAST 3 FEET / .91 METER FROM FRONT OF THE HEATER AND AWAY FROM THE SIDES OF HEATER
WARNING
- RISK OF FIRE – KEEP COMBUSTIBLE MATERIAL AWAY FROM TOP OF HEATER.
- SERVICING SHOULD BE DONE ONLY WHILE THE HEATER IS UNPLUGGED FROM
- POWER SUPPLY.
The flame effect on the wall hanging fireplace is created by LED surface mounted components that are designed to last the life of the product. Do not remove back cover of heater, no user serviceable parts are contained within.
4
PACKAGE CONTENTS

B 

| DESCRIPTION | QUANTITY | |
| A | Fireplace | 1 |
| B | Wall Mount Bracket | 1 |
| C | Remote Control | 1 |
HARDWARE CONTENTS
E ![]()
Mounting Screw
Qty: 4
5
PREPERATION/UNPACKING/QUICK GUIDE
PREPARATION
Carefully unpack the fireplace. Make sure that all items are present, that there are no components left in the box, and that the fireplace is free from packing material. If any parts are missing, please contact Customer Service at (866)-985-7877, 9 a.m. – 9 p.m. EST or email at [email protected]. English & Spanish speaking.
Assembly Tool Required: Phillip head screw driver, power drill, drill bit, and a tape measure. Unit must to be hung on wall stud for security and stability.
INITIAL TESTING
Carefully remove the unit from the box and clear any clinging packing material. Prior to installing the unit, test to make sure the unit operates properly. To do this, plug the unit’s power supply cord into a conveniently located 120 Volt grounded outlet.
QUICK REFERENCE
- Prior to plugging your heater into a power outlet, verify that the circuit breaker for the outlet is on.
- The heater may emit a slight, harmless odor when first used. This odor is normal and it is caused by the initial heating of internal heater parts and will not persist.
- If the heater does not emit heat, consult this manual for further information.
POWER SUPPLY
This insert is for use on 120 Volts. The cord has a plug as shown in A in the “Grounding Methods” diagram at right. An adapter as shown in C is available for connecting three-blade grounding-type plugs to two-slot receptacles. The green grounding plug extending from the adapter must be connected to a permanent ground such as a properly grounded outlet box. Do not use the adapter if a three-slot grounded receptacle is available.
To disconnect heater, turn controls off, then remove plug from outlet.
6
CHANGING ROCK/LOG SET & BULBS
TO CHANGE ROCK/LOG SET
WARNING: MAKE SURE FIREPLACE IS TURNED OFF AND AND UNPLUGGED FROM ELECTRICAL OUTLET BEFORE ATTEMPTING TO CHANGE THE LOG/ROCK SET.
1 Place fireplace on a flat, level surface. Remove 3 screws located on each side of glass face of fireplace. Remove glass face and set aside on a non-abrasive surface.


2 Remove retainer screws that attach the log or rock set to the front of fireplace.

3 Replace with the desired set (log/rock) and reinsert retainer screws, then tighten.

4 Replace glass face on front of fireplace, then reinsert the 6 screws removed in Step 1. Tighten gently but firmly.

TO REPLACE LIGHT BULBS
WARNING: MAKE SURE FIREPLACE IS TURNED OFF AND AND UNPLUGGED FROM ELECTRICAL OUTLET BEFORE ATTEMPTING TO REPLACE LIGHT BULBS. DO NOT EXCEED 40 WATTS PER BULB. USE OF HIGHER-RATED BULBS MAY RESULT IN A FIRE, CAUSING PROPERTY DAMAGE, PERSONAL INJURY, OR LOSS OF LIFE.
This fireplace uses 2 clear 110 Volt, 40 Watt, E-12 socket base light bulbs (small base, chandelier candle-type bulbs). The access plate is located on the bottom of the unit. For convenience, if one bulb burns out, it may be easier to replace both bulbs at the same time.
![]()

Bottom view
- Turn off the power to the unit, and unplug it from the electrical outlet.
- Let the fireplace cool if it has been operating.
- Look for the access plate with the gold printing on the bottom of the unit.
- Remove the 5 screws holding the access plate in position. Lift the access plate so the 3 positioning tabs come free of their slots. You should now see and be able to access the two 40-watt chandelier bulbs.
- Remove and replace one or both bulbs.
- Replace the access plate by re-inserting the positioning tabs in their slots and re-inserting the 5 screws to hold the plate. Tighten firmly but do not over-tighten.
7
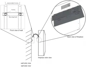
PRODUCT DIMENSIONS






MOUNTING BAR
8
INSTALLATION WARNINGS
WARNING: Due to high temperatures, this electric fireplace should be located out of the flow of traffic in your living space. Keep combustible materials such as furniture, pillows, bedding, papers, clothing and curtains at least 36″ from all sides and above the heater.
WARNING: Never locate this electric fireplace where it may fall into a bathtub or other water container.
CAUTION: Do not expose the electric fireplace to the elements (such as rain, etc.)
WARNING: To prevent contact with sagging or loose insulation, the electric fireplace must not be installed against a vapor barrier or exposed insulation. Overheating could occur and a fire could result.
WARNING: RISK OF FIRE! The power cord must not be pinched or positioned against a sharp edge. Secure cord to avoid tripping or snagging to reduce risk of fire, electric shock or personal injury. Do not run cord under carpeting. Do not cover cord with throw rugs, runners or the like. Arrange cord away from traffic area and where it will not be tripped over.
WARNING: RISK OF FIRE! To prevent a possible fire, do not block air intake or exhaust in any manner. Do not use on soft surfaces where openings may become blocked.
WARNING: RISK OF FIRE! Do not place insulation against the fireplace.
WARNING: This electric fireplace is tested and listed for use only with the approved optional accessories. Use of optional accessories not specifically tested for this electric fireplace will void the heater warranty and can result in a safety hazard.
WARNING: If the information in these instructions is not followed exactly, a fire or explosion may result causing property damage, personal injury or death. Do not store or use gasoline or other flammable vapors in the vicinity of this or any heater.
9
INSTALLATION


ATTENTION:
This fireplace must be mounted on a wall at a height above the floor between 0.5M (1.64 FT) and 2.5 M (8.2 FT).
WARNING:
Heater vents on this electric fireplace cannot be covered or obstructed in any way, as it may create a fire hazard.
ATTENTION:
Due to the many different materials used on different walls, it is highly recommended that you consult your local hardware store to determine what type of mounting screws are needed before you install this fireplace onto the wall.
10
OPERATION/REMOTE FEATURES/CARE AND MAINTENANCE
INITIAL STARTUP
Once the unit has been properly connected to a grounded electrical outlet, it is ready to operate. NOTE: Ensure the house circuit breakers for the power supply are turned on.
MAIN POWER SWITCH
The Main Power Switch is located on the right side of the unit. The diagram at right illustrates the location of the switch. The “I” indicates ON and the “O” indicates OFF. Push the switch to “I” to turn on the unit and the flame effect. the red LED indicator will turn on.
Main Power Switch 
OPERATION LOCATION
- The manual controls are located on the left side of the fireplace. You have the following controls:

OPERATING BY REMOTE CONTROL
- Plug in your electric fireplace.
- Turn the unit’s Main Power ON/OFF switch to the ON position! The remote control will NOT work if the Main Power Switch is at the OFF position.
- When operating the remote control, it must be pointed towards the front of the unit.
- The ON/OFF button at the lower right of the remote is the main ON/OFF power button (Figure 5). Pressing this button activates the power to the unit.
- To activate the heater, press the
button. Press and release this button to cycle through LO, HI, and OFF. - To adjust the flame height and ember bed brightness, press the
and
buttons. To increase the flame height and ember bed brightness, press the
button; to decrease the flame height and ember bed brightness, press the
button. There are five levels of flame effects. - To turn off the fireplace, press the ON/OFF button once. NOTE: This remote control must be within 8 meters or 26 feet of the fireplace to be effective.
CONTROLS
- Power ON/OFF: Power to the unit
- Flame brightness controls: Allows you to adjust the flame to suit your preference. Press to
increase flame brightness and
to decrease flame brightness. You must press the
button several times to see the full flame effect. - Low heat: 700 watts
- High heat: 1400 watts
NOTE: Press the heater touchpad control twice to achieve high heat. - Heater Timer: Allows you to leave your heater on while you sleep with an automatic timer for shut off. You can set your heater to be on for 30 minute increments starting at 1/2 hour up to a maximum of 7 1/2 hours. Press once for each 1/2 hour increment. After you reach 7 1/2 hours, the next press will shut off the feature.

NOTE: Make sure you have installed fully-charged batteries in your remote control.
CARE AND MAINTENANCE
- Before using, wipe with a clean, soft, dry cloth.
- Avoid rubbing or scratching the surface with rough or abrasive objects.
- Turn heater OFF and unplug from outlet. Use a vacuum or duster to keep heat and vent area clean from dust and dirt. The exterior should be cleaned with a damp cloth or duster.
- Do not use abrasive cleaners, liquid sprays, or any other cleaner that may scratch the surface.
11
TROUBLESHOOTING
TEMPERATURE LIMITING CONTROL
This heater is equipped with a Temperature Limiting Control. Should the heater reach an unsafe temperature (115°C/239°F) the heater will automatically turn off. To reset: Unplug unit from wall, wait for 5 minutes, plug back in and continue to use.
TROUBLESHOOTING
| Symptom | Possible Causes | Corrective Action |
| Fireplace doesn’t work | Fireplace inner components are overheating or the home circuit breaker has tripped. | Reset switch: turn master switch off, wait 5 minutes, then turn back on. |
| Flame is not moving | Wiring may be loose or the flame motor may be defective. | Call customer service for assistance. |
| Dim or poorly visible flame, or glass pebbles aren’t glowing | LED lights are burnt out or the wiring is loose. | Call customer service for assistance. |
| Flame sputters | Flame motor is defective. | Call customer service for assistance. |
| Remote control does not work | • Low battery • Master switch is in “OFF” position | Change the battery for remote control. Check to make sure the master switch is turned on. |
| Circuit breaker trips or fuse blows when the unit is on | Improper circuit current rating. | Call customer service for instructions. |
| Heater does not provide heat when turned on | Thermal switch has been tripped. Circuit breaker has been tripped. | • Turn the unit off and unplug the unit for 5 minutes. Plug back in and turn on the unit. •Turn off circuit breaker that supplies electricity to the unit, wait 5 minutes, then flip circuit breaker back on. |
| Appliance turns off and will not turn on | • Appliance has overheated and its safety device has caused the thermal switch to disconnect. • House circuit breaker has tripped. | • Unplug the appliance, allow to cool for 15 minutes, then plug back in. •Reset the house circuit breaker. |
12
LIMITED WARRANTY
Customers in the Contiguous US
This product is warranted for a period of 1 year from original purchase date against defects in materials and workmanship under normal use. This warranty does NOT cover normal wear/weathering, exposure to water, freezing temperatures, oils, fluids, or chemicals, OR use in a commercial application if model is not designated as a commercial model. At Well Traveled Living’s sole discretion, products under warranty will be repaired and/or replaced at no charge to the customer. Returns sent back to Well Traveled Living must be sent via prepaid freight in the original retail packaging.
For warranty service, contact Well Traveled Living at the address, phone numbers or website and email listed in this owner’s manual. Be sure to have your sales receipt, date of purchase and catalogue/model numbers available when calling. All warranty service will be coordinated by Well Traveled Living’s, Amelia Island, Florida service center. This warranty is extended only to the original owner. Proof of purchase will be required before warranty service is rendered. The sales receipt is the only valid proof of purchase. This warranty only covers failures due to defects in materials or workmanship which occur during normal use. Failures and/or damage which result from accident, negligence, misuse, abuse, neglect, mishandling, alteration or modification, failure to maintain, improper assembly or maintenance, service by unauthorized agency or use of unauthorized components or damage that is attributable to acts of God are NOT covered.
This limited warranty gives you specific legal rights and you may also have other rights which vary from jurisdiction to jurisdiction. The provisions of the United Nations Convention on Contracts for the Sales of Goods shall not apply to this limited warranty or the sale of products covered by this limited warranty.
- THERE ARE NO EXPRESS WARRANTIES EXCEPT AS LISTED
- PURCHASER ASSUMES ALL RISKS IN THE ASSEMBLY AND OPERATION OF THIS UNIT
- FAILURE TO FOLLOW WARNINGS AND OPERATION AL INSTRUCTIONS CONTAINED IN THIS MANUAL CAN RESULT IN SEVERE PROPERTY DAMAGE AND/OR PERSONAL INJURY
- IN NO EVENT WILL WELL TRAVELED LIVING, OR ITS DIRECTORS, OFFICERS OR AGENTS BE LIABLE TO THE PURCHASER OR ANY THIRD PARTY, WHETHER IN CONTRACT, IN TORT, OR ON ANY OTHER BASIS, FOR ANY INDIRECT, SPECIAL, PUNITIVE, EXEMPLARY, CONSEQUENTIAL, OR IN CIDEN TAL LOSS, COST, OR DAMAGE ARISING OUT OF OR IN CONNECTION WITH THE SALE, MAINTENANCE, USE, OR IN ABILITY TO USE THE PRODUCT, EVEN IF WELL TRAVELED LIVING OR ITS DIRECTORS, OFFICERS OR AGENTS HAVE BEEN ADVISED OF THE POSSIBILITY OF SUCH LOSSES, COSTS OR DAMAGES, OR IF SUCH LOSSES, COSTS, OR DAMAGES ARE FORESEEABLE. IN NO EVENT WILL WELL TRAVELED LIVING, OR ITS OFFICERS, DIRECTORS, OR AGENTS BE LIABLE FOR ANY DIRECT LOSSES, COSTS OR DAMAGES THAT EXCEED THE PURCHASE PRICE OF THE PRODUCT.
- SOME JURISDICTIONS DO NOT ALLOW THE EXCLUSION OR LIMITATION OF INCIDENTAL OR CON SEQUEN TIAL DAMAGES, SO THE ABOVE LIMITATION OR EXCLUSION MAY NOT APPLY TO THE PURCHASER.
EXTEND YOUR WARRANTY
When you purchase a Fire Sense or Balkene Home product, you have the peace of mind in knowing that it comes with a one-year warranty. Extend your warranty for an additional year when you write a review of your purchase on www.wtliving.com within 365 days of purchase.
Important Notice
Do NOT return to place of purchase – for customer service and warranty issues contact our Customer Service Center at (866) 985-7877 or [email protected], or go online and live chat at wtliving.com.
Help desk hours are: 9 a.m. 9 p.m., EST.
Distributed by:
Well Traveled Living
716 S 8th Street, Amelia Island, FL 32034
wtliving.com | [email protected]
(866) 985-7877
Fire Sense®, Patio Sense,® Balkene Home,® Mojave Sun®, Vulcan®, and Well Traveled Living® are registered trademarks of Well Traveled Imports, Inc®. All assembly instruction presentations are the property of Well Traveled Imports, Inc.® and are protected by U.S. copyrights and trademarks. All rights reserved.
ATTACH YOUR RECEIPT HERE




















