Beef Eater Signature Alfresco Kitchen Installation Guide
CONGRATULATIONS
Dear Customer,
Congratulations and thank you for choosing our Outdoor Kitchen.
We are sure you will find it a pleasure to use. Before you use the Outdoor Kitchen, we recommend that you read through all sections of this instruction manual which provide the assembly instructions and other relevant care and use information description
To avoid the risks it is important that the Outdoor Kitchen and BBQs are both installed correctly and that you read the safety instructions carefully of this Kitchen and the BBQ to be installed to avoid misuse and hazards.
We recommend that you keep this instruction booklet for future reference and pass it on to any future owners.
After unpacking the Outdoor Kitchen, please check it is not damaged. If in doubt, do not assemble the kitchen but contact your local customer care centre.
PLEASE NOTE
- This kitchen and installed BBQ is intended for personal, domestic or household use only, not commercial use.
- This kitchen is suitable for installation with the following BeefEater BBQs: 1500 series, 2000 series, 3000 series, 7000 series and 8000 series. BeefEater cannot guarantee the performance or safety of this kitchen if installed with any other BBQs.
The following hanging bracket kit MUST be installed on the BBQ to support it and ensure safety of the BBQ and kitchen cupboards:
| BBQ series | Kit number |
| 1500 | BA70HS |
| 2000 | BA35HS |
| 3000 | BA45HS |
| 7000 | BA35HS |
| 8000 | BA35HS |
Anything behind the rear of the BBQ within 450mm shall be made entirely of non-combustible material, OR;
The following rear heat shield kit MUST be installed on the BBQ AND anything behind the BBQ shall be protected by 6mm thick fibre cement sheet for the full width of the BBQ and from the base of the BBQ recess upwards for a distance of 1.2m.
| BBQ series | Kit number |
| 1500 | BA10RHS |
| 2000 | BA10RHS |
| 3000 | BA10RHS |
| 7000 | BA10RHS |
| 8000 | BA10RHS |
Where fibre cement sheet is used to protect anything behind the BBQ (e.g. a rear wall), any surface treatment between the BBQ and the protective fibre cement sheet
Please read the user manual carefully and store in a handy place for later reference.
The symbols you will see in this booklet have these meanings:
WARNING This symbol indicates information concerning your personal safety.
CAUTION This symbol indicates information on how to avoid damaging the appliance.
IMPORTANT TIPS & INFORMATION This symbol indicates tips and information about use of the appliance.
ENVIRONMENT This symbol indicates tips and information about economical and ecological use of the appliance.
must be able to withstand high temperatures (e.g. stainless steel or ceramic tiles with ceramic adhesive and ceramic grout). Surface treatments such as paints and coloured glass splashbacks should be checked for their ability to withstand high temperatures in addition to being noncombustible.
- This kitchen must be installed in an undercover location that meets the ventilation requirements of an Outdoor Area according to gas installatio standard AS/NZS 5601.
- This product may be installed with a 9kg LPG cylinder in the designated cupboard to the right side of the BBQ unit only, adhere to the warning stickers located in the kitchen cupboards accordingly.
- This BBQ is supplied setup for universal LPG, however NG conversion kit is available fromBeefEater, conversion must be completed following the instructions supplied with the BBQ by a suitably qualified person.
- This kitchen must be installed and maintained as per the instructions.
IMPORTANT SAFETY INSTRUCTIONS
MPORTANT INFORMATION THAT MAY IMPACT YOUR MANUFACTURER’S WARRANTY
Adherence to the directions for use in this manual is extremely important for health and safety. Failure to strictly adhere to the requirements in this manual may result in personal injury, property damage and affect your ability to make a claim under the BeefEater manufacturer’s warranty provided with your product. Products must be used, installed and operated in accordance with this manual. You may not be able to claim on the BeefEater manufacturer’s warranty in the event that your product fault is due to failure to adhere this manual.
Please read the user manual carefully and store in a handy place for later reference.
IMPORTANT
Important – check for any damages or marks
If you find the kitchen is damaged, you must report it within 7 days if you wish to claim for damage under the manufacturer’s warranty. This does not affect your statutory rights.
ENVIRONMENT
Information on disposal for users
- Most of the packing materials are recyclable. Please dispose of those materials through your local recycling depot or by placing them in appropriate collection containers
- If you wish to discard this kitchen, please contact your local authorities and ask for the correct method of disposal.
WARNING
The BBQ and kitchen must be installed and serviced only by a suitably qualified and licensed person.
Improper installation of the BBQ, adjustment, alteration or maintenance can cause injury or property damage and may affect your ability to claim under the manufacturer’s warranty.
IMPORTANT
- If the BBQ is connected to a reticulated gas supply (LPG or Natural Gas), then the installation shall be undertaken by a competent person in accordance withAS/NZS 5601 and the BBQ’s instructions.
WARNING
If you smell gas:
- Shut off gas to the appliance.
- Extinguish any open flame.
- Open hood and Outdoor Kitchen doors
- If odour continues, immediately call your gas supplieror your fire department.
For your safety :
- Do not store or use gasoline or other flammable vapours or liquids in the vicinity of this or any other appliance.
- An LPG cylinder not connected for use, shall not be stored in the vicinity of, or in any cupboard in this kitchen.
IMPORTANT
Cleaning instructions:
Use warm soapy water with a soft cloth to clean the kitchen. DO NOT use bleach based cleaners, abrasive cleaners or objects with sharp edge (e.g. scraper) to clean the kitchen surfaces as this may cause damage.
MODULAR COMBINATIONS
- BOK40WG (Combination)



- BOK44WG (Combination)



- BOK41WG (Combination)


- BOK53WG (Combination)

- BOK43WG (Combination)



- BOK56WG (Combination)



PRODUCT DESCRIPTION
DOUBLE FRIDGE SINGLE SIDE DOOR CABINET
- BM14FWG
IMPORTANT
Please note: Stone dimensions may vary ±2mm.



CAUTION
ASSEMBLY OF THIS UNIT SHOULD BE CARRIED OUT BY A QUALIFIED TRADESMAN.
| 1 | PART NAME | QTY. |
| 2 | Dowels![]() | x 18 |
| 3 | Cam screws![]() | x 21 |
| 4 | Bench top brackets![]() | x 2 |
| 5 | Bracket screws to side panel (M4 x 12mm, Dome-head)![]() | x 12 |
| 6 | Shelf pins![]() | x 4 |
| 7 | Shims 75 x 35 x 1.5mm![]() | X2 |
| 8 | Shims 75 x 35 x 3.2mm![]() | x 2 |
| 9 | Shims 75 x 35 x 5.0mm![]() | x 2 |
| 10 | Kick board clips![]() | x 2 |
| 11 | Adjustable feet![]() | x 4 |
| 12 | Screws (M4 x 25mm)![]() | x 4 |
| 13 | Hinge mounts![]() | x 2 |
| 14 | Hinges![]() | x 2 |
| 15 | Screws (M4 x 16mm)![]() | x40 |
| 16 | Screws (M4 x 35mm)![]() | x 8 |
| 17 | Cam screw pad![]() | x 6 |
| 18 | Shelf hole cover![]() | X8 |

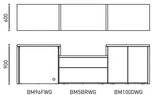
5 BURNER BBQ MODULE WITH DRAWERS
- BM5BRWG

- BM5BRWG



IMPORTANT
Please note: Stone dimensions may vary ±2mm
CAUTION
ASSEMBLY OF THIS UNIT SHOULD BE CARRIED OUT BY A QUALIFIED TRADESMAN
| 1 | PART NAME | QTY. |
| 2 | Waterfall/Counter top screws (M4 x 35mm)![]() | x 8 |
| 3 | Cam screws![]() | x 50 |
| 4 | Dowels![]() | x 16 |
| 5 | Drawer runners![]() | x 2 |
| 6 | Screws (M4 x 16mm)![]() | x 40 |
| 7 | Drawer screws (M4 x 25mm)![]() | x 6 |
| 8 | Adjustable feet![]() | x 5 |
| 9 | Kick board clips![]() | X2 |
| 10 | Cam screw pad![]() | x 6 |
| 11 | Top drawer position jig (1114 x 24mm) | x 1 |
| 12 | Bottom drawer position jig (1114 x 8mm) | x 1 |

SINK MODULE
- BM10SWG




IMPORTANT : Please note: Stone dimensions may vary ±2mm
CAUTION
ASSEMBLY OF THIS UNIT SHOULD BE CARRIED OUT BY A QUALIFIED TRADESMAN
| NO. | PART NAME | QTY. |
| 1 | Metal bracket![]() | x 4 |
| 2 | Panel grills![]() | x2 |
| 3 | Shelf pins![]() | x 4 |
| 4 | Cam screws![]() | x 24 |
| 5 | Dowels![]() | x 1 2 |
| 6 | Screws (M4 x 25mm)![]() | x 4 |
| 7 | Shelf hole cover![]() | x 5 |
| 8 | Adjustable feet![]() | x 5 |
| 9 | Kick board clips![]() | x 2 |
| 10 | Regular hinges![]() | x 4 |
| 11 | Screws (M4 x 35mm)![]() | x 44 |
| 12 | Waterfall/Counter top screws![]() | x 10 |
| 13 | Cam screw pad![]() | x 6 |
| 14 | Sink screws (M5 x 20mm)![]() | x 8 |
NOTES
Warranty
FOR SALES IN AUSTRALIA AND NEW ZEALAND
APPLIANCE: BEEFEATER SIGNATURE BBQ, ALFRESCO KITCHEN
This document sets out the terms and conditions of the product warranties for BeefEater Appliances. It is an important document. Please keep it with your proof of purchase documents in a safe place for future reference should there be a manufacturing defect in your Appliance. This warranty is in addition to other rights you may have under the Australian Consumer Law.
In this warranty:
- ‘ACL’ or ‘Australian Consumer Law’ means Schedule 2 to the Competition and Consumer Act 2010;
- ‘Appliance’ means any Electrolux product purchased by you and accompanied by this document
- ‘ASC’ means Electrolux’s authorised serviced centres;
- ‘BeefEater’ is the brand controlled by Electrolux Home Products Pty Ltd of 163 O’Riordan Street, Mascot NSW 2020, ABN 51 004 762 341 in respect of Appliances purchased in Australia and Electrolux (NZ) Limited (collectively “Electrolux”) of 3-5 Niall Burgess Road, Mount Wellington, in respect of Appliances purchased in New Zealand;
- ‘Warranty Period’ means the period specified in clause 3 of this warranty;
- ‘you’ means the purchaser of the Appliance not having purchased the Appliance for re-sale, and ‘your’ has a corresponding meaning.
Application:
This warranty only applies to new Appliances, purchased and used in Australia or New Zealand and is in addition to (and does no exclude, restrict, or modify in any way) other rights and remedies under a law to which the Appliances or services relate, including any non excludable statutory guarantees in Australia and New Zealand.
Warranty Period:
Subject to these terms and conditions, this warranty continues in Australia for a period of 24 months and in New Zealand for a period of 24 months, following the date of original purchase of the Appliance. Specific components are warranted against manufacturing defects in Australia and New Zealand for the periods listed below ;
- Stainless steel box, plates and grills (excludes burners, gas valves and ignitions) – Further 8 years
- Quartz stone & marine grade plywood carcasses – Further 3 years
Repair or replace warranty:
During the Warranty Period, Electrolux or its ASC will, at no extra charge if your Appliance is readily accessible for service, without special equipment and subject to these terms and conditions, repair or replace any parts which it considers to be defective. Electrolux may, in its absolute discretion, choose whether the remedy offered for a valid warranty claim is repair or replacement. Electrolux or its ASC may use refurbished parts to repair your Appliance. You agree that any replaced Appliances or parts become the property of Electrolux.
Travel and transportation costs:
Subject to clause 7, Electrolux will bear the reasonable cost of transportation, travel and delivery of the Appliance to and from Electrolux or its ASC. Travel and transportation will be arranged by Electrolux as part of any valid warranty claim.
Proof of purchase :
is required before you can make a claim under this warranty.
Exclusions:
You may not make a claim under this warranty unless the defect claimed is due to faulty or defective parts or workmanship. This warranty does not cover:
- light globes, batteries, filters or similar perishable parts;
- parts and Appliances not supplied by Electrolux;
- cosmetic damage which does not affect the operation of the Appliance;
- damage to the Appliance caused by:
- negligence or accident;
- misuse or abuse, including failure to properly maintain or service;
- improper, negligent or faulty servicing or repair works done by anyone other than an Electrolux authorised repairer or ASC;
- normal wear and tear;
- power surges, electrical storm damage or incorrect power supply;
- incomplete or improper installation;
- incorrect, improper or inappropriate operation;
- insect or vermin infestation;
- failure to comply with any additional instructions supplied with the Appliance;
In addition, Electrolux is not liable under this warranty if:
- the Appliance has been, or Electrolux reasonably believes that the Appliance has been, used for purposes other than those for which the Appliance was intended, including where the Appliance has been used for any non-domestic purpose;
- the Appliance is modified without authority from Electrolux in writing;
- the Appliance’s serial number or warranty seal has been removed or defaced
How to claim under this warranty:
To enquire about claiming under this warranty, please follow these steps:
- carefully check the operating instructions, user manual and the terms of this warranty;
- have the model and serial number of the Appliance available;
- have the proof of purchase (e.g. an invoice) available;
- telephone the numbers shown below.
Australia:
For Appliances and services provided by Electrolux in Australia: Electrolux goods come with guarantees that cannot be excluded under the Australian Consumer Law. You are entitled to a replacement or refund for a major failure and for compensation for any other reasonably foreseeable loss or damage. You are also entitled to have the Appliance repaired or replaced if the Appliance fails to be of acceptable quality and the failure does not amount to a major failure. ‘Acceptable quality’ and ‘major failure’ have the same meaning as referred to in the ACL
New Zealand:
For Appliances and services provided by Electrolux in New Zealand, the Appliances come with a guarantee by Electrolux pursuant to the provisions of the Consumer Guarantees Act, the Sale of Goods Act and the Fair Trading Act. Where the Appliance was purchased in New Zealand for commercial purposes the Consumer Guarantee Act does not apply.
Confidentiality:
You accept that if you make a warranty claim, Electrolux and its agents including ASC may exchange information in relation to you to enable Electrolux to meet its obligations under this warranty.
Important Notice
Before calling for service, please ensure that the steps listed in clause 8 above have been followed.
AUSTRALIA
FOR SERVICE
or to find the address of your nearest authorised service centre in Australia
PLEASE CALL : 1300 307 939
For the cost of a local call.
FOR SPARE PARTS
or to find the address of your nearest spare parts centre in Australia
PLEASE CALL 13 13 5
For the cost of a local call.
NEW ZEALAND
FOR SERVICE
or to find the address of your nearest authorised service centre in New Zealand
PLEASE CALL 0800 10 66 10
FOR SPARE PARTS
or to find the address of your nearest spare parts centre in New Zealand
PLEASE CALL 0800 10 66 20
For more information on all Beefeater products, or for dimension and installation information, call into your retailer, phone or email our customer care team or visit our website:
AUSTRALIA
phone: 1300 307 939
email: [email protected]
web: beefeaterbbq.com
NEW ZEALAND
phone: 0800 436 245
email: [email protected]
web: beefeaterbbq.com
Beefeater. We are part of the Electrolux Family. To add a touch of professional inspiration to your home, visit electrolux.com.au


















































































