PCT MH-150T-DFV-A Master Heater User Manual

www.pinnacleclimate.com
[email protected]
⚠ WARNING DO NOT START THE HEATER WHEN EXCESS OIL HAS ACCUMULATED.
⚠ WARNING DO NOT START THE HEATER WHEN THE CHAMBER IS HOT.
⚠ WARNING CALIFORNIA RESIDENTS: This product contains chemicals, including lead, known to the State of California to cause birth defects or other reproductive harm. Wash hands after handling.
MASSACHUSETTS RESIDENTS: Massachusetts state law prohibits the use of this heater in any building which is used in whole or in part for human habitation. Use of this heating device in Massachusetts requires local fire department permit (M.G.L.C. 148, Section 10A).
NEW YORK CITY RESIDENTS: The New York City Fire Code prohibits the storage, handling and use of kerosene fuelled heaters for space heating. Any person violating that provision may be punished by a fine up to $10,000 and a term of imprisonment of up to 6 months.
THE INSTALLATION OF THIS HEATER SHALL COMPLY WITH THE REGULATIONS OF THE AUTHORITIES HAVING JURISDICTION.
ℹ Look for this icon throughout the manual for helpful tips on how to assemble, use and clean your SDR Heater.
⚠ WARNING RISK OF INDOOR AIR POLLUTION!
The products described in this manual are kerosene direct-fired, forced air heaters. Kerosene forced air heaters are primarily intended for use for temporary heating of buildings under construction, alteration or repair. Direct-fired means that all of the combustion products of the heater enter the heated space. This appliance is rated at 98% combustion efficiency, but does produce small amounts of carbon monoxide. Carbon monoxide is toxic. Humans can tolerate only small amounts of carbon monoxide and so precautions should be taken to provide proper
⚠ DANGER CARBON MONOXIDE POISONING MAY LEAD TO DEATH!
ventilation. Failure to provide proper ventilation in accordance with the instructions in this manual can result in death.
People with breathing problems should consult a physician before using this heater.
Early signs of carbon monoxide poisoning resemble the flu. Symptoms of improper ventilation / carbon monoxide poisoning are:
Headache • Dizziness • Nausea • Dry Mouth Sore Throat • Burning of Nose and Eyes
If you experience any of these symptoms: GET FRESH AIR AT ONCE! Have your heater serviced and check for proper ventilation. Some people are more affected by carbon monoxide than others.
These include: pregnant women, those with heart or lung problems, anaemia or those under the influence of alcohol or at high altitudes.
Not For Indoor Use. Indoor use permitted only for the temporary heating of buildings under construction, alteration or repair! Provide at least a three square foot (2,800 sq cm) opening of outside air for every 100,000 Btu / Hr heater rating. Refer to “Ventilation” on page 6 for further instructions.
Safety Information
⚠ WARNING RISK OF ELECTRIC SHOCK!
ALWAYS use only the electrical power (voltage and frequency) specified on the model plate of the heater.
ALWAYS use only three-prong, grounded outlet and extension cord.
ALWAYS use only 14 AWG or better extension cord.
ALWAYS unplug the heater when not in use.
ALWAYS install the heater so that it is not directly exposed to water spray, rain, dripping water, or wind.
⚠ WARNING RISK OF BURNS, FIRE AND EXPLOSION!
NEVER use fuels such as gasoline, benzine, paint thinners or other oil compounds in this heater.
NEVER refill the heater’s fuel tank while the heater is operating or still hot. This heater is EXTREMELY HOT while in operation.
NEVER block air inlet (rear) or air outlet (front).
NEVER use duct work in front or rear of heater.
NEVER move or handle heater while still hot.
NEVER transport heater with fuel in tank.
NEVER use with an external fuel tank.
Keep all combustible materials away from this heater.

ALWAYS locate heater on a stable and level surface.
If your heater is equipped with a thermostat, once it is plugged in, it can start at anytime in accordance with the thermostat setting.
Specifications

Locating Your Serial Number:
Your serial number can be found on a white label on the right side cover of your heater. For Example: 150812779. Year = 15, Month = 08, Unit # = 12779. Have your Serial Number ready before calling customer service at 800-641-6996.
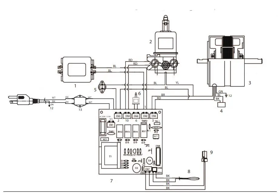
Wiring Diagram

- Igniter
- Pump
- Motor
- Condenser
- Limit Control
- Dump
- PCB Assembly
- Thermistor
- Photocell
- P-Solenoid
- Power
- Earth
- E.M.I. Filter
- WT. White
- BK. Black
- BL. Blue
- YL. Yellow
- RD. Red
- GN. Green
- BR. Brown
Assembly Instructions
Models: 150T-SDR / 220T-SDR
- Insert axle through holes in wheel support.
- Slide then spacer onto axle.
- Slide wheel onto axle and hold in place with the axle nuts. (See Figure 1).

- Place heater on wheel support frame and line up holes on the fuel tank lip.
- Attach front handle with (4) long screws (50 mm) and (4) nuts through the second and third hole from the front on both sides of the tank lip and wheel support frame and tighten firmly.
- Insert (2) short screws (30 mm) through the first hole the front of in the tank lip and tighten firmly. Make certain all (6) screws are secure.
- Attach rear handle with (4) long screws (50 mm) and (4) nuts through the first and second hole from the rear on both sides of the tank lip and wheel support frame and tighten firmly.
- Attach front guard with the included hardware.

What’s In The Box: 150T-SDR / 220T-SDR
ℹ Tip: Be sure to remove the axle from the side of the Styrofoam packaging.
ℹ Tip: Use a power screwdriver and locking wrench for easier assembly.
Tools Needed:
– Phillips Head Screw Driver
– 8 mm open end wrench
– 19 mm open end wrench

Operation
Fuelling The Heater:
Kerosene (1-K)
For optimal performance of this heater, it is strongly suggested that 1-K kerosene be used. 1-K kerosene has been refined to virtually eliminate contaminants, such as sulphur, which can cause a rotten egg odor during the operation of the heater. Using diesel fuel can cause excess soot production. Do not use Bio-Diesel as this fuel will damage your heater’s seals and filter.
– CSA certified for use with 1-K kerosene, no. 1 diesel, Jet A Fuel, and no. 1 fuel oil.
DO NOT use any fuel that is not approved above.
– NEVER use fuel such as, benzene, alcohol, white glass, camp stove fuel, paint thinners, or other oil compounds in this heater. THESE ARE VOLATILE FUELS THAT CAN CAUSE A FIRE OR EXPLOSION.
– NEVER store kerosene in the living space. Kerosene should be stored in a well ventilated area outside the living area.
– NEVER store kerosene in direct sunlight or near a source of heat.
– NEVER use kerosene that has been stored from one season to the next. Kerosene deteriorates over time. OLD KEROSENE WILL NOT BURN PROPERLY IN THIS HEATER.
NOTE: Kerosene should only be stored in a blue container that is clearly marked “Kerosene.” Never store kerosene in a red container. Red is associated with gasoline.
⚠ DANGER NEVER REFUEL THIS HEATER WHILE IT IS HOT OR OPERATING. FIRE OR EXPLOSION COULD RESULT.
⚠ CAUTION NEVER FILL THE FUEL TANK INDOORS.
ALWAYS FILL THE TANK OUTDOORS. BE SURE THAT THE HEATER IS ON LEVEL GROUND WHEN FUELING, AND NEVER OVERFILL THE TANK.
⚠ WARNING DO NOT USE GASOLINE OR CRANKCASE DRAININGS.
Operation
Ventilation:
– Risk of indoor air pollution and Carbon Monoxide Poisoning. Not For Indoor Use. Indoor use permitted only for the temporary heating of buildings under construction, alteration or repair.
⚠ DANGER CARBON MONOXIDE POISONING MAY LEAD TO DEATH!
– Refer to Safety Information on pages 1-2 for information about Carbon Monoxide Poisoning.
– ALWAYS provide a fresh air opening in the heated space of at least three square feet (2,800 sq. cm) for each 100,00 Btu / Hr. of heater output. Provide a larger opening if more heaters are being used.

Starting the Heater: (Ignition)
- Fill the tank with kerosene or other approved fuel until needle on fuel gauge points to “F”.
- Replace fuel cap and tighten firmly.
- Connect the heater to a three prong (grounded) power source. You must use a three prong (grounded) extension cord that is at least 6 feet long and is a minimum of 14 AWG rating.
- Press the power button to power on the heater.
- Select desired temperature using temperature buttons.
- The heater will ignite once the temperature setting is higher than the ambient temperature in the space.
⚠ TIP: If the heater does not ignite, the thermostat may be set too low. Increase the temperature to a higher setting until the heater ignites.
⚠ TIP: If the heater does not ignite; press power button to power off the heater, check steps 1-3 above and press power button to power ON the heater.
Stopping / Restarting Heater:
– To stop the heater, move the power switch to the “Off” position and unplug the power cord.
– To restart the heater; wait 10 seconds and follow ignition steps.

Maintenance
Long Term Storage:
- Drain fuel through the drain plug in the bottom of the fuel tank.
- To remove the drain plug, pull the plug grip downward and remove the seal head from the drain hole in the tank. (See Figure 4)

- Using a small amount of kerosene, rinse and swirl the kerosene inside of the fuel tank, empty the tank fully.
- To replace the drain plug; push the drain head fully into the drain hole and secure by pushing the seal cap fully into the head hole.
(See Figure 5)

IMPORTANT: Never store leftover kerosene between seasons, using old fuel can damage heater.
Service:
DO NOT TAMPER WITH THE UNIT. HAVE A COMPETENT SERVICEMAN MAKE ANY NECESSARY ADJUSTMENT OR REPAIRS.
Use only original equipment parts. The use of alternate or third party components can cause unsafe operating conditions and will void your warranty.
We suggest following a maintenance schedule as follows:
ℹ TIP: To order OEM parts call (800)-641-6996
FUEL / FUEL TANK:
Flush tank every 200 hours of operation or as needed. DO NOT flush with water, use fresh 1-K kerosene only.
FAN BLADES:
Blades should be cleaned at least once per heating season, depending on conditions. Remove all accumulated dust and dirt with a damp cloth, taking care not to bend any of the fan blades. Be sure the blades are dry before re-starting the heater. For fan assembly removal see Figure 6.
FUEL FILTER:
The fuel filter should be cleaned at least twice per heating season. Clean the filter by rinsing it in clean 1-K Kerosene. Contaminated fuel could make cleaning the fuel filter necessary immediately.
NOTE: To remove the filter from models turn filter 90º counter-clockwise. See Figure 7.

SPARK PLUG:
Clean and re-gap every 600 hours of operation, or replace as needed. After removing the spark plug, clean the terminals with a wire brush. Re-gap the terminals to 0.140” (3.5mm) See Figure 8.

PHOTOCELL:
The photocell should be cleaned using a cotton swab dipped in alcohol or water at least once per heating season, or more depending on conditions. See Figure 9.

NOZZLES:
Nozzles should be cleaned or replaced at least once per heating season. Contaminated fuel could make this necessary immediately. To clean dirt from nozzle, blow compressed air through nozzle front. It may be necessary to soak the nozzle in 1-K kerosene to loosen any dirt particles.

Troubleshooting Guide


Exploded View

Parts List



LIMITED WARRANTY
Pinnacle Climate Technologies, Inc. warrants this heater to the original retail purchaser only, to be free from defects in material and workmanship for a period of one (1) year from the date of initial purchase. This product must be properly installed, maintained and operated in accordance with the instructions provided.
Pinnacle Climate Technologies, Inc. requires reasonable proof of your date of purchase from an authorized retailer or distributor. Therefore, you should keep your sales slip, invoice or cancelled check from the original purchase. This Limited Warranty shall be limited to the repair or replacement o parts, which prove defective under normal use and service within the warranty period, and which Pinnacle Products International , Inc. shall determine at its reasonable discretion.
This warranty does not apply to products purchased for rental use.
This Limited Warranty does not cover any failures or operating difficulties due to normal wear and tear, accident, abuse, misuse, alteration, misapplication, improper installation or improper maintenance and service by you or any third part. Failure to perform normal and routine maintenance on the heater, shipping damage, damage related to insects, birds or animals of any kind, and damage due to weather conditions are also not covered. In addition, the Limited Warranty does not cover damage to the finish, such as scratches, dents, discoloration, rust or other weather damage, after purchase.
All transportation costs for the return of damaged product or parts will be the responsibility of the purchaser. Upon receipt of damaged item, Pinnacle Climate Technologies, Inc. will examine the item and determine if defective. Pinnacle Climate Technologies, Inc. will repair or replace and return the item, freight pre-paid.
If Pinnacle Climate Technologies, Inc. finds the item to be in normal operating condition, or not defective the item will be returned freight collect. This Limited Warranty is in lieu of all other express warranties. Pinnacle Climate Technologies, Inc. disclaims al warranties for products that are purchased from sellers other than authorized
dealers or distributors.
AFTER THE PERIOD OF THE ONE (1) YEAR EXPRESS WARRANTY EXPIRES, Pinnacle Climate Technologies, Inc. DISCLAIMS ANY AND ALL IMPLIED WARRANTIES, INCLUDING WITHOUT LIMITATION THE IMPLIED WARRANTIES OF MERCHANTABILITY AND FITNESS FOR A PARTICULAR APPLICATION. FURTHER, Pinnacle Climate Technologies, Inc. SHALL HAVE NO LIABILITY WHATSOEVER TO PURCHASER OR ANY THIRD PARTY FRO ANY SPECIAL, INDIRECT, PUNITIVE INCIDENTAL, OR CONSEQUENTIAL DAMAGES. Pinnacle Climate Technologies, Inc. assumes no responsibility for any defects caused by third parties. This Limited Warranty gives the purchaser specific legal rights; a purchaser may have other rights depending upon where he or she lives. Some states do not allow the exclusion or limitation of special, incidental or consequential damages, or limitations on how long a warranty lasts, so the above exclusion and limitations may not apply to you.
Pinnacle Climate Technologies, Inc. does not authorize any person or company to assume for it any other obligation or liability in connection with the sale, installation, use, removal, return or replacement of its equipment, and no such representations are binding on Pinnacle Climate Technologies, Inc.
Always be sure to specify the model number and serial number when making any claim with Pinnacle Climate Technologies, Inc. For your convenience, use the space provided below to list this information.
Locating Your Serial Number:
Your serial number can be found on a white label on the right side cover of your heater. It will begin with 2 digits, the letter “H” followed by 6 digits. For Example: 13H123456. Have your Serial Number ready before calling customer service at 800-641-6996.
Model #:________________________________
Serial #:________________________________
Date of Purchase: ________________________
© 2016, Pinnacle Climate Technologies, Inc. SilentDrive® Forced Air Heater User’s Manual





















