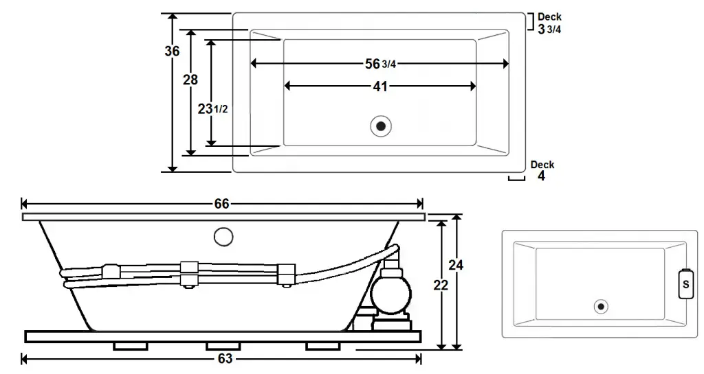
FARRELL 1 66 X 36 Inch Skirted Acrylic Whirlpool
Instruction Manual
*All dimensions are +/- 1/2” and subject to change without notice*

Technical Information
- Weight: 134 lbs.
- Water Depth to Overflow: 18”
- Water Operating Level:
- Water Capacity: 87 gal.
- Sump Dimension: 46 3/4” x 20 1/4”
Electrical Requirements.
- Standard Pump: 13 Amps
- (Optional) LM300 Heater: 12 Amps
- (Optional) LM320 Silent Pump: 11 Amps
- Dedicated GFCI’s required for each option
Laurel Mountain Customer Service: 1-800-930-0050



















