INSTRUCTION MANUAL
WINE CELLAR
MODEL: JC-58A/JC-85B / JC-145B/JC-115 
This manual contains important information including safety and installation instructions for the appliances. Please read it carefully before use and follow all safety information & instructions. It is recommended to keep this manual for easy reference so that you can be familiar with the operation of the appliance.
WARNING
- To prevent damaging the door gasket, make sure to have the door all the way opened when pulling shelves out of the rail compartment.
- The appliance must be positioned so that the plug is accessible. Release the electric cord. Move your cabinet to its final location. Do not move your Cabinet while loaded with wine. You might distort its body. The wine cellar should be installed in a suitable place in order to avoid touching the compressor by hand.
- This appliance is not intended for use by persons (including children) with reduced physical, sensory or mental capabilities or lack of experience and knowledge unless they have been given supervision or instruction concerning the use of the appliance by a person responsible for their safety.
- If the supply cord is damaged, it must be replaced by the manufacturer of its service agent or a similarly qualified person in order to avoid a hazard.
PLEASE DON’T TRY TO PLUG INTO OR EXTEND THE CABLE IN ANY CASE.
Wine cooler self-checking
The unit will have “bee”, and” bee” after power on, this means the wine cooler is self-checking before operation.
IMPORTANT SAFETY INSTRUCTIONS
WARNING ![]()
To reduce the risk of fire, electrical shock, or injury when using your appliance, follow these basic precautions:
- Read all instructions before using the Wine cellar.
- DANGER or WARNING: Risk of child entrapment.
- Child entrapment and suffocation are not problems of the past. Junked or abandoned appliances are still dangerous even if they will “just sit in the garage a few days”.
- Before you throw away your old Wine Cellar: Take off the door. Leave the shelves in place so that children may not easily climb inside.
- Never allow children to operate, play with, or crawl inside the appliance.
- Never clean appliance parts with flammable fluids. The fumes can create a fire hazard or explosion.
- Do not store or use gasoline or any other flammable vapors and liquids in the vicinity of this or any other appliance. The fumes can create a fire hazard or explosion. Do not store explosive substances such as aerosol cans with a flammable propellant in this appliance.
- WARNING: Keep ventilation openings, in the appliance enclosure or in the built-in structure, clear of obstruction;
- WARNING: Do not use mechanical devices or other means to accelerate the defrosting process, other than those recommended by the manufacturer;
- To avoid a hazard due to the instability of the appliance, it must be fixed in accordance with the instructions.
- WARNING: Do not damage the refrigerant circuit;
- WARNING: Do not use electrical appliances inside the food storage compartments of the appliance, unless they are the type recommended by the manufacturer.
- If the refrigerant of these appliances is R600a, Flammable and explosive articles should not be put in or near the cabinet, to avoid the fire or explosion caused.
-Save these instructions-
UNPACKING AND INSTALLING THE DOOR HANDLE
Remove the exterior and interior packing materials.
Install the door handle provided with the appliance by following these steps:
Step 1-Remove the gasket at the inner side of the door to expose the two screw holes.
Step 2-Install the handle tightly with the screws and washers provided.
Step 3-Tidy and restore the gasket.

INSTALLATION INSTRUCTIONS
Before Using Your Wine cellar
- Remove the exterior and interior packing.
- Before connecting the Wine cellar to the power source, let it stand upright for approximately 24 hours. This will reduce the possibility of a malfunction in the cooling system from handling during transportation.
- Use a soft cloth to clean the interior surface with lukewarm water.
- This appliance is intended to be used in household and similar applications such as
– Staff kitchen areas in shops, offices, and other working environments;
– Farm houses and by clients in hotels, motels, and other residential type environments;
– Bed and breakfast type environments;
– Catering and similar non-retail applications. - When disposing of your appliance, please choose an authorized disposal site.
Installation of Your Wine Cellar
- This appliance is designed to be for free-standing installation or built-in (fully recessed) (Refer to sticker location at the back of this appliance).
- This appliance is intended to be used exclusively for the storage of wine or beverages.
- Place your Wine cellar on a flat floor that is strong enough to support it when it is fully loaded. To level your Wine cellar, adjust the front leveling leg at the bottom of the Wine cellar.
- This appliance is using flammability refrigerant. So never damage the cooling pipework during the transportation. Locate the Wine cellar away from direct sunlight and sources of heat (stove, heater, radiator, etc.). Direct sunlight may affect the acrylic coating and heat sources may increase electrical consumption. Extreme cold ambient temperatures may also cause the unit not to perform properly.
- Avoid locating the unit in moist areas.
- Plug the Wine cellar into an exclusive, properly installed-grounded wall outlet. Do not cut or remove the third (ground) prong from the power cord under any circumstances. Any questions concerning power and/or grounding should be directed toward a certified electrician or an authorized Products service center.
Attention
- Store wine in sealed bottles;
- Do not overload the cabinet;
- Do not open the door unless necessary;
- Do not cover shelves with aluminum foil or any other shelf material which may prevent air circulation;
- Should the Wine cellar be stored without use for long periods, it is suggested to leave the door ajar to allow air to circulate inside the cabinet after careful cleaning, avoiding possible formations of condensation, mold, or odors.
Ambient Room Temperature Limits
This appliance is designed to operate in ambient temperatures specified by its temperature class marked on the rating plate.
| Class | Symbol | Ambient Temperatures range (°C / °F) |
| Extended Temperate | SN | + 10°C/ 50 °F to + 32°C / 89.6°F |
| Temperate | N | + 16°C / 60.8°F to + 32°C / 89.6°F |
| Subtropical | ST | + 16°C / 60.8°F to + 38°C / 100.4°F |
| Tropical | T | + 16°C / 60.8°F to + 43°C / 109.4°F |
Description of product model
| Model | Description |
| JC-85B | 28 bottles dual zone wine cellar |
| JC-145B | 46 bottles dual zone wine cellar |
The standard bottles as below:
![]() | The stated capacity is dependent on the size and shape of a standard Bordeaux 750ml bottle with a diameter of 2.75″. When accommodating larger bottles, you can remove shelves. This will reduce the stated bottle capacity. |
![]() | Storage of Model JC-58A ● Shelf One To Five – 3 Bottles Per Shelf ● Bottom Section – 4 Bottles |
![]() | Storage of Model JC-85B ● Shelf One To Five – 5 Bottles Per Shelf ● Bottom Section – 3 Bottles |
![]() | Storage of Model JC-145B ● Shelf One To Five – 8 Bottles Per Shelf ● Bottom Section – 6 Bottles |
![]() | Storage of Model JC-115 Red wine region ● Shelf One To Five – 3 Bottles Per Shelf ● Bottom Section – 4 Bottles Beverage area ● Shelf One -9 Bottles ● Shelf Two to Three- 18 Bottles Per Shelf ● Bottom – 12 Bottles |
TEMPERATURE SETTING
WINE STORAGE
- To prevent damaging the door gasket, make sure to have the door opened fully all the way before pulling the shelves out.
- Please store wine in sealed bottles.
- Should the wine cooler be left empty for long periods it is suggested that the appliance is unplugged, and after careful cleaning, leave the door ajar to allow air to circulate inside the cabinet in order to avoid possible condensation, mold, or odors forming.
- Recommended Temperatures for chilling/storage of your wines.
| Red Wines | 15-18ºC / 59-64.4℉ |
| Dry/White Wines | 9-14ºC / 48.2-57.2℉ |
| Rose Wines | 10-11ºC / 50-51.8℉ |
| Sparkling Wines | 5-8ºC / 41-46.4℉ |
OPERATING YOUR WINE CELLAR AND SETTING THE TEMPERATURE CONTROL
FOR JC-58A/JC-85A/JC145A WINE CELLAR
Control System Instruction

- Power switch
: Plug in, and press
for 3 seconds to turn on or off the unit.
button: Press
to change the temperature display between Celsius and Fahrenheit.- Lock button
: Press
for 3 seconds to lock the control panel except for the light button, press this button again once need to unlock the control panel.
button : The temperature will increase 1ºF or 1ºC if you push the
button, and the temperature will decrease 1ºF or 1ºC if you push the
button.- Light button
: Press
to turn it on or off.
FOR JC-85B/JC-145B WINE CELLAR
Control System Instruction

- Power switch
: Plug in, and press
for 3 seconds to turn on or off the unit. - Left combination
button ; Press
and
at the same time for 3 seconds to 5 el El change the temperature display between Celsius and Fahrenheit. - The left display window shows the temperature of the lower zone, the temperature will increase 1ºF or 1ºC if you push the left
button, and the temperature will decrease 1ºF or 1ºC if you l push the left
button. - The right display window shows the temperature of the upper zone, the temperature will increase by 1ºF or 1ºC if you push the right
button, and the temperature will decrease by 1ºF or 1ºC if El you push the right
button. - Right combination
button ; Press
and
at the same time for 3 seconds to EE El l lock the control panel except for the Light function, there need to press this combination button again once want to unlock the control panel. - Light button
: Press
to turn it on or off. e &
FOR THE JC-115 WINE CELLAR
Control System Instruction

Temperature control range: Left zone 5-20ºC (41-68ºF), right zone 2-10ºC (36-50ºF)
- Power switch
: Plug in, and press
for 3 seconds to turn on or off the unit.
button ; Press
to change the temperature display between Celsius and Fahrenheit.- Lock button
: Press
for 3 seconds to lock the control panel except for the light button, press this button again once need to unlock the control panel.
button : The temperature will increase 1ºF or 1ºC if you push the
button, and the temperature will decrease 1ºF or 1ºC if you push the
button.- Light button
: Press
to turn it on or off.
Setting The Temperature Controls
- When pressing the temperature setting button, the system will enter the set-up mode of the upper or lower compartment automatically. The LED display will flash and show the set temperature. After 5 seconds the flash will stop and it will show the actual measured interior temperature.
- Press the button “+” or ”-” once, and the temperature will decrease or increase 1 ℃/1℉ After stopping pressing the button for 5 seconds, the LED figure will stop flashing, then revert back to display the setting temperature of the upper or lower compartment.
- After the unit is unplugged, the system will return to the default setting temperature, which is set by the factory. The default setting temperature as below:
- Upper compartment: The temperature setting can be adjusted from 5℃ /41℉ to 12℃ /53.6℉.
- Lower compartment: The temperature setting can be adjusted from 12℃/53.6℉ to 20℃ /68℉.
Model | Temperature range |
| JC-85B WINE CELLAR | Upper compartment: The temperature setting can be adjusted from 5℃/41℉ to 12℃/53.6℉. |
| JC-145B WINE CELLAR | Lower compartment: The temperature setting can be adjusted from 12℃/53.6℉ to 20℃/68℉. |
| JC-58A/JC-85A/JC-145A | The temperature setting can be adjusted from 5℃/41℉ to 20℃/68℉. The temperature preset at the factory is 12℃/53.6℉. |
Attention
If the unit is unplugged, power lost, or turned off, you must wait for 3 to 5 minutes before restarting the unit. If you attempt to restart before this time delay, the Wine Cellar will not start. If first-time use or longer absence of using, the temperature will be different between the setting and LED display temperature. After running a period, the temperature will be reverting back.
Shelves
- To prevent damaging the door gasket, make sure to have the door all the way opened when pulling shelves out of the rail compartment.
- For easy access to the storage container, you must pull the shelves approximately 1/3 out of the rail compartment, however, this unit was designed with a notch on each side of the shelf tracks to prevent bottles from falling.
Please refer to the following direction for replacing the shelf with a different method.
Please refer to the following direction for replacing the shelf with a different method. - If need to take out any shelf, move the shelf towards the gap on both sides and alignment with shelf support A. Then, upwards the shelf and pull out it from the cabinet once the shelf support is disengaged from the gap.

If need to take out any shelf which has a sliding rail, use one hand to press down the right plastic notch as shown in Figure A and at the same time lift the left plastic notch by another hand as shown in Figure B. Hold both notches and then proceed to pull out the shelf slowly. Contact our service department if assistance is needed.

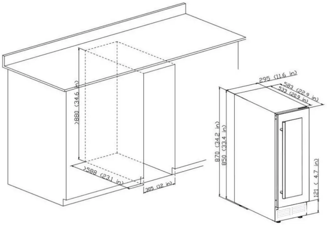
BUILT-UNDER SERIES
(Built under a kitchen table top)

Remark: The above picture is for reference only. Please refer to the actual product.
Installation specifications for built-in purposes For JC-58A

JC-85B

JC-145B,

JC-115

LOCK & UNLOCK THE DOOR (FOR OPTION)
A lock is an optional function. If your Wine Cellar has such a function, a key should be attached inside the packing of this Manual.
Insert the key into the lock and turn it counter-clockwise to unlock the door. To lock it, please follow the reversed operation. Please save the key well.
CHARCOAL FILTRATION SYSTEM
Your wine is a living object that breathes through the cork of its bottle. In order to preserve the quality and taste of your fine wines, they must be stored at the ideal temperature and ambient conditions. Your cellar is equipped with an active charcoal filtration system to ensure air purity, and cooling efficiency, and to maintain an odor-free cabinet for the storage of your fine wines. The filter assembly is located at the rear panel inside your cellar. Keep in mind, that this filter must be changed every 12 months and purchase the new one from the distributor.
To replace your filter:
| 1 | Remove the bottles of wine stored on the two (2) shelves in front of the filter. | Turn Left to remove the filter. |
| 2 | Remove replaced the shelves and set them aside to be once you have changed the filter | |
| 3 | Hold the filter and turn it at 45 degrees in the counter-clockwise direction and then pull it out. | |
| 4 | Remove the existing filter and replace it with a new one. | |
| 5 | Put the new filter into the hole and then turn the filter at 45 degrees in a clockwise direction. |
CARE & MAINTENANCE
Clean your Wine Cellar
Turn off the power, unplug the appliance, and remove all items including shelves and rack.
Wash the inside surfaces with warm water and a mild solution.
Wash the shelves with a mild detergent solution.
Wring excess water out of the sponge or cloth when cleaning the area of the controls, or any electrical parts.
Wash the outside cabinet with warm water and mild liquid detergent. Rinse well and wipe dry with a clean soft cloth.
Power failure
Most power failures are corrected within a few hours and should not affect the temperature of your appliance if you minimize the number of times the door is opened. If the power is going to be off for a long period of time, you need to take the proper steps to protect your contents.
Vacation Time
Short vacations: Leave the Wine Cellar operating during vacations of less than three weeks.
If the appliance will not be used for several months, remove all items and turn off the appliance. Clean and dry the interior thoroughly. To prevent odor and mold growth, leave the door open slightly: blocking it open if necessary.
Moving your Wine Cellar:
Remove all items.
Take out the loose items inside the wine cellar (such as the shelf), or fix the loose items with the foam.
Turn the adjustable leg up to the base to avoid damage.
Tape the door shut.
Be sure the appliance stays secure in the upright position during transportation. Also, protect outside of the appliance with a blanket or similar items.
Energy saving tips
The Wine Cellar should be located in the coolest area of the room, away from producing appliances, and out of direct sunlight.
TROUBLESHOOTING GUIDE
If you feel the appliance is out of order, follow these instructions to try to see if you can solve the problem simply by yourself before calling for service.
Problem | Possible Cause |
| Wine Cellar does not operate | No plugged-in. The appliance is turned off. The circuit breaker tripped or a blown fuse. |
| The Wine Cellar is not cold enough | Check the temperature control setting. The external environment may require a higher setting. The door is opened too often. The door is not closed completely. The door gasket does not seal properly. |
| Turns on and off frequently | The room temperature is hotter than normal. Overload of the cabinet The door is opened too often. The door is not closed completely. The temperature control is not set correctly. The door gasket does not seal properly. |
| The light does not work | Not plugged in. |
| The circuit breaker tripped or a blown fuse. The bulb has burned out. The light button is “OFF” | |
| Vibrations | Check to sure that the Wine Cellar is level. |
| Too much noise | The rattling noise may come from the flow of the refrigerant, which is normal. As each cycle ends, you may hear gurgling. Contraction and expansion of the inside walls may cause popping and crackling noises. The Wine Cellar is not level. |
| The door will not close properly | The Wine Cellar is not level. The door was reversed and not properly installed. The gasket is dirty. The shelves are out of position. |
| The control panel does not work | Not plugin The control panel is locked. Please press |
| The unit beeps. | Wine cooler self-checking. This is normal. |
Before disposal of the appliance:
- Disconnect the main plug from the main socket.
- Cut off the main cable and discard it.
This marking indicates that this product should not be disposed of with other household wastes throughout the EU. To prevent possible harm to the environment or human health from uncontrolled waste disposal, recycle it responsibly to promote the sustainable reuse of material resources. To return your used device, please use the return and collection systems or contact the retailer where the product was purchased. They can take this product for environmentally safe recycling.
WARRANTY
Thank you for purchasing our product, which has been made to meet high-quality standards. The manufacturer’s warranty covers a period of 12 months from the date of purchase against manufacturing faults.





Turn Left to remove the filter.


















