
GXX-4GMx Series 4G Router
User Manual 
GXX-4GMx Series 4G Router User Manual
07.01.2022 / V5
Document Revision
| Version | Date | Modification | Author |
| 1 | 17.12.2014 | First issue | JON |
| 2 | 06.01.2015 | Review | TAB |
| 3 | 07.01.2015 | Updates and corrections | JON |
| 4 | 07.01.2015 | Review | TAB |
| 5 | 08.01.2022 | Updates and corrections | BES |
Disclaimer
GeoSIG Ltd reserves the right to change the information contained in this document without notice. While the information contained herein is assumed to be accurate, GeoSIG Ltd assumes no responsibility for any errors or omissions.
Copyright Notice
No part of this document may be reproduced without the prior written consent of GeoSIG Ltd. Software described in this document is furnished under a license and may only be used or copied in accordance with the terms of such a license.
Trademark
All brand and product names mentioned are trademarks or registered trademarks of their respective holders.
All rights reserved.
GeoSIG Ltd
Switzerland
GS_GXX-4GM_Manual_V05.doc
Overview
The 4G router series GXX-4GM consists of GXX-4GM and GXX-4GMPC subtypes for use with GMSplus and a computer respectively. The GXX-4GM for use with GMSplus is conveniently installed in an IP66 protected housing and provides in addition to the internal antennas an option for installing an external antenna. GXX4GM is supplied with all cables needed for installation with a GMSplus. GXX-4GMPC on the other hand is delivered without any housing, but with necessary cables and connectivity.

Installation of the SIM Card
Before proceeding, please make sure that:
– SIM card is not locked by a PIN code.
– the modem is NOT powered.
2.1. GXX-4GM
To access the SIM card slot on the GXX-4GM, remove the cover of the protective ABS housing of the router and loosen the four screws holding the black modem (see red circles in Figure 3) and carefully lift and tilt the modem until you see the SIM card slots.
There are two SIM Card slots, the upper one is SIM1. The SIM Card should be inserted like Figure 4. Push in the SIM card completely to its full stop.
Due to the small slot in the housing, a tool like a screwdriver might be required to fully push the SIM card in.
2.2. GXX-4GMPC
The SIM card slot is easily accessible on the GXX-4GMPC.
There are two SIM Card slots, the upper one is SIM1. Push in the SIM card completely to its full stop.
Due to the small slot in the housing, a tool like a screwdriver might be required to fully push the SIM card in.
Router Configuration
Remove the cover of the protective ABS housing of the router and unplug the Ethernet cable. Plug in a standard Ethernet cable and connect the other end to the computer.
Power the router by connecting the power cable to the SERIAL connector of the GMSplus.
The GMSplus must already be configured to power the modem, as described in the GMSplus manual
Before connecting the router to the GMSplus, we recommend checking that it is possible to surf on the internet. with the already connected computer. The GXX-4GM series router acts as a DHCP server and therefore no fixed IP must be set in the computer. As soon as the connection is established (
), open a web browser and visit a couple of websites which are known to be online, using the web browser on the computer.
If the websites are not accessible, you may need to set APN settings manually (check with your GSM service provider for the correct settings). Open a web browser and enter the IP 192.168.168.1 which is the default IP address of the GXX-4GM series.
Log in with the username “admin” and password “123456”.
The APN settings can be entered under “Carrier” -> “Settings”
Hardware Configuration
4.1. Internal / External Antenna
The GXX-4GM router can be used with the internal antenna (default) or with an external cable/antenna in case the cellular reception on the measurement site is weak. To use the external antenna connector, first unscrew the SMA antenna which is labelled “ANTENNA” on the modem. The SMA connector for the external antenna connector can now be unscrewed from its place holder and connected to the modem. The SMA antenna can be mounted on the SMA place holder not to lose it. 
4.2. Preparation of the GMSplus
When used with the GXX-4GM series, the GMSplus requires no special hardware / jumper settings, but only a certain configuration of operational settings.
Configure the GMSplus according to the GMSplus manual making sure that the Ethernet gateway will be the GXX-4GM series and that the powering for the modem is done via GMSplus.
Electrical Connection
5.1. GXX-4GM
The GXX-4GM is supplied with all cables needed for use with GMSplus. Connect the two cables to the Ethernet connector and the Serial connector of the GMSplus. The router will be both powered and have communications with the GMSplus. Optionally an external antenna can be installed – see section 4.1. 

5.2. GXX-4GMPC
The GXX-4GMPC router is delivered such that it can be connected directly to a computer using either an Ethernet cable or the supplied USB cable. The router must be powered separately with 7-30 VDC. 
Mounting
6.1. GXX-4GM
The GXX-4GM router for GMSplus can be mounted on horizontal or vertical surfaces using 4 bolts according to the below drawing 
6.2. GXX-4GMPC
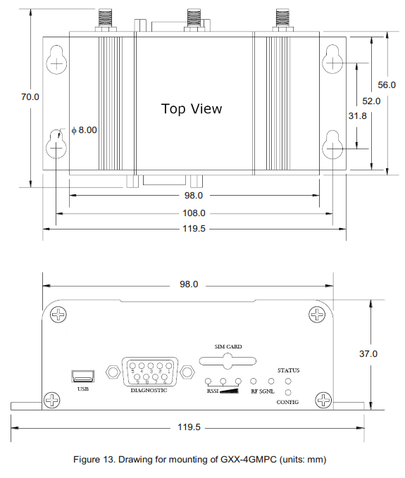
The bare modem can be mounted on horizontal or vertical surfaces using 4 bolts according to the below drawing. 
GS_GXX-4GM_Manual_V05.doc
GeoSIG Ltd, Wiesenstrasse 39, 8952 Schlieren, Switzerland
Phone: + 41 44 810 2150, Fax: + 41 44 810 2350
[email protected],
www.geosig.com


















