
Dok. Nr: M6310-ETL
V: 1.0
2022-03-29![]()
Installation InstructionsBaselift 6310H / 6310L
WWW: Baselift 6310
https://www.granbergusa.com/our-products/accessible-kitchens/lifts-for-kitchen-countertop/baselift-6300-6310/![]()
IMPORTANT SAFETY INSTRUCTIONS
When using an electrical furnishing, basic precautions should always be followed, including the following:
Read all instructions before using the BASELIFT.
DANGER – To reduce the risk of electric shock:
- Always unplug this furnishing from the electrical outlet before cleaning.
WARNING – To reduce the risk of burns, fire, electric shock, or injury to persons:
- Unplug from outlet before putting on or taking off parts.
- Close supervision is necessary when this furnishing is used by, or near children.
- Use this furnishing only for its intended use as described in these instructions. Do not use attachments not recommended by the manufacturer.
- Never operate this furnishing if it has a damaged cord or plug, if it is not working properly, if it has been dropped or da maged, or dropped into water. Return the furnishing to a service center for examination and repair.
- Keep the cord away from heated surfaces.
- Never operate the furnishing with the air openings blocked. Keep the air openings free of lint, hair, and the like.
- Never drop or insert any object into any opening.
- Do not use outdoors.
- Do not operate where aerosol (spray) products are being used or where oxygen is being administered.
- To disconnect, turn all controls to the off position, then remove plug from outlet.
- WARNING: Risk of injury – Keep children away from extended foot support (or other similar parts).
- WARNING: Risk of Electric Shock – Connect this furnishing to a properly gounded outlet only.
- For loading always put heavier items at the bottom and not near the top in order to help prevent the possibility of the furnishing tipping over.
SAVE THESE INSTRUCTIONS!
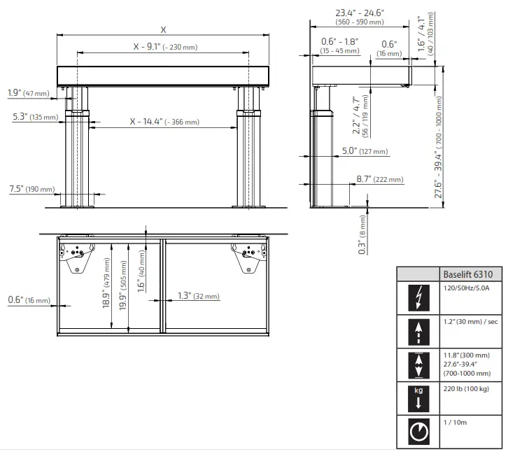
Technical data
Thank you for choosing to install a product from Granberg! In order for the product to work safely and securely, it is extremely essential that the installation instructions be followed. The installer should read and understand all the installation instructions before installation begins. It is the installer who is responsible for floor and wall structures meeting the set requirements and that fasteners can withstand the forces that may occur. The installer is also responsible for the right authority and skills being available for electric and water works. After completed installation, the product shall be functionally tested according to sections on p. 22.
Planning
Very Important!
Check floor stability before installation.
Maximum load on lifting unit is 220 lb (100kg) and dead load up to 220 lb (100kg).
Ensure that the wall can withstand the concentrated load that occurs under motor units.
Make sure that the motor units can be fixed to the floor and that the structure is not porous.
In some cases, the floor construction may need to be reinforced and adapted in order for motor units to be adequately fixed.
Never place the lift so that there is a risk of crushing against other solid interior fittings.
If the lift is placed in front of a flat wall, the gap should not be below 0,2” (5mm) or exceed 0.31” (8mm).
Electricity and Water
The lifting unit requires two power outlets and consumes a maximum of 10 A (5 A+5 A). (mm)
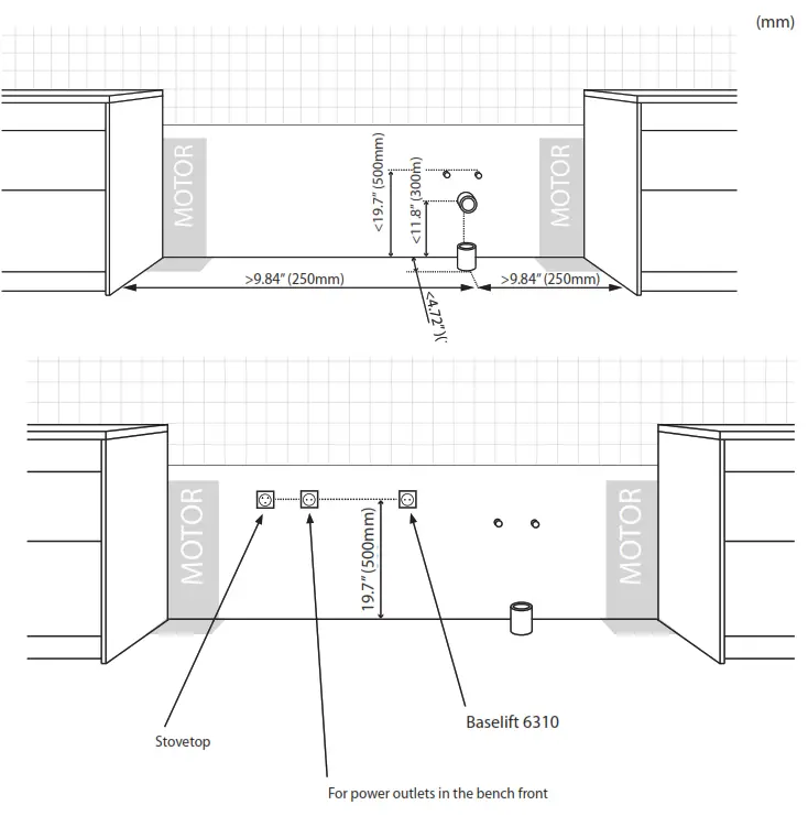
If the counter has a sink, the connections for electricity, water and drain should be placed centrally below the mixer.
The electrical connection can also be placed in a protected position inside a motor unit.
Content of delivery

Accessories
| ![]() |
![]() | ![]() |
![]() | ![]() |
![]() | ![]() |
![]() | ![]() |
![]() | ![]() |
![]() | ![]() |


Functional tests
Complete functional tests should be carried out after installation:
- Test run the lift unit up and down all the way to each end position. Make sure that the lift runs freely without obstacles, risk of pinching and noise. Make sure it remains at each end position.
- Make sure that no cables get pinched and that they are fixed.
- Lower the lift and test the function of the anti-pinch strip all around the frame. Press on it while lowering.
The lift should stop immediately and rise to free up space when anti-pinch protection is activated.
Before you use the device – Read the users manual
Only authorized persons may use the this product!
Authorization means obligation to read and follow the instructions.
It is very important that you read and understands the users manual before you use the device.
The user manual is attached as a separate booklet.
All of the accompanying documents shall be available for all concerned persons, be kept in a protected place and shall follow the product, if it is moved to another installation site or another house or apartment owner. Correct use, operation, inspections and maintenance are decisive for efficient and safe work. If you have any questions – contact your supplier.

Granberg Interior AB
Box 6112 600 06, Norrköping
Tel: 011-19 77 50
E-mail: [email protected]
Internet: www.granberg.se


































