Falmec FDLUM70I5SS2R 70 Inch Island Mount Convertible Hood

INSTRUCTIONS BOOKLET EN
LUMEN 175 ISLAND
FDLUM70I5SS-2L
120VAC 60HZ 280W
Tool required 
120VAC 60HZ 280W 
Tool required
Ceiling installation (1),
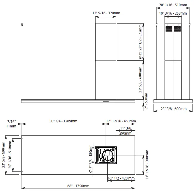
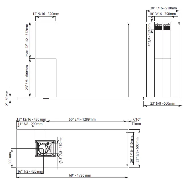
Installation measurements
Recommended mounting height from cooking surface to hood bottom is indicated by “A” in the drawing below. It is recommended to install the hood in this range to optimize performance. It is recommended to not exceed 35” (890mm) for dimension “A” as hoods mounted above this may be difficult to reach for average height users and performance and efficiency will degrade. Hoods mounted below the lower measurement in the “A” recommendation could result in damage due to heat and present a fi re hazard and would avoid any warranty claims attributable to the lower mounting position. If available, also refer to the cooking appliance manufacturer’s height clearance recommendations and adhere to national and local building and fi re codes which supersede any recommendations stipulated herein. 
Preliminary operations: separate upper trellis from lower trellis (3).
Installation on ceiling with/without false ceiling (4).
Secure tie rod supports (5).
Check valve installation (6). Assemble exhaust pipe (7). Assembly chimney and extension (8).
Mount chimney on ceiling (9).
Mount chimney on false ceiling (10).
Remove panel (11) and metallic filters (12). 
Mount motor chamber (13) and tie rods (14). 
Electrical connections (15) and chimney installation (16). 
Installing the carbon-zeolite filter (optional) 

SAFETY INSTRUCTIONS AND WARNINGS
READ AND SAVE THESE INSTRUCTIONS
Installation operations are to be carried
out by skilled and qualified installers in accordance with the instructions in this booklet and in compliance with the regulations in force.
DO NOT use the hood if the power supply cable or other components are damaged: disconnect the hood from the electrical power supply and con-tact the Dealer or an authorized Servicing Dealer for repairs.
Do not modify the electrical, mechanical or functional structure of the equipment.
Do not personally try to carry out repairs or replacements. Interventions carried out by incompetent and unauthorized persons can cause serious damage to the unit or physical and personal harm, not covered by the Manufacturer’s warranty.
WARNING: TO REDUCE THE RISK OF FIRE, ELEC-TRIC SHOCK, OR INJURY TO PERSONS,
OBSERVE THE FOLLOWING:
- Use this unit only in the manner intended by the manufacturer. If you have questions, contact the manufacturer.
- Before servicing or cleaning unit, switch pow-er off at service panel and lock the service dis-connecting means to prevent power from being switched on accidentally.
When the service disconnecting means cannot be locked, securely fasten a prominent warning device, such as a tag, to the service panel.
CAUTION: For General Ventilating Use Only. Do Not Use To Exhaust Hazardous Or Explosive Materials And Vapors.
WARNINGS FOR THE INSTALLER
TECHNICAL SAFETY
Before installing the hood, check the integrity and function of each part. Should anomalies be noted, do not proceed with installation and contact the Dealer.
Do NOT install the hood if an aesthetic (or cosmetic) defect has been detected. Put it back into its original package and contact the dealer.
No claim can be made for aesthetic (or cosmetic) defects once it has been installed.
During installation, always use personal protective equipment (e.g.: Safety shoes) and adopt prudent and proper conduct.
The installation kit (screws and plugs) supplied with the hood is only to be used on masonry walls: in case of installation on walls of a different material, assess other installation options keeping in mind the type of wall surface and the weight of the hood (indicated on spec sheets at the beginning of this manual).
Keep in mind that installations with different types of fastening systems from those supplied, or which are not compliant, can cause electrical and mechanical seal danger.
Do not install the hood outdoors and do not expose it to atmospheric elements (rain, wind, etc.).
All set screws must be checked, and retightened where necessary, before installation.
CAUTION: To Reduce The Risk Of Fire And Electric Shock, Install This Range hood Only With Remote Blower Or Integral Blowers Manufactured by FAL-MEC S.p.A. Models “Remote in-roof Blower”.
ELECTRICAL SAFETY
The installation has to be in accordance with the National Electrical Code, ANSI/NFPA 70 and local codes. Making sure the power is off before at-tempting installation.
The electrical system to which the hood is to be connected must be in accordance with local standards and supplied with earthed connection in compliance with safety regulations in the country of use. It must also comply with lo-cal standards regarding radio antistatic proper-ties.
WARNING: GROUNDING INSTRUCTIONS
This appliance must be grounded. In the event of an electrical short circuit, grounding reduces the risk of electric shock by providing an escape wire for the electric current. This appliance is equipped with a cord having a grounding wire with a grounding plug. The plug must be plugged into an outlet that is properly installed and grounded.
WARNING: Improper grounding can result in a risk of electric shock. Consult a qualified electrician if the grounding instructions are not completely understood, or if doubt exists as to whether the appliance is properly grounded.
Do not use an extension cord. If the power supply cord is too short, have a qualified electrician in-stall an outlet near the appliance.
Before installing the hood, check that the electrical mains power supply corresponds with what is reported on the identification plate located inside the hood.
The socket used to connect the installed equipment to the electrical power supply must be within reach: otherwise, install a mains switch to disconnect the hood when required.
Any changes to the electrical system must be carried out by a qualified electrician.
The maximum length of the flue fastening screws (supplied by the manufacturer) must be 1/2″ (13 mm). Use of non-compliant screws with these instructions can lead to danger of an electrical nature.
Do not try to solve the problem yourself in the event of equipment malfunction, but contact the Dealer or an Authorised Servicing Department for repairs.
When installing the hood, disconnect the equipment by removing the plug or switching off the main switch.
WARNING: To Reduce The Risk Of Fire Or Electric Shock, Do Not Use This Fan With Any Solid-State Speed Control Device
WARNING: NOT SUITABLE FOR USE WITH SOL-ID-STATE SPEED CONTROLS
FUMES DISCHARGE SAFETY
Do no connect the equipment to discharge pipes of fumes produced from combustion (for example boilers, fireplaces, etc.).
Before installing the hood, ensure that all standards in force regarding discharge of air out of the room have been complied with.
To reduce risk of fire and to properly exhaust air, be sure to duct air outside – Do not vent exhaust air into spaces within walls or ceilings or into at-tics, crawl spaces, or garages.
WARNING: TO REDUCE THE RISK OF FIRE, USE ONLY METAL DUCTWORK.
USER WARNINGS
These warnings have been drawn up for your personal safety and those of others. You are therefore kindly asked to read the book-let carefully in its entirety before using the or cleaning the equipment.
The Manufacturer declines all responsibility for any damage caused directly, or indirectly, to per- sons, things and pets as a consequence of failing to comply with the safety warnings indicated in this booklet. It is imperative that this instructions booklet is kept together with the equipment for any future consultation.
If the equipment is sold or transferred to another per-son, make sure that the booklet is also supplied so that the new user can be made aware of the hood’s operation and relative warnings.
After the stainless steel hood has been installed, it will need to be cleaned to remove any residues remaining from the protective coating as well as any grease and oil stains which, if not removed, can cause irreversible damage to the hood surface. To properly clean the unit, the manufacturer recommends using the supplied moist wipes, which are also available sold separately.
Insist on original spare parts.
State of California Proposition 65 Warning
(US only)
WARNING
This product contains chemicals known to the State of California to cause cancer and birth defects or other reproductive harm.
For more information go to www.P65Warnings.ca.gov
INTENDED USE
The equipment is solely intended to be used to extract fumes generated from cooking food in non-professional domestic kitchens: any other use is improper. Improper use can cause damage to persons, things, pets and exempts the Manufacturer from any liability.
The equipment can be used by children over the age of 8 and by persons with reduced physical, sensory and mental abilities, or with no experience or knowledge, as long as they do so under supervision or after having received relative instructions regarding safe use of the equipment and understanding of the dangers connected to it.
Children are not to play with the equipment. Cleaning and maintenance by the user must not be carried out by children without supervision.
USE AND CLEANING WARNINGS
WARNING: TO REDUCE THE RISK OF A RANGE TOP GREASE FIRE:
- Never leave surface units unattended at high settings. Boil overs cause smoking and greasy spillovers that may ignite. Heat oils slowly on low or medium settings.
- Always turn hood ON when cooking at high heat or when flambéing food (i.e. Crepes Suzette, Cherries Jubilee, Peppercorn Beef Flambé’).
- Clean ventilating fans frequently. Grease should not be allowed to accumulate on fan or filter.
- Use proper pan size. Always use cookware appropriate for the size of the surface element.
WARNING:TO REDUCE THE RISK OF INJURY TO PERSONS IN THE EVENT OF A RANGE TOP GREASE FIRE, OBSERVE THE FOLLOWING:
- SMOTHER FLAMES with a close-fitting lid, cookie sheet, or metal tray, then turn off the burner. BE CAREFUL TO PREVENT BURNS. If the flames do not go out immediately, EVACUATE AND CALL THE FIRE DEPARTMENT.
- NEVER PICK UP A FLAMING PAN – You may be burned.
- DO NOT USE WATER, including wet dishcloths or towels – a violent steam explosion will result.
- Use an extinguisher ONLY if:
- You know you have a Class ABC extinguisher, and you already know how to operate it.
- The fire is small and contained in the area where it started.
- The fire department is being called.
- You can fight the fire with your back to an exit. a Based on “Kitchen Fir safety Tips” published by NFPA.
Before cleaning or carrying out maintenance operations, disconnect the equipment by removing the plug or switching off the main switch.
Do not use the hood with wet hands or bare feet.
Always check that all electrical parts (lights, extractor fan) are off when the equipment is not being used.
The maximum overall weight of any objects placed or hung (if applicable) on the hood must not exceed 3lb 5oz (1.5 Kg).
Always supervise the cooking process during the use of deep-fryers: Overheated oil can catch fire.
Do not leave open, unattended flames under the hood.
Do not prepare food over an open flame under the hood.
Never use the hood without the metal anti-grease filters: in this case, grease and dirt will deposit in the equipment and compromise its operation.
Accessible parts of the hood can be hot when used at the same time as the cooking appliances.
Do not carry out any cleaning operations when parts of the hood are still hot.
There can be a risk of fire if cleaning is not carried out according to the instructions and products indicated in this booklet.
Disconnect the main switch when the equipment is not used for long periods of time.
If other appliances that use gas or other fuels are being used at the same time (boiler, stove, fireplaces, etc.), make sure the room where the fumes are discharged is well-ventilated, in compliance with the local regulations.
INSTALLATION
Intended only for qualified personnel
Before installing the hood, carefully read the section ‘SAFETY INSTRUCTIONS AND WARNINGS’.
TECHNICAL FEATURES
The technical specifications are exhibited on the labels located inside the hood.
POSITIONING
The minimum distance between the highest part of the cooking equipment and the lowest part of the hood is indicated in the installation instructions.
Should the instructions for the gas cooker specify a greater distance, this must be taken into consideration.
Do not install the hood outdoors and do not expose it to outdoor environment (rain, wind, etc.).
ELECTRICAL CONNECTION
(Intended only for qualified personnel)
Disconnect the equipment from electrical mains power supply be-fore carrying out any operations on the hood.
Ensure that the wires inside the hood are not disconnected or cut: in the event of damage, contact your nearest Servicing Department. Refer to qualified personnel for electrical connections.
Connection must be carried out in compliance with the provisions of law in force.
Before connecting the hood to the electrical mains power supply, check that:
- voltage supply corresponds with what is reported on the data plate located inside the hood;
- the electrical system is compliant and can withstand the load (see the technical specifications located inside the hood);
- the power supply plug and cable do not come into contact with temperatures exceeding 158°F (70 °C);
- the power supply system is effectively and properly connected to earth in compliance with regulations in force;
- the socket used to connect the hood is within reach.
In case of:
- Devices fitted with cables without a plug: the type of plug to use is a ”standardised” one. The wires must be connected as follows: yellow-green for grounding, blue for neutral and brown for the live. The plug must be connected to an adequate safety socket.
- Fixed equipment not provided with a power supply cable and plug, or any other device that ensures disconnection from the electrical mains, with an opening gap of the contacts that enables total disconnection in overvoltage category III conditions.
Said disconnection devices must be provided in the mains power supply in compliance with installation regulations.
The cable must not be cut off by the switch.
The Manufacturer declines all responsibility for failure to comply with the safety regulations.
FUMES DISCHARGE
EXTERNAL EXHAUST HOOD (SUCTION)
In this version the fumes and vapors are discharged outside through the exhaust pipe.
To this end, the hood outlet fitting must be connected via a pipe, to an external output.
The outlet pipe must have:
- a diameter not less than that of the hood fitting.
- a slight slope downwards (drop) in the horizontal sections to prevent condensation from flowing back into the motor.
- the minimum required number of bends.
- the minimum required length to avoid vibrations and reduce the suction performance of the hood.
- You are required to insulate the pipes if it passes through cold environments. In the presence of motors with 500 CFM or higher, a check valve is present to prevent external air flowing back.
HOOD WITH INTERNAL RECIRCULATION (FILTERING)
In this model, the air passes through the charcoal filters to be purified and recycled in the environment.
Ensure that the active carbon filters are assembled into the hood, if not, install them as indicated in the assembly instructions.
In this version the check valve must not be assembled: remove it if it is on the air outlet fitting of the motor.
ASSEMBLY INSTRUCTIONS
Intended only for qualified personnel
The hood can be installed in various configurations.
The generic assembly steps apply to all installations; for each case, follow the specific steps provided for the required installation.
OPERATION
WHEN TO TURN ON THE HOOD?
Switch on the hood at least one minute before starting to cook to direct fumes and vapors towards the suction surface.
After cooking, leave the hood operating until complete extraction of all vapors and odors. By means of the Timer function, it is possible to set auto switch-off function which will allow the hood to turn off automatically after 15 minutes of operation.
WHICH SPEED IS TO BE SELECTED?
1st speed: maintains the circulation of clean air with low electricity consumption. 2nd speed: normal conditions of use.
3rd speed: presence of strong odors and vapors.
4th speed: rapid disposal of odors and vapors.
WHEN SHOULD THE FILTERS BE WASHED OR REPLACED?
The metal filters must be cleaned every 30 hours of operation.
For further details refer to the “MAINTENANCE” section.
ELECTRONIC PUSHBUTTON PANEL
![]() | Motor ON/OFF | |
+ | Increase speed from 1 to 4 Speed 4 is only active for a few minutes, then speed 3 activates. | The speeds are indicated by the LEDs on the keys:
(“+” LED flashing) |
– | Reduce speed from 4 to 1 | |
![]() | Light on/off | |
![]() | TIMER (red LED flashing) Auto switch-off after 15 min. The function deactivates (red LED off ) if:
FILTER ALARM (red LED steady on with ( | |
![]() | ||
If the pushbutton panel is completely inactive, before contacting the Technical assistance service, disconnect power temporarily to the appliance (about 5“), possibly by acting on the main switch, to restore normal operation.
If this measure has no effect, contact the Technical assistance service.
MAINTENANCE
Before cleaning or carrying out maintenance operations, disconnect the equipment by removing the plug or switching off the main switch.
Do not use detergents containing abrasive, acidic or corrosive substances or abrasive cloths.
Regular maintenance guarantees proper operation and performance over time. Special attention is to be paid to the metal anti-grease filters : frequent cleaning of the filters and their supports ensures that no flammable grease is accumulated.
CLEANING OF EXTERNAL SURFACES
You are advised to clean the external surfaces of the hood at least once every 15 days to prevent oily substances and grease from sticking to them. To clean the brushed stainless steel hood, the Manufacturer recommends using “Magic Steel” wipes.
Alternatively and for all the other types of surfaces, it can be cleaned using a damp cloth, slightly moistened with mild, liquid detergent or denatured alcohol. Complete cleaning by rinsing well and drying with soft cloths.
Do not use too much moisture or water around the push button control panel and lighting devices in order to prevent humidity from reaching electronic parts.
The glass panels can only be cleaned with specific, non-corrosive or non-abrasive detergents using a soft cloth.
The Manufacturer declines all responsibility for failure to comply with these instructions.
CLEANING OF INTERNAL SURFACES
Do not clean electrical parts, or parts related to the motor inside the hood, with liquids or solvents.
For the internal metal parts, see the previous paragraph.
METAL ANTI-GREASE FILTERS
It is advised to frequently wash the metal filters (at least once a month) leaving them to soak in boiling water and cleaning solution for 1 hour, taking care not to bend them.
Do not use corrosive, acid or alkaline detergents.
Rinse them well and wait for them to be completely dry before reassembling them.
Washing in a dishwasher is permitted, however, it may cause the filter material to darken: to reduce the possibility of this problem from happening, use low-temperature washes (131°F / 55°C max.).
To extract and insert the metal anti-grease filters see the assembly instructions.
CARBON AND ZEOLITE FILTERS (OPTIONAL) KACL.961
In normal use conditions, we recommend regenerating the zeolite-carbon filter every 9 months and replacing it after 18 months. Simply place it in a domestic oven at a temperature of 200°C for approximately 1 hour to regenerate it.
Wait until the filter cools before reassembling it.
LIGHTING
The range hood is equipped with high efficiency, low consumption LED spot-lights with an extremely long life-span under normal use conditions.
Should the LED spotlight need to be replaced, proceed as shown in the figure.
DISPOSAL AFTER END OF USEFUL LIFE
The crossed-out trash or refuse bin symbol on the appliance means that the product is WEEE, i.e. “Waste electrical and electronic equipment”, accordingly it must not be disposed of with regular unsorted waste (i.e. with ”mixed household waste”), but it must be disposed of separately so that it can undergo specific processing for its re-use, or a specific treatment, to remove and safely dispose of any substances that may be harmful to the environment and remove the raw materials that can be recycled. Proper disposal of these products contributes to saving valuable resources and avoid potential negative effects on personal health and the environment, which may be caused by inappropriate disposal of waste.
You are kindly asked to contact your local authorities for further information regarding the designated waste collection points nearest to you. Penalties for improper disposal of such waste can be applied in compliance with national regulations.
INFORMATION ON DISPOSAL IN EUROPEAN UNION COUNTRIES
The EU WEEE Directive was implemented differently in each country, accordingly, if you wish to dispose of this appliance we suggest contacting your local authorities or dealer to find out what the correct method of disposal is.
INFORMATION ON DISPOSAL IN NON-EUROPEAN UNION COUNTRIES
The crossed-out trash or refuse bin symbol is only valid in the European Union: if you wish to dispose of this appliance in other countries, we suggest contacting your local authorities or dealer to find out what the correct method of disposal is.
WARNING!
The Manufacturer reserves the right to make changes to the equipment at any time and without prior notice. Printing, translation and reproduction, even partial, of this manual are bound by the Manufacturer’s authorization.
Technical information, graphic representations and specifications in this manual are for information purposes and cannot be divulged.
This manual is written in Italian. The Manufacturer is not responsible for any transcription or translation errors.
Falmec S.p.A
via dell’Artigianato, 42 z.i. 31029 Vittorio Veneto Treviso — Italy
[email protected] falmec.com
Codice / Code Matricola / Serial Number
























