
KS 18-1XM Diesel Power Plant In Noise-Absorbing Housing
Instruction Manual
KS 18-1XM Diesel Power Plant In Noise-Absorbing Housing
| KS 18-1XM KS 18-1YE KS 18-1DE-G KS 25-3LM | KS 33-3XM KS 33-3YE KS 33-3DE-G |
INTRODUCTION
Thank you for your purchase of diesel power plant in noise-absorbing housing Könner & Söhnen® HEAVY DUTY Silent Diesel Generator series. This manual contains a brief description of safety, use and debugging. More information can be found on the official manufacturer’s website in the support section: konner-sohnen.com/manuals You can also go to the support section and download the full version of the manual by scanning the QR code, or on the website of the official importer of Könner & Söhnen® products: www.konner-sohnen.com
http://ks-power.de/betriebsantleitungen/
We care about the environment, therefore, we consider it expedient to save paper and leave in print a short description of the most important sections.
Be sure to read the full version of the manual before getting started! ![]()
Manufacturer reserves the right to make alterations into the generators, which may not be reflected in this manual. Pictures and photos of the product may vary from its actual appearance. At the end of this manual, You may find contact information which you are free to use in case of any issues occurrence. All data, specified in this operation manual is the most up to date for the moment of its publishing. The current list of service centers you can find at the website of official importer: www.konner-sohnen.com
ATTENTION – DANGER! ![]()
Failure to follow the recommendations marked with this sign may lead to serious injury or death of the operator or third parties.
IMPORTANT! ![]()
Useful information while operating the machine.
SAFETY INFORMATION
Do not use the generator in rooms with poor ventilation or in conditions of excessive humidity. Do not place the generator in water or on moist soil. Do not expose the generator to rain, snow, as well as to direct sunlight for a long time. Place the generator on a flat, hard surface, away from flammable liquids/gases (at a minimum distance of 1 m). Install the generator at a distance of not less than 1 m from the front control panel and not less than 50 cm on each side, including the upper part of the generator. Keep unauthorized persons, children, and animals away from work area. Wear safety shoes and gloves.
ATTENTION – DANGER! ![]()
When installing the generator, pay attention to the capacity of electrical appliances and their starting current, which may be several times higher than the rated cur-rent. The generator cannot run in overload conditions when starting consumers with an inrush current higher than the generator’s maximum output.
ATTENTION – DANGER! ![]()
Pay attention to the number of phases of the generator and the electrical system. A three-phase generator is only suitable for three-phase power consumers. Never con-nect a three-phase generator to a three-phase home network if there are no three-phase power consumers.
1.1 ELECTRICAL SAFETY
ATTENTION – DANGER! ![]()
The device generates electricity. Follow safety precautions to avoid electric shock.
IMPORTANT! ![]()
The generator should be used as an IT or TN system based on the application. Earthing and additional protective measures such as insulation monitoring or pro-tection against accidental contact (residual current device) must be provided based on the application and the system used.
The generator produces electricity that may lead to an electric shock while neglecting compliance regulations. All connecting the generator to the network must be made by certified electrician in accordance with all electrical rules and regulations. Connect the generator to the protective ground before operation. Wires with damaged or spoiled insulation should be replaced. You should also replace worn, damaged or rusty contacts.
IMPORTANT! ![]()
It is forbidden to connect to the generator devices which can generate current pulses and direct energy towards the generator (voltage stabilizers, devices with electronic brakes, on-grid and hybrid inverters, etc.).
IMPORTANT! ![]()
Using device for other purposes deprives the right for free warranty.
ATTENTION – DANGER! ![]()
Be careful. Do not operate the generator, if you are tired, under the influence of drugs or alcohol. Inattention may cause a serious injury.
ATTENTION – DANGER! ![]()
The generator runs on automotive diesel fuel and conform to European quality standards not lower than Euro V emission standard. The generator runs on automotive diesel fuel. Do not use gasoline, kerosene, fuel oil as fuel. Diesel fuel type should correspond the operating season.
The use of low-grade fuel can lead to a degradation of the manufacturer’s declared specifications or to engine failure. Do not add any chemical additives to diesel fuel and do not mix diesel fuel with used engine oil or fuel oil.
| Diesel fuel characteristics | Region of use |
| EN590:96 | European Union |
| BS 2869-A1 or A2 | Great Britain |
Keep the fuel tank and refueling accessories clean and neat and ensure that no foreign objects/debris get into the fuel tank when refueling the generator. Sulfur content should not exceed 0.5% (less than 0.05% is recommended). Sediment and water content in fuel should not exceed 0.05%. A cetane number of at least 45 must be ensured. For example, biodiesel fuel which is known under the B5 brand, is permitted. This type fuel should contain no more than 5% of fatty acid methyl esters (FAME) and 95% of mineral diesel fuel. Read more about the requirements for biodiesel in the full web version: konner-sohnen.com/manuals
ATTENTION – DANGER! ![]()
To prevent electric shock and avoid damage to your electric devices and generator, simultaneous switching on of three and one phase circuit breaker is prohibited!
ENGINE EMERGENCY STOP BUTTON
Do not use the engine emergency stop button to normally stop the power plant! It should only be used if absolutely necessary.
- During normal engine operation, the button must be in the extended position.
- Pressing the emergency stop button will cause the engine stop.
- The engine will not start if this button is locked. To unlock the button, turn it clockwise.

IMPORTANT! ![]()
The engine emergency stop button is intended for emergency situations only.
ATTENTION – DANGER! ![]()
Do not start the power plant until the problem caused the emergency shutdown is identified and eliminated.
1.2 FIRE SAFETY
Each time you start the power plant, inspect the battery cables to prevent sparking, which can lead to a fire. The batteries must be kept clean. Use the recommended cables and connections during power plant operation. Fuel and fumes associated with the operation of generator equipment can be flammable and potentially explosive. Safety regulations require that fully charged fire extinguishers be at hand.
ATTENTION – DANGER! ![]()
Always start and use the diesel generator set in a well-ventilated area. If the station is located indoors, take its exhaust outside. The engine exhaust contains combustion products harmful to health!
1.3 DESCRIPTION OF SAFETY SYMBOLS WHEN OPERATING THE GENERATOR ![]()
- Be careful when operating the device! Observe the safety instructions in this manual.
- Operate the generator only in well-ventilated indoor spaces or outdoors. Exhaust gases contain СО2, whose vapors are life threatening.
- Do not operate or store the device in highhumidity environments.
- Do not smoke while operating the generator!
- The device generates electricity. Observe safety precautions to avoid electric shock.
- Read this owner’s manual carefully before operating the device.
- Do not touch the generator with wet or dirty hands.
- Observe fire safety regulations, do not operate the generator near open flame.
ATTENTION – DANGER! ![]()
Electrolyte is an acid. The electrolyte can cause burns.
Do not allow electrolyte to get on skin and into eyes.
Always wear safety glasses during battery maintenance.
Wash your hands after touching the batteries or their connections. It is recommended to use mittens.
INSTALLATION AND USE OF DIESEL POWER PLANT
According to the safety regulations, diesel power plants must only be installed, maintained and repaired by a service dealer or other competent, qualified electrician or installation technician who has information about the standards, regulations and requirements for the arrangement of diesel power plants.
The operator must be a qualified specialist in working with power plants.
ATTENTION – DANGER! ![]()
It is necessary to take into account the restriction of access to the power plant by unauthorized persons.
Diesel power plants can be installed in a specially equipped place both indoors and outdoors.
For any method of location, it is necessary to provide:
- grounding of the power plant;
- normal, unhindered flow of incoming air and appropriate removal of carbon monoxide. In any case, do not block the air intake and exhaust, as this has a serious impact on power plant operation (See Figure 2)
POWER PLANT VENTILATION GRILLES

- Fresh air intake hole on the side of the power plant.
- Fresh air intake holes on the casing door.
- Hot air outlet opening.
Determine if the engine will run indoors. Do not allow the power plant to operate in a room where flammable gases may be drawn into the air intake system.
IMPORTANT! ![]()
Never cover the openings of the fence or drain air that passes through the electrical protective cover of the power plant.
EARTHING BOLT
When putting a power plant into operation, an obligatory prerequisite is its grounding. Grounding is the possible protection against electric shock in case of emergency.
Regarding the correct equipment of the ground loop be sure to consult with a certified electrician or an authorized dealer.
WARNING! ![]()
Power plant grounding is not a guaranteed protection against electric shock!
2.1 INDOOR POWER PLANT PLACEMENT CONDITIONS
FOUNDATION AND VIBRATION ISOLATION:
- When installing a diesel power plant indoors, check the relevant building codes for the building structure and its foundation regarding the possibility of such installation. They must withstand the total weight of the power plant, the weight of additional equipment and fuel reserves, as well as withstand the load that occurs during the plant operation.
- Premise floor must be prepared accordingly, smooth, withstand the total load and have anti-vibration properties.
- If moisture can enter the room where the power plant will be built, a reinforced concrete foundation should be equipped at a level higher than the floor, the height of which should exceed the possible level of flooding.
VENTILATION:
Special attention should be paid to the free space around the power plant and sufficient access to fresh air (see fig. 2). The room must be of sufficient size and have a free flow of air.
The power plant must be placed at a considerable distance from the walls to ensure:
- free access to all its parts for performing maintenance or repair work;
- sufficient ventilation and fresh air supply to cool the engine and remove carbon monoxide.
IMPORTANT! ![]()
The engine exhaust contains combustion products that are harmful to health, be sure to remove power plant exhaust outside.
Usually, the opening for fresh air access is located in the lower part of the premise wall, in in this case, air will circulate around the entire power plant.
WARNING! ![]()
void direct sunlight to avoid overheating the power plant.
2.2 CONDITIONS FOR DIESEL POWER PLANT PLACING OUTSIDE
When installing a diesel power plant outside, the following must be provided:
- Protection from natural factors such as rain, snow, ice, precipitation with wind, flood, direct sunlight, freezing temperatures or excessive heat.
- Protection against air-borne pollutants such as dust, smoke, oil mist, steam, etc.
- Protection from being hit by falling objects such as trees or poles.
In this case, a necessary condition is the arrangement of a protective canopy, the distance to which must be at least 2 meters from the top of the power plant.
FOUNDATION AND VIBRATION ISOLATION:
When installing a diesel power plant outside, a properly prepared reinforced concrete foundation must provide a rigid support, prevent vibration and withstand the load that occurs during the operation of the plant. The foundation must have a depth of at least 300 mm, and a width and length greater than 400 mm for the size of the power plant (200 mm on each side). The foundation should be placed 200 mm above ground level.
The total height of the foundation must be at least 30 cm.
The foundation should be placed 20 cm above ground level.
The foundation should be 20 cm wider than the perimeter of the power plant on each side
VENTILATION:
When choosing an installation location, please note that the power plant is a source of hot gases.
The power plant installed outside must be located at a distance of at least 1.5 meters from the nearest building. The power plant must be located in accordance with the rules and local legislation.
WARNING! ![]()
When using a power plant installed outdoors in the cold season for a reliable start, it is necessary to provide for the presence of engine heating system.
MAIN OVERVIEW

- Soundproof housing
- Control panel
- Emergency switch engine
- Coolant filling hole
- Exhaust gas outlet
- Information plate with the serial number of generator station and its technical data
- Ventilation grilles
- Holes for vehicle fasteners
- Access door to the control panel and internal elements of the power plant is locked with a key

- Engine
- Fuel tank opening
- Air filter
- Fuel filter
- Oil dipstick
- The oil drain hole
- Oil filling hole cover
- Alternator
- Exhaust pipe
- Engine cooling radiator
- Engine cooling fan
- Anti-vibration engine cushion
- Noise – proof, moisture-proof, metal, all-weather, vandal-proof casing (optionalgalvanized)
COMPONENTS OF SET:
- Diesel power plant
- Operating instructions
IMPORTANT! ![]()
Manufacturer reserves the right to make changes and/or improvements in design, components set and technical attributes without notice and without incurring obligation. The pictures in this manual are schematical and may not match the parameters of original product.
SPECIFICATIONS
| Model | KS 18-1XM | KS 18-1YE | KS 18-1DE-G |
| Number of phases | single-phase | single-phase | single-phase |
| Voltage, V | 230 | 230 | 230 |
| Max Power, kVA | 17.6 | 17.6 | 17.6 |
| Nominal Power, kVA | 16 | 16 | 16 |
| Power factor, cosφ | 1.0 | 1.0 | 1.0 |
| Current, A (max.) | 76.52 | 76.52 | 76.52 |
| Frequency, Hz | 50 | ||
| Insulation class | H | ||
| ENGINE CHARACTERISTICS | |||
| Engine type | diesel powered four-cylinder, four-stroke water-cooled | ||
| Engine model | C490BD | YSD490D | BFM3 G1 |
| Engine speed, rpm | 1500 | ||
| Output power, kW | 24 | 21 | 20 |
| Engine cylinder volume cm3 | 2600 | 2540 | 3170 |
| Engine speed monitoring system | mechanical | electronic | electronic |
| Engine heating | equipped | ||
| GENERAL CHARACTERISTICS | |||
| Alternator model | DPC184F | DPC184F | DPC184F |
| Controller | Datakom D300+2g | ||
| Fuel tank volume, l | 53 | 76 | 55 |
| Fuel consumption at 50% of load*, l/h | 3.59 | 3.7 | 3.3 |
| Crankcase volume, l | 6.5 | 8 | 7.5 |
| Coolant volume, l | 5.3 | 8 | 15.8 |
| Noise level Lpa (7m)/Lwa, dB | 72/97 | 72/97 | 72/97 |
| Housing | noise – proof, moisture-proof, metal, all-weather, vandal-proof – | ||
| Housing coating | powder coating | powder coating | electroplating |
| Battery, Ah | 85 | 85 | 85 |
| Battery charger | built-in | ||
| ATS output | + | + | + |
| Power output controller | AVR | ||
| Protection class | IP24 | ||
| Outlets | – | 1*32А/230V 2*16А/230V | 1*32А/230V 2*16А/230V |
| Net dimensions (LxWxH), mm | 1850х740х1000 | 2160х950х1250 | 2160х950х1250 |
| Net weight, kg | 732 | 975 | 852 |
Nominal voltage tolerance – max. 5% | |||
* Fuel consumption depends on many factors, such as load, fuel quality, season, altitude, technical condition of the generator.
| Model | KS 25-3LM | KS 33-3XM | KS 33-3YE | KS 33-3DE-G | ||||
| Number of phases | three-phase | three-phase | three-phase | three-phase | ||||
| Voltage, V | 230 | 400 | 230 | 400 | 230 | 400 | 230 | 400 |
| Max Power, kVA | 25.3 | 33 | 33 | 33 | ||||
| Nominal Power, kVA | 23 | 30 | 30 | 30 | ||||
| Power factor, cosφ | 1.0 | 0.8 | 1.0 | 0.8 | 1.0 | 0.8 | 1.0 | 0.8 |
| Current, A (max.) | 36.45 | 47.63 | 47.63 | 47.63 | ||||
| Frequency, Hz | 50 | |||||||
| Insulation class | H | |||||||
| ENGINE CHARACTERISTICS | ||||||||
| Engine type | diesel powered four-cylinder, four-stroke water-cooled | |||||||
| Engine model | DPKM490BD | A498BD | Y4100D | BFM3 G2 | ||||
| Engine speed, rpm | 1500 | |||||||
| Output power, kW | 23 | 32 | 32 | 29 | ||||
| Engine cylinder volume cm3 | 2545 | 3170 | 3707 | 3168 | ||||
| Engine speed monitoring system | mechanical | mechanical | electronic | electronic | ||||
| Engine heating | equipped | |||||||
| GENERAL CHARACTERISTICS | ||||||||
| Alternator model | DPC184E | DPC184G | DPC184G | DPC184G | ||||
| Controller | Datakom D300+2g | |||||||
| Fuel tank volume, l | 57 | 75 | 75 | 57 | ||||
| Fuel consumption at 50% of load*, l/h | 4.1 | 4.9 | 5.1 | 3.7 | ||||
| Crankcase volume, l | 5.5 | 6.5 | 11 | 7.5 | ||||
| Coolant volume, l | 5 | 5.73 | 8 | 15.8 | ||||
| Noise level Lpa (7m)/Lwa, dB | 72/97 | 72/97 | 72/97 | 72/97 | ||||
| Housing | noise – proof, moisture-proof, metal, all-weather, vandal-proof | |||||||
| Housing coating | powder coating | powder coating | powder coating | electroplating | ||||
| Battery, Ah | 85 | 85 | 2×85 | 85 | ||||
| Battery charger | built-in | |||||||
| ATS output | + | + | + | + | ||||
| Power output controller | AVR | |||||||
| Protection class | IP24 | |||||||
| Outlets | – | – | 1*32А/400V 1*16А/400V 1*16А/230V | 1*32А/400V 1*16А/400V 1*16А/230V | ||||
| Net dimensions (LxWxH), mm | 1700x780x1000 | 1850x780x1000 | 2260х950х1250 | 2160x950x1250 | ||||
| Net weight, kg | 680 | 739 | 978 | 856 | ||||
| Nominal voltage tolerance – max. 5% | ||||||||
The optimum operating conditions are ambient temperature of 17°C – 25°C, barometric pressure of 0.1 MPa (760 mm Hg), and relative humidity of 50 – 60%. Under such ambient conditions, the generator can guarantee maximum performance in terms of the stated specifications. In case of deviations from the above ambient values, the performance of the generator can be different.
If the power plant is used as the main power source, the total long-term load must not exceed 80% of the rated power of the station.
TERMS OF DIESEL POWER PLANT USE
Before starting the pre-operation test, make sure that the power plant is on a flat, horizontal surface and the circuit breaker is in the “OFF” position.
PRE-LAUNCH CHECKS (FOR ALL MANAGEMENT SYSTEMS)
To ensure maximum service life of the power plant, always inspect it before starting up.
To do this, you need to check:
- Fasteners and belts. Repair or replace worn belts, loose fasteners and connections.
- Protective covers of the fan and exhaust system must be securely fastened.
- Keep the engine and all components of the station clean.
- If you notice a leak of coolant, grease, or fuel, find the source and fix the problem. Do not use the generator until the problem is resolved.
- Accumulation of grease and/or oil on the engine is a fire hazard. Delete them. Do not allow contact with electronic/electrical components; if possible, provide for their protection.
- Make sure that the engine cooling system pipes are securely and properly installed. Check if there are any cracks or liquid leaks on them.
- Check the engine oil level and coolant level – top up if necessary.
- Make sure that the liquids specified in this manual are used.
WARNING:
- To avoid injury or burns, do not remove the radiator cap or any other cooling system component when the station is hot or running.
- Add coolant to the radiator slowly so that the air has time to escape, to avoid the formation of airlock in the engine. Always top up the liquid when the engine is cold.
- Check the condition and tension of the engine cooling fan belts – tighten them if necessary. Before tightening the fan belts, disconnect the negative wire (-) from the battery to avoid accidental engine start.
- Check the battery terminals for corrosion and clean them if necessary.
- Check the control panel and power plant for dust and dirt – clean if necessary.
- Clear the space around the power plant of any dangerous objects that may interfere with the operator or may cause injury. Make sure that the cooling air intakes are clean.
- Periodically drain condensate from the sump tanks of the exhaust system, if they are installed.
- If the liquid collection tray is provided for by the support frame structure, it must be inspected, and the accumulation of liquid (fuel, oil, coolant, rainwater or condensate) must be drained and disposed of in accordance with local norms and regulations.
- Make sure that the main power switch of the alternator is in the “OFF” position.).
IMPORTANT! ![]()
Before starting the device, keep in mind that the total power of connected consumers does not exceed the rated power of the power plant.
TYPES OF CONSUMERS AND INRUSH CURRENT
Consumers (electrical devices connected to the generator) are divided into active and reactive ones. Active ones are those, which energy is converted into heat (heating devices).
Reactive are all consumers with electric motor. When you run the engine, starting currents occur briefly, the size of which depends on engine design and purpose. Please consider those starting currents when choosing a generator.
The value of the resulting inrush currents should be taken into account when choosing a generator station.
Most electric tools have an inrush current ratio of 2-3. This means that when such tools are turned on, generator equipment is required, the power of which is 2-3 times greater than the power of the connected load. But there are some consumers of electricity in which the inrush current coefficient is 5-7 times greater than the rated power, carefully read the instructions for your devices and follow the recommendations for connection.
BEFORE STARTING
The station may contain remnants of technical fluids after passing testing and configuration work.
IMPORTANT! ![]()
Each time you start the generator, be sure to check oil and fuel level.
BE SURE TO MAKE THE FOLLOWING PREPARATIONS FOR OPERATION BEFORE STARTING THE STATION’S OPERATION:
- Check for fuel in the tank. The fuel level is displayed on the fuel level sensor on the control panel.
- Check the oil level (fig. 5).
a) Remove the oil dipstick and wipe it clean.
b) Insert the dipstick.
c) Pull out again and check the oil level on the dipstick mark.
d) Oil level should be in the middle between the MAX and MIN labels. - Check the coolant level. Before starting the power plant for the first time, pour the coolant through the hole at the top of the plant (fig. 3, Item 4). Replace the coolant every 2 years, unless otherwise specified in the fluid specification. If you have any questions, please contact an authorized representative of the manufacturer or an authorized dealer in your area.
- Check the battery charge, if necessary, charge the battery tank with an external charger (not included), or let the power plant run for more than an hour at a load of at least 30% at the first start-up.

IMPORTANT! ![]()
Diesel fuel type should correspond the operating season.
WARNING! ![]()
If the station is in automatic mode at startup, the battery is recharged from the built-in the charger.
If the power plant is idle for a long time with the external power supply turned off, it is recommended to recharge the battery from an external charger every 3 months.
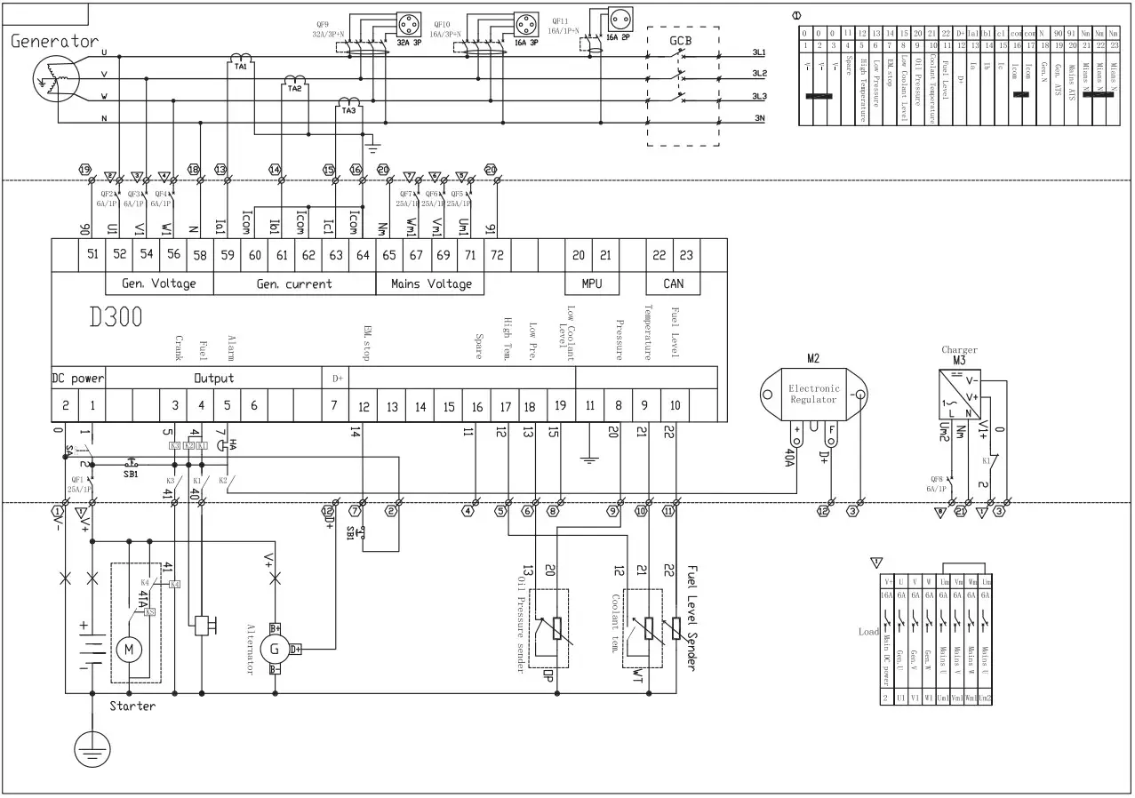
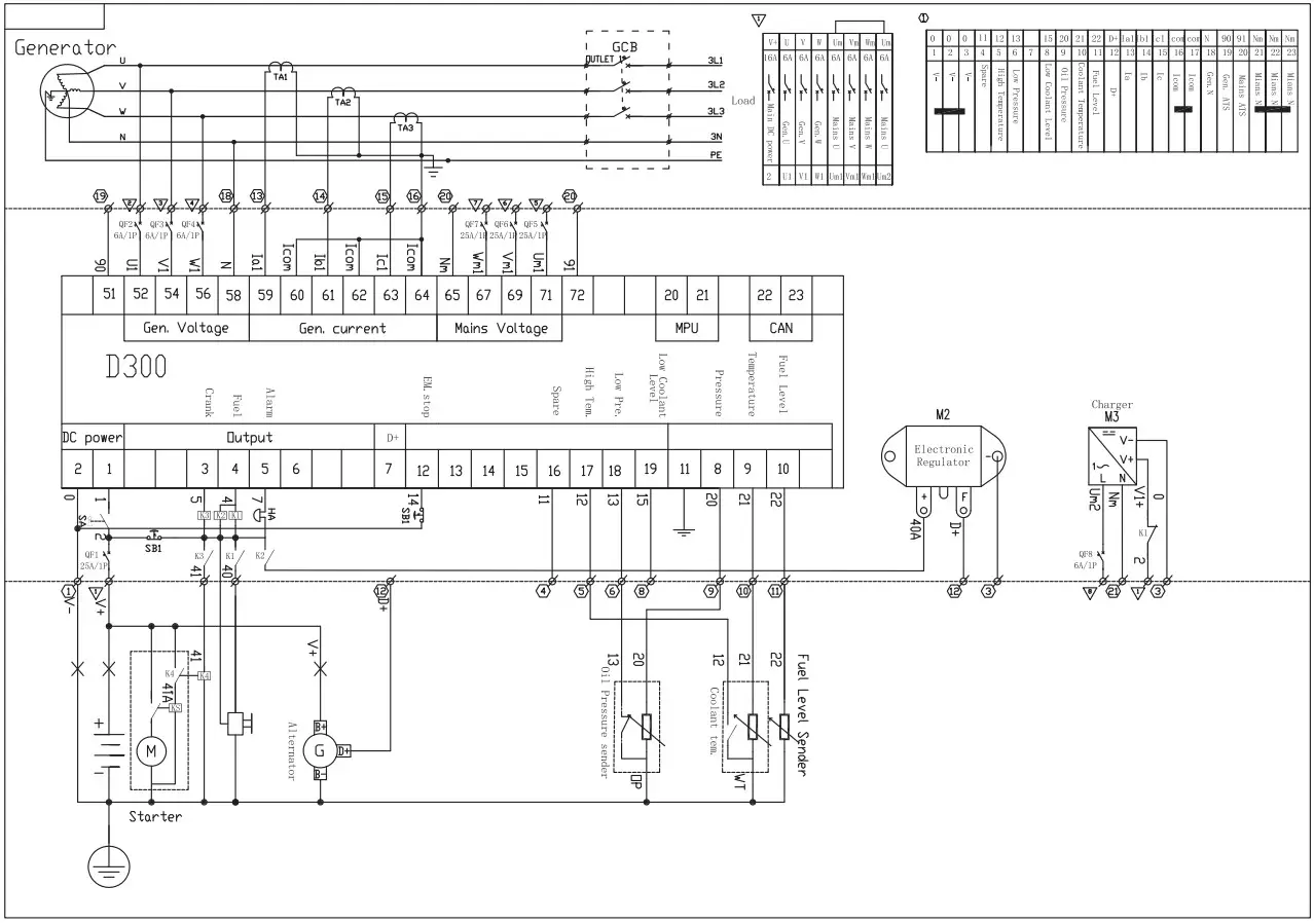
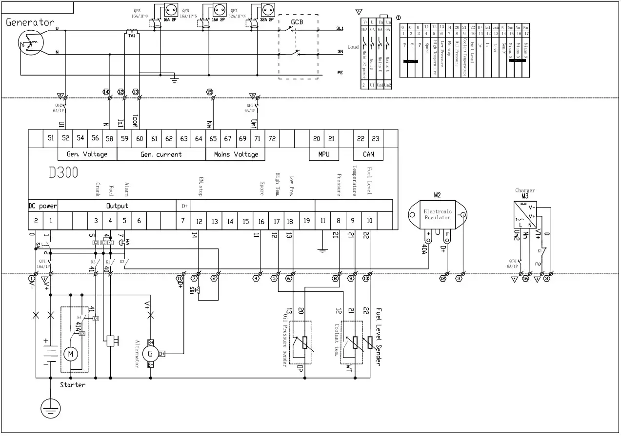
CONTROL PANEL

- Next screen in the same group. LAMP TEST if held pressed
- Fault condition indicators
- Graphic LCD screen
- Previous display group
- Next display group
- Previous screen in the same group. ALARM Mute
- Mimic Diagram(sysem status)
- STOP mode button
- AUTO mode button
- RUN mode button
- TEST mode button
7.1 DESCRIPTION OF TOUCH BUTTONS OF CONTROL UNIT
| Button | Function | Description |
![]() | TEST MODE | Conducts testing of the generator set. Selects TEST mode. The genset runs and takes the load. |
![]() | STARTING THE GENERATOR | Start the generator in manual mode or in test mode. Selects RUN mode. |
![]() | AUTOMATIC MODE | Pressing this button puts the controller in automatic control mode. Selects AUTO mode. The genset runs when necessary and takes the load. |
![]() | STOP / CANCEL | Stop the power plant operation in automatic / manual mode; reset the emergency message; press this button again to stop the power plant immediately. Selects OFF mode. The genset stops. |
7.2 DISPLAY SCREEN ORGANIZATION
The unit measures a large number of electrical and engine parameters. The display of the parameters is organized as PARAMETER GROUPS and items in a group.
Navigation between different groups are made with
and
buttons.
Each depression of the
button will cause the display to switch to the next group of parameters. After the last group the display will switch to the first group.
Each depression of the
button will cause the display to switch to the previous group of parameters. After the first group the display will switch to the last group.
Navigation inside a groups is made with
and
buttons.
Each depression of the
button will cause the display to switch to the next parameter in the same group.
After the last parameter the display will switch to the first parameter.
Each depression of the
button will cause the display to switch to the previous parameter in the same group. After the first parameter the display will switch to the last parameter.
7.3 LED LAMPS
- Service request indicator
- Warning indicator
- Shutdown alarm indicator
- Mains available led
- Mains сontactor ON led
- Genset сontactor ON led
- Genset available led
- STOP mode indicator
- AUTO mode indicator
- RUN mode indicator
- TEST mode indicator
STATUS LEDS:
ALARM: Turns on when a shutdown alarm or loaddump condition exists.
WARNING: Turns on when a warning condition exists
SERVICE REQUEST: Turns on when at least one of the service counters has expired.
MODE LEDS: Each led turns on when the related mode is selected, either locally or remotely.
MIMIC DIAGRAM LEDS:
MAINS AVAILABLE: This led turns GREEN when all mains phase voltages and the mains frequency are within limits. If enabled, the mains phase rotation order must be also right. When any digital input is defined as Remote Start, this led will reflect the status of the input. When a Simulate Mains signal is present, then mains status will become “available”. When a Force to Start signal is present, then the mains status will become “not available”.
MAINS CONTACTOR ON: Turns on when the mains contactor is activated.
GENSET CONTACTOR ON: Turns on when the genset contactor is activated.
GENSET AVAILABLE: This led turns on when all genset phase voltages and the genset frequency are within limits. If enabled, the genset phase rotation order must be also right.
WARNING! ![]()
If a Remote START input is defined, then the MAINS led will reflect the input status. Simulate MAINS and FORCE to START signals will also affect this led.
STARTING TO WORK
Before starting the engine, make sure that the rated power of power consumers matches with the power of generator. Do not exceed the nominal power of the generator. Do not connect the device before starting the engine!
If the power plant is used as the main power source, the total long-term load must not exceed 80% of the rated power of the station.
WARNING! ![]()
It is forbidden to load the power plant above the max. power!
WARNING! ![]()
Do not connect the load to the power plant before starting the engine and entering operating mode.
ATTENTION – DANGER! ![]()
Standby generators should not run continuously (e.g. by adding fuel to the tank or connecting a large fuel tank) or longer than recommended: 4-6 hours for LPG/gasoline or gasoline generators (depending on load).
This material is for informational purposes only and does not constitute a manual for installing the equipment or connecting it to the mains, but we strongly recommend that you read the instructions below. Equipment connection must always be carried out by a certified electrician responsible for the installation and electrical connection of the equipment according to local laws and regulations. The manufacturer assumes no liability for improper connection of the equipment or for any material or physical damage that may result from improper installation, connection or operation of the equipment.
AUTOMATIC MODE
- Press
to activate the automatic power plant control mode. The LED indicator that lights up next to the button indicates the selected control mode. - The power plant is controlled in a pre-programmed automatic mode. When the parameters of the external electrical network deviate from the norm (increased or decreased voltage, increased or decreased frequency, phase loss, incorrect phase sequence), the monitoring timer turns on and the display starts counting down. If during this period of time, the parameters of the external electrical network are restored to normal, the signal for automatic engine start is canceled.
- After receiving the start signal, the start delay timer starts, preheating will occur – 10 seconds indicated by the LED (optional function).
- One second after that, the starter is triggered and the engine starts. If the engine does not start during the start attempt, the starter takes a break of 10 seconds. Three consecutive engine start attempts occur automatically.
WARNING! 
In case of three unsuccessful attempts to start the engine, the system notifies about the detected problem by using indicator. - Devices to the power plant must be connected one after another from the device with the maximum power to the device with the minimum power, the total power of the connected devices must not exceed the rated power of the power plant.
- After receiving a stop signal, the station will stop and go into standby mode.
MANUAL MODE
- Click
to start the engine. LED indicator that lights up next to the button indicates the selected control mode.
IMPORTANT! 
If the engine does not start after three or four attempts, it may mean that the fuel tank is running out of fuel. Check the fuel level in the tank according to the values on the indicator. - Allow the power plant to run without load for 5 minutes in the warm season and 10 minutes in the cold season. This will ensure reliable and trouble-free operation of the station.
- Controller performs diagnostics of power plant systems operation. If any malfunction is detected, the controller will notify about the detected problem.
- You can use the power plant if the controller does not detect any deviations within three minutes and notifies about the detected problem.
- Devices to the power plant must be connected one after another from the device with the maximum power to the device with the minimum power, the total power of the connected devices must not exceed the rated power of the power plant.
WARNING! ![]()
It is forbidden to load the power plant above the max. power!
USING OF THREE-PHASE POWER PLANT MODEL:
The load of a three-phase diesel power plant must be distributed over all three phases, and the load on all phases must be balanced.
IMPORTANT! ![]()
Failure to follow these instructions may lead to damage of the rotor and stator windings, the AVR unit.
IMPORTANT! ![]()
If the power plant circuit breaker is triggered as a result of overloading – reduce the load. Re-switching of the power plant is possible in 5 minutes after shutdown.
WARNING! ![]()
Disconnect all devices before stopping the power plant!
Do not stop the power plant if there are connected devices. This can disable the power plant!
IMPORTANT! ![]()
On the housing near the control panel there is an emergency motor switch (fig. 1). It should be used only in case of an emergency.
TO STOP THE ENGINE, PROCEED AS FOLLOWS:
- Turn off all devices connected to the power plant.
- Allow the power plant to run for 3 minutes without load to allow the alternator to cool down.
- Press the red STOP button on the IR controller
to stop the power plant in manual/automatic mode. - For immediate power plant shutdown in manual/automatic mode. Click
again.
TECHNICAL MAINTENANCE WORKS
Works, specified in “Technical maintenance” section, are to be regularly performed. If the the generator user has no possibility to perform regular maintenance independently, it is necessary to address the official service center to registrate an order for such works performance.
IMPORTANT! ![]()
In case of any damages, occurred due to non-performance of regular maintenance works, the manufacturer bears no responsibility for such damages.
SUCH DAMAGES ARE ALSO:
- Damages occurred as a result of using non original spare parts;
- Corrosion damages and other results of improper equipment storage;
- Damages occures as a result of maintenance performance by inexperienced and unauthorized specialists.
MANUAL COMPLIANCE
Technical maintenance, operation and Könner & Söhnen® generator storage are to be performed according to this manual recommendations. Manufacturer bears no responsibility for damages and losses, caused by incompliance to safety requirements and technical maintenance rules.
FIRST OF ALL THIS APPLIES TO:
- use of lubricants, gasoline and motor oils, forbidden by the manufacturer;
- device technical alterations;
- equipment operations against its intended use;
- indirect damages, caused by operating faulty equipment;
ATTENTION – DANGER! ![]()
Stop the engine before performing any maintenance work. If the engine needs to run, make sure that the room is ventilated. The exhaust contains toxic carbon monoxide gas. After using the power plant, wipe it with a cloth to avoid fire or corrosion.
This manual compliance! You can find a list of service center addresses on the website of exclusive importer: www.konner-sohnen.com
TECHNICAL MAINTENANCE WORKS

– replacement
– check
– regulation
– cleaning
RECOMMENDED OILS
Motor oil has a serious impact on performance characteristics and is a major attribute, defining its service life. Use oils designed for four-stroke cycle vehicle engines SAE 10W-30, SAE 10W-40, since such oils contain cleaning additives, which comply or even exceed SE standards according to API classification (or equivalent).
Motor oils with other viscosity levels, may be used only if the average air temperature in your region does not exceed the limits of the temperature range, specified in the table. Oil viscosity according to SAE standards or service category, are specified on the API capacity sticker.
When changing the oil, be sure to replace the oil filter
ENGINE OIL REPLACEMENT OR ADDING
Upon oil level decrease it is necessary to add the required quantity in order to provide the correct generator operation. It is necessary to check the oil levels according to technical maintenance schedule. When changing the oil, remove the oil filter, flush it with gasoline and install it back.
TO DRAIN THE OIL:
Open the oil filler cap at the top of the engine (fig. 4, item 13). Open the oil drain tap (fig. 4, item 6), which is located at the bottom of the crankcase, wait for the oil to drain completely, close the tap and fill in new oil. To drain as much oil as possible, perform the procedure on a preheated engine.
OIL FILLING:
- Make sure that the generator is set on flat level surface.
- Unscrew the oil gage cap on the engine (fig. 4, p. 5).
- By means of a funnel, pour the advanced purification engine oil to the crankcase (fig. 4, p.13). Oil level after filling has to be close to the upper part of oil filler.
- Check the oil level with a dipstick.
Use only the recommended oils and fuels for repairs and maintenance. The use of other lubricants, consumables and spare parts deprives you of the right to warranty service. Power plant maintenance should only be carried out by qualified personnel. To find out where the nearest service center is located, please contact the point of sale, or look for an up-to-date list of service centers on the importer official website: www.koenner-soehnen.com
AIR FILTER MAINTENANCE
It is necessary to check the air filter from time to time and clean any contaminations. Regular air filter maintenance is necessary to maintain sufficient carburetor air inflow. The air filter should be cleaned more often when using generator in dusty conditions. 
ATTENTION – DANGER! ![]()
Never run the engine with the air filter removed or without the filter. Otherwise dirt and dust lead to rapid breakage of engine parts. Failure in this case will not be repaired.
IMPORTANT! ![]()
Air filter replacement is to be performed each 250 hours of the generator operation (every 100 hours in unusually dusty conditions).
FUEL FILTER TECHNICAL MAINTENANCE
There are two kinds of fuel filters in Könner & Söhnen® diesel generators. They prevent the ingress of contaminants from diesel fuel to the engine.
COARSE CLEANING FUEL FILTER (IF INSTALLED)
Remove the filter after the possible hard particles hit every 200 operating hours. Never use water for purification the filter.
- Remove the fuel cap.
- Remove the fuel filter.
- Use diesel fuel to clean the filter.
- Put the filter back to the fuel tank.
THE FUEL FILTER IN THE FUEL SUPPLY PIPELINE
This filter has to be replaced every 200 operating hours. It’s located under the fuel tank on the fuel hose through which fuel enters the engine from the tank. To replace it:
- Loosen the metal hose clamps, located next to the fuel valve to drain the fuel.
- Drain the fuel to some special volume.
- Loosen metal staples on both sides of the fuel filter.
- Remove the filter.
- Install new filter, paying attention to the arrow shown.
The filter should be installed in the fuel passage direction. - Tighten the bracket on the fuel hose.
ACCUMULATOR MAINTENANCE
In Könner & Söhnen® models with electric start you should periodically perform battery voltage checks.
The generator battery has a voltage of 12V and if the voltage is lower, you should perform battery charging with the help of an external charger.
To avoid discharging the battery, it is recommended to run the generator at least once a month for 30 minutes. If the generator is not used for a long time, please disconnect the battery from the terminals. The battery that comes with the generator does not require additional maintenance and filling of electrolyte.
IMPORTANT! ![]()
Please note that if you fail to start up power plants, the batteries may run outtherefore, the battery must be fully charged before starting operation.
STORAGE
The storage area of the power plant should be dry, well-ventilated and out of the reach of children.
LONG-TERM STORAGE OF THE POWER PLANT:
Long-term storage can affect the engine and the power plant as a whole. This impact can be reduced by proper preparation and storage of the power plant.
Engine storage. The engine must undergo a conservation procedure, which includes cleaning the engine and replacing all liquids with fresh or preservatives. Please contact your local dealer for more information about engine storage.
Storage of AC generator equipment. When the alternator is stored, condensation can form in the windings. To reduce condensation, store the generator set in a dry place. Please contact your local dealer for more information about storing alternators.
Battery storage. When the battery is in storage, it should be charged every 12 weeks (8 weeks in tropical climates) to a fully charged state.
POSSIBLE FAILURES AND SOLUTIONS
WARNING! ![]()
Diagnostics and troubleshooting should be performed by a specialist in diesel generators.
| Typical failures | Possible reason | Solution |
| Diesel start-up fault | The START signal is put in but cannot start up the diesel whatever with manual cranking or remote control auto-start | 1.Check if all shut-down buttons are released (including the emergency switch button). 2.Check if the control switch is on “OFF”. 3.Check if the fault indicator light is on, if needed, reset it after fault repair. 4.Check the battery voltage on the control panel, check the fuse if no voltage, charge the battery with another charger and reconnect if the voltage is low, (attention: be sure to fix the knob on “0” position when disconnecting and connecting batteries). |
| Diesel Start-up Fault | The diesel runs but cannot be operated or stops after working for 20 seconds. | 1.Check the fuel level. 2.Check if the emergency stop button is reset on the outer shell 3. Check if there is voltage on the fuel control electromagnet connection. 4.Check if the fuel pipe and filter are blocked. 5.If there is white fog in exhaust system, it means the fuel has gone into motor, but the diesel cannot be operated. 6.If the external environment temperature is low, use warm start-up please. 7.Check if the fuel pressure sensor is blocked. |
| Low battery voltage alarm | LOW BATTERY VOLTAGE alarm light is on. | 1. Check battery’s voltage, voltage is 12V at least for 12V battery, and 24V for 24V battery. 2. If battery voltage is low when the machine is stopped, take down the battery and charge it with another charger or run diesel to charge. 3. If the generator is still running though the battery voltage is very low, it means the diesel’s driving charger does not work, stop machine and check generator belt. 4.If the generator belt is not loose, check the AC diesel driving charge. 5.If the battery cannot be charged, change battery. 6.Press reset button to remove the fault indication after eliminating fault. |
| Alarm of closing to diesel’s high temperature | High temperaturel precaution alarm | 1.Check if the diesel is overloading. 2.Check if the radiator and ventilation system is blocked. 3.Check if the surrounding temperature is within the proper and rated temperature range. 4.Reduce the loading and stop machine as soon as possible if there are no above problems, check the fan belt tightness. 5.Press reset button to turn off alarm light once the reason is found. |
| Alarm of fuel 44 closing to low oilpressure | Low oil ppressure precaution alarm | 1.Stop the machine and check the oil level as soon as possible. 2.Add oil to the required level. 3.Press reset button to turn off the fault light once the reason is found. |
| Alarm of battery charge is not working | BATTERY CHARGER FAILURE alarm light is on | 1.Check if the drop charger is turned on and in output. 2.Check following the ways for checking low battery voltage alarm. 3.Press reset button to turn off the fault light once the fault is found and removed. |
| Alarm of low fuel level | LOW FUEL LEVEL alarm light is on | 1.Check the fuel in the daily tank, and add fuel if needed. 2.Press reset button to turn off the fault light once the fault is found and removed. |
| No voltage when the generator is running | No voltage on AC voltage meterrte | 1.Check if the voltage meter switch is on OFF position. 2.Check fuse which is usually installed into the terminal box of the generator (control box). 3.Measure the terminal voltage of the generator with another voltage meter, if it is normal, then check. the connection between the generator and control line. Check the voltage meter and change another one if necessary. 4.Check AVR and rotation diode, check AC generator Manual for more details. 5.Check if the diesel is running well. |
| The generator is not on load | The generator is running but no power for load | Check if the circuit switch is ON (handle upward). |
| The generator cannot be stopped manually | The generator is still running after stopping machine mac | 1.Check if the position of knob switch and control • switch are suitable. 2.Check fuel control valve (FCS) and change if necessary. |
| The generator cannot be stopped under auto mode | The generator is still running when the remote control has canceled START signal | Attention: for the control system of auto series, the machine will not stopped immediately but cool machine for time after remote control cancel START signal. 1.Wait 5 minutes for cooling down machine 2.Press emergency stop button or control button to OFF position , and see if the machine is stopped 3.Check fuel control valve (FCS) if the machine cannot be stopped by step 2, and change it if necessary |
WARRANTY SERVICE TERMS
If the power plant is used as the main power source, the total long-term load must not exceed 80% of the rated power of the station.
The Seller which sells the product is responsible forgranting the warranty. Please contact the Seller for warranty. Within the warranty period, if the product fails because of defects in the production process, it will be exchanged on the same product or repaired. Within the warranty period, if the product fails because of defects in the production process, it will be exchanged on the same product or repaired.
The warranty card should be kept throughout the warranty period. In case of warranty card loss, a second one will not be provided. The customer must provide the warranty card and buyer`s check during request for repair or exchange. Otherwise, the warranty service will not be provided. The warranty card, attached to the product during sale, should be correctly and fully completed by the retailer and customer, signed and stamped. In other cases, warranty is not considered as valid.
Provide clean product to the service center. Parts, that must be replaced, are the property of the service center.
WARRANTY EXCLUSIONS:
- If the user has failed to comply with the instructions in this manual.
- If the product features damaged or missing identification stickers or labels, serial numbers, etc.
- If product malfunction was due to improper transportation, storage and maintenance.
- In case of mechanical damages (cracks, chips, impact and fall marks, deformation of housing, power cord, plug or any other components), including those resulting from the freezing of water (ice formation), provided there are foreign objects inside the unit.
- If the product has been improperly installed and connected vto the mains supply or misused.
- If the claimed malfunction cannot be diagnosed or demonstrated.
- If proper operation of the product can be restored following cleaning from dust and dirt, appropriate adjustment, maintenance, oil change, etc.
- If the product is used for business related purposes.
- If faults are detected, which have been caused by product overload. Signs of overload are molten or discolored parts as a result of high temperatures, damaged cylinder or piston surfaces, degraded piston rings or connecting rod bushes.
- The warranty does not cover the failure of the product automatic voltage regulator due to careless handling or mishandling.
- If faults are detected, which have been caused by instability of the user’s power grid.
- If there are faults caused by contamination or fouling such as contamination of the fuel, oil or cooling system.
- If electrical cables or plugs show signs of mechanical or thermal damage.
- In the event of foreign liquids and objects, metal chips, etc. inside the product.
- If the malfunction is caused by the use of non-original spare parts and materials, oils, etc.
- If there are two or more faulty units that are not interconnected.
- If the damage was caused by natural factors such as dirt, bdust, humidity, high or low temperature, natural disasters.
- In case of simultaneous failure of the rotor and stator.
- For wear parts and accessories (spark plugs, nozzles, pulleys, filter and safety elements, batteries, detachables, belts, rubber seals, clutch springs, axles, hand starters, grease, mountings, working surfaces, hoses, chains, and tires).
- To preventive maintenance (cleaning, greasing, washing), installation and adjustment.
- If the product was tampered with, independently repaired or modified.
- In case of malfunctions resulting from normal wear and tear as a result of long-term use (end of life).
- If product operation was not stopped and continued after detecting a malfunction.
- Batteries supplied with equipment are covered by a warranty of three months.
- When using low-grade or inappropriate fuel.
ANNEX
Model KS 18-1XM
Model KS 18-1YE
Model KS 18-1DE-G
Model KS 25-3LM
Model KS 33-3XM
Model KS 33-3YE
Model KS 33-3DE-G
EC Declaration of Conformity
Nr. 120
The following products have been tested by us with the listed standards and found in compliance with the European Community Machinery Directive 2006/42/EC, Electromagnetic compatibility Directive (EMC) 2014/30/EC.
Manufacturer: DIMAX INTERNATIONAL GmbH
Address: Flinger Broich 203, 40235 Duesseldorf, Germany
Product: Diesel generators “K~nner & S~hnen
Type/ Model:
KS 18-1XM, KS 18-1YE, KS 18-1DE-G, KS 25-3LM,
KS 33-3XM, KS 33-3YE, KS 33-3DE-G.
The statement is based on a single evaluation of above mentioned products. It does not imply an assessment of the whole production and does not permit the use of the test lab. logo. The manufacturer should ensure that all product in series production are in conformity with the product sample detalied in this report. The applicant should hold the whole technical report at disposal of the competent all the right.
Applied EC Directives:
2006/42/EC Machinery Directive
2014/30/EC Electromagnetic compatibility Directive (EMC)
Applied Standards:
EN 60204-1:2018;
EN ISO 12100:2010;
EN 61000-6-2:2019
EN 61000-6-4:2019
We DIMAX INTERNATIONAL GmbH hereby declare that specified above conforms covering European Parliament and Council Directives, 2006/42/EC of 17 May 2006 Machinery Directive, Electromagnetic compatibility Directive (EMC) 2014/30/EC of 26 February 2014. The CE mark above can be used under the responsibility of manufacturer. After completion of an EC declaration of Conformity and compliance with all relevant EC directives.

| CONTACTS Deutschland: DIMAX International GmbH Flinger Broich 203 -FortunaPark-40235 Dusseldorf, Deutschland koenner-soehnen.com Ihre Bestellungen [email protected] Kundendienst, technische Fragen und Unterstiitzung [email protected] Garantie, Reparatur und Service [email protected] Sonstiges [email protected] | Polska: DIMAX International Poland Sp.z o.o. Polska, Warczawska, 306B 05-082 Stare Babice, koenner-soehnen.com [email protected] |























