Installation instructions

K54265B (EB_HEB) – Sliding
4578349107_AE

![]() | ![]() Ø2 | ![]() |
![]() | ![]() | ![]() |
a
x 13 b
x 1 c
x 4 d
x 2
e
x 2 f
x 2 g
x 2
h
x 2* i
x 2 j
x 1**
k
x 1
L
x 1
m
x 4
n
x 4 o
x 4
p
2 x 970 mm
1

2

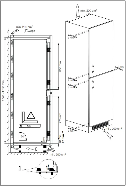
– No wooden back wall.- **For some models.
3

- **For some models.
4

* – Only for some models.


5

4*

5*

























