STIEBEL ELTRON CNS 100 Trend M Wall Mounted Convector Heater
SPECIAL INFORMATION
- Keep children under the age of 3 away from the appliance if constant supervision cannot be guaranteed.
- Children from the age of 3 to 7 may switch the appliance on and off, provided they are supervised or have been instructed in the safe operation of the appliance and understand any risks that may result. This is subject to the appliance having been installed as described.
- Children from the age of 3 to 7 must not plug the power cable into its socket or regulate the appliance.
- The appliance may be used by children aged 8 and older and persons with reduced physical, sensory or mental capabilities or a lack of experience and know-how, provided that they are supervised or they have been instructed on how to use the appliance safely and have understood the potential risks.
- Children must never play with the appliance. Children must never clean the appliance or perform user maintenance unless they are supervised.
- Parts of the appliance can get very hot and may cause burns. Particular caution is advised when children or vulnerable persons are present.
- In order to avoid overheating, do not cover the heater.
- Never install the appliance directly below a wall socket.
- In the case of a permanent connection, the appliance must be able to be separated from the power supply by an isolator that disconnects all poles with at least 3 mm contact separation.
- The power cable must only be replaced (for example if damaged) by a qualified contractor authorised by the manufacturer, using an original spare part.
- Secure the appliance as described in chapter “Installation / Installation”.
OPERATION
General information
- The chapters “Special information” and “Operation” are intended for both users and qualified contractors.
- The chapter “Installation” is intended for qualified contractors.
Note
- Read these instructions carefully before using the appliance and retain them for future reference.
- Pass on the instructions to a new user if required.
Safety instructions
Structure of safety instructions
KEYWORD Type of risk
- Here, possible consequences are listed that may result from failure to observe the safety instructions.
- Steps to prevent the risk are listed.
Symbols, type of risk
- Injury
- Electrocution
- Burns (burns, scalding)
Keywords
KEYWORD/Meaning
- DANGER: Failure to observe this information will result in serious injury or death.
- WARNING: Failure to observe this information may result in serious injury or death.
- CAUTION: Failure to observe this information may result in non-serious or minor injury.
Other symbols in this documentation
Note
- General information is identified by the adjacent symbol.
- Read these texts carefully.
Symbol/Meaning
- Material losses
- (appliance damage, consequential losses and environmental pollution)
- Appliance disposal
This symbol indicates that you have to do something. The action you need to take is described step by step.
Information on the appliance
Symbol/Meaning
- Never cover the appliance
Units of measurement
Note: All measurements are given in mm unless stated otherwise.
Safety
Intended use
This appliance is designed to heat living areas. The appliance is intended for domestic use. It can be used safely by untrained persons. The appliance can also be used in a non-domestic environment, e.g. in a small business, as long as it is used in the same way. Any other use beyond that described shall be deemed inappropriate. Observation of these instructions and of the instructions for any accessories used is also part of the correct use of this appliance.
General safety instructions
WARNING Injury
- Keep children under the age of 3 away from the appliance if constant supervision cannot be guaranteed.
- Children from the age of 3 to 7 may switch the appliance on and off, provided they are supervised or have been instructed in the safe operation of the appliance and understand any risks that may result. This is subject to the appliance having been installed as described. Children from the age of 3 to 7 must not plug the power cable into its socket or regulate the appliance.
- The appliance may be used by children aged 8 and older and persons with reduced physical, sensory or mental capabilities or a lack of experience and know-how, provided that they are supervised or they have been instructed on how to use the appliance safely and have understood the potential risks.
- Children must never play with the appliance. Children must never clean the appliance or perform user maintenance unless they are supervised.
- In closed rooms, temperatures can rapidly reach high values. Ensure constant supervision if the appliance is operated in a small room and the persons within that room cannot regulate the appliance or leave the room on their own.
WARNING Burns
Never operate this appliance…
- if the distance from adjacent objects or other flammable materials would be less than the minimum permissible distance.
- in rooms where it is at risk of fire or explosion as a result of chemicals, dust, gases or vapors. Ventilate the room sufficiently before heating.
- in the direct proximity of pipes or receptacles that carry or contain flammable or explosive materials.
- if an appliance component is damaged, the appliance has fallen over or there is a fault.
- Never place any flammable, combustible or insulating objects or materials on the appliance or in direct proximity to it.
- Ensure that the air intake and discharge are never blocked.
- Never place any objects between the appliance and the wall.
- The appliance is unsuitable for use as a floor standing appliance. Only ever operate this appliance when mounted on the wall mounting bracket supplied (see chapter “Installation / Installation”).
CAUTION Burns
- Parts of the appliance can get very hot and may cause burns. Particular caution is advised when children or vulnerable persons are present.
WARNING Overheating
- In order to avoid overheating, do not cover the heater.
Material losses
- Ensure that the power cable is not touching the appliance.
- Never stand on the appliance.
- Never operate the appliance in the open air.
Test symbols
- See type plate on the appliance.
Appliance description
The appliance is a wall mounted electric direct heater. The appliance is suitable for use as a standalone heating system, or can be used in spring and autumn and as a booster heater in smaller rooms. The air inside the appliance is heated by a heating element and expelled via natural convection through the air discharge at the top. Cool indoor air is drawn in through the air intake on the underside of the appliance.
Operation

- Temperature selector
- ON/OFF switch
Switching the appliance on and off
Note: For a short time after initial start-up and after longer breaks in use, a smell may develop.
The appliance is ready for operation as soon as it has been fixed to the wall and plugged into the mains.
- Switch the appliance on or off using the ON/OFF switch on the right-hand side of the appliance.
- Switch the appliance off when not in use for longer periods (e.g. during the summer months).
Selecting the room temperature
- Use the temperature selector to set the required room temperature (for setting range, see chapter “Specification / Data table”).

Once the selected room temperature has been reached, it is maintained through periodic heating. For this, the appliance heating output must correspond to at least the required heat demand of the room. If several appliances are installed in a room, the selected temperature at each appliance can be different.
Note: To avoid excessive power consumption when windows are open, switch the appliance off while airing.
Frost protection
Turn the temperature selector to the frost protection symbol.
In this position, the appliance heats automatically if the room temperature falls below the frost protection temperature (for frost protection temperature, see chapter “Specification / Data table”).
Cleaning, care, and maintenance
- The appliance contains no user-serviceable parts.
Material losses
- Never spray cleaning spray into the air slot.
- Ensure that no moisture can enter the appliance.
- If a pale brownish discoloration appears on the appliance casing, wipe it off with a damp cloth.
- Clean the appliance when cold with ordinary cleaning products.
- Avoid abrasive or corrosive cleaning products.
Note: We recommend having the control components checked as part of regular maintenance.
- Have a qualified contractor check the safety and control components no more than 10 years after commissioning.
Troubleshooting

If you cannot remedy the fault, contact your qualified contractor. To facilitate and speed up your request, provide the number from the type plate (000000-0000-000000).
INSTALL ATION
Safety
- Only a qualified contractor should carry out installation, commissioning, maintenance and repair of the appliance.
General safety instructions
- We guarantee trouble-free function and operational reliability only if original accessories and spare parts intended for the appliance are used.
CAUTION Burns
- Only mount the appliance on a vertical wall that is temperature-resistant to at least 85 °C.
- Maintain the minimum clearances to adjacent objects.
Material losses
- Never install the appliance directly below a wall socket.
- Ensure that the power cable is not in contact with any appliance components.
Instructions, standards and regulations
Note: Observe all applicable national and regional regulations and instructions.
Appliance description
Standard delivery
The following are delivered with the appliance:
- Wall mounting bracket (hooked into the appliance)
Installation
Installation site
Installation in bathrooms
WARNING Electrocution
When installing the appliance in rooms with a bath and/ or shower, the appliance may only be connected to a standard socket outside safety zones 0, 1 and 2. The socket must be at least 600 mm away from a bath or shower. If in doubt, consult a qualified contractor.

- Electrical safety zones in the bathroom.
Minimum clearances

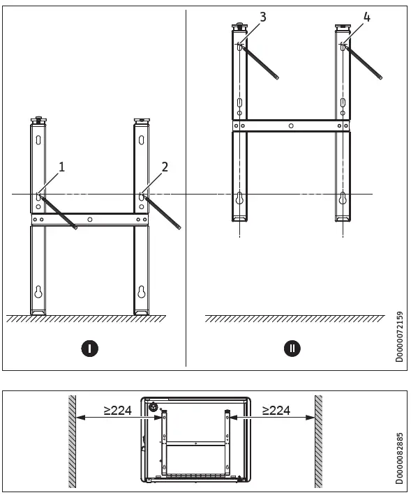
Installing the wall mounting bracket
The appliance is intended for wall mounting using the wall mounting bracket supplied. The appliance may only be installed horizontally.
Note
- The wall mounting bracket can be used as a template for wall mounting. This ensures sufficient clearance from the floor.
- Use a spirit level if the floor is uneven or sloping.

- Unhook the wall mounting bracket from the appliance.
- Place the centred wall mounting bracket horizontally on the floor. Mark holes 1 and 2.
- Lift up the wall mounting bracket so that its lower holes match up with the markings you have just made on the installation wall.
- Mark holes 3 and 4 on the installation wall.
- Drill the holes at the 4 markings.
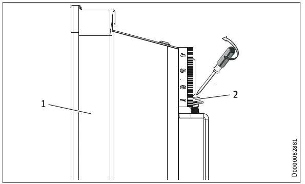
- Secure the wall mounting bracket with suitable fixing materials (screws, rawl plugs). With the vertical slots, you can compensate for an offset fixing hole.
Appliance installation

- Wall mounting bracket
- Hook the appliance onto the bottom tabs of the wall mounting bracket by the slots in the back of the appliance.
- Place the appliance in an upright position.
- Secure the appliance by pushing it towards the wall until it audibly snaps into place in the two upper springs on the wall mounting bracket.

- Appliance
- Locking screw
- Secure the appliance against unintentional release using the supplied locking screw on the right or left-hand side of the wall mounting bracket.
Removing the appliance
- Undo and remove the locking screw from the wall mounting bracket.
- To release the appliance, push down the springs at the top of the wall mounting bracket.
- Tilt the appliance away from the wall and lift it off the bottom tabs on the wall mounting bracket.
Electrical connection
WARNING Electrocution
- Carry out all electrical connection and installation work in accordance with national and regional regulations.
WARNING Electrocution
- In the case of a permanent connection, the appliance must be able to be separated from the power supply by an isolator that disconnects all poles with at least 3 mm contact separation.
- Do not install the appliance with a fixed power cable.
Note
- Observe the type plate. The specified voltage must match the mains voltage.
- Ensure the on-site supply cable has an adequate cross-section.
- In a non-domestic environment and in case of particularly high demands on the appliance, such as permanent continuous operation, we recommend installing the appliance as a permanent connection with a junction box.
Only an authorized electrician is allowed to make the permanent connection to a junction box.
WARNING Electrocution
- Provide appropriate strain relief when making the connection to a junction box.
- Ensure that the appliance is connected to the earth conductor.
- Seal the trimmed cable ends again correctly with wire ferrules.
The appliance is delivered fully wired. The following electrical connections are permissible:
CNS 100-200 Trend M (AU)
- Connection to a freely accessible standard socket with a matching plug: X
- Permanent connection to an appliance junction box with earth conductor: X
- If connecting the appliance via a socket, ensure that this is easily accessible once the appliance has been installed.
- If connecting the appliance permanently, trim the power cable so that it leads directly to the appliance connection socket. Ensure that, after trimming the power cable, the appliance can still be removed from the wall without a problem.
Commissioning
- The appliance is ready for operation as soon as it has been fixed to the installation wall and plugged into the mains.
Troubleshooting
- The power cable must only be replaced (for example if damaged) by a qualified contractor authorised by the manufacturer, using an original spare part.
Appliance handover
- Explain the functions of the appliance to the user. Draw special attention to the safety instructions. Hand over the operating and installation instructions to the user.
Specification
Dimensions and connections

| CNS 100 Trend M (AU) | CNS 150 Trend M (AU) | CNS 200 Trend M (AU) | ||||
| a20 | Appliance | Width | mm | 426 | 582 | 738 |
| b01 | Entry electrical cables | |||||
| i13 | Wall mounting bracket | Horizontal hole spacing | mm | 179 | 335 | 491 |
Data table
| CNS 100 Trend M (AU) | CNS 150 Trend M (AU) | CNS 200 Trend M (AU) | ||
| 202020 | 202021 | 202022 | ||
| Electrical data | ||||
| Connected load | W | 1000 | 1500 | 2000 |
| Power supply | 1/N/PE ~ 240V | 1/N/PE ~ 240V | 1/N/PE ~ 240V | |
| Rated current | A | 4.2 | 6.3 | 8.3 |
| Frequency | Hz | 50/- | 50/- | 50/- |
| Dimensions | ||||
| Height | mm | 450 | 450 | 450 |
| Width | mm | 426 | 582 | 738 |
| Depth | mm | 100 | 100 | 100 |
| Weights | ||||
| Weight | kg | 4.6 | 5.9 | 7.7 |
| Versions | ||||
| Frost protection setting | °C | 7 | 7 | 7 |
| Version | Wall mounted appliance | Wall mounted appliance | Wall mounted appliance | |
| IP rating | IP24 | IP24 | IP24 | |
| Protection class | I | I | I | |
| Colour | Alpine white | Alpine white | Alpine white | |
| Values | ||||
| Setting range | °C | 5-35 | 5-35 | 5-35 |
Environment and recycling
We would ask you to help protect the environment. After use, dispose of the various materials in accordance with national regulations.
WARRANTY
Stiebel Eltron Warranty for Hand Dryers & Space Heaters – Models HTE, ULTRONIC, CNS, CK & CK Z.
Who gives the warranty
- The warranty is given by Stiebel Eltron (Aust) Pty Ltd (A.B.N. 82 066 271 083), 294 Salmon Street, Port Melbourne, Victoria, 3207 (“we”, “us” or “our”).
The warranty
- This warranty applies to Stiebel Eltron Hand Dryers and Space Heaters – Models HTE 4, HTE 5, ULTRONIC, CNS 100, CNS 150, CNS 200, CNS 250, CK 20S and CKZ 20S (the “unit”) manufactured after 1 May 2015.
- Subject to the warranty exclusions we will repair or replace, at our absolute discretion, a faulty component in your unit free of charge if it fails to operate in accordance with its specifications during the warranty period.
- If we repair or replace a faulty component to your unit under this warranty, the warranty period is not extended from the time of the repair or replacement.
- The warranty period commences on the date of purchase of the unit. Where the date of purchase is not known, then the warranty period will commence 2 months after the date of manufacture.
- The warranty period for a unit is shown in the table below.
| Component | Warranty period |
| All components | 5 years from the date of purchase of the unit. |
Your entitlement to make a warranty claim
- You are entitled to make a warranty claim if:
- you own the unit or if you have the owner’s consent to represent the owner of the unit;
- you contact us within a reasonable time of discovering the problem with the unit;
How you make a warranty claim
- To make a warranty claim you must provide us with the following information
- The model number of the unit;
- A description of the problem with the unit;
- The name, address and contact details (such as phone number and e-mail address) of the owner;
- The address where the unit is installed and the location (e.g. in living room);
- The serial number of the unit;
- The date of purchase of the unit and the name of the seller of the unit;
- The date of installation of the unit where appropriate;
- A copy of the certificate of compliance when the unit was installed where appropriate.
- The contact details for you to make your warranty claim are:
- Name: Stiebel Eltron (Aust) Pty Ltd
- B294 Salmon Street, Port Melbourne, Victoria, 3207
- Telephone: 1800 153 351
- (8.00 am to 5.00 pm AEST Monday to Friday)
- Contact person: Customer Service Representative
- E-mail: [email protected]
- We will arrange a suitable time with you to inspect and test the unit.
Warranty exclusions
- We may reject your warranty claim if:
- The unit was not installed by registered and qualified tradespeople, where required.
- The unit was not installed and commissioned:
- in Australia;
- in accordance with the Operating and Installation Guide; and
- in accordance with the relevant statutory and local requirements of the State or Territory in which the unit is installed.
- The unit has not been operated or maintained in accordance with the Operating and Installation Guide.
- The unit does not bear its original Serial Number or Rating Label.
- The unit was damaged by any or any combination of the following:
- normal fair wear and tear;
- connection to an incorrect power supply;
- connection to faulty equipment, such as faulty circuit breaker;
- accidental damage;
- act of God, including damage by flood, storm, fire, lightning strike and the like;
- wiring not to AS3000 Standards;
- ingress of vermin.
- The unit was damaged before it was installed e.g. it was damaged in transit.
- An unauthorised person has modified, serviced, repaired or attempted to repair the unit without our consent.
- Nongenuine parts other than those manufactured or approved by us have been used on the unit.
- We may charge you:
- for any additional transport costs if the unit is installed more than 30 kilometers from our closest authorised service technician.
- for the extra time it takes our authorised service technician to access the unit for inspection and testing if it is not sited in accordance with the Operating and Installation Guide and not readily accessible for inspection.
- for any extra costs of our authorised service technician to make the unit safe for inspection.
- You must ensure that access to the unit by our authorised service technician is safe and free from obstruction.
- Our authorized service technician may refuse to inspect and test the unit until you provide safe and free access to it, at your cost.
- If we reject your warranty claim in accordance with clause 11, we may charge you for our authorized service technician’s labour costs to inspect and test the unit.
- In order to properly test the unit we may remove it to another location for testing.
Australian Consumer Law
- Our goods come with guarantees that cannot be excluded under the Australian Consumer Law. You are entitled to a replacement or refund for a major failure and compensation for any other reasonably foreseeable loss or damage. You are also entitled to have the goods repaired or replaced if the goods fail to be of acceptable quality and the failure does not amount to a major failure.
- The Stiebel Eltron warranty for the unit is in addition to any rights and remedies you may have under the Australian Consumer Law.
CONTACTS
Deutschland
- STIEBEL ELTRON GmbH & Co. KG
- Dr.-Stiebel-Straße 33 37603 Holzminden
- Tel: 05531 702-0
- Fax: 05531 702-480
- [email protected]
- www.stiebel-eltron.de
Verkauf
- Tel: 05531 702-110
- Fax: 05531 702-95108
- [email protected]
Kundendienst
- Tel: 05531 702-111
- Fax: 05531 702-95890
- [email protected]
Ersatzteilverkauf
- Tel: 05531 702-120
- Fax: 05531 702-95335
- [email protected]
Australia
- STIEBEL ELTRON Australia P ty. L td.
- 294 Salmon Street | Port Melbourne VIC 3207
- Tel: 03 9645-1833
- Fax: 03 9644-5091
- [email protected]
- www.stiebel-eltron.com.au
Austria
- STIEBEL ELTRON Ges.m.b.H.
- Gewerbegebiet Neubau-Nord Margaritenstraße 4 A | 4 063 Hörsching
- Tel: 07221 74600-0
- Fax: 07221 74600-42
- [email protected]
- www.stiebel-eltron.at
Belgium
- STIEBEL ELTRON bvba/sprl’t Hofveld 6 – D 1 | 1702 Groot-Bijgaarden
- Tel: 02 42322-22
- Fax: 02 42322-12
- [email protected]
- www.stiebel-eltron.be
China
- STIEBEL ELTRON (Tianjin) Electric Appliance Co., L td.
- Plant C3, XEDA International Industry City
- Xiqing Economic Development Area 300385 Tianjin
- Tel: 022 8396 2077
- Fax: 022 8396 2075
- [email protected]
- www.stiebeleltron.cn
Czech Republic
- STIEBEL ELTRON spol. s r.o.
- Dopraváků 749/3 | 1 84 00 Praha 8
- Tel: 251116-111
- Fax: 235512-122
- [email protected]
- www.stiebel-eltron.cz
Finland
- STIEBEL ELTRON OY
- Kapinakuja 1 0 4600 Mäntsälä
- Tel: 020 720-9988
- [email protected]
- www.stiebel-eltron.fi
France
- STIEBEL ELTRON SAS
- 7-9, rue des Selliers B.P 85107 | 5 7073 Metz-Cédex 3
- Tel: 0387 7438-88
- Fax: 0387 7468-26
- [email protected]
- www.stiebel-eltron.fr
Japan
- NIHON STIEBEL Co. L td.
- Kowa Kawasaki Nishiguchi Building 8F 66-2 Horikawa-Cho Saiwai-Ku 21 2-0013 Kawasaki
- Tel: 044 540-3200
- Fax: 044 540-3210
- [email protected]
- www.nihonstiebel.co.jp
Netherlands
- STIEBEL ELTRON Nederland B.V.
- Daviottenweg 36 | 5 222 BH ‘s-Hertogenbosch
- Tel: 073 623-0000
- Fax: 073 623-1141
- [email protected]
- www.stiebel-eltron.nl
New Zealand
- Stiebel Eltron NZ Limited
- 61 Barrys Point Road | Auckland 0622
- Tel: +64 9486 2221
- [email protected]
- www.stiebel-eltron.co.nz
Poland
- STIEBEL ELTRON Polska Sp. z O .O.
- ul. Działkowa 2 | 0 2-234 Warszawa
- Tel: 022 60920-30
- Fax: 022 60920-29
- [email protected]
- www.stiebel-eltron.pl
Switzerland
- STIEBEL ELTRON AG
- Industrie West Gass 8 5 242 Lupfig
- Tel: 056 4640-500
- Fax: 056 4640-501
- [email protected]
- www.stiebel-eltron.ch
Thailand
- STIEBEL ELTRON Asia Ltd.
- 469 Moo 2 Tambol K long-Jik Amphur Bangpa-In 1 3160 Ayutthaya
- Tel: 035 220088
- Fax: 035 221188
- [email protected]
- www.stiebeleltronasia.com
United Kingdom and Ireland
- STIEBEL ELTRON UK Ltd.
- Unit 12 Stadium Court Stadium Road CH62 3RP Bromborough
- Tel: 0151 346-2300
- Fax: 0151 334-2913
- [email protected]
- www.stiebel-eltron.co.uk
United States of America
- STIEBEL ELTRON, Inc.
- 17 West Street 01088 West Hatfield MA
- Tel: 0413 247-3380
- Fax: 0413 247-3369
- [email protected]
- www.stiebel-eltron-usa.com
A 343506-43813-9670
B 343767-43813-9670
Subject to errors and technical changes!




















