
R-410A Outdoor Split-System Air
Conditioning
York International Corporation, 5005 York Drive, Norman, OK 73069 6136936-UIM-A-0622
Supersedes: nothing
2022-06-10
General
Read all sections of this manual and keep the manual for future reference.
These outdoor condensing units are designed to be connected to a matching indoor coil. They are equipped with a filter-drier located in the liquid line.
Units with quick-connect coupling connections are factory charged with refrigerant to be matched with the appropriate pre-charged line set and indoor coil.
Certification

Safety
This is a safety alert symbol. When you see this symbol on labels or in manuals, be alert to the potential for personal injury.
Understand and pay particular attention to the signal words DANGER, WARNING, or CAUTION.
DANGER indicates an imminently hazardous situation, which, if not avoided, will result in death or serious injury.
WARNING indicates a potentially hazardous situation, which, if not avoided, could result in death or serious injury.
CAUTION indicates a potentially hazardous situation, which, if not avoided may result in minor or moderate injury. It is also used to alert against unsafe practices and hazards involving only property damage.
WARNING
Improper installation may create a condition where the operation of the product could cause personal injury or property damage. Improper installation, adjustment, alteration, service, or maintenance can cause injury or property damage. Refer to this manual for assistance.
For additional information, consult a qualified installer or service agency.
CAUTION
This product must be installed in strict compliance with the enclosed installation instructions and any applicable local, state, and national codes including but not limited to building, electrical, and mechanical codes.
CAUTION
R-410A systems operate at higher pressures than R-22 systems. Do not use R-22 service equipment or components on R-410A equipment. Service
equipment must be rated for R-410A.
Inspection
As soon as a unit is received, you must inspect it for possible damage during transit. If damage is evident, you must note the extent of the damage on the carrier’s delivery receipt. A separate request for inspection by the carrier’s agent must be made in writing. See Local Distributor for more information.
Requirements for installing or servicing R-410A equipment
- Gauge sets, hoses, refrigerant containers, and the recovery system must be designed to handle the POE type oils and the higher pressures of R-410A.
- Manifold sets must be high side and low side with low side retard.
- All hoses must have a 700 psig service pressure rating.
- Leak detectors must be designed to detect HFC refrigerant.
- Recovery equipment (including refrigerant recovery containers) must be specifically designed to handle R-410A.
- Do not use an R-22 TXV.
Limitations
You must install the unit in accordance with all national, state, and local safety codes, and the following limitations:
- Limitations for the indoor unit, coil, and appropriate accessories must also be observed.
- The outdoor unit must not be installed with any duct work in the air stream. The outdoor fan is the propeller type and is not designed to operate against any additional external static pressure.
- The maximum and minimum conditions for operation must be observed to ensure a system that gives maximum performance with minimum service.
- The unit must not be operated at outdoor temperatures below 55°F without an approved low ambient operation accessory kit installed.
- The maximum allowable line length for this product is 80 ft. To install more than the maximum allowable line length, consult the Piping Application Guide (P/ N 247077).
Table 1: Application limitations
| Ambient air temperature on outdoor coil (°F) | Air temperature on indoor coil (°F) | |||
| Model | Minimum DB | Maximum DB | Minimum DB | Maximum DB |
| YC2D/TCD2B/RAC134 | 55 | 115 | 57 | 72 |
| YC2E/YC2F/TCE2B/ TCF2B/ RAC143/ RAC150/ TCD2B 3 phase | 55 | 125 | 57 | 72 |
Unit installation
Location
Before starting the installation, select and check the suitability of the location for both the indoor and outdoor unit. Observe all limitations and clearance requirements.
The outdoor unit must have sufficient clearance for air entrance to the condenser coil, air discharge, and service access. See Figure 1 and Figure 2.
NOTICE
For multiple unit installations, units must be spaced a minimum of 24 in. (61 cm) apart (coil face to coil face).
If the unit is to be installed on a hot sun-exposed roof or a paved ground area that is seasonally hot, the unit must be raised sufficiently above the roof or ground to avoid taking the accumulated layer of hot air into the outdoor unit.
If the system is being installed during seasonally cold weather of 55°F or below, the preferred method is to weigh in the charge. For charging or checking the system charge at 55°F or below, see the Optional cold weather charging procedures near the end of the System charge section. There is an optional cold weather charging accessory kit to prevent the outdoor unit from taking in cold air below 55°F. The kit part number can be found in the list of accessory kits at www.simplygettingthejobdone.com.
Provide adequate structural support for the unit.
Figure 1: Typical installation clearances

Figure 2: Alternative installation clearances

Liquid line filter-drier
The filter-drier is packaged and shipped along with the outdoor unit. It is located outside the unit next to the service valves.
CAUTION
Filter-drier is required to be installed in liquid line. The recommended location is at the indoor coil before the refrigerant metering device. It can be installed at the outdoor unit if desired.
CAUTION
Using a granular type drier may result in damage to the equipment.
CAUTION
Filter-drier must be wrapped in wet rag while brazing.
Filter-drier Source 1 part S1-401021 applies to all AC models.
Filter-drier installation at outdoor unit
About this task: Complete the following steps and see Figure 3 to install a filter-drier at the outdoor unit:
- Connect low pressure nitrogen to the liquid line service port.
- Insert a short piece of 3/8 in. tubing into the liquid line service valve piping connection. Install filter drier (direction arrow toward indoor coil) on the short piece of tubing and insert the liquid line going to the indoor coil into the opposite end of the filter drier.
- Wrap a wet rag around the liquid line base valve and filter drier.
- Braze the liquid line connections.
Figure 3: Liquid line filter-drier installation at outdoor unit

Filter-drier installation at indoor coil
About this task:
Complete the following steps and see Figure 4 to install a filter-drier at the indoor coil:
- Connect low pressure nitrogen to the liquid line indoor coil.
- Insert a short piece of 3/8 in. tubing into the liquid line indoor coil. Install filter drier (direction arrow toward indoor coil) on the short piece of tubing and insert the liquid line going to the indoor coil into the opposite end of the filter drier.
- Wrap a wet rag around the filter drier.
- Braze the liquid line connections.
Figure 4: Liquid line filter-drier installation at indoor coil

Piping connections
The outdoor condensing unit must be connected to the indoor evaporator coil using field supplied refrigerant grade (ACR) copper tubing that is internally clean and dry. Units must be installed only with the tubing sizes for approved system combinations as specified in the Tabular Data Sheet. The charge given is applicable for total tubing lengths up to 15 ft (4.6 m). Refer to the Piping Application Guide (P/N 24077) for installing tubing of longer lengths and elevation differences.
NOTICE
Using a larger than specified line size could result in oil return problems. Using too small a line will result in loss of capacity and other problems caused by insufficient refrigerant flow. Slope horizontal vapor lines at least 1 in. (2.5 cm) every 20 ft (6.1 m) toward the outdoor unit to facilitate proper oil return. If more than the 80 ft line length is necessary, facilitate proper refrigerant velocity with adjusted line diameter in accordance with the Piping Application Guide (P/N 24077).
CAUTION
This system uses R-410A refrigerant, which operates at higher pressures than R-22. No other refrigerant may be used in this system. Gauge sets, hoses, refrigerant containers, and the recovery system must be designed to handle R-410A. If you are unsure, consult the equipment manufacturer.
WARNING
Never install a suction-line filter-drier in the liquid line of an R-410A system. Failure to follow this warning can cause a fire, injury or death.
Precautions during line installation
- Install the lines with as few bends as possible. Care must be taken not to damage the couplings or kink the tubing. Use clean hard drawn copper tubing where no appreciable amount of bending around obstruction is necessary. If soft copper must be used, care must be taken to avoid sharp bends, which may cause a restriction.
- The lines must be installed so that they do not obstruct service access to the coil, air handling system, or filter.
- Care must also be taken to isolate the refrigerant lines to minimize noise transmission from the equipment to the structure.
- The vapor line must be insulated with a minimum of 3/8 in. foam rubber insulation (Armaflex or equivalent). Liquid lines that are exposed to direct sunlight, high temperatures, or excessive humidity must also be insulated.
- Tape and suspend the refrigerant lines as shown in Figure 5. Do not allow tube metal-to-metal contact.
- Use PVC piping as a conduit for all underground installations as shown in Figure 6. Buried lines must be kept as short as possible to minimize the build up of liquid refrigerant in the vapor line during long periods of shutdown.
Figure 5: Installation of vapor line

Figure 6: Underground installation

- Pack fiberglass insulation and a sealing material such as permagum around refrigerant lines where they penetrate a wall to reduce vibration and to retain some flexibility.
- For systems with total line length exceeding 75 ft (22.86 m), refer to the Piping Application Guide (P/ N 24077) for vapor and liquid line sizing, calibration of liquid line pressure loss or gain, determination of vapor line velocity, elevation limitations, TXV connections, system charging or traps.
Precautions during brazing of lines
All outdoor unit and indoor coil connections are copper to copper and must be brazed with a phosphorous copper alloy material such as Silfos-5 or equivalent. Do not use soft solder. The outdoor units have reusable service valves on both the liquid and vapor connections. The total system refrigerant charge is retained within the outdoor unit during shipping and installation. The reusable service valves are provided to evacuate and charge per this instruction.
Serious service problems can be avoided by taking adequate precautions to assure an internally clean and dry system.
CAUTION
Dry nitrogen must always be supplied through the tubing while it is being brazed, because the temperature required is high enough to cause oxidation of the copper unless an inert atmosphere is provided. The flow of dry nitrogen must continue until the joint has cooled. Always use a pressure regulator and safety valve to insure that only low pressure dry nitrogen is introduced into the tubing. Only a small flow is necessary to displace air and prevent oxidation.
Precautions during brazing of service valve
WARNING
This is not a back seating valve. The service access port has a valve core. Opening or closing valve does not close service access port. If the valve stem is backed out past the chamfered retaining wall, the O-ring can be damaged causing leakage or system pressure could force the valve stem out of the valve body possibly causing personal injury. Precautions must be taken to prevent heat damage to service valve by wrapping a wet rag around it as shown in Figure 7. Protect all painted surfaces, insulation, and the plastic base during brazing. After brazing, cool the joint with a wet rag.
Open the valve by removing the service valve cap, fully inserting a hex wrench into the stem, and backing out counterclockwise until the valve stem just touches the chamfered retaining wall.
Connecting the refrigerant lines
Connect the refrigerant lines using the following procedure:
- Remove the cap and Schrader core from both the liquid and vapor service valve service ports at the outdoor unit. Connect low pressure nitrogen to the liquid line service port.
- Braze the liquid line to the liquid valve at the outdoor unit. Be sure to wrap the valve body with a wet rag. Allow the nitrogen to continue flowing.
- Carefully remove the plugs from the indoor coil liquid and vapor connections at the indoor coil.
Figure 7: Heat protection
CAUTION
Do not install any coil in a furnace which is to be operated during the heating season without attaching the refrigerant lines to the coil. The coil is under pressure which must be released to prevent excessive pressure build-up and possible coil damage. - Braze the liquid line to the indoor coil liquid connection. Nitrogen must be flowing through the indoor coil.
- Slide the grommet away from the vapor connection at the indoor coil. Braze the vapor line to the indoor coil vapor connection. After the connection has cooled, slide the grommet back into original position.
- Protect the vapor valve with a wet rag and braze the vapor line connection to the outdoor unit. The nitrogen flow must be exiting the system from the vapor service port connection. After this connection cools, remove the nitrogen source from the liquid fitting service port.
- Replace the Schrader core in the liquid and vapor valves.
- Go to the Coil metering devices section for TXV installation.
- Leak test all refrigerant piping connections, including the service port flare caps, to be sure they are leak tight. Do not over-tighten (between 40 in. lb and 60 in. lb maximum).
NOTICE
Line set and indoor coil can be pressurized to 250 psig with dry nitrogen and leak tested with a bubble type leak detector. Then release the nitrogen charge. Do not use the system refrigerant in the outdoor unit to purge or leak test. - Evacuate the vapor line, indoor coil, and liquid line to 500 microns or less.
- Replace cap on service ports. Do not remove the flare caps from the service ports except when necessary for servicing the system.
CAUTION
Do not connect manifold gauges unless trouble is suspected. Approximately 3/4 oz of refrigerant is lost each time a standard manifold gauge is connected. - Release the refrigerant charge into the system by opening the liquid line valve first. After a few minutes, the suction line valve may be opened. Open both the liquid and vapor valves by removing the plunger cap and with an hex wrench, back out counterclockwise until the valve stem just touches the chamfered retaining wall. If the service valve is a ball valve, use a adjustable wrench to turn the valve stem 1/4 turn counterclockwise to open.
Do not overturn or the valve stem may break or become damaged. See Precautions during brazing of service valve. - Replace the plunger cap finger tight, then tighten an additional 1/12 turn (1/2 hex flat). The cap must be replaced to prevent leaks.
WARNING
Never attempt to repair any brazed connections while the system is under pressure. Personal injury could result.
See System charge for checking and recording system charge.
Coil metering devices
CAUTION
COIL UNDER PRESSURE. Verify that pressure has been released by depressing the Schrader valve core. The coil requires a metering device to be added. Refer to the outdoor unit documentation for the correct TXV or piston to be used.
NOTICE
To prevent moisture and contaminates from entering the system, the coil must not be open to atmosphere for extended periods of time. If the coil cannot be brazed into the refrigeration system during a routine installation period, the ends must be temporarily closed or plugged. For a short term delay, use masking tape over the ends of the copper tubing to close the tube from the air. For a longer term delay, use plugs or caps. There is no need to purge the coil if this procedure is followed.
Installing a thermostatic expansion valve (TXV)
CAUTION
Outdoor unit model numbers ending with an H have a factory installed hard start kit which is required when a TXV kit is installed. Outdoor unit model numbers with no H ending do not require a hard start kit unless local regulations dictate it.
The following are basic steps for installing a TXV kit. For detailed instructions, refer to the Installation Manual provided with the TXV kit.
► Important: Refer to the Technical Guide or Tabular Data Sheet for the unit to determine the correct TXV kit to use on this product.
- Relieve the holding charge by depressing the Schrader valve core on the suction manifold stub out.
- When the holding charge is completely discharged, loosen and remove the Schrader valve core.
- Place a backup wrench on the distributor, and loosen and remove the brass distributor nut. Retain the brass nut for use on the liquid line. Keep the PTFE washer in place and discard the sealing disk.
- Install the TXV onto the distributor assembly with the supplied fittings. Ensure the PTFE washer is seated in the distributor. Hand tighten and turn an additional 1/4 turn to seal. See Figure 8.
Note: Do not overtighten the fittings.
CAUTION
Do not over-tighten. Do not use slip joint pliers.
This distorts the aluminum distributor and the brass fitting (potentially causing leaks). - Slide the nut removed in Step 3 over the supplied liquid line. Place the supplied PTFE washer from the TXV kit in place on the TXV and install the liquid line to the top of the TXV. Adjust the distributor assembly so the liquid line aligns with the hole in the access panel. See Figure 8. Hand tighten the liquid line and apply an additional 1/4 turn to seal.
CAUTION
The Schrader valve core must not be installed into the suction line TXV equalizer line fitting. Poor system performance or system failure could result.
Figure 8: TXV installation
- Install the TXV equalizer line onto the vapor line by hand tightening the 1/4 in. SAE coupling nut to the equalizer fitting and apply an additional 1/3 turn to seal. See Figure 9.
CAUTION
Mount the TXV temperature sensing bulb after the vapor line is brazed and sufficiently cooled.
Failure to use a suction-line split grommet may result in TXV failure. - Route the temperature sensing bulb tube for the TXV toward the vapor line header and the TXV equalizer tube connection port on the vapor line header.
- Install the TXV bulb to the vapor line near the TXV equalizer tube connection port, using the bulb clamps supplied with the TXV assembly. Ensure that the bulb makes maximum contact. See Figure 9 and Figure 10 and adhere to the following:
a. Install the TXV bulb on the vapor line suction header near the TXV equalizer tube connection port. Ensure that the bulb is installed at a 10 o’clock or 2 o’clock position.
b. Insulate the TXV bulb using the thermal insulation provided to protect it from the effect of the surrounding ambient temperature. Cover the bulb completely to insulate it. - When the refrigeration piping is installed, leak test the system.
Figure 9: TXV bulb and equalizer line installation

Figure 10: Correct bulb location for TXV

Evacuation
It is necessary to evacuate the system to 500 microns or less. If a leak is suspected, leak test with dry nitrogen to locate the leak. Repair the leak and test again.
To verify that the system has no leaks, close the valve to the vacuum pump suction to isolate the pump and hold the system under vacuum. Watch the micron gauge for a few minutes. If the micron gauge indicates a steady and continuous rise, it is an indication of a leak. If the gauge shows a rise, then levels off after a few minutes and remains fairly constant, it is an indication that the system is leak free but still contains moisture and may require further evacuation if the reading is above 500 microns.
System charge
To ensure that this system performs at the published levels, it is important that the indoor airflow is determined and refrigerant charge is added accordingly.
Measuring indoor airflow
About this task:
To determine rated airflow for a specific match, consult the technical literature at www.simplygettingthejobdone.com. When attempting to match this airflow, select the lowest possible speed tap, measure the actual airflow, and adjust as necessary. To measure actual airflow, it is not an acceptable method to just check the jumper pin setting tables and to assume 0.5 in. W.C. total external static pressure.
To determine indoor airflow, complete the following steps:
- Measure the static pressure with a manometer between the filter and blower.
- On a single-piece air handler, take a second reading in the supply air duct outside of the unit. On a gas furnace, take the second reading after the heat exchanger but before the indoor coil.
- Add the negative return static to the positive supply static to determine the system total static pressure. Treat the negative return static as a positive pressure (even though it is a negative reading).
- If there is static pressure on the blower return (-0.1), add it to a supply static (0.4) which equals a (0.5) total system static pressure.
- Compare this value to the table for the indoor unit’s static pressure against CFM or to a curve chart.
Charging the system
NOTICE
For cold weather charging of the system at temperatures of 55°F or below, see the Optional cold weather charging procedures near the end of this section.
CAUTION
R-410A refrigerant cylinders are rose-colored. Always charge the system slowly with liquid R-410 refrigerant.
The factory charge in the outdoor unit includes enough charge for the unit, 15 ft (4.6 m) pf interconnecting refrigerant piping, and the smallest indoor coil match-up. Some indoor coil matches may require additional charge. Refer to the Tabular Data Sheet for charge requirements.
CAUTION
Do not leave the system open to the atmosphere. The total system charge must be permanently stamped on the unit dataplate. Complete the following steps to determine the total system charge:
- Determine the base charge shipped in the outdoor unit by referring to the Tabular Data Sheet included with the outdoor unit. (item 1)
- Determine the charge adder for the matched indoor unit by referring to the Tabular Data Sheet. (item 2)
- If the refrigerant piping is longer than 15 ft (4.6 m), calculate the charge adder for actual piping length by referring to the Tabular Data Sheet. (item 3)
- When the charge adders for the matched indoor unit and for the refrigerant piping have been weighed in, verify the system operation against the temperatures and pressures in the charging chart for the outdoor unit. Refer to the charging charts on the outdoor unit or in the Service Application Data on www.simplygettingthejobdone.com.
Follow the subcool or the superheat charging procedure in this section according to the type of indoor metering device in the system and allow
10 min after each charge adjustment for the system operation to stabilize. Record the charge adjustment made to match the charging chart.
(item 4) - Verify that the total system charge = (item 1) + (item 2) + (item 3) = (item 4).
- Permanently stamp the unit data plate with the total system charge as defined in these instructions.
Use this method whenever additional refrigerant is required for the system charge.
WARNING
Do not attempt to pump the total system charge into the outdoor unit for maintenance or service. This may cause damage to the compressor or other components. Recover and weigh the system charge into an appropriate recovery cylinder for any instances requiring evacuation.
WARNING
Do not attempt to pump more than the factory charge and an additional 15 ft line charge into a tube and fin outdoor unit for maintenance or service. This can cause damage to the compressor or other components.
CAUTION
Refrigerant charging must only be carried out by a qualified air conditioning contractor.
CAUTION
Compressor damage will occur if system is incorrectly charged. On new system installations, charge the system as specified in the Tabular Data Sheet for the matched coil and follow guidelines in this manual.
If a calibrated charging cylinder or accurate weighing device is available, add refrigerant accordingly. Otherwise, model-specific charging charts are provided on the access panel of the unit.
Subcooling charging – TXV indoor
About this task:
The outdoor unit comes equipped with subcooling charts optimized for that particular unit. Follow the instructions on the unit. If those instructions are not readily available, follow the instructions below.
- Set the system running in cooling mode by setting the thermostat at least 6°F below the room temperature and operate the system for at least 10 min to 15 min.
- Refer to the Technical Guide for the recommended indoor airflow and verify it is correct (it must be between 350 SCFM/ton and 400 SCFM/ton).
- Measure and record the indoor wet bulb (WB) and the outdoor ambient dry bulb (DB) temperature.
- Using the charging chart located on the unit, find the intersection of the indoor wet bulb and the outdoor dry bulb. This is the recommended liquid pressure (and subcooling value).
- Measure and record the pressure at the liquid valve pressure port and compare to the value obtained in Step 4.
- Add charge if the measured liquid pressure is lower than the recommended value. Remove or recover charge if the measured liquid pressure is above the recommended value.
Example:
The liquid pressure listed at the intersection of the indoor WB and the outdoor DB is 320 psig. The pressure at the liquid valve is 305 psig. It is necessary to add refrigerant to increase the liquid pressure to 320 psig.
Note:
Condenser subcooling is obtained by calculating the difference between the saturated refrigerant temperature of the pressure measured at the liquid base valve and the liquid tube temperature as measured at the liquid base valve.
Subcooling Temperature (TC) = Saturated Temperature (TS) – Liquid Temperature (T)
CAUTION
It is unlawful to knowingly vent, release, or discharge refrigerant into the open air during repair, service, maintenance, or the final disposal of this unit.
R-410A saturation properties
Table 2: R-410A saturation properties
| Temperature | Pressure | Temperature | Pressure |
| °F | psig | °F | psig |
| 45 | 130 | 82 | 243 |
| 46 | 132 | 83 | 247 |
| 47 | 135 | 84 | 250 |
| 48 | 137 | 85 | 254 |
| 49 | 140 | 86 | 258 |
| 50 | 142 | 87 | 262 |
| 51 | 145 | 88 | 266 |
| 52 | 147 | 89 | 270 |
| 53 | 150 | 90 | 274 |
| 54 | 153 | 91 | 278 |
| 55 | 156 | 92 | 282 |
| 56 | 158 | 93 | 287 |
| 57 | 161 | 94 | 291 |
| 58 | 164 | 95 | 295 |
| 59 | 167 | 96 | 299 |
| 60 | 170 | 97 | 304 |
| 61 | 173 | 98 | 308 |
| 62 | 176 | 99 | 313 |
| 63 | 179 | 100 | 317 |
| 64 | 182 | 101 | 322 |
| 65 | 185 | 102 | 326 |
| 66 | 188 | 103 | 331 |
| 67 | 191 | 104 | 336 |
| 68 | 194 | 105 | 341 |
| 69 | 197 | 106 | 345 |
| 70 | 201 | 107 | 350 |
| 71 | 204 | 108 | 355 |
| 72 | 207 | 109 | 360 |
| 73 | 211 | 110 | 365 |
| 74 | 214 | 111 | 370 |
| 75 | 217 | 112 | 375 |
| 76 | 221 | 113 | 380 |
| 77 | 224 | 114 | 385 |
| 78 | 228 | 115 | 391 |
| 79 | 232 | 116 | 396 |
| 80 | 235 | 117 | 401 |
| 81 | 239 | 118 | 407 |
| 119 | 412 |
Optional cold weather charging
NOTICE
For better airflow, the size of the charging tent must be at least 70 in. x 70 in. x 70 in. and must have some adjustable flaps or windows to control the temperature inside the charging tent. The charging tent must not have a floor or floor covering. Follow the system charge procedures from Charging the system.
- Assemble the charging tent.
- Slide the charging tent over the top of the outdoor unit.
- Position the door zipper over the refrigerant piping so the charging tent sits evenly on the ground.
- Make sure the distance around the outdoor unit inside of the charging tent is even for airflow.
- Stake down the edges of the charging tent cover to prevent the unit fan from blowing the charging tent away.
- Start the outdoor unit.
- For better temperature measurement inside the charging tent, use a thermocouple to monitor temperature readings. Locate the thermocouple monitor approximately 8 in. to 10 in. away from the coil guard and 2/3 of the way above the bottom of the coil on the opposite side from the control box.
- Based on the outdoor ambient temperature, begin adjusting windows in order to achieve a stable temperature above 55°F inside the tent. Note that the colder the outdoor ambient temperature is the fewer windows need removal.
- Use the outdoor unit charging chart. Verify that the outdoor ambient temperature listed on the charging chart is the temperature inside the
charging tent. - Carefully adjust the charging tent windows until reaching the desired temperature, and allow the unit to stabilize for a minimum of 15 min. Check the thermocouple to make sure the temperature is still maintained at the preferred temperature. If the temperature is out of range, adjust the windows by opening or closing them.
- When the condition inside the charging tent is stabilized, follow the Charging the system procedures to adjust charge in the unit.
- Add or remove charge and adjust the windows to maintain the preferred temperature inside the tent.
Electrical connections
General information and grounding
The control box cover is held in place with three screws (one screw in each lower corner and one screw at the top center post). The control box can swing open by removing the screw from the center of each side of the control box and allowing the control box to lower 1 in. or so into a pivotal position.
NOTICE
A flexible electrical connection must be installed in order to use the swing away function of the control box. A rigid electrical connection requires the wiring to be disconnected in order to swing the control box open.
The control box can then swing open from the left by rotating on the right side pivots for easy service of refrigeration components. If no wiring is in or routed through the control box, it can be removed from the unit by lifting slightly, tilting the top hinge out, and lifting the bottom hinge out. During the installation, route the low voltage wiring for the thermostat along the flexible line voltage electrical connection to help facilitate the swing away feature of the control box. See Figure 11.
Check the electrical supply to ensure it meets the values specified on the unit nameplate and wiring label.
Power wiring, control (low voltage) wiring, disconnect switches, and over current protection must be supplied by the installer. Wire size must be sized following NEC requirements.
CAUTION
All field wiring must only use copper conductors and be in accordance with Local, National, Fire, Safety and Electrical Codes. This unit must be grounded with a separate ground wire in accordance with the above codes.
The complete connection diagram and schematic wiring label is located on the inside surface of the unit service access panel.
Figure 11: Outdoor unit swing away control box

Field connections power wiring
- Install the correct size weatherproof disconnect switch outdoors and within sight of the unit.
- Remove the screws at the top and sides of the corner cover. Slide the control box cover down and remove from unit.
- Run power wiring from the disconnect switch to the unit.
- Route wires from disconnect through power wiring exit provided and into the unit control box as shown in Figure 11, Figure 12, and Figure 13.
- Install the correct size time-delay fuses or circuit breaker, and make the power supply connections.
Figure 12: Outdoor unit control box (single-phase smaller base)

Figure 13: Outdoor unit control box (single-phase larger base)

Figure 14: Outdoor unit control box (three-phase larger base)

Field connections control wiring
- Route low voltage wiring into bottom of control box as shown in Figure 12 or Figure 13. Make low voltage wiring connections inside the low voltage box as shown in Figure 15.
- The complete connection diagram and schematic wiring label is located on the inside surface of the unit service access panel.
- Replace the control box cover removed in Step 2 of the procedures.
- All field wiring to be in accordance with national electrical codes (NEC) or local city codes.
NOTICE
A Start Assist Kit is available and recommended for long refrigerant piping applications or in areas of known low voltage problems. The kit may be required when a TXV is used (refer to the Tabular Data Sheet to determine if applicable). - Mount the thermostat about 5 ft above the floor, where it is exposed to normal room air circulation. Do not place it on an outside wall or where it is exposed to the radiant effect from exposed glass or appliances, drafts from outside doors or supply air grilles.
- Route the 24 V control wiring (NEC Class 2) from the outdoor unit to the indoor unit and thermostat.
NOTICE
To eliminate erratic operation, seal the hole in the wall at the thermostat with permagum or equivalent to prevent air drafts affecting the operation of the thermostat.
Field wiring
Figure 15: Typical field wiring (air handler/electrical heat) (single-phase)

Figure 16: Typical field wiring (air handler/electrical heat) (three-phase)

Instructing the user
Assist the user with processing warranty cards or online registration. Review the User’s Guide, and provide a copy to the user and guidance on correct operation and maintenance. Instruct the user how to start, stop, and adjust the temperature setting.
When applicable, instruct the user that the compressor is equipped with a crankcase heater to prevent the migration of refrigerant to the compressor during the OFF cycle. The heater is energized only when the unit is not operating in cooling. If the main switch is disconnected
for long periods of shut down, do not attempt to start the unit until 8 h after the switch has been connected. This allows sufficient time for all liquid refrigerant to be driven out of the compressor.
The installer must also instruct the user on correct operation and maintenance of all other system components.
Maintenance
NOTICE
Do not use coil cleaners to clean outdoor coil.
Cleaners containing hydrogen fluoride (HF), hydroxides, chlorides, and sulfates can greatly reduce the lifetime of the micro channel coil.
CAUTION
It is unlawful to knowingly vent, release, or discharge refrigerant into the open air during repair, service, maintenance, or the final disposal of this unit.
- Do not allow dirt to accumulate on the outdoor coils or other parts in the air circuit. Clean as often as necessary to keep the unit clean. Use a brush, vacuum cleaner attachment, or other suitable means.
- The outdoor fan motor is permanently lubricated and does not require periodic oiling.
- If the coil needs to be cleaned, use clean water to wash dust, dirt, and debris from outdoor coil.
- Refer to the furnace or air handler instructions for filter and blower motor maintenance.
- The indoor coil and drain pan must be inspected and cleaned regularly to prevent odors and assure proper drainage.
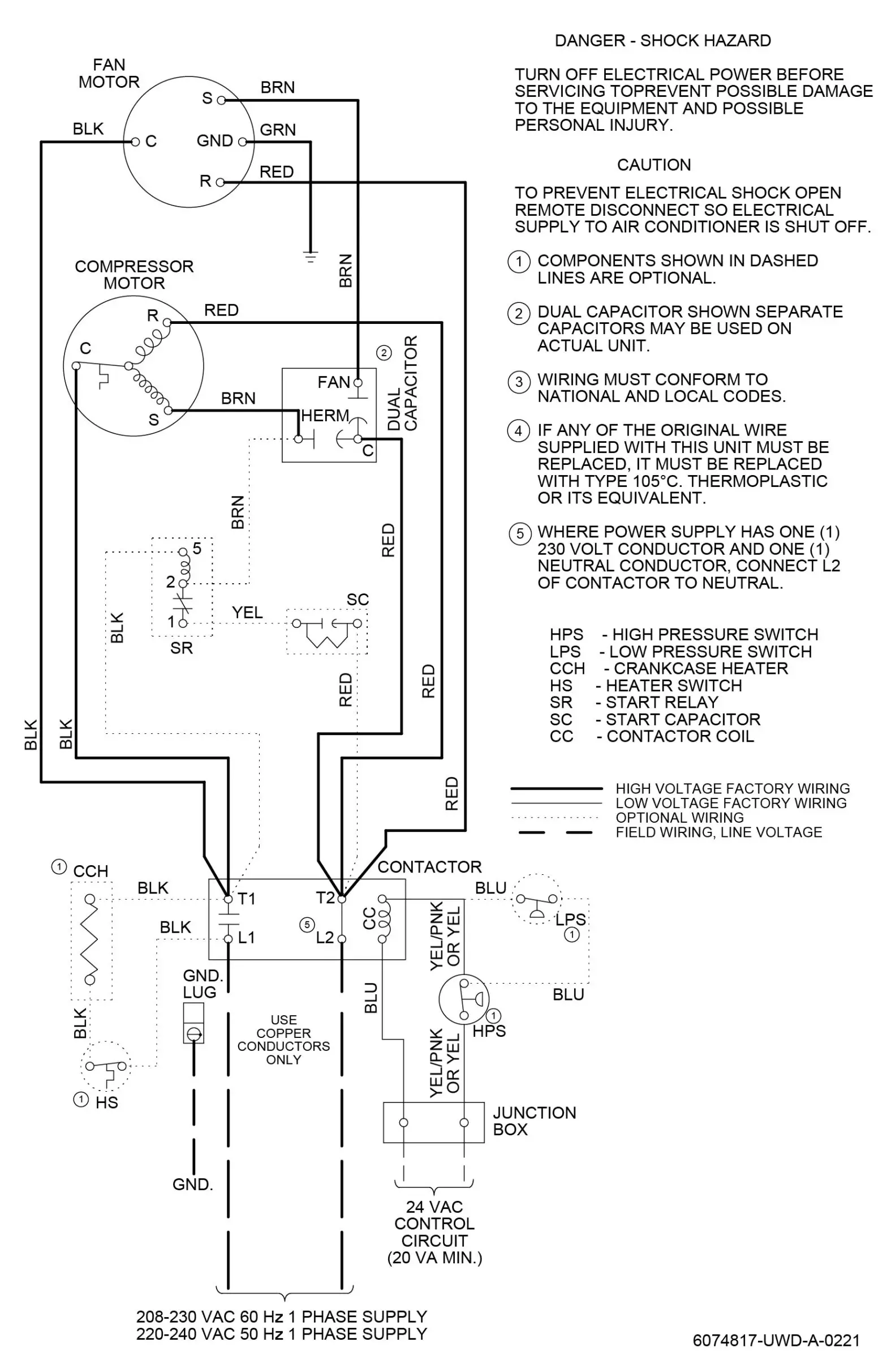
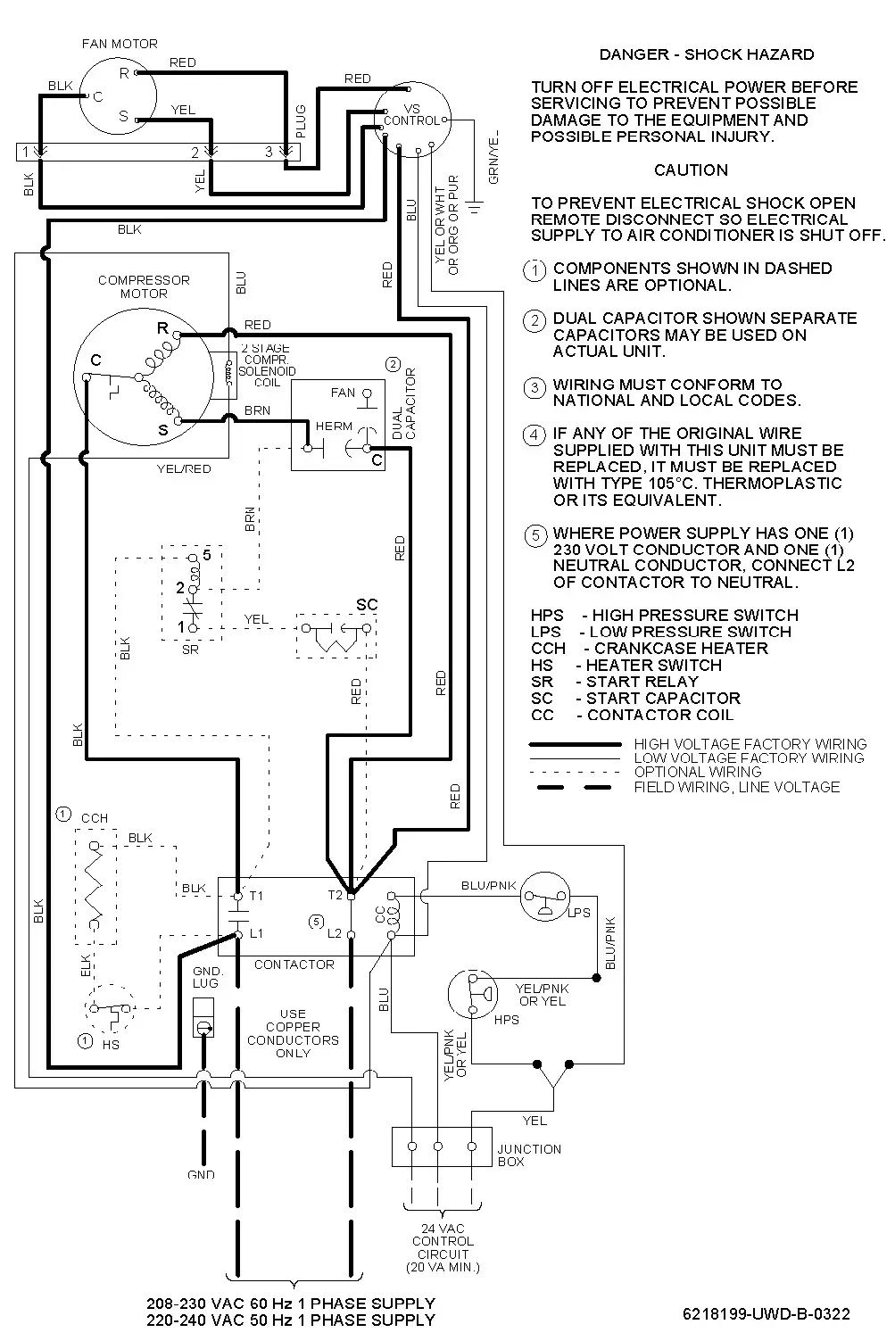
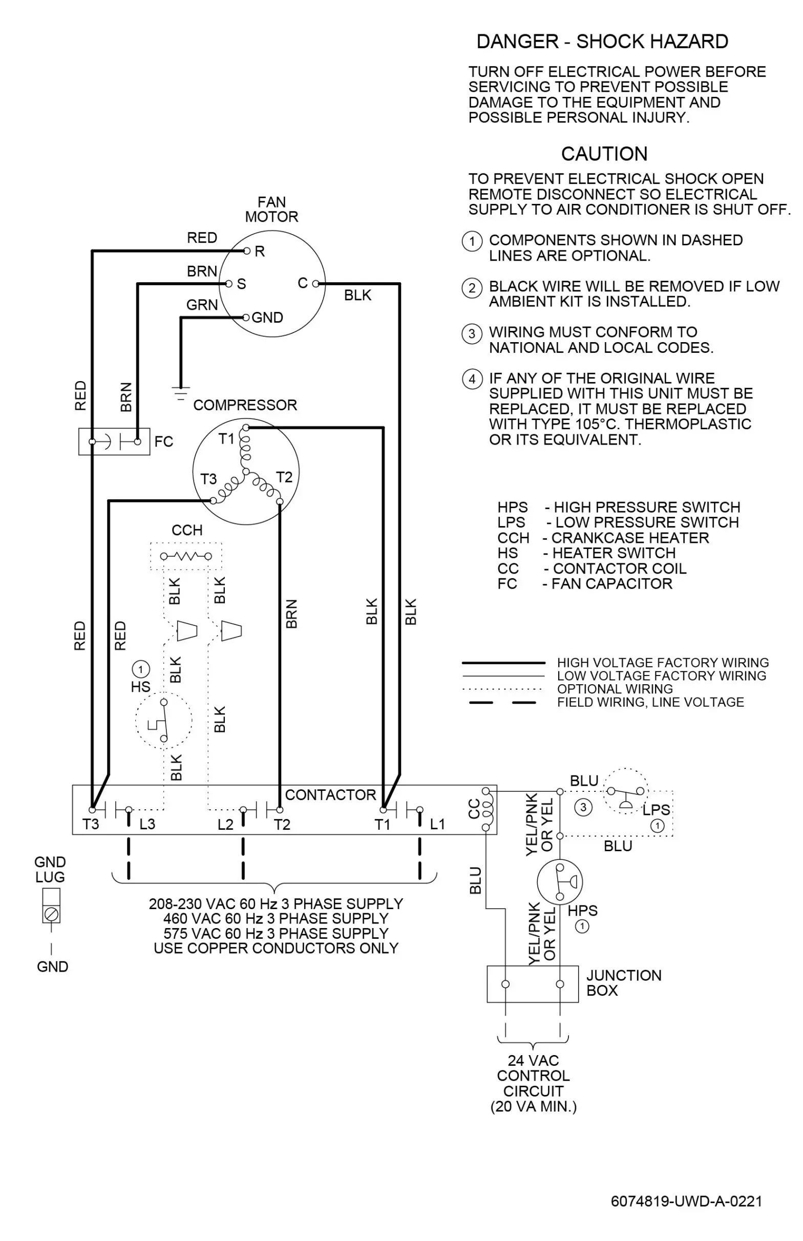
Wiring diagrams
Figure 17: Wiring diagram – single-phase 13.4 and 14.3 SEER2

Figure 18: Wiring diagram – single-phase 15.2 SEER2 – single-stage

Figure 19: Wiring diagram – single-phase 15.2 SEER2 – two-stage

Figure 20: Wiring diagram – three-phase 13.4 SEER2

Start-up sheet
Figure 21: Start-up sheet – page 1
Air Conditioning and Heating Start-Up Sheet Proper start-up is critical to customer comfort and equipment longevity

Figure 22: Start-up sheet – page 2

Subject to change without notice. Published in U.S.A. Copyright © 2022 by Johnson Controls. All rights reserved.
Johnson Controls Ducted Systems



















