better bathrooms BeBa_27485 1160mm Pneumatic Frame and Cistern

Product Information
The 1160mm Pneumatic Frame & Cistern Product BeBa_27485 is a toilet cistern frame designed for installation with Flush Plates (BeBa_27401/BeBa_27402 sold separately). The toilet pan is sold separately and not included with the product. The cistern has its own built-in stop valve for water connection.
Tools required for installation include a screwdriver, spanner, pencil, drill, spirit level, 10mm drill bit, and hacksaw.
The product is manufactured to BS EN14055 WC and urinal cisterns standards. All installation work must comply with the Water Bylaw Regulations and should be designed to allow access for maintenance.
Product Usage Instructions
Water Connection
- Make the connection between the water supply and the cistern tank using a suitable sealing method.
- Once water is connected, you’re ready to build the partition wall following the provided guidance. Construct the wall as required and tile it.
Installation
Whenever possible and safe to do so, it is recommended to carry out leak tests during the installation process.
Fitting Pan Connector:
- If using a straight connector through the wall, position it as required. Ensure no pipes or wires can be damaged before drilling.
- Option 1: Pan connector to be installed into the floor. Position the connector into the frame clip located in the rear recess, then close the clip.
- Option 2: Pan connector to be installed to the side. Position the connector into the frame clip located in the front recess, then the clip.
Installation once wall is constructed:
- Flatten the protective case frame against the wall surface.
- Screw in the levers for the control plate.
- Fix the control plate base.
- Take out the air hose pipe.
Once installation is completed, a full commissioning of the product should be carried out to check for safety, stability, leaks, and function.
Troubleshooting
For troubleshooting assistance, refer to the provided contents section of the user manual.
Maintenance
No specific maintenance instructions are provided in the given text-extract. Please refer to the complete user manual for maintenance guidelines.
1160mm Pneumatic Frame & Cistern Product BeBa_27485
- For installation with Flush Plates – BeBa_27401/BeBa_27402(sold separately)
- Toilet pan sold separately

Please note: Image is for illustrative purposes only and may differ slightly to the actual product
- Multi person assembly
- Tools required
- We always recommend using professional tradespeople to install your product
Congratulations on your purchase
And welcome to our growing gang of savvy shoppers
We’re on a mission to bring you extraordinary bathroom products, for less. From modern to traditional style ceramics, plus the gorgeous fixtures, fittings and furniture to match. So, you can fall in love with your space every single day.
As one of the UK’s largest independent bathroom stores, we’ve received countless awards; including the National Business Awards UK, the Digital Entrepreneur Awards and being placed on The Sunday Times Fast Track 100.
We hope your new product goes above and beyond your expectations. However, should any problems occur, please:
- log in to your account and contact our customer services team via your self-serve portal – betterbathrooms.com/CustomerAccount/Login
- contact us via betterbathrooms.com/content/contact-us
Important information
- Please read these instructions thoroughly and retain for future reference.
- Manufactured to BS EN14055 WC and urinal cisterns.
- All installation work must be carried out to comply with the Water Bylaw Regulations.
- The installation should be designed to allow access for maintenance.
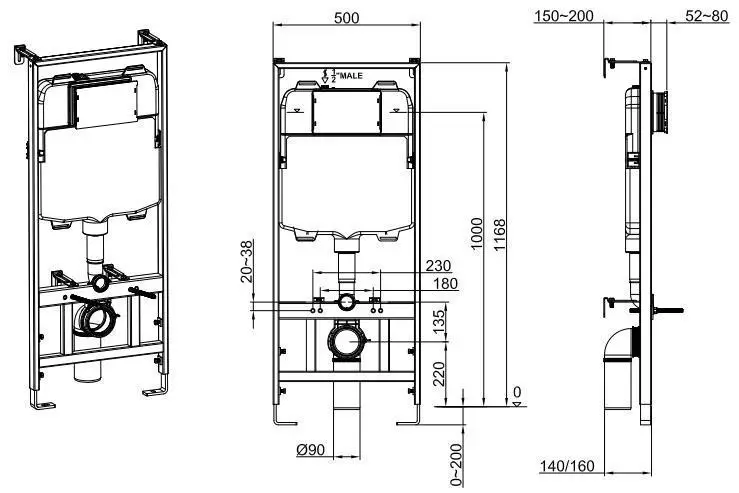
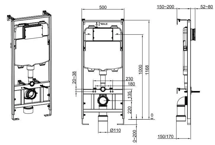
Dimensions


Parts

- Square inlet fixing plate – Pre-fitted
- Tank
- Frame
- Wall fixing brackets and screws
- Flush pipe and bung
- Pan connector and seals
- Adjustable foot
- Adjustable floor foot fixing screw and plug
- Toilet fixings
- Flush pipe protector, use during installation
- Pan connector protector, use during installation
- Fixing bar sleeves, use during installation

- Stop Valve – Pre-fitted
- Cistern
- Inlet valve
- Air control plate
- Flush plate protective cover
- Flush plate (sold separately)
- Flush valve
- Flush pipe vertical
Tools required
- Screwdriver
- Spanner
- Pencil
- Drill
- Sprit Level
- 10mm Drill Bit
- Hacksaw
Installation
Please note:Whenever possible and when safe to do so, it is recommended to carry out leak tests during the installation process
Fitting Pan Connector
If using a straight connector through the wall, you can position as required. Each option below will give you the minimum dimension from the wall to the front of the ?fixing foot
Please note: The desired location should be checked before drilling, that no pipes or wires can be damaged
Option 1: Pan connector to be installed into the floor
Position the connector into the frame clip in the position shown below left, located in the rear recess, then close the clip.

Option 2: Pan connector to be installed to the side
Position the connector into the frame clip in the position shown below left, located in the front recess, then close the clip.

Below show the fixing width dimensions for the wall and floor screws, and the distance from the centre of the pan connector.

Adjusting Frame Height
Once the pan connector is in place, the height of the frame can be adjusted as required along with the depth of the frame from the wall.
- To do this loosen the nuts and bolts in the fixing brackets and adjust as required.
- Check the frame is level and then tighten the nuts and bolts.
- Once the frame is set to the required height and depth, mark the drill holes on the wall, and on the floor. Now you’re ready to secure the frame.

Securing the Frame
- Drill the holes using a 10mm drill bit; it is recommended to place tape over the drill mark if you are drilling into tiles to prevent any slippage.
- Once drilled, if fixing to a solid wall and floor, push the wall plug into the hole.
- Secure the wall bracket to the wall and then position the frame into the required location.
- Tighten the frame to the wall bracket and tighten the nut and bolt.
- Secure the foot into position using the screws provided.

Fitting Protective Covers
Before building the wall, and tiling around the frame, the protective covers need to be fitted to the flush plate housing, flush pipe and pan connector and the fixing bars fixed into place.
- Fit the flush plate fixing bracket (as below), then fit the flush plate fitting box.
Please note: The Flush Plate is sold separately
- Push on the flush pipe and pan connector covers.
- Screw the threaded bars into the frame, as below, ensuring these are in the correct hole to match the holes in the toilet, then push on the sleeves


Water Connection
- Make the connection between the water supply and the cistern tank, using a suitable sealing method as shown below.
Please note: The cistern has its own built in stop valve
- Once water is connected you’re ready to build the partition wall. Use the guidance ? below and construct as required then tile as required.

Installation once wall is constructed
- Flatting the protective case frame against the wall surface
- Screw in the levers for control plate

- Fix the control plate base
- Take out the air hose pipe

- Connect the air hose pipe to the flush plate.

- Attach the flush plate and click into position.

- Remove the pan connector and flush pipe protective covers.
- Push the straight pan connector, flush pipe and remaining parts into the holes in the frame.
- Mark a line at the finished wall surface.

- Remove from the frame and connect them to the flush hole and waste spigot on the rear of the toilet pan (Apply a small amount of washing up liquid to assist).

- Once fully connected, mark the measurements and cut as shown below.

- Prepare the flush pipe and pan connector ends removing any rough edges and create a small chamfer.

Connecting and Hanging the Toilet
- Push the pan connector into the frame then push the flush pipe into the toilet
- Remove the threaded bar sleeves.
- Unscrew the threaded bars, so they extend by dimension A depth of the toilet wall + 25mm.
Please note: You will require two people for this section of the installation - Lift the toilet pan onto the threaded bars.
- Finally, check that the toilet is level, connect the fixings in the order shown below and tighten until the toilet pan is secured.

Please note: Once installation is completed a full commissioning of the product should be carried out to check the installation is safe and stable, check for leaks and check function
Troubleshooting
Cistern tank not filling at all or to the required level
- Check the water supply has been turned back on and is reaching the cistern.
- Adjust the fill level on the cistern as required.
- The filter on the inlet valve could be blocked.
- If none of these resolve the issue replace the inlet valve.
Flush volume into the pan, not sufficient
- Adjust the flush volume level on the syphon.
- Check that the syphon is opening correctly.
- Check that the tubes are connected to the correct inlet on the flush plate.
- If none of these resolve the issue replace the syphon.
Water running into the pan continually after flushing
- Establish if the water level in the cistern is reaching the overflow on the syphon, if it does, adjust the inlet valve.
- If this continues, replace the inlet valve.
- If the water level does not reach the overflow on the syphon, remove the top section of the syphon and check the washer for damage.
- If damaged replace.
Maintenance
The maintenance measures below require you to gain access to the internals of the cistern tank, and for the water supply to be turned off.
- Once you have gained access, turn the adjustment screw in the required direction to adjust the tank fill volume.
- If you need to replace the inlet valve, disconnect the water supply pipe and remove the retaining nut, which holds the inlet valve to the tank and pull the inlet valve from the tank.
- To clear the filter, unscrew the filter section from the inlet valve as shown and run under warm water using a brush to clean away any blockage.?


- It is recommended to remove the pneumatic tubes from the syphon to carry out maintenance.
- To do this, pull each tube from the inlet on the top of the syphon, do not allow these to drop back into the tank.
- To remove the syphon, you will only need to remove the top section, which requires you to twist and lift.
- To adjust the flush volume, move the slider as shown below.
- To remove the washer, turn the syphon upside down and the washer from the housing.





























