elica LIB0184009 Built In Hood

WHAT IN THE BOX

PRECAUTIONS

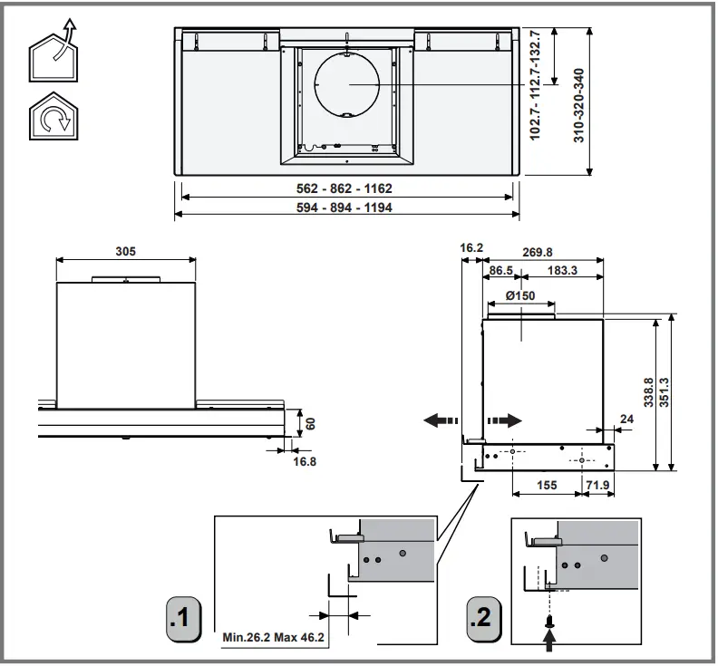
MOUNTING


DIMENSION

INSTALLATION INSTRUCTIONS







Product Information
The product is a ventilation hood available in two versions, aspirating and filtering. In the aspirating version, fumes are evacuated outside through a discharge tube fixed to the connection flange. In the filtering version, the air is purified by filters before being recirculated back into the room. The product has a metal grease filter that needs to be cleaned once a month using non-aggressive detergents, manually or in the dishwasher at low temperature and short cycle. The condensate collection tray needs to be emptied regularly. The product has a reset button for filter saturation indicators. The ventilation hood complies with safety norms: EN/IEC 60335-1; EN/IEC 60335-2-31, EN/IEC 62233.
Product Usage Instructions
Before using the product, carefully read the instructions for installation and use provided in the manual. For aspirating version, connect the discharge tube to the connection flange and ensure that it is properly fixed. For filtering version, install the filters as per the instructions provided. To maintain the product, clean the grease filter once a month using non-aggressive detergents, and empty the condensate collection tray regularly. To reset the filter saturation indicators, press and hold buttons T6 and T5 until they start flashing. For end-of-life disposal, follow your local regulations. To purchase spare parts or optional accessories, visit authorized dealers or websites such as www.elica.com or www.shop.elica.com.
Warnings and installation
The product is designed for the extraction of cooking fumes and steam and it is for domestic use only.
Strictly observe the instructions in this manual. No liability shall be accepted for any inconvenience, damage or fire caused to the product as a result of not following the instructions given in this manual.
The device may have different aesthetic features with respect to the illustrations in this handbook, however the operating, maintenance and installation instructions remain the same.
- It is important to keep all the manuals accompanying the product so that they can be consulted at all times. If sold, transferred or moved, make sure it remains with the product.
- Read the instructions carefully: they contain important information on installation, operation and safety.
- Check the integrity of the product prior to its installation. Otherwise, contact the dealer and do not continue with the installation.
GENERAL SAFETY
- Do not make electrical or mechanical changes on the product or on the exhaust pipes.
- Before doing any cleaning or maintenance work, disconnect the product from the mains power supply by removing the plug or turning off the mains switch.
- For all installation and maintenance operations, always wear work gloves.
- The product can be used by children over the age of 8 and by people with reduced physical, sensory or mental capabilities or without experience or the necessary knowledge, as long as they are properly supervised or have been instructed on how to safely use the device and understand the inherent dangers.
- Children must be supervised to make sure that they do not play with the product.
- Cleaning and maintenance must never be performed by children unless they are properly supervised.
- The room must have sufficient ventilation when the product is used at the same time as other appliances burning gas or other fuels.
- The product must be cleaned frequently both inside and out (AT LEAST ONCE A MONTH); always follow the instructions given in the maintenance manual.
- Failure to comply with the rules indicated for cleaning the product and replacing/cleaning the filters may result in the risk of fire.
- It is strictly forbidden to cook food on the flame under the product.
- When the hob is on, the accessible parts of the product may become hot.
- Do not connect the product to the electrical power supply until the installation is complete.
- The regulations laid down by local authorities must be strictly followed with regard to the technical and safety measures to adopt for fume extraction. •The extracted air must not be conveyed through the same ducts used to extract the fumes generated by gas combustion or other types of combustion products. •Do not use or leave the product without appropriately installed lamps, as this may result in the risk of electric shock.
- The product must NEVER be used without the grille correctly fitted.
- The product must NEVER be used as a support surface unless expressly indicated.
- Range hoods and other cooking fume extractors may adversely affect the safe operation of appliances burning gas or other fuels (including those in other rooms) due to back flow of combustion gases. These gases can potentially result in carbon monoxide poisoning. After installation of a range hood or other cooking fume extractor, the operation of flued gas appliances should be tested by a competent person to ensure that back flow of combustion gases does not occur.
- To replace the lamp, only use the lamp indicated in the maintenance/lighting system section of this manual.
- Using a naked flame may damage the filters and cause a fire hazard, and must therefore be avoided under all circumstances.
- Extra care must be taken when frying to prevent the oil from overheating and catching fire.
- In case of doubt, contact the authorised service centre or similar qualified personnel.
INSTALLATION SAFETY
- Use the fixing screws supplied with the product only if suitable for the surface; otherwise purchase the correct type of screws.
- Check for accessories (e.g. bags containing screws, warranty certificates, etc.) inside the product (placed there for transport reasons). If there are any, remove them and keep them safe.
- WARNING: Failure to install screws and fasteners in accordance with these instructions may result in electrical hazards.
- The exhaust pipe is not supplied and must be purchased.
- The diameter of the exhaust pipe must be equivalent to the diameter of the connecting ring.
- For installation of the product on the hob, respect the height indicated in the drawings
- The minimum distance between the surface of the container supports on the cooker and the lowest part of the range hood must not be less than 50 cm for electric cookers and 50 cm for gas or mixed cookers.
- If the installation instructions of the gas cooker specify a greater distance, take it into account.
Please note: Do not use with a programmer, timer, separate remote control or any other device that activates automatically.
USE: The extraction system can be used in the duct-out version with external evacuation, or in the recirculating version with filtering and internal recirculation.
Duct-Out Version:
Vapours are evacuated outside through an exhaust pipe attached to the connecting flange.
CAUTION: If the product features one or more carbon filters, they must be removed.
Connect the product to wall-mounted exhaust pipes and holes with a diameter equivalent to the air outlet (connecting flange). The use of pipes and outlet holes in the wall with a smaller diameter will reduce the extraction performance and drastically increase the noise level. All responsibility in this regard is therefore denied.
- Use a ducting pipe with the shortest length necessary.
- Use a ducting pipe with the least number of bends possible (maximum bend angle: 90°).
- Avoid drastic changes in the ducting pipe diameter.
Recirculating Version: The suctioned air will be degreased and deodorized before it is sent back into the room. To use the product in this version, it is necessary to install an additional activated carbon filter system.
ASSEMBLY BEFORE INSTALLATION
- Check that the product is the right size for the installation area.
- Remove the activated carbon filter(s) if supplied (see also relevant paragraph).
- It(they) must be reinstalled if the product is used in the filter version.
- If there are panels and/or walls and/or wall units on the sides, make sure that there is enough space to install the product and that it is always possible to access the control panel easily.
- The product is equipped with fixing plugs suitable for most walls/ceilings. However, it is necessary to consult a qualified technician to make sure that the materials are suitable for the type of wall/ceiling. The wall/ceiling must be strong enough to support the weight of the hood.
Tips and requirements for optimal use of the NO DRIP SYSTEM
This product has been designed in such a way as to prevent the formation of condensation on its lower surfaces when it is placed on top of an induction hob.
Unlike gas or electric hobs, induction hobs only heat the food containers and not the surrounding air, so the surfaces of the hood are cold.
When the hot cooking fumes rise, they meet the cold surfaces of the hood, condense and then release the moisture in the air, which quickly turns into drops
of water, which then inevitably fall onto the hob and onto the food, bringing grease and impurities with them.
Thanks to the inclined lower surface of the hood, any condensation flows into a special tray.
- For maximum performance of the NO DRIP SYSTEM, when cooking high moisture foods, it is advisable to use the hobs at the back.
- The grease filters should not be removed once cooking has terminated to allow time for the collected condensation in the grease filter to settle in the tray.
- The rate of condensation collection increases with increasing suction speed (power).
- The NO DRIP SYSTEM offers the best performance in an environment with a temperature between 18°C and 25°C.
- Always open the steam collector (panel) to its full range of motion.
ELECTRICAL CONNECTION SAFETY
- The mains voltage must correspond to the voltage indicated on the label found inside the product.
- If it features a plug, connect the product to a socket that complies with current standards, located in an area accessible even after installation.
- I f it does not feature a plug (direct connection to the mains) or the plug is not located in an accessible area, even after installation, apply a standard double pole switch that ensures complete disconnection from the mains in category III overvoltage conditions, in accordance with the installation rules. •The product features a special power cable; if the cable is damaged, contact the Service Centre for a replacement.
- Please note: Before reconnecting the circuit to the mains power supply, make sure that it is working correctly, always check that the power cable is correctly installed.
MAINTENANCE WARNINGS
- Cleaning: For cleaning, simply use a cloth moistened with neutral liquid detergents. Do not use cleaning tools or instruments.
- Avoid the use of abrasive products. DO NOT USE ALCOHOL!
For product maintenance, see the images at the end of the installation marked by this symbol.
Anti-Grease Filter: The metallic anti-grease filter must be cleaned once a month with non-aggressive detergen-ts, manually or in a dishwasher on a short wash at low temperatures. To remove the anti-grease filter, pull the spring re-lease handle.- The Anti-Grease Filter traps the grease particles produced during cooking. When cleaned in the dishwasher, the metal grease filter may discolour, but its filtering characteristics remain unchanged.
Carbon filter (for filter version only): The cartridge must be replaced at least every four months. It CANNOT be washed or regenerated. As indicated in the drawings section: remove the anti-grease filters, apply a carbon filter on each side and attach it to the product. Put the anti-grease filters back in place.- The carbon filter retains any unpleasant odours produced during cooking. • The saturation of the carbon filter can occur after somewhat prolonged use depending on the type of cooking and how regularly the grease filter is cleaned.
Maintenance of the condensation drip tray
The tray should be emptied and cleaned AT LEAST once a week or more frequently depending on the use of the hood.
- Place a container under the drain hole.
- Press the tab down to open the drain and empty the condensation.
- Lighting system: The lighting system cannot be replaced by the user, contact Customer Service in case of malfunc-tion.
- The lighting system is based on LED technology. LEDs provide optimal illumination, last up to 10 times longer than conventional lamps and save 90% of electricity.
OPERATION
T1 = Motor OFF button.
T2 = Suction power 1 selection button.
T3 = Suction power 2 selection button.
T4 = Suction power 3 selection button.
T5 = Intensive suction power 4 selection button.
It lasts 5 minutes, after which it goes back to the previously selected setting.
It is possible to exit this mode by pressing any button.
T6 = Light ON/OFF button.
NB: Please note that there will be a 5-second delay when switching directly to suction power 1 (from any other speed) due to the electronic control of the product.
Filter Saturation indicator lights
At regular intervals, the hood signals the need to perform maintenance on the filters.
- Keys T6 and T5 on with light flashing very slowly: the grease filter requires maintenance.
- Keys T6 and T5 on with light flashing quickly: the odour filter requires maintenance.
Note: The filter saturation warning signal is visible within the first 10 seconds after the hood is switched on.
Reset filter saturation indicator:
Press and hold keys T6 and T5, the keys will flash quickly to confirm the reset.
Activation of filter saturation indicators:
Note: this operation must be performed with the hood off.
Grease filter
press and hold keys T6 and T5 to activate the function, the keys will light up and the light will flash very slowly, indicating that the grease filter indicator can be activated.
Note: Press keys T2 and T1 to activate or deactivate.
Odour filter
Press and hold keys T6 and T5 to activate the function, the keys will light up and the light will flash quickly, indicating that the odour filter indicator can be activated (normally deactivated).
Note: Press keys T2 and T1 to activate or deactivate.
END-OF-LIFE DISPOSAL
This device is marked in compliance with the European Directive 2012/19/EC – UK SI 2013 No.3113, Waste Electrical and Electronic Equipment (WEEE). Make sure that this product is disposed of correctly. The user helps prevent potential negative consequences for the environment and for health.
The symbol on the product or accompanying documentation indicates that this product should not be treated as household waste but should be handed over at a suitable collection point for the recycling of electrical and electronic equipment. Dispose of it in accordance with local regulations for waste disposal. For further information about the treatment, recovery and recycling of this product, please contact your local authority, the collection service for household waste or the shop from where the product was purchased.
RECOMMENDATIONS FOR USE
Recommendations for correct use in order to reduce the impact on the environment: When cooking begins, the device should be turned on at minimum speed, and left on for a few minutes even after cooking is complete. Increase the speed only if there is a large quantity of fumes and steam, using the Booster function only in extreme cases. To keep the odour reduction system running efficiently, replace the carbon filter/s when necessary. To ensure the high performance of the grease filter, clean it when necessary. To improve efficiency and minimise noise, use the maximum duct diameter indicated in this manual.
REGULATIONS
Equipment designed, tested and manufactured in compliance with safety regulations: EN/IEC 60335-1; EN/IEC 60335-2-31, EN/IEC 62233. Performance: EN/IEC 61591; ISO 5167-1; ISO 5167-3; ISO 5168; EN/IEC 60704-1; EN/IEC 60704-2-13;EN/IEC 60704-3; ISO 3741; EN 50564; IEC 62301. EMC: EN 55014-1; CISPR 14-1; EN 55014-2; CISPR 14-2; EN/IEC 61000-3-2; EN/IEC 61000-3-3.
NOTES
- the parts marked with this symbol can be purchased separately from specialised dealers.
- the parts marked with this symbol are optional accessories supplied only with some models and can be purchased from the websites www.elica.com and www.shop.elica.com.
The versatility of features that range from lighting, to suction and cooking, helps create products that were born to amaze. High-quality materials, careful attention to detail, strong passion for design each in their core essence play a leading role in our products capable of transmitting emotions.
QR SCAN
Elica, aria nuova
FRAME AND DISCOVER

Carbon filter (for filter version only): The cartridge must be replaced at least every four months. It CANNOT be washed or regenerated. As indicated in the drawings section: remove the anti-grease filters, apply a carbon filter on each side and attach it to the product. Put the anti-grease filters back in place.

















