
Operating and maintenance instructions for hobs

THIS APPLIANCE IS CONCEIVED FOR DOMESTIC USE ONLY. THE MANUFACTURER SHALL NOT IN ANY WAY BE HELD RESPONSIBLE FOR WHATEVER INJURIES OR DAMAGES ARE CAUSED BY INCORRECT INSTALLATION OR BY UNSUITABLE, WRONG OR ABSURD USE.
The manufacturer declares that this product meets all the essential requirements for low voltage electrical material set out in European directive 2006/95/EEC of 12 December 2006 and for electromagnetic compatibility as required by European directive 2004/108/EEC of 15 December 2004.
User’s Instructions
Installation
All operations relative to installation (electric connection) should be carried out by skilled personnel in conformity with the rules in force. As for the specific instructions see part pertaining to installer.
Use
Control knobs (fig 1)
- Control knob
- Mains indicator light
- Residual heat indicator
- Cooking zone identification
- Cooking zone
Cooking zones are controlled by knobs connected to an energy regulator numbers 1 to 6 are used to indicate cooking settings, turning clockwise where 1 is the minimum setting and 6 the maximum setting. number 0 signifies the off position.
The zone controlled by each knob is identified by the adjacent cooking zone identification.
Mains indicator light
The mains indicator light is switched on when one or more of the heating elements are operating.
Residual heat indicator (hot hob indicator)
Each heating element has a corresponding residual heat indicator light. this switches on automatically once the corresponding cooking zone has reached a temperature of 50°c and above. once a cooking zone has been turned off, the corresponding light will stay on for a period of time necessary for the zone to cool down to 50°c
Precautions (Fig. 2)
- When one makes use of heating elements, we advise receptacles with flat bottom having same diameter or lightly higher than that of the hot area.
- Avoid overflows of liquid, therefore when boiling has happened, or in any case, when liquid is heated, reduce the heat supply.
- Don’t leave the heating elements on without receptacles on the top or with void pots and pans.
- If the surface of the hob is damaged, immediately disconnect the appliance from the mains to prevent the possibility of electric shock.
- This appliance hood is not designed to be used by people (including children) with reduced physical, sensorial or mental capacity, or who lack experience or knowledge about it, unless they have had supervision or instructions on how to use the appliance by someone who is responsible for their safety.
Maintenance (Fig. 3)
By means of a scraper immediately remove any aluminum foil bits, food spills, grease splashes, sugar marks, and other high sugar content food from the surface in order to avoid damaging the hob.
Subsequently, clean the surface with some towel and appropriate product, rinse with water and dry by means of a clean cloth. Under no circumstance should sponges or abrasive cloths be used; also avoid using aggressive chemical detergents such as oven sprays and spot removers.
Installer’s Instructions
Installation
These Instructions are for the qualified technician, as a guide to installation, adjustment, and maintenance, according to the laws and standards in force. These operations must always be carried out when the appliance has been disconnected from the electric system.
Positioning
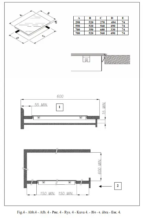
The appliance can be fitted into a working area as illustrated on the figure 4. Apply the seal supplied over the whole perimeter of the working area.
If once the appliance is installed there is access to the lower part, a protection panel (wooden or something similar) ought to be placed at the distance indicated in the figure.
Electrical connection
Prior to carrying out the electrical connection, please ensure that:
- the plant charac- teristics are such as to follow what is indicated on the matrix plate placed at the bottom of the working area;
- that the plant is fitted with an efficient earth connection, following the standards and law provisions in force. The earth connection is compulsory in terms of the law.
Should there be no cable and/or plug on the equipment, use suitable absorption material for the working temperature as well, as indicated on the matrix plate. Under no circumstance must the cable reach a temperature above 50°C of the ambient temperature.
Insert in the fixed wiring a mean for disconnection from the supply mains having a contact separation in all poles that provide full disconnection under overvoltage category III conditions, in accordance with the wiring rules. The plug or omnipolar switch must be easily reached on the installed equipment.
This appliance is not intended to be used via an external timer or a remote control system.
The manufacturers decline any responsibility in the event of non-compliance with what is described above and the accident prevention norms not being respected and followed.
To avoid all risk, if the power cable becomes damaged, it must only be replaced by the manufacturer, by an authorised service centre, or by a qualified electrician.
(Fig. 5)
*considering complementary factor






![]()
CATA ELECTRODOMÉSTICOS, S.L.
c/ del Ter, 2 – Apartado 9 – 08570 TORELLÓ – (Barcelona – SPAIN)
Tel. +34 938 594 100 – Fax +34 938 594 101
www.cnagroup.es – e-mail: [email protected]
Atención al Cliente: 902 410 450 – [email protected]
SAT Central Portugal: 214 349 771 – [email protected]
















