Everhot Electric Stove Room Heater & Oven User Manual

The Everhot Electric Stove is only suitable for well insulated spaces or occasional use
PRODUCT SPECIFICATION
The Product has been designed and tested to comply with the following regulations and standards:
- Directive 2011/65/EU – Restriction on the use of certain hazardous substances in electrical and electronic equipment
- Directive 2014/35/EU – Safety Regulations pertaining to making available on the market of electrical equipment designed for use within certain voltage limits
- Directive 2009/125/EC – EcoDesign Regulations for energy related products
- BS EN 60355-2-30 – Household Electrical Appliances – Safety; Room Heaters
- BS EN 60355-2-12 – Household Electrical Appliances – Safety; Warming Plates
- BS EN 60355-2-2 – Household Electrical Appliances – Safety; Ovens
SAFETY INFORMATION
WARNING: Do not use this heater in the immediate surroundings of a bath, a shower, or a swimming pool.
WARNING: This appliance and its accessible parts become hot during use. Care should be taken to avoid contact with heating elements, the internal surfaces of the oven, the upper grille and surround area during use.
WARNING: Children must not play with the appliance.
WARNING: Unattended cooking on a hob surface with fat or oil can be dangerous and may result in fire. NEVER try to extinguish a fire with water. Switch off appliance and then cover flame with a lid or blanket.
WARNING: DO NOT COVER. To avoid overheating, the appliance should not be covered during operation. This symbol is also marked on the side of the appliance as a reminder not to cover it during operation.
WARNING: Danger of fire – do not store items on the cooking surfaces.
WARNING: Children under 8 years of age should be kept well away unless constantly supervised. Children over 8 years of age and those with reduced physical, sensory or mental capacities, or a lack of knowledge and experience may use this appliance, provided that they are given supervision or instruction in its proper use and the hazards associated with such use. Cleaning and user maintenance shall not be undertaken by children without appropriate supervision.
WARNING: — Some parts of this product can become very hot and cause burns. Particular attention must be given where children and vulnerable people are present.
WARNING: If the supply cord is damaged, it must be replaced by the manufacturer, its service agent or similarly qualified persons in order to avoid a hazard.
WARNING: The use of inappropriate hob guards not recommended by the manufacturer can cause accidents.
WARNING: The appliance must not be installed behind a decorative door to prevent overheating.
CAUTION: For indoor use only
CAUTION: If the appliance is placed on a base, it must be ensured that the appliance cannot slip from the base
CAUTION: The cooking process must be supervised. A short-term cooking process must be supervised continuously.
CAUTION: Do not use a steam cleaner to clean the appliance.
CAUTION: This appliance is not intended to be used for cooking utilising a timer switch/plug or remote-control system.
CAUTION: The appliance must not be immersed in water to any depth for cleaning. A wetted cloth may be used for cleaning. Dry with a clean, dry cloth after cleaning.
CAUTION: Only use a mains cable suitable for the appliance. A suitable cable set can be purchased from the manufacturer.
CAUTION: Ensure that the supply cable is not draped over the top of the appliance during and/or after use .
INTRODUCTION
The Everhot Electric Stove is the perfect blend of traditional good looks and modern efficiency. A 1.5kW thermostatically controlled heating element gently warms the room and behind the cast iron door is a 20 Litre oven, perfect for cooking small dishes.
The Everhot Electric Stove is controlled by a mechanical thermostat that is integrated within the appliance. The heat output from the appliance increases inline with the temperature of the oven. A chart of approximate oven temperatures is given on Page 9 of this booklet.
The Everhot Electric Stove is designed for indoor use only; It is intended primarily as a heat storage room heater, with the option to use the oven space for occasional cooking. It is not intended to be the sole or primary heating source in a residence.
SETTING UP
Prior to installing your Everhot Electric Stove, inspect all of the following, checking they are present and undamaged
- Everhot Electric Stove Room Heater/Oven combo
- Room heater shell
- Top Grille Plate
- Oven Shelf
- 1.5m Power Cord with UK 3 Pin Plug (BS1363 Type G)
- Instruction Booklet

INSTALLATION PROCESS
- Place on a solid surface to conduct the checks above.
- Ensure a 3 Pin (Type G), 13A mains socket to BS1363 is situated within reach of the appliance’s intended position. The power cable is 1.5m long. The socket must not be directly above the heater and must not be situated such that the supply cord must be rested upon the top or wrapped around the side of the heater.
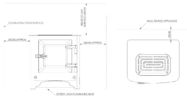
- Place in final position. The heater must be situated indoors and should be placed with a gap of approximately 25cm either side of the shell to surrounding surfaces, and a minimum of 100mm from the rear to any surface or wall. The heater is not recommended to be placed on deep or thick pile carpets for stability purposes. It can however be used on thin pile carpets, wooden floors and other, fire-resistant hard floors. The heater does not require its own hearth. Note: Damage to the finish around the feet can be caused from dragging the appliance along hard surfaces.
- For safety purposes, the appliance should be situated at floor or hearth level, and not on a pedestal or table.
WARNING: Do not use this heater in the immediate surroundings of a bath, a shower, or a swimming pool
CAUTION: For indoor use only
CAUTION: If the appliance is placed on a base, it must be ensured that the appliance cannot slip from the base
WARNING: The appliance must not be installed behind a decorative door to prevent overheating.
WARNING: Children must not play with the appliance.
- Check heater is stable, and that there are no flammable materials within a 25cm radius surrounding it. Hot air is emitted from the top of the appliance, and so it must not be placed under a countertop or table. A minimum of 300mm free air above the appliance is recommended. A restriction in the free air around the appliance will reduce the temperatures the oven will reach.
- Check oven space is empty
- Install shelf with the lip of the shelf at the front of the oven. The lip limits the maximum insertion depth of the oven when it makes contact with the shelf supports
- Plug in to mains supply. The appliance will draw up to 1.6kW (6.5A approx.) during normal operation. It is not recommended to run the appliance from an extension lead for an extended period of time.
- Turn on appliance. The power button will be almost flush with the surround when in the “On” Position
- Run for 2-3 hours at maximum power to burn off any oils and binders left over from the manufacturing process and allow the insulation to settle at working temperatures. Odours may be given off from the materials used to insulate the appliance during this time. These odours will disappear within a few hours.
- Ensure the main power switch is in the off position (button proud of shell) when not in use.
RUNNING INSTRUCTIONS
WARNING: Unattended cooking on a hob surface with fat or oil can be dangerous and may result in fire. NEVER try to extinguish a fire with water. Switch off appliance and then cover flame with a lid or blanket.
WARNING: Danger of fire – do not store items on the cooking surfaces
WARNING: If the supply cord is damaged, it must be replaced by the manufacturer, its service agent, or similarly qualified persons in order to avoid a hazard.
CAUTION: This appliance is not intended to be used for cooking utilising a timer switch/plug or remote- control system
CAUTION: During and after use. Ensure that the supply cable is not allowed to rest over the top of the appliance
CAUTION: The cooking process must be supervised. A short-term cooking process must be supervised continuously.
Setting Temperatures
WARNING: This appliance and its accessible parts become hot during use. Care should be taken to avoid contact with heating elements, the internal surfaces of the oven, the upper grille and surrounding area during use.
The thermostat dial is marked around the outside denoting the direction in which the heat output of the appliance increases. Approximate oven temperature values are given below.
* at minimum position heater will not operate unless room temperature is low. The oven temperature will therefore be close to room temperature
These temperatures are indicative only and may vary based on installation circumstances.
The oven temperature is not directly controlled. The temperature is liable to drop if cold or room temperature food is put into the oven and may take longer to recover the lost temperature than a cooker.
The heater is fitted with a self-resetting maximum temperature limiter. This will trigger in the event of the adjustable thermostat failing, to prevent dangerous surface temperatures from occurring.
Advice for Use
WARNING: DO NOT COVER. To avoid overheating, the heater should not be covered during operation
WARNING: Do not use this heater in the immediate surroundings of a bath, a shower, or a swimming pool
WARNING: Children under 8 years of age should be kept well away unless constantly supervised. Children over 8 years of age and those with reduced physical, sensory or mental capacities, or a lack of knowledge and experience may use this appliance, provided that they are given supervision or instruction in its proper use and the hazards associated with such use. Cleaning and user maintenance shall not be undertaken by children without appropriate supervision.
WARNING — Some parts of this product can become very hot and cause burns. Particular attention must be given where children and vulnerable people are present.
CAUTION: The cooking process must be supervised. A short-term cooking process must be supervised continuously.
CAUTION: If the appliance is placed on a base, it must be ensured that the appliance cannot slip from the base
This appliance is intended as a room heater & occasional oven. It is not intended to replace a cooker or range cooking appliance.
The oven space has a maximum weight capacity of 10kg. This capacity should not be exceeded.
After using the oven for cooking, the appliance should be left running on full power for 30-60 minutes to evaporate any moisture that has accumulated in the oven space.
Due to the high thermal mass of the Electric Stove, the appliance will take some time to heat up when initially switched on. However, this thermal mass also means that the appliance stays warm for some time after switching off due to the heat storage effect. Because of this, the heater works best when left on for several hours, and the temperature regulated with the integrated thermostat, rather than by turning the heater on and off during use.
The appliance supplies a gentle, constant heat to the room. The stove is therefore not suitable for rapidly heating up a cold space but is ideal for maintaining comfort in the room over a longer period of time. The stove emits heat in all directions through convection. It is not intended to produce a directional heat in the same manner that a fan heater would.
Do not run the appliance with the door left open as this may result in heat discoloration occurring on the front and top of the appliance.
For longevity and versatility, the appliance does not utilize electronics for regulation or control, meaning it can operate at low and/or unstable voltages. Its’ ability to run on low and/or unstable voltage, coupled with its heat storage capabilities, make it perfect for use in areas with unreliable or unstable electricity supplies, and as a dump load for renewable energy controllers, subject to a suitable controller being used.
TROUBLESHOOTING /FAQ
The below are some common issues and questions, and their resolutions
Issue: The appliance does not heat up
Resolution: Check that the appliance is plugged in, that the socket is switched on, and that the device power button is pushed in. Check that the thermostat is set to at least position 1. Turn fully clockwise to max to check the thermostat functions. There should be an audible click during the thermostats travel. Check the socket by plugging in and switching on a difference device (for example a hairdryer, radio or vacuum cleaner)
Issue: The oven temperature is too Low/High
Resolution: The oven temperature is indirectly controlled by the setting of the heater. You may need to adjust the thermostat of the heater to achieve the desired heat in the oven. The appliance can take some time to reach a steady temperature. If the oven temperature was set during this warm-up phase, it may need to be adjusted when steady conditions are reached. The oven temperature is an indirect product of the heater temperature. A warm and/or still room may result in a lower oven temperature due to the appliance heating for less time, and vice versa for a cold and/or drafty room.
Issue: The door does not stay still when open
Resolution: Check the floor level. Open the door so it is at 90 degrees to the front of the appliance. If the door tends to swing shut, the left-hand side of the appliance is lower than the right, and vice versa should the door tend to swing further open. The door will also tend to swing should the rear of the appliance be lower than the front.
Issue: The thermostat dial is loose/has come off
Resolution: The thermostat dial is held onto a spindle with a grubscrew. This grubscrew has come loose and requires tightening with an appropriately sized Allen key. If the thermostat dial has come off completely, simply slide it back onto the spindle, with the grubscrew oriented such that it will screw down onto the flat part on the spindle. Turn the grubscrew clockwise with the allen key to tighten.
CLEANING INSTRUCTIONS
WARNING: Do not use a steam cleaner to clean the appliance.
WARNING: The appliance must not be immersed in water to any depth. A wetted cloth may be used for cleaning. Dry with a clean, dry cloth after cleaning.
WARNING: The use of inappropriate hob guards not recommended by the manufacturer can cause accidents.
Cleaning the outer surfaces (excluding heat vent)
Clean the exterior enamel surfaces with a warm soapy cloth. The longer spills or marks are left the harder they are to remove.
NOTE: Do not use abrasive cleaners or caustic cleaning products; for example, Mr Muscle® or Astonish® etc
Please note that as a product made from cast iron and heavy gauge metal, some surface dimples, markings, and imperfections are unavoidable elements of the base materials.
Cleaning the Heat Vent
Clean the aluminium surfaces with a warm soapy cloth. For more stubborn spills and marks, use a dampened mildly abrasive Spontex® Brilliant scourer.
Use a motion consistent with the existing grain of the vent to blend the abrasive marks into the finish.
Cleaning the oven
WARNING: Do not use a steam cleaner to clean the appliance.
The oven should be wiped clean when cold, with a damp soapy cloth. The oven tray can be removed and washed by hand or by dishwasher. Abrasives and scourers are not recommended as they will damage the surface finish of the oven.
Lift off the oven door and lay it face down on a towel or similar soft surface for cleaning. Clean the stainless steel door box by wiping with a damp, soapy cloth. For more stubborn marks, use a dampened mildly abrasive Spontex® Brilliant scourer or Scotch-Brite® cloth along with Barkeepers Friend spray. Rub following the natural grain of the material.
After cleaning the oven, run the stove for 1-2 hours on full power to thoroughly dry the oven.
WARRANTY
Everhot Ltd. undertakes that if, within 24 months of the date of purchase, this appliance or any part thereof is proved to be defective by reason only of faulty workmanship or materials, we will repair the same free of any charge for labour or materials on condition that:
- The appliance has been correctly installed and used only on the electricity supply stated on the rating plate, or in a renewable system with an appropriate energy controller.
- The appliance has been used for normal domestic purposes only, and in accordance with the manufacturer’s instructions.
- The appliance has not been serviced, maintained, repaired, taken apart or tampered with by any person not authorised by us.
- All service work under this guarantee must be undertaken by an Everhot appointed body.
- Any appliance or defective part replaced shall become the property of Everhot Cookers.
Exclusions
This guarantee does not cover:
- Damage or calls resulting from transportation, improper use or neglect, including water damage from spillages.
- Damage caused to the base material or finish caused by misuse
- Costs incurred for calls to put right an appliance, which is improperly installed or calls to an appliance outside the UK mainland.
- Appliances found to be in use within a commercial environment.
- Appliances found to have no fault
WARRANTY RETURNS
Items to be repaired under warranty will be conducted either in-situ or on a return basis. If you wish to make a warranty repair request, please contact the manufacturer, who will endeavour to send either a service engineer to repair the appliance, or a courier to collect the appliance to return it for repair.
User Instruction Booklet – Everhot Electric Stove Issue 1D December 2020

Everhot Cookers
Coaley Mill
Coaley, Dursley
GL11 5DS
Everhot Electric Stove Room Heater & Oven User Manual – Optimized File
Everhot Electric Stove Room Heater & Oven User Manual – Original File



















