HUAWEI UPS5000-E Modular Power Supply

Issue: 11
Part Number: 31507656
Date: 2022-12-30
Overview
| UPS Model | Cabling Mode | Capacity | Weight | Dimensions (H x W x D) |
| UPS5000-E- 300K-SM | Routed in and out from the bottom | 250 kVA, 300 kVA | 440 kg | 2000 mm x 600 mm x 850 mm |
| UPS5000-E- 300K-SMT | Routed in and out from the top | 450 kg |
UPS5000-E-300K-SM

UPS5000-E-300K-SMT

- Power modules
- Bypass module
- Control module (CM)
- Power distribution subrack cover
- Monitor display unit (MDU)
- Filler panels
- Maintenance bypass switch
- Folder
Notice
- Before installation, read the user manual carefully to get familiar with product information and safety precautions.
- Use insulated tools during installation and operation.
- Only Huawei engineers or engineers certified by Huawei are allowed to install, commission, and maintain the UPS. Otherwise, personal injury or equipment damage may occur, and the resulting UPS faults are beyond the warranty scope of Huawei.
- This document describes how to install a single UPS. For details about how to install parallel systems, contact Huawei technical support.
Installing the UPS
Secured Installation
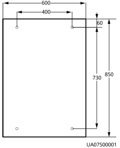
- Determine the position for installing the cabinet. Mark mounting holes based on the drawings (unit: mm).

- Use a hammer drill to drill four holes for installing expansion bolts and then install four expansion bolts in the holes. Remove the bolt, spring washer, and flat washer.
- Slide the cabinet on its castors to the installation position.
- (Optional) If the castors of the UPS need to be lifted from the ground, perform Step 1 to Step 2 in Non-Secured Installation.
- Remove the rear panel of the cabinet, and then open the front door.

- Remove the four rubber plugs from the bottom of the cabinet (two on the front and two at the back).

- Insert four M12x115 expansion bolts into the expansion bolt holes in the floor, and tighten the expansion bolts.
Non-Secured Installation

- Lower the four leveling feet at the bottom of the cabinet by using a wrench until all the four castors at the bottom hang in the air and the leveling feet bear the whole cabinet weight.
- Check whether the bottom of the cabinet is horizontal by using a level. If the cabinet is not leveled, adjust the leveling feet.
Connecting Cables
UPS Cable Connection Reference
Warning

- Prepare cables away from the cabinets to prevent scraps from falling inside. Cable scraps may ignite and cause personal injury or device damage.
- After cables have been installed, clean the cabinets in a timely manner. Keep the cabinets and surrounding environment clean and tidy.
- You need to prepare terminals onsite. The stripped length of the copper wire should be the same as that of the part of the terminal that covers the conductor.
Note: The cabling route is for reference only. Connect cables based on site requirements.
- This document describes cable routing by removing the top cover when there are two mains inputs.
- In the case of single mains, you do not need to connect bypass input power cables and remove short-circuit copper bars.
Connecting Cables to the UPS5000-E-300K-SM

- Open the front door, and remove the cover from the power distribution subrack.

- Remove a certain number of small covers from the cabinet bottom based on site requirements.
- Note: The cover can be opened only if the maintenance bypass switch is OFF.

- Note: The cover can be opened only if the maintenance bypass switch is OFF.
- Remove the copper bars between mains input terminals and bypass input terminals.

- Connect the ground cable to the UPS.
Note
![]()
- Internal equipotential connection
- Protection ground
- Connect the mains and bypass input power cables.

- Connect the output power cable.

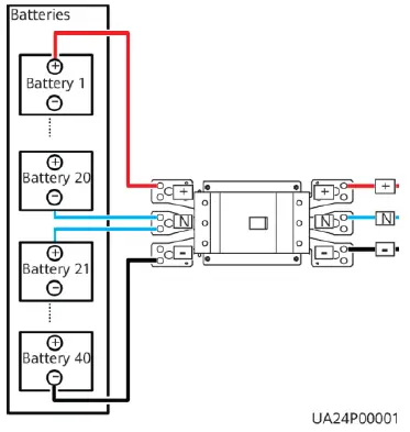
- Connect the battery cable.

- Connect signal cables.

Note
- The wire routed from the middle point of positive and negative battery strings is the neutral wire. The following figure shows a neutral wire routed from the middle of two battery strings consisting of 40 batteries, half positive and half negative.

- The number and color of signal cables in the figure are for reference only. Signal cables can be routed along the left or right side of the cabinet. Route signal cables based on the actual situation.
- For the cable connection method for the TNC system, see the user manual.
Connecting Cables to the UPS5000-E-300K-SMT
Note
- The basic rule is to route cables from inside out and from the bottom up.
- If holes are drilled for routing cables, attach grommet strips on the hole edges to protect cables.
- Remove the cover from the power distribution subrack.

- Remove a certain number of small covers from the top of the cabinet based on site conditions.

- Remove the copper bars between mains input terminals and bypass input terminals.

- Connect ground cables to the UPS.

- Connect mains and bypass input power cables.
Note
![]()
- Internal equipotential connection
- Protection ground
- Connect output power cables.

- Connect battery cables.

- Note: Route a neutral wire from the middle of the positive and negative battery strings. Take a battery string consisting of 40 batteries as an example. A neutral wire is routed from the middle of positive and negative battery strings, each consisting of 20 batteries.
- Note: For the cable connection method for the TN-C system, see the user manual.

- Route the signal cable. Bind cables to the cabinet. The figure shows signal cables routed from the top of the cabinet.
- Note: The number and color of signal cables in the figure are for reference only. Signal cables can be routed along the left or right side of the cabinet. Route signal cables based on the actual situation.
Verifying the Installation
- Check that there is no foreign matter in the cabinet.

- Cabinet top
- Wiring terminal blocks and switch
- Cabinet bottom
- Rear of modules
- After verifying the installation, reinstall all the covers.
- (Remove the paper protective film from the sealing putty.) After routing cables and verifying cable connections, seal the gap between cables and the cabinet using sealing putty.
- Notice: Sealing putty must be used as a whole and the gap can be sealed only from the top.

- Notice: Sealing putty must be used as a whole and the gap can be sealed only from the top.
- Do not remove the dustproof cover before power-on to prevent dust inside the UPS.

Powering On and Starting the UPS
Notice
- Before powering on the UPS, ensure that the UPS has passed all check items in the UPS5000 Commissioning and Acceptance Report and Chapter 4.
- Measure the voltage and frequency of the UPS upstream input switch. The line voltage range is 138–485 V AC, and the frequency range is 40–70 Hz.
Powering On the UPS
- Close the upstream bypass and mains input switches.
- After the UPS is powered on, initialization begins. The MDU displays the Huawei logo and an initialization progress bar.
Initial Startup
- Obtain the startup password through the app. After the application is approved, enter the password on the service authorization screen of the device to complete device authorization.
- Notice: Technical support engineers can obtain the service authorization code through the app. For details, see the Data Center Facility Deployment Guide.
- Set the language, time, date, network parameters, and system parameters on the Settings Wizard screen.

- After you perform the settings, the Bypass mode and No battery alarms are reported by the MDU and do not need to be cleared. If there is any other alarm, you need to rectify the fault.
- If the system has connected to the remote EPO switch, you need to choose Monitoring > UPS System > Running Parameter > System Settings on the WebUI and set EPO detection to Enable.
- View the system running status diagram on the MDU to check that the UPS is working in bypass mode.
Starting inverter
- On the main menu, choose Common Functions and tap Inv. ON.
- In the displayed login window, enter the user name and password, and tap
. - In the displayed dialog box, tap Yes to start the inverter.
Note: To ensure system security, change the LCD and WebUI passwords after the first login.
| System User | LCD Preset Password | WebUI Preset Password |
| admin (system administrator) | 000001 | Changeme |
| operator (common user) | 000001 | Changeme |
Powering On Loads
- After the inverter starts, the UPS works in normal mode. The Bypass mode alarm disappears from the MDU.
- After confirming that the battery strings are properly connected, turn on the battery string input circuit breaker. If there are multiple battery strings, turn on the circuit breaker for each battery string and then turn on the general circuit breaker between battery strings and the UPS. The No battery alarm disappears from the MDU.
- Turn on the UPS downstream output switch to supply power to the loads.
(Optional) Setting Parameters for the BCB Box

- If a BCB box is configured, set MUE05A connection to Enable in System Info > Settings > Dry Contacts Set, and then set BCB connection [OL] and Battery breaker [STA] to Enable.
Shutting Down the UPS
Notice: After you shut down the inverter, the UPS transfers to bypass mode if the bypass is normal; the UPS supplies no power if the bypass is abnormal. Before shutting down the UPS, ensure that all loads have been shut down.
Shutting Down the Inverter to Transfer the UPS to Bypass Mode
- On the main menu of the LCD, choose Common Functions and tap Inv. OFF.
- In the displayed login window, enter the user name and password, and tap
. - In the displayed dialog box, tap Yes to shut down the inverter.
Powering Off a Single UPS
- Open the downstream output switch and battery string switch.
- Open the upstream mains input and bypass input switches.
Huawei Digital Power Technologies Co., Ltd.
- Huawei Digital Power Antuoshan Headquarters
- Futian, Shenzhen 518043
- People’s Republic of China
- www.huawei.com










































