GRANBERG 415-11-05 BASICLINE 415 Electric Height Adjustable Washbasins

Electric Height Adjustable Washbasins
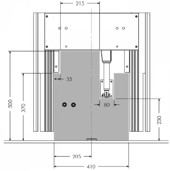
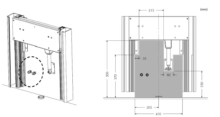
Washbasin lift – Basicline 415

Distributed load on the washbasin

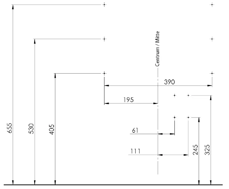
Freely concentrated area for the installation of water and electricity

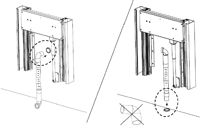
Electrical installations must be performed by a qualified electrician in accordance with applicable national legislation.





Freely concentrated area for the installation of water











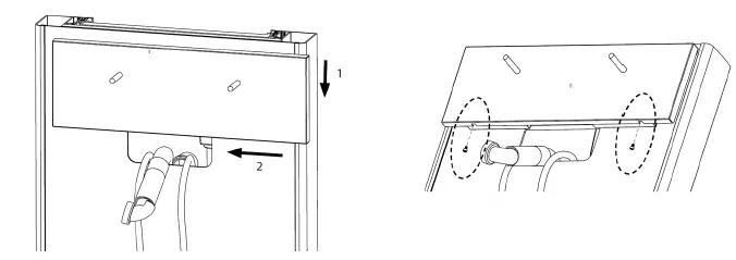
Functional test
After installation a complete functional test with full load shall be made:
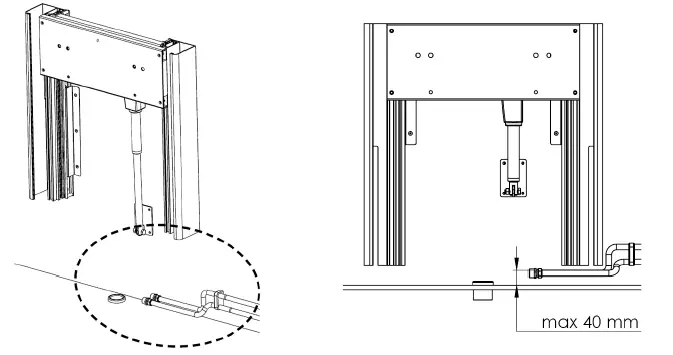
Run the Washbasin lift down and up all the way to respectively end position. Check that it moves freely, without hindrance and jarring sounds. Check that no cables or hoses are jammed and that the water and sewer hoses are properly fixed to the wall.
Notice!
Raise the lift to the end position to check that the hoses are long enough.
Granberg Interior AB – Box 6112 – 600 06 Norrköping – SWEDEN
Tel: +46-11 19 77 50 – E-mail: [email protected] – Internet: www.granberg.se


















