Fuego F27S Pizza oven
User Guide for models
F27S-Pizza-LP / F27S-Pizza-NG
Please retain this manual for future reference.
DANGER AND WARNINGS
You Must Read This Owner’s Guide Before Operating Your Gas Grill.
DANGER
If you smell gas:
- Shut off gas to the appliance.
- Extinguish any open flames.
- Open lid.
- If odor continues, keep away from the appliance and immediately call your gas supplier or your fire department.
Failure to follow these instructions could result in fire or explosion which could cause property damage, personal injury or death.
DANGER
- Never operate this appliance unattended.
- Never operate this appliances with 10ft (3.0m) of any structure, combustible material or other gas cylinder.
- Never operate this appliance within 25ft (7.5m) of any flammable liquid.
- If a fire should occur, keep away from the appliance and immediately call your fire department. Do not attempt to extinguish an oil or a grease fire with water.
WARNING:
- Do not store or use gasoline or other flammable liquids or vapors in the vicinity of this or any other appliance.
- An LP cylinder not connected for use shall not be stored in the vicinity of this or any other appliance.
This instruction manual contains important information necessary for the proper assembly and safe use of the appliance.
Thank you for your Fuego Gas Grill purchase.
We are excited to present to you our new Fuego ALL 304 Stainless Steel Gas Grill. We set out to design a grill that eliminated all of the bulky features you see on most gas grills. We started with the shelves and recessed them into the side panels which creates a more compact footprint and stylish design when closed as well as a fully functional shelf system when open. Next we tackled the front panel. Due to our unique construction, we were able to eliminate the bulbous front end and create a sleek flat front panel design.
True to Fuego form, our performance specs remain prominent throughout. Heating to 500F in just 5 minutes and up to 650F in 10 minutes, the grill gets hot. This is eliminates several minutes of preheat time and makes for amazing searing. Its wide range of temperature control from 250F-700F allows your true chef skills to shine in preparing a wide variety of dishes to impress your guests.
Please follow the next pages in the user manual for setup, operation and troubleshooting instructions. If you have any issues, please reach out to our friendly support staff via phone 888.883.8346 or email
[email protected]. We are here to help.
DANGER AND WARNINGS
You must read and follow all warnings and instructions before assembling and using the appliance. Keep this manual for future reference.
- WARNING: Leaking gas may cause a fire or explosion, which can cause serious bodily injury or death, or damage to property.
- WARNING: Follow all leak-check procedures carefully in this manual prior to barbecue operation. Do this even if the barbecue was dealer-assembled.
- Notice to Installer: These instructions must be left with the owner and the owner should keep them for future use.
- THIS GAS APPLIANCE IS DESIGNED FOR OUTDOOR USE ONLY.
- WARNING: Do not try to light this appliance without reading the “Lighting Instructions” section of this manual.
- DANGER: Failure to follow the Dangers, Warnings and Cautions contained in this Owner’s Manual may result in serious bodily injury or death, or in a fire or an explosion causing damage to property.
- WARNINGS: Do not store a spare or disconnected liquid propane cylinder under or near this barbecue.
- Improper assembly may be dangerous. Please follow the assembly instructions carefully.
- After a period of storage, and/or non-use, the barbecue should be checked for gas leaks and burner obstructions before use. See instructions in this manual for correct procedures.
- Do not operate the barbecue if there is a gas leak present.
- Do not use a flame to check for gas leaks.
- Minimum clearance from sides and back of unit to combustible construction, 24 inches from sides and 24 inches from back.
- Do not put a barbecue cover or anything flammable on, or in the area under the barbecue.
- Your barbecue should never be used by children. Accessible parts of the barbecue may be very hot. Keep young children away while it is in use.
- You should exercise reasonable care when operating your barbecue. It will be hot during cooking or cleaning and should never be left unattended or moved while in operation.
- Should the burner go out while in operation, turn all gas valves off. Open the lid and wait five minutes before attempting to relight, using the lighting instructions.
- Do not use charcoal or lava rock in your barbecue. Never lean over open grill or place hands or fingers on the front edges of the cooking box.
- Should a grease fire occur, turn off burner and close the lid until fire is out.
- Do not enlarge valve orifices or burner ports when cleaning the valves or burner.
- The barbecue should be thoroughly cleaned on a regular basis.
- Liquid propane is not natural gas. A conversion kit must be purchased to use natural gas.
- Do not attempt to disconnect any gas fitting while your barbecue is in operation.
- Use heat-resistant barbecue mitts or gloves when operating barbecue.
- Keep any electrical supply cord and fuel supply hose away from any heated surfaces. This product is not intended for commercial use.
- This appliance is not intended for and should never be used as a heater
- This appliance will be hot during and after use. Use insulated oven mitts or gloves for protection from hot surfaces or splatter from cooking liquids.
- Place dust cap on cylinder valve outlet whenever the cylinder is not in use. Only install the type of dust cap on the cylinder valve outlet that is provided with the cylinder valve. Other types of caps or plugs may result in leakage of propane.
- CALIFORNIA PROPOSITION 65 WARNING: The burning of gas cooking fuel generates some by-products which are on the list of substances known by the State of
- California to cause cancer and reproductive harm. California law requires businesses to warn customers of potential exposure to such substances. To minimize exposure to these substances always operate this unit according to this grill manual, ensuring you provide good ventilation when cooking with gas.
- Do not use this barbecue unless all parts are in place. The unit must be properly assembled according to the assembly instructions.
- Liquid Propane Gas Units: Use the pressure regulator and hose assembly that is supplied with your barbecue.
- Do not attempt to disconnect the gas regulator and hose assembly or any gas fitting while your barbecue is in operation.
- A dented or rusty liquid propane cylinder may be hazardous and should be checked by your liquid propane supplier. Do not use a liquid propane cylinder with a damaged valve.
- Although your liquid propane cylinder may appear to be empty, gas may still be present, and the cylinder should be transported and stored accordingly.
- If you see, smell or hear the hiss of escaping gas from the liquid propane cylinder:
- Move away from liquid propane cylinder.
- Do not attempt to correct the problem yourself.
- Call your fire department.
General Instructions
- Your Element barbecue is a portable outdoor cooking appliance. You can easily change its location in your yard or on your patio. Portability means you can take your barbecue with you if you move. Liquid Propane (LP) gas supply is easy to use and gives you more cooking control than charcoal fuel.
- These instructions will give you the minimum requirements for assembling your barbecue. Please read the instructions carefully before using your gas barbecue. Improper assembly can be dangerous.
- Not for use by children.
- If there are local codes that apply to portable gas grills, you will have to conform to them. Installation must conform with local codes, or in the absence of local codes, with either the National Fuel Gas Code, ANS Z223.1/NFPA 54, Natural Gas and Propane Installation Code, CSA B149.1, or Propane Storage and Handling Code, B149.2.
- The pressure regulator supplied with the gas barbecue must be used. This regulator is set for 11 inches of water column (pressure).
- This gas barbecue is designed for use with liquid propane (LP) gas by default. A NG conversion kit must be used when converting the LP unit to NG unit to use natural gas. A separate natural gas (NG) kit must be purchased which includes different hoses and orifices for use with NG. 7.0″ W.C.
- Do not use with charcoal fuel.
- The areas around the LP cylinder must be free and clear from debris.
- If it’s evident there is excessive abrasion or wear, or the hose is cut, it must be replaced prior to the outdoor cooking appliance being put into operation. Replacement pressure regulators and hose assemblies must be those specified by the manufacturer.
For Installation In Canada
These instructions, while generally acceptable, do not necessarily comply with the Canadian Installation codes, particularly with piping above and below ground. In Canada the installation of this appliance must comply with local codes and/or Standard CSAB149.2
(Propane Storage and Handling Code)
- WARNING: Your gas barbecue is not intended to be installed in or on recreational vehicles and/or boats.
- WARNING: Do not use the barbecue within 21 inches of combustible materials to the back or sides of the grill.
- WARNING: The entire cooking box gets hot when in use. Do not leave unattended. WARNING: Keep any electrical supply cord and the fuel supply hose away from any heated surface.
- WARNING: Keep the cooking area clear of flammable vapor sand liquid such as gasoline, alcohol, etc. and combustible materials.
- WARNING: (a) Never store an extra (spare) LP cylinder under or near your gas barbecue. (b) Never fill LP cylinder beyond 80 percent full. If the information in (a) and (b) is not followed exactly, a fire causing death or serious injury may occur.
- WARNING: The 20lb LP cylinder used with your barbecue must be constructed and marked in accordance with Specifications for LP-Gas Cylinder of the U.S. Department of Transportation (D.O.T) or the Standard for Cylinders, Spheres and Tubes for Transportation of Dangerous Goods; and Commission, CAN/CSA-B339, as applicable; and with a listed OPD (Overfilling Prevention Device) and a QCC1 or Type 1 (CGA810) cylinder connection. The cylinder connection must be compatible with the barbecue connection.
- Details of 20lb LP cylinder
- Diameter: 12+1/4”~11+3/4”
- Height: 17+15/16”~17+7/16”
- Weight: 18lb, Empty
- 38lb, Full
WARNING: Do not leave items on or against the barbecue. Keep flammable products and sprays away. For outdoor use only.
Storage And / Or Non Use
- The gas must be turned off at the liquid propane cylinder when the gas barbecue is not in use.
- When the gas barbecue is stored indoors, the gas supply must be DISCONNECTED and the LP cylinder stored outdoors in a well-ventilated space.
- LP cylinder must be stored outdoors in a well-ventilated area out of reach of children. Disconnected LP cylinder must not be stored in a building, garage or other enclosed area.
- When the LP cylinder is not disconnected from the gas barbecue, the appliance and LP tank must be kept outdoors in a well-ventilated space.
- The gas barbecue should be checked for gas leaks and any obstructions in the burner tubes before using. (See maintenance section)
Operating
- WARNING: Only use this barbecue outdoors in a well-ventilated area. Do not use in a garage, building, breezeway or any other enclosed area.
- WARNING: Keep ventilation openings for cylinder enclosure free and clear from debris. WARNING: Your gas barbecue shall not be used under overhead combustible construction.
- WARNING: This outdoor cooking gas appliance is not intended to be installed in or on a boat or recreational vehicles.
- WARNING: Shall be used only outdoors instructions to the effect that this outdoor cooking gas appliance shall be used only outdoors and shall not be used in a building, garage, or any other enclosed area.
F27S-Pizza-LP / F27S-Pizza-NG 

| No’s | Descrip+on | QTY. | Part Number |
| A | Temperature Gauge | 1 | FSP1010 |
| DR | Outter Back Panel | 1 | FSP2350 |
| DS | Inner Back Panel | 1 | FSP2360 |
| DT | Top Brace | 1 | FSP2370 |
| DU | Left Panel | 1 | FSP2380 |
| DV | Right Panel | 1 | FSP2390 |
| AG | 27″ Grill Pulse Ignitor | 1 | FSP1490 |
| DW | Control Panel | 1 | FSP2400 |
| DX | Manifold ASM. LP | 1 | FSP2410 |
| Manifold ASM. NG | 1 | FSP2420 | |
| DY | Bottom Panel | 1 | FSP2430 |
| DZ | Top Stone Brace | 2 | FSP2440 |
| L | Logo Plate | 1 | FSP1120 |
| M | Knob Bezel | 2 | FSP1130 |
| N | Control Knob | 2 | FSP1140 |
| EA | Top Pizza Stone | 1 | FSP2450 |
| EB | Top Pizza Stone Supporting Bracket- | 1 | FSP2460 |
| EC | Top Pizza Stone Supporting Bracket-Left | 1 | FSP2470 |
| ED | Heat Shield Supporting Bracket-Right | 1 | FSP2480 |
| EE | Heat Shield Supporting Bracket-Left | 1 | FSP2490 |
| EF | Back Pizza Stone | 1 | FSP2500 |
| EG | Rating Label Plate | 1 | FSP2510 |
| BO | Ignition rod | 1 | FSP1680 |
| EH | Dischargeable Smoke Cover | 1 | FSP2520 |
| EI | Hood | 1 | FSP2530 |
| EJ | Burner Rain Shield | 1 | FSP2540 |
| EK | Top Brace Inner | 1 | FSP2550 |
| EL | Pizza Oven Bottom Stone | 1 | FSP2560 |
| EM | Heat Shield Panel | 1 | FSP2570 |
| EN | Bottom Pizza Stone Brace | 1 | FSP2580 |
| EO | Safety Valve Sensor | 2 | FSP2590 |
| EP | Safety Valve Sensor Bracket | 2 | FSP2600 |
| EQ | Rear Burner Ignition Wire | 2 | FSP2610 |
| ER | Safety Valve Sensor Cover | 2 | FSP2620 |
| ES | Back Pizza Stone Hinge | 2 | FSP2630 |
| ET | IR Burner Mounting Panel-Right | 1 | FSP2640 |
| EU | IR Burner Mounting Panel-Left | 1 | FSP2650 |
| EV | IR Burner | 2 | FSP2660 |
| EW | Door Handle | 1 | FSP2670 |
| EX | Front Door | 1 | FSP2680 |
| EY | Front Door Inner | 1 | FSP2690 |
| EZ | Front Door Bracket | 2 | FSP2700 |
Natural Gas Models (NG)
| Model Number | Maximum BTU/HR | Propane Pressure |
| F27S-Pizza-NG | 37,000 | 7” Water Column |
Check with your gas utility or with local building codes for instructions to install gas supply line, or call a licensed and knowledgeable installer.
It is recommended that an “ON-OFF” shutoff valve be installed at the gas supply source.
Pipe sealing compound or pipe thread tape of the type resistant to the action of natural gas must be used on all male pipe thread. Apply compound or tape to at least the first three threads when making the connection.
Disconnect your gas grill from fuel source when the gas supply is being tested at high pressures. This appliance and its individual shutoff valve must be disconnected from the gas supply piping system during any pressure testing of that system at pressures in excess of 1/2 psig (3.5 KPa)/37 mbar.
Turn off your gas grill when the gas supply is being tested at low pressures. This appliance must be isolated from the gas supply piping system by closing its individual valve.
WARNING: Gas valves are preset at the factory to operate on LP or natural gas. If you wish to convert to a different gas type, be sure to contact your grill dealer, licensed plumber or authorized service center for further details. Conversion kits are not sold to the general public and require a professional to perform service. Failure to properly convert a unit can cause serious injury to yourself and/or others, irreparable damage to your grill and void of warranty. 

Propane Models (LP)
| Model Number | Maximum BTU/HR | Propane Pressure |
| F27S-Pizza-LP | 37,000 | 11” Water Column |
- Always keep cylinder securely fastened in an upright position.
- Never connect an unregulated propane gas cylinder to the grill.
- Do not subject Propane cylinders to excessive heat.
- CAUTION: Never store a Propane gas cylinder inside a building or in the vicinity of any gas-burning appliance.
- WARNING: Gas valves are preset at the factory to operate on propane or natural gas. If you wish to convert to a different gas type, be sure to contact your grill dealer, licensed plumber or authorized service center for further details. Conversion kits are available but require a professional to perform service. Failure to properly convert a unit can cause serious injury to yourself and/or others, irreparable damage to your grill and void of warranty.



F27S-Pizza-LP / F27S-Pizza-NG Dimensional Drawings 
F27S-Doors (Not Included) 
Installation
Items Needed (Not Included) 
Quick Set-up Guide
Step 1
- Remove the outer carton from the pallet by lifting it vertically off the pallet*.
- Remove all of the foam, cardboard and plastic packing around the grill.
*Please note that it is helpful to cut the tape on the top and open the flaps for easy removal.
Step 2
Remove all laser film from the pizza oven, and remove door front and interior components from firebox area. Do not re-install at this time. 
Step 3
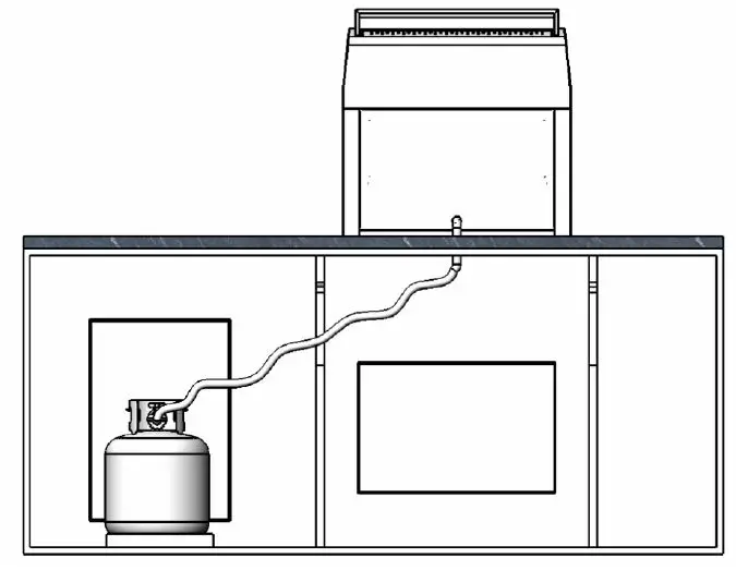
Set the pizza oven in place and connect to fuel according to NG or LP gas instructions. 
Step 4
Re-install the door front into the firebox area. 
Step 5
Install the top vent onto the pizza oven. Please note the top vent can be installed with the vent facing towards the front or rear depending on wind direction or items located behind the pizza oven.
Step 6
Install one AA battery into the battery pack on front of the unit. Please note the positive (+) end of the battery will face the battery cap. Battery is not included.
Step 7
Clean the entire exterior surface with stainless steel cleaner and non-abrasive towel. Please follow the griddle seasoning steps noted on page 28 in this manual. 

Leak Testing
General:
Although all gas connections on the grill are leak tested at the factory prior to shipment, a complete gas tightness check must be performed at the installation site due to possible mishandling in shipment, or excessive pressure unknowingly being applied to the unit. Periodically check the whole system for leaks, or immediately if the smell of gas is detected.
Before Testing:
Do not smoke while leak testing. Extinguish all open flames. Never leak test with an open flame. Make a soap solution of one part liquid detergent and one part water. You will need a spray bottle, brush or rag to apply the solution to the fittings.
To Test:
Make sure all control valves are in the “OFF” position. Turn the gas supply “ON”. Check all connections from the supply line, or LP cylinder up to and including the manifold pipe assembly. Apply the soap solution around the connection, valve, tubing and end of the manifold. Soap bubbles will appear where a leak is present. If a leak is present, immediately turn off gas supply, tighten any leaking connections, turn gas on, and recheck. Check all the gas connections at the base of the control valves where they screw into the manifold pipe. If you cannot stop a gas leak, turn off the gas supply and call your local gas utility or Fuego customer service at 888-88FUEGO (38346). Only those parts recommended by the manufacturer should be used on the grill. Substitution can void the warranty.
WARNING:
Do not use the grill until all connections have been checked and do not leak. Check all gas supply fittings for abrasions, cracks and leaks before each use. It is recommended to keep a spray bottle filled with soapy water near the shutoff valve of the gas supply valve. Spray all the fittings. Bubbles indicate leaks.
Lighting Instruction Manual 
Warning: Before Lighting, please make sure that the control knob is in the off position and the regulator assembly is in good condition.
Control Knob. IMPORTANT Do not leave items on or against the barbecue. Keep flammable product and sprays away.
For outdoor use only.
SHUT DOWN INSTRUCTIONS:
- Turn burner control knob to the OFF position.
- Turn gas supply OFF.
- The gas supply must be turned off when appliance is not in use.
LIGHTING INSTRUCTIONS 
- Read instructions before lighting.
- Open door during lighting and make sure burner is in the OFF position. Make sure the burner kit is properly fixed with respect to the orifices. Control knob must be in the “OFF” position.
- Turn on tank valve or gas supply and do the leak testing as the procedures shown in the manual.
- Push and turn the control knob to “START/ALLUMER” for the burner you are trying to light and hold in. Push the igniter button. The burner should light. Continue to hold in the control knob in place for 5 seconds after the burner lights. If it does not, repeat up to three times.
- If ignition does not occur within 5 seconds, turn the burner control knob “OFF”, wait 5 minutes for any excess gas to dissipate. Repeat step 1 through 5.
- Afterburners are lit the dial can be adjusted to regulate the heat output on each burner.
MATCH LIGHTING:
- Repeat step 1 through 3 in the previous lighting instructions; put a match into the lighting rod, light the match and place it through the hole of flame tamer to the burner tube; Push the control knob and turn slowly to the “START/ALLUMER” position.
- If ignition does not occur within 5 seconds, turn the burner control off, wait 5 minutes for any excess gas to dissipate.
- After burners are lit the dial can be adjusted to regulate the heat output on each burner.
- Important: Always use the lighting rod (include) when lighting burners with a match.
Maintenance
WARNING: DO NOT REMOVE BURNER OR PERFORM CLEANING WHILE GRILL IS STILL HOT.
General Instructions:
- Before lighting, inspect the gas supply piping or hose prior to turning the gas “on”. If there is evidence of cuts, wear or abrasion, it must be replaced prior to use.
- Replacement pressure regulators and hose assemblies must be those specified by the outdoor cooking gas appliance manufacturer.
- Keep the outdoor cooking gas appliance area clear and free from combustible materials, gasoline and other flammable vapors and liquids at all times.
- Do not obstruct the flow of combustion and ventilation air at all times.
- Keep the ventilation opening(s) of the cylinder enclosure free and clear from debris at all times.
- Visually checking burner flames including pilot burner flame if provided, with pictorial representations each time the grill is lit.
- Clean the outdoor cooking gas appliance, including special surfaces, as instructed below as needed to prevent dirt and debris buildup on the grill. This will vary depending on use.
- Check and clean the burner/venturi tubes for insects and inspect nests. A clogged tube can lead to a fire beneath the grill.
Infrared Burner:
- The infrared burners will start out with a blue flame for several minutes before they begin to glow bright red. If the burners do not begin to glow bright red after 15 minute, please contact our support team for troubleshooting advice.
Cooking Stone Cleaning:
- To clean the pizza stone, scrape any baked on residue off the surface and brush the remaining debris out of the firebox chamber. Please note that the surface may build up black residue over time.
Surface Cleaning:
- The grill should be covered when not in use to protect it from outdoor elements. Wipe down the surface to remove any cooking residue with a clean cotton or microfiber cloth. Clean stainless steel surface with a stainless steel cleaner and apply polish to keep your grill looking its best. Please clean every 1-3 months to prevent any surface issues.
Igniter Tip Cleaning:
- If lighting the burners is difficult you may need to clean and adjust the igniter tip located near the burner edge.
- To ensure that the igniter lights properly, clean off any cooking residue that builds up on igniter tip and burner.
- Use a very fine grit sand paper to clean igniter tip and edge of burner. Igniter tip should be 2–4 mm away from burner edge. This is the ideal distance for most effective ignition.
- Please clean every 3-6 months to prevent any ignition issues.

Limited Warranty Information
Fuego Living LLC (“Seller”) and the person or entity that acquires these goods from Seller (“Purchaser”) hereby agree to the following terms and conditions of the sale: Shipping fees are the responsibility of the Purchaser whether freight prepaid or freight collect. Seller assumes no responsibility for the goods sold to the Purchaser once the goods have left the Seller’s premises, including, but not limited to, late delivery by the moving carrier, or for events caused by any difficulty carrier incurs in attempting to fit the goods into the Purchaser’s place of business or residence due to the size of the goods or otherwise.
Purchaser assumes all responsibility for delivery, payment of freight, access, measurement, installation, hook-up, wiring, moving and storage of the goods. The transportation of all goods is subject to the terms and conditions which the moving carrier imposes on Purchaser including, but not limited to, additional charges imposed per flight of stairs, and/or additional charges resulting from the carrier’s inability to safely and/or adequately use the building elevator to lift the goods to an upper floor. Any claim for damages incurred during shipment by the carrier of the goods are insured and handled directly with the carrier. Any damages due to manufacture defects will be handled directly with Fuego Living LLC, subject to the limited warranty.
All sales are final, and unless authorized in writing by the Seller, the Purchaser may not return the goods, under any circumstance. If Purchaser refuses to accept the goods, under any circumstance, the Purchaser is liable for the return and cost of freight both ways, and if Seller does take back the goods, there will be a restocking charge that is 35% of the purchase price of the goods. Purchaser must notify Seller of non-conforming goods within four days of delivery, after which time all goods are deemed accepted. If an order has been placed and production has started, cancellation of your order will be a 15% charge.
If Purchaser tenders payment with a check that has insufficient funds (NSF),or stops payment on a check or credit card for any reason, Purchaser agrees to pay for all costs associated with the Seller’s connection or litigation of such a claim, including without limitation extra damages, court costs and attorneys’ fee. Finance charges begin the date of the invoice. Collection fees plus an NSF fee of $50 will be added to your invoice, which you agree to promptly pay. Title to the goods does not pass until payment is received in full by Seller and Seller retains a security interest in the goods until they are paid for in full.
This limited warranty does not cover damage due to such things as an accident, misuse, abuse, mishandling, neglect, acts of God, fires, earthquakes, floods, high winds, government, war, riot or labor trouble, strikes, lockouts, delay of the carrier, unauthorized repair, or any other cause beyond the control of the Seller, whether similar or dissimilar to the foregoing. Seller is not responsible for any damages caused to Purchaser’s property resulting from the good.
Seller is not responsible for incidental or consequential damages, and there are no warranties, expressed or implied, which extend beyond the Limited Warranty described above. The implied warranties of merchantability and of fitness for a particular purpose are hereby expressly disclaimed. Some states do not allow the exclusion of incidental or consequential damages, or a waiver of the implied warranties of fitness and/or merchantability, so the above limitations may not apply to you. This warranty gives you specific legal rights and you may also have other rights which vary from state to state.
In the event of any dispute between Seller and Purchaser arising out of or relating to these terms and conditions or to the goods sold generally, Purchaser must first file a written claim with Seller within ten days of the occurrence giving rise to the claim and wait an additional thirty days for a response before initiating any legal action. The sale and all terms are subject to California law. Any legal proceeding arising out of or relating to these terms and conditions or to the goods sold generally shall be brought solely and exclusively in the County of Los Angeles. In no event may Purchaser initiate any legal proceeding more than six months after the occurrence of the event giving rise to the dispute.
The above terms and conditions are the only ones governing this transaction and the Seller make no oral representations of any kind. These Terms and Conditions can only be modified in writing, signed by both Purchaser and Seller.
Length of Warranty: Lifetime comprehensive parts on the entire product / one (1) years limited parts warranty covering the ignition system. Customer responsible for shipping and handling costs of replacement parts.
For replacement parts, troubleshooting, and general inquiries please email or call us at:
Phone: 1.888.883.8346 1.888.88.FUEGO
Email: i[email protected]
Web: www.fuegoliving.com
Fuego Living LLC
1789 E 46th ST
Los Angeles CA 90058
User Guide for models

























