972 413 Easy Twilight Switch
User Manual
![]()
972 413 Easy Twilight Switch

Technical data
| Supply voltages | 230 V, 50-60 Hz |
| Contact material | AgSnO2 |
| Suitable type of lamps | CFL, LED lamps |
| Time base | Quartz |
| Quartz accuracy (at 20°C) | ≤ ±0.5 sec./day (Quartz accuracy optimized for typical ambient conditions) |
| Ambient temperature | -30° … +50°C |
| Type of protection | IP 20 to DIN EN 60529 |
| Class of protection | II when installed according to regulations |
Intended Use
The twilight switch fits for the particular use of the following tasks: light control for streets, outdoor stairs, shop windows, buildings etc.
Operate it in a dry room only! (the sensor is mounted outdoors)
Declaration of conformity
Herewith, Hugo Müller GmbH & Co KG declares that these electronical devices comply with Directive 2014/53/EU.
For the full text of the EU Declaration of Conformity please visit: www.hugo-mueller.de/en/downloads/declarations-of-conformity/
WARNING:![]()
- The installation and assembly of electrical equipment must be only carried out only by a skilled Person! Otherwise fire danger or danger of an electric shock exists!
- Disconnect the mains power supply prior to installation and/or disassembly!
- Connect the supply voltage/frequency as stated on the product!
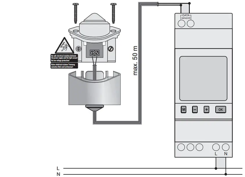
Sensor

The connecting cable must be a rubber insulated cable according to H05RR-F or higher (outdoor), or a PVC insulated cable according to H05VV-F or higher (indoor).
Manual switching
ON => PERMANENT OFF => OFF => PERMANENT ON …
Program

![]() | |
| https://play.google.com/store/apps/details?id=de.hugomueller.Save_n_Carry | https://itunes.apple.com/us/app/saven-carry/id1347128572?mt=8 |
Programmable via NFC with the Save’n carry App
Hugo Müller GmbH & Co KG, Karlstraße 90, DE-78054 VS-Schwenningen
www.hugo-mueller.de
BA 972 413 easy HM; MULTI -24316- 2022.02V01



















