
KEF R Series Floor Standing Speaker User Manual

R Series
Introduction
Thank you for purchasing R Series. We are confident that it will provide reliable, high performance sound for many years to come. Please read this manual fully before you attempt any connections to R Series.
Important Points
- Follow this manual carefully for best results from your speakers
- Read and return warranty card
- Clean with a dry lint free cloth
- Do not use spirit based cleaners.
- Avoid damp
- Avoid temperature extremes
- Avoid direct sunlight
- SAFETY NOTICE! trailing cables are dangerous, secure all cables
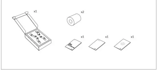
Inside the Box




Plinth – R5 Meta / R7 Meta / R11 Meta


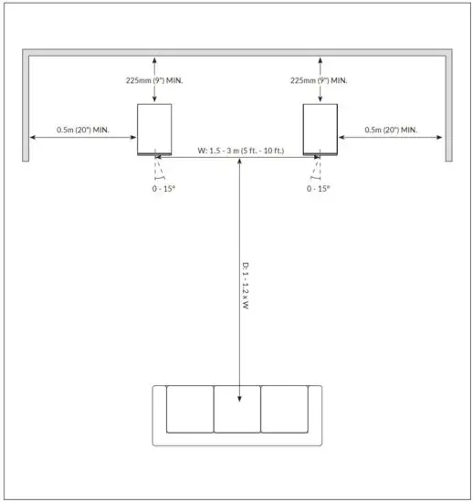
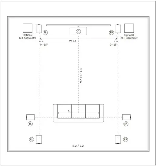
Positioning





Link Connection
Single wire setting

Bi-wired setting

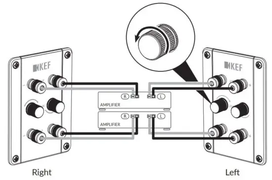
Connections
R3 Meta / R5 Meta / RI Meta / R11 Meta
Single wire connections

Bi-wired connections

Bi-amplified connections

R2 Meta / R6 Meta
Single wire connections

Bi-wired connections

Bi-amplified connections

Specifications





GP Acoustics (UK) Limited
Eccleston Road
Tovil, Maidstone
Kent, ME15 6QP
UK
![]()
![]()
Read More About This Manual & Download PDF:

















