GE Healthcare Optima CT520 CT Scan

![]() | |||||||||||
| Typical —– —– | |||||||||||
| C | 09/Jul/2021 | Initial release per PIM revision 11 | |||||||||
| B | 22/Jul/2020 | Initial release per PIM revision 10 | |||||||||
| A | 10/Apr/2020 | Initial release per PIM revision 9 | |||||||||
| REV | DATE | MODIFICATIONS | |||||||||
| 01 – C1 – Cover Sheet 02 – C2 – Disclaimer – Site Readiness Checklist 03 – A1 – General Notes 04 – A2 – Equipment Layout 05 – A3 – Radiation Protection 06 – A4 – Radiation Protection Details 07 – A5 – Equipment Dimensions (1) 08 – A6 – Equipment Dimensions (2) 09 – A6 – Delivery | 10 – S1 – Structural Notes 11 – S2 – Structural Layout 12 – S3 – Structural Details (1) 13 – M1 – HVAC 14 – E1 – Electrical Notes 15 – E2 – Electrical Layout 16 – E3 – Electrical Elevations 17 – E4 – Power Requirements 18 – E5 – Electrical Details – Interconnect | GE Healthcare | —- —- —- | ||||||||
| OPTIMA CT520 FINAL STUDY | |||||||||||
| Drawn by | Verified by | Concession | S.O. (GON) | PIM Manual | Rev | ||||||
| A mandatory component of this drawing set is the GE Healthcare Pre Installation manual. Failure to reference the Pre Installation manual will result in incomplete documentation required for site design and preparation. Pre Installation documents for GE Healthcare products can be accessed on the web at: www.gehealthcare.com/siteplanning | |||||||||||
| RET | APP | – | —- | 5447459-1EN | 11 | ||||||
| GE does not take responsibility for any damages resulting from changes on drawings made by others. Errors may occur by not referring to the complete set of final issue drawing. GE cannot accept responsibility for any damage due to the partial use of GE final issue drawings, however caused. All dimensions are in millimeters unless otherwise specified. Do not scale from printed pdf files. GE accepts no responsibility or liability for defective work due to scaling from these drawings. | Format | Scale | File Name | Date | Sheet | ||||||
| A3 | 1/4″=1′-0″ | EN-CT-TYP-OPTIMA-CT-520-WEB.DWG | 15/Mar/2022 | 01/18 | |||||||
DISCLAIMER
GENERAL SPECIFICATIONS
- GE is not responsible for the installation of developers and associated equipment, lighting, cassette trays and protective screens or derivatives not mentioned in the order.
- The final study contains recommendations for the location of GE equipment and associated devices, electrical wiring and room arrangements. When preparing the study, every effort has been made to consider every aspect of the actual equipment expected to be installed.
- The layout of the equipment offered by GE, the dimensions given for the premises, the details provided for the pre-installation work and electrical power supply are given according to the information noted during on-site study and the wishes expressed by the customer.
- The room dimensions used to create the equipment layout may originate from a previous layout and may not be accurate as they may not have been verified on site. GE cannot take any responsibility for errors due to lack of information.
- Dimensions apply to finished surfaces of the room.
- Actual configuration may differ from options presented in some typical views or tables.
- If this set of final drawings has been approved by the customer, any subsequent modification of the site must be subject to further investigation by GE about the feasibility of installing the equipment. Any reservations must be noted.
- The equipment layout indicates the placement and interconnection of the indicated equipment components. There may be local requirements that could impact the placement of these components. It remains the customer’s responsibility to ensure that the site and final equipment placement complies with all applicable local requirements.
- All work required to install GE equipment must be carried out in compliance with the building regulations and the safety standards of legal force in the country concerned.
- These drawings are not to be used for actual construction purposes. The company cannot take responsibility for any damage resulting therefrom.
CUSTOMER RESPONSIBILITIES
- It is the responsibility of the customer to prepare the site in accordance with the specifications stated in the final study. A detailed site readiness checklist is provided by GE. It is the responsibility of the customer to ensure all requirements are fulfilled and that the site conforms to all specifications defined in the checklist and final study. The GE Project Manager of Installation (PMI) will work in cooperation with the customer to follow up and ensure that actions in the checklist are complete, and if necessary, will aid in the rescheduling of the delivery and installation date.
- Prior to installation, a structural engineer of record must ensure that the floor and ceiling is designed in such a way that the loads of the installed system can be securely borne and transferred. The layout of additional structural elements, dimensioning and the selection of appropriate installation methods are the sole responsibility of the structural engineer. Execution of load bearing structures supporting equipment on the ceiling, floor or walls are the customer’s responsibility.
RADIO-PROTECTION
- Suitable radiological protection must be determined by a qualified radiological physicist in conformation with local regulations.
GE does not take responsibility for the specification or provision of radio-protection.
THE UNDERSIGNED, HEREBY CERTIFIES THAT I HAVE READ AND APPROVED THE PLANS IN THIS DOCUMENT.
- DATE
- NAME
- SIGNATURE
GLOBAL SITE READINESS CHECKLIST (DI)
DOC1809666 Rev. 7
| Site Ready Checks at Installation |
| EHS Site Requirements |
| Overall access route to the scan room free from obstruction / high hazards. |
| Enough space to store tools, equipment, parts, install waste and the general area free from obstruction and trip hazards. |
| Enough necessary facilities for the GE employees available. |
| No 3rd parties working in the area that may affect the safety of the installation activity. |
| Area free from any chemical, gas, dust, welding fume exposure and has painting been completed and dry. |
| All emergency routes identified, signed and clear from obstruction. |
| Accessible single source lockable panel that LOTO can be applied to for GE equipment installation (MDP and/or PDU). |
| There are no other conditions or hazards that you have observed or have been made aware of by the customer or contractors on site. |
| Required for Mechanical Install start |
| Room dimensions, including ceiling height, for all Exam, Equipment/Technical & Control rooms meets GE specifications. |
| Ceiling support structure, if indicated on the GE drawing, is in the correct location and at the correct height according to the Original Equipment Manufacturer specifications. |
| Levelness and spacing has been measured, and is ready for the installation of any GE supplied components. |
| Overhead support Structure (Unistrut) has been confirmed with customer/contractor to meet required GE provided criteria. |
| Finished ceiling is installed. If applicable ceiling tiles installed per PMI discretion. |
| Floor levelness/flatness is measured and within tolerance, and there are no visible defects per GEHC specifications. |
| Entry door threshold meets PIM requirement. |
| Rooms that will contain equipment, including staging areas if applicable, are construction debris free. Precautions must be taken to prevent debris from entering rooms containing equipment. |
| Cable ways (floor/wall/ceiling/Access Flooring) are available for installation of GE cables are of correct length and diameter. |
| Cable ways routes per GE Final drawings and cable access openings areas installed at a time determined by GEHC PM. Surface floor duct can be installed at time of system installation. |
| Adequate room illumination installed and working. |
| Customer supplied countertops where GE equipment will be installed are in place. |
| Required for Calibration Start |
| HVAC systems Installed, and the site meets minimum environmental operational system requirements. |
| System power & grounding (PDB/MDP) is available as per GE specifications. |
| System power & grounding (PDB/MDP) is installed at point of final connection and ready to use. Lock Out Tag Out is available. |
| PMI to confirm all feeder wires and breaker are size appropriately. EPO installed if needed. |
| PMI to confirm with electrician all power and signal cables are well terminated ensuring there are no loose connections. |
| Network outlets installed. |
| Computer network available and working. |
| Lead doors and windows complete or scheduled to be installed. If applicable, radiation protection (shielding) finished & radioprotection regulatory approval for installation obtained. |
Note: The details shown here are only an extract from DOC1809666. For the complete document please contact your PMI.
ENVIRONMENT
ALTITUDE
- The system shall meet all functional and performance specifications when placed in a room that is at an elevation of -150 m to 3000 m [-492 ft to 9842.5 ft] above sea level.
MAGNETIC FIELD SPECIFICATIONS
- Limit the magnetic interference to guarantee specified imaging performance.
GANTRY:
- Ambient static magnetic fields less than 1 Gauss.
- Ambient AC magnetic fields less than 0.01 Gauss peak.
OPERATOR CONSOLE:
- Ambient static magnetic fields less than 10 Gauss.
- Use static dissipative vinyl.
MAXIMUM GANTRY AUDIBLE NOISE LEVEL
- The maximum ambient noise level is produced by the gantry during a CT scan acquisition.
- It is less than 70 dBA when measured at a distance of one meter from the nearest gantry surface, in any direction.
MAXIMUM CONSOLE AUDIBLE NOISE LEVEL
- The maximum ambient noise level is less than or equal to 56 dBA when measured 1m [3.3 ft] up and 1m [3.3 ft] away from the console at an ambient temperature of 26 °C [47 °F].
CUSTOMER SITE READINESS REQUIREMENTS
- Any deviation from these drawings must be communicated in writing to and reviewed by your local GE healthcare installation project manager prior to making changes.
- Make arrangements for any rigging, special handling, or facility modifications that must be made to deliver the equipment to the installation site. If desired, your local GE healthcare installation project manager can supply a reference list of rigging contractors.
- New construction requires the following;
- Secure area for equipment,
- Power for drills and other test equipment,
- Capability for image analysis,
- Restrooms.
- Provide for refuse removal and disposal (e.g. crates, cartons, packing)
- For CT, MR, PET/CT, and SPECT systems it is required to minimize vibrations within the scan room.
It is the customer’s responsibility to contract a vibration consultant/engineer to implement site design modifications to meet the GE vibration specification. Refer to the system pre installation manual for vibration specifications.

| LEGEND | |||||||||
| A | GE Supplied | D | Available from GE | ||||||
| B | GE Supplied/contractor installed | E | Equipment existing in room | ||||||
| C | Customer/contractor supplied and installed | * | Item to be reinstalled from another site | ||||||
| BY | ITEM | DESCRIPTION | MAX HEAT OUTPUT | WEIGHT (lbs) | MAX HEAT OUTPUT | WEIGHT (kg) | |||
| (btu) | (W) | ||||||||
| A | 1 | Gantry | 18700 | 3783 | 5500 | 1716 | |||
| A | 2 | Patient Table | 682 | 707 | 200 | 320 | |||
| A | 3 | Power Distribution Unit | 3400 | 816 | 1000 | 370 | |||
| A | 4 | Operators Console & Monitors (2) | 3540 | 184 | 940 | 83 | |||
| A | 5 | Rear Cable Cover | – | – | – | – | |||
| B/D | 6 | Main Disconnect Panel | – | 46 | – | 21 | |||
| A/D | 7 | Service Cabinet | – | 90 | – | 41 | |||
| A/D | 8 | Uninterruptible Power Supply | 2828 | 265 | 830 | 120 | |||
| A/D | 9 | Smart Workstation Desk | – | 88 | – | 40 | |||
| C | 10 | Counter top with base cabinets | |||||||
| C | 11 | Counter top with sink, base and wall cabinets | |||||||
| C | 12 | Lead glass window | |||||||
| C | 13 | Minimum door opening for equipment delivery is 42 in. w x 82 in. h [1067mm x 2083mm], contingent on a 96 in. [2439mm] corridor width | |||||||
| EXAM ROOM HEIGHT | |||||||||
| Finished ceiling height | min. 7′-6″ | ||||||||

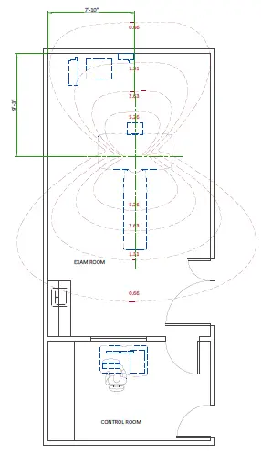
RADIATION PROTECTION LAYOUT
| SHIELDING REQUIREMENTS SCALING | |
| CHANGED PARAMETER (mAs) | MULTIPLICATION FACTOR (new mAs/100) |
| 80 kV | 0.21 |
| 120 kV | 0.71 |
| 140 kV | 1.00 |
| 4×3.75 mm images | 0.82 |
| 16×0.625 LD 8×1.25 LD Fluro 5 mm | 0.59 |
| 4×1.25 LD 5 mm (1i) Fluro 2.5 mm | 0.40 |
| 1×1.25 mm images | 0.20 |
| 2×0.625 LD 1×1.25 | 0.10 |
| 20 mm aperture | 1.00 |
SHIELDING REQUIREMENTS:
Engage a qualified radiological health physicist to review your scan room shielding requirements, taking into consideration:
- Scatter radiation levels within the scanning room
- Equipment placement.
- Weekly projected work-loads (number of patients/day technique (kvp*ma))
- Materials used for construction of walls, floors, ceiling, doors, and windows.
- Activities in surrounding scan room areas.
- Equipment in surrounding scan room areas (e.g., film developer, film storage)
- Room size and equipment placement within the room relative to room size.
The illustration on this page depicts measurable radiation levels within the scanning room while scanning a 32 cm CTDI phantom (body) with the technique shown:
- 140 kVA
- 100 mA
- 1 sec
- 4×5.00 mm
NOTE: Actual measurements can vary.
All measurements have an accuracy of ± 20% because of measurement equipment, technique, and system-to-system variation.
Use the correction factors shown in the table to adjust exposure levels to the usual scan technique at your site.
RADIATION SCATTER – HEAD PHANTOM
NOTE:
- 140 kV
- 100 mAs/scan
- 1 sec
- 4 x 5.00m scan acquisition

RADIATION SCATTER – BODY PHANTOM
NOTE:
- 140 kV
- 100 mAs/scan
- 1 sec
- 4 x 5.00m scan acquisition

GANTRY WITH TABLE

AURORA SWS TABLE
Table weight: 40 kg [88 lbs]
SCALE 1:20
POWER DISTRIBUTION UNIT (PDU)

OPERATOR CONSOLE
OPEN16 CONSOLE WITH Z8G4 HOST PC

Weight: 64.2 kg [141.5 lbs]
SCALE 1:20
Center of Gravity
MAIN DISCONNECT PANEL

Center of gravity
SCALE 1:10
DELIVERY
THE CUSTOMER/CONTRACTOR SHOULD:
- Provide an area adjacent to the installation site for delivery and unloading of the GE equipment.
- Ensure that the dimensions of all doors, corridors, ceiling heights are sufficient to accommodate the movement of GE equipment from the delivery area into the definitive installation room.
- Ensure that access routes for equipment will accommodate the weights of the equipment and any transportation, lifting and rigging equipment.
- Ensure that all necessary arrangements for stopping and unloading on public or private property not belonging to the customer have been made.
| DIMENSIONS OF DELIVERY WITH DOLLY TRANSPORT EQUIPMENT | |||||
| EQUIPMENT | DIMENSIONS | WEIGHT | |||
| GANTRY | LENGTH | 2810 mm | 111 in | 1984 kg | 4374 lbs |
| WIDTH | 1290 mm | 51 in | |||
| HEIGHT | 2000 mm | 79 in | |||
| LITE TABLE | LENGTH | 2440 mm | 96 in | 362 kg | 798 lbs |
| WIDTH | 900 mm | 35 in | |||
| HEIGHT | 1430 mm | 56 in | |||
GANTRY DELIVERY

- The gantry is shipped on a dolly equipped with elevating casters (normal shipping configuration). NOT TO SCALE
STRUCTURAL NOTES
- all steel work and parts necessary to support ceiling mounted equipment is to be supplied by the customer or his contractors.
- methods of support for the steelwork that will permit attachment to structural steel or through bolts in concrete construction should be favored. Do not use concrete or masonry anchors in direct tension.
- all units that are wall mounted or wall supported are to be provided with supports where necessary. Wall supports are to be supplied and installed by the customer or his contractors. See plan and detail sheets for suggested locations and mounting hole locations.
- all ceiling mounted fixtures, air vents, sprinklers, etc. To be flush mounted, or shall not extend more than 1/4″ below the finished ceiling.
- floor slabs on which equipment is to be installed must be level to 1/4″ in 10′-0″
- dimensions are to finished surfaces of room.
- customers contractor must provide all penetrations in post tension floors.
- customers contractor must provide and install any non-standard anchoring. Documents for standard anchoring methods are included with GE equipment drawings for geographic areas that require such documentation.
- customers contractor must provide and install hardware for “through the floor” anchoring and/or any bracing under access floors. This contractor must also provide floor drilling that cannot be completed because of an obstruction encountered while drilling by the GE installer such as rebar etc.
- it is the customer’s responsibility to perform any floor or wall penetrations that may be required. The customer is also responsible for ensuring that no subsurface utilities (e.g., electrical or any other form of wiring, conduits, piping, duct work or structural supports (i.e. post tension cables or rebar)) will interfere or come in contact with subsurface penetration operations (e.g. drilling and installation of anchors/screws) performed during the installation process. To ensure worker safety, GE installers will perform surface penetration operations only after the customer’s validation and completion of the “GE surface penetration permit”

| ITEM | DESCRIPTION |
| (CONTRACTOR SUPPLIED & INSTALLED) | |
| 1 | Gantry leveling pads. See Structural Detail |
| 2 | Table leveling pads. See Structural Detail |
| 3 | Support Backing, locate as shown |
ANCHORING/LOADING DISTRIBUTION TO THE FLOOR

- Tilting axis
- Longitudinal axis
- Cable inlet area (with rear cable cover in option)
Alternative cable inlet area - 8 Gantry anchoring points
- First anchor to be drilled “Anchor A”
- 10 Table anchoring points
- 4 leveling areas
Center of gravity
Main anchoring points
Backup anchoring points
SCALE 1:20
FLOOR REQUIREMENTS
FINISHED FLOOR REQUIREMENTS
- Installation requires a finish floor in the scan and control rooms.
- The floor surface in the scan room directly under the gantry and table must be level.
- The floor levelness tolerance of the floor surface that the gantry and table will rest on is 6 mm [1/4 in] over a 3048 mm [10 ft] distance.
- Shims should not be used to compensate for a floor that does not meet this requirement.
- Eight or more floor covering openings that are 102 mm [4 in] in diameter are made to ensure the table and gantry rest on a solid surface. These floor penetrations can be sealed if required.
- The distance from central line of anchor to the edge of concrete basement of Gantry/table should not be less than 155 mm [6.1 in].
- These requirements apply to all installation types.
NOT TO SCALE
TEMPERATURE AND HUMIDITY SPECIFICATIONS
IN-USE CONDITIONS
| EXAM ROOM | CONTROL ROOM | |||||
| Temperature | Min | Recommended | Max | Min | Recommended | Max |
| 18°C | 22°C | 26°C | 18°C | 22°C | 26°C | |
| 64°F | 72°F | 79°F | 64°F | 72°F | 79°F | |
| Relative humidity (1) | 30% to 60% | 30% to 60% | ||||
STORAGE CONDITIONS
| Temperature | 0°C to +30°C |
| 32°F to +86°F | |
| Temperature gradient | ≤ 3°C/h |
| ≤ 5°F/h | |
| Relative humidity (1) | ≤ 70% |
| Humidity gradient | ≤ 5%/h |
Storage longer than 6 months is not recommended.
- Non-condensing
AIR RENEWAL
According to local standards.
NOTE
In case of using air conditioning systems that have a risk of water leakage it is recommended not to install it above electric equipment or to take measures to protect the equipment from dropping water.
HEAT DISSIPATION DETAILS
| ROOM | DESCRIPTION | MAX | |
| kW | BTU | ||
| Exam Room | Gantry | 5.50 | 18700 |
| Patient Table (Without patient) | 0.20 | 682 | |
| TOTAL | 6 | 19382 | |
| Exam Room or Technical Room* | Power Distribution Unit (PDU) | 1.00 | 3400 |
| Partial UPS – Liebert GXT4 | 0.83 | 2828 | |
| TOTAL | 2 | 6228 | |
| Control Room | Open Console | 0.84 | 2860 |
| LCD monitor (Total amount of 2 monitors) | 0.10 | 340 | |
| TOTAL | 1 | 3200 | |
| *Technical Room is not mandatory, the placements of these elements are recommended in the Exam Room. | |||
ELECTRICAL NOTES
- All wires specified shall be copper stranded, flexible, thermo-plastic, color coded, cut 10 foot long at outlet boxes, duct termination points or stubbed conduit ends. All conductors, power, signal and ground, must be run in a conduit or duct system. Electrical contractor shall ring out and tag all wires at both ends. Wire runs must be continuous copper stranded and free from splices.
- Aluminum or solid wires are not allowed.
- Wire sizes given are for use of equipment. Larger sizes may be required by local codes.
- It is recommended that all wires be color coded, as required in accordance with national and local electrical codes.
- Conduit sizes shall be verified by the architect, electrical engineer or contractor, in accordance with local or national codes.
- Convenience outlets are not illustrated. Their number and location are to be specified by others. Locate at least one convenience outlet close to the system control, the power distribution unit and one on each wall of the procedure room. Use hospital approved outlet or equivalent.
- General room illumination is not illustrated. Caution should be taken to avoid excessive heat from overhead spotlights. Damage can occur to ceiling mounting components and wiring if high wattage bulbs are used. Recommend low wattage bulbs no higher than 75 watts and use dimmer controls (except MR). Do not mount lights directly above areas where ceiling mounted accessories will be parked.
- Routing of cable ductwork, conduits, etc., must run direct as possible otherwise may result in the need for greater than standard cable lengths (refer to the interconnection diagram for maximum usable lengths point to point).
- Conduit turns to have large, sweeping bends with minimum radius in accordance with national and local electrical codes.
- A special grounding system is required in all procedure rooms by some national and local codes. It is recommended in areas where patients might be examined or treated under present, future, or emergency conditions. Consult the governing electrical code and confer with appropriate customer administrative personnel to determine the areas requiring this type of grounding system.
- The maximum point to point distances illustrated on this drawing must not be exceeded.
- Physical connection of primary power to GE equipment is to be made by customers electrical contractor with the supervision of a GE representative. The GE representative would be required to identify the physical connection location, and insure proper handling of GE equipment.
- GEHC conducts power audits to verify quality of power being delivered to the system. The customer’s electrical contractor is required to be available to support this activity.
- All junction boxes, conduit, duct, duct dividers, switches, circuit breakers, cable tray, etc., are to be supplied and installed by customers electrical contractor.
- Conduit and duct runs shall have sweep radius bends
- Conduits and duct above ceiling or below finished floor must be installed as near to ceiling or floor as possible to reduce run length.
- Ceiling mounted junction boxes illustrated on this plan must be installed flush with finished ceiling.
- All ductwork must meet the following requirements:
- Ductwork shall be metal with dividers and have removable, accessible covers.
- Ductwork shall be certified/rated for electrical power purposes.
- Ductwork shall be electrically and mechanically bonded together in an approved manner.
- PVC as a substitute must be used in accordance with all local and national codes.
- All openings in raceway and access flooring are to be cut out and finished off with grommet material by the customers contractor.
- General contractor to insert pull cords for all cable run conduits between the equipment room and the operators control room.
- 10 foot pigtails at all junction points.
- Grounding is critical to equipment function and patient safety. Site must conform to wiring specifications shown on this plan.
CONNECTIVITY REQUIREMENTS
Your new GE Healthcare imaging modality will require local and remote connectivity to enable our full range of digital support:
- Local connectivity – This allows your system to connect to local devices such as PACS and modality worklist. We will require network information to configure the system(s), and a live ethernet port(s) prior to the delivery of the system(s).
- Remote connectivity – Your GE Healthcare service warranty includes InSite™ (applicable to InSite capable products), a powerful broadband-based service which enables digital tools that can help guard your hospital against equipment downtime and revenue loss by quickly connecting you to a GE Healthcare expert.
Depending on product family and software version, imaging systems can be connected in one of the following methods:
- TLS over TCP Port 443 (Preferred method for new products) via:
- DNS resolution
- Customer-provided Proxy or
- GE Proxy (Available in some regions)
- Site-to-Site IPsec VPN tunnel
Please provide the GE project manager with the contact information for the resource that can provide information required to set up these connections. GEHC will send out communication to these contacts, which will include the project’s Connectivity requirements, and a Connectivity form. This form will need to be completed and returned to GEHC prior to delivery of the system to ensure the system is tested and connectivity is enabled prior to the completion of the installation.

| ITEM | DESCRIPTION |
| 1 | Main disconnect panel |
| 2 | Suitable bushings & lock nuts (Power Distribution Unit) |
| 3 | Suitable bushings & lock nuts (Gantry) |
| 4 | Suitable bushings & lock nuts (Operator’s Console) |
| 5 | 4″ x 4″ x 4″ [100 x 100 x 100] box (Partial UPS) |
| 6 | 12″ x 16″ x 4″ [150 x 150 x 100] box (Power Distribution Unit) |
| 7 | 2 1/2″ [63] conduit below floor |
| 8 | 3 1/2″ [90] conduit below floor |
| ITEM | QTY | Electrical Outlet Legend Customer/contractor supplied and installed items unless otherwise specified. Height above floor determined by local codes unless otherwise specified. |
| Dedicated telephone line(s) | ||
| Network outlet | ||
| System emergency off (SEO), (recommended height 1.2m [48″] above floor) | ||
| X-Ray room warning light control panel | ||
| X-Ray Light | ||
| Door interlock switch (needed only if required by state/local codes) |
| Additional Conduit Runs (Contractor Supplied and Installed) | |||||
| From (Bubble # / Item) | To (Bubble # / Item) | Qty | Size | ||
| In. | mm | ||||
| 3 Phase Power | 1 | Main Disconnect | 1 | As req’d | As req’d |
| 1 Main Disconnect | Emergency Off | 1 | 1/2 | 13 | |
| 6 | Power Distribution Unit | 1 | As req’d | As req’d | |
| 6 Power Distribution Unit | Door Switch | 1 | 1/2 | 13 | |
| Warning Light Control | 1 | 1/2 | 13 | ||
| Warning Light | 1 | 1/2 | 13 | ||
| 1 Phase Power | 1 | 1/2 | 13 | ||
| 1 Main Disconnect Panel | 5 | Partial UPS | 1 | 1 1/4 | 30 |
| 6 Power Distribution Unit | 1 | 2 | 50 | ||


POWER REQUIREMENTS
POWER SUPPLY
| POWER SUPPLY | 3 PHASES+G 200/220/240/380/400/420/440/460/480 V ± 10% |
| FREQUENCIES | 50/60Hz ± 3Hz |
| MAXIMUM INPUT POWER | 75 kVA |
| INSTALLED LOAD | 20 kVA |
| POWER FACTOR | 0.85 |
- Power supply should come into a main disconnect panel (MDP) containing the protective units and controls.
- The section of the supply cable should be calculated in accordance with its length and the maximum permissible voltage drops.
- There must be discrimination between supply cable protective device at the beginning of the installation (main low-voltage transformer side) and the protective devices in the MDP.
SUPPLY CHARACTERISTICS
- Power input must be separate from any others which may generate transients (elevators, air conditioning, radiology rooms equipped with high speed film changers…).
- All equipment (lighting, power outlets, etc…) installed with GE system components must be powered separately.
- Phase imbalance 2% maximum.
- Maximum voltage variation at 75kVA = 5% (Including line impedance.)
- Transients must be less than 1500V peak. (on a 400V line)
GROUND SYSTEM
- System of equipotential grounding.
- Equipotential: The equipotential link will be by means of an equipotential bar. This equipotential bar should be connected to the protective earth conductors in the ducts of the non GE cableways and to additional equipotential connections linking up all the conducting units in the rooms where GE system units are located.
CABLES
- Power and cable installation must comply with the distribution diagram.
- All cables must be isolated and flexible, cable color codes must comply with standards for electrical installation.
- The cables from signaling and remote control (Y, SEO, L…) will go to MDP with a pigtail length of 1.5m, and will be connected during installation. Each conductor will be identified and isolated (screw connector).
CABLEWAYS
The general rules for laying cableways should meet the conditions laid down in current standards and regulations, with regard to:
- Protecting cables against water (cableways should be waterproof).
- Protecting cables against abnormal temperatures (proximity to heating pipes or ducts).
- Protecting cables against temperature shocks.
- Replacing cables (cableways should be large enough for cables to be replaced).
- Metal cableways should be grounded.
| FEEDER TABLE | ||||||||
| MIN. FEEDER WIRE SIZE, AWG OR MCM (sq. mm)/VAC | MINIMUM FEEDER WIRE LENGTH – ft (m) | |||||||
| 50 (15) | 100 (30) | 150 (46) | 200 (61) | 250 (76) | 300 (91) | 350 (107) | 400 (122) | |
| 480 VAC | 4 (22) | 4 (22) | 4 (22) | 4 (22) | 4 (22) | 3 (30) | 2 (35) | 1 (45) |
| GENERAL NOTES | ||||||||
| In all cases qualified personnel must verify that the feeder (at the point of take-off) and the run to the CT system meet all the requirements stated in the PIM | ||||||||
| For a single unit installation, the minimum transformer size is 93.75KVa, with 2.4% rated regulation at unity power factor. Resultant maximum allowable feeder regulation is 3.4% | ||||||||
| Grounding conductor will be a 1/0 minimum. this ground will run from the equipment back to the power source/main grounding point and always travel in the same conduit with the feeders | ||||||||
POWER DISTRIBUTION

- MDP Main Disconnect Panel
- PDU Power distribution unit
- SEO Emergency OFF button (Control Room), located 1.50m (4.9′) above floor
- WLC Warning Light Control
- WL Warning Light
- DLK1 Door Interlock Switch (needed only if required by state/local codes)

Notes :
- Two dry contacts: “System ON” and “X-Ray ON”, both released by PDU. Max. voltage = 30 V
- If length < 10 m (32.8′) Cable with 2m (6.6′) extra length on the floor behind the back of PDU
- Cable with 2m (6.6′) extra length on the floor behind the back of PDU
- Cable delivered with partial UPS installed by GE (Option)
TYPICAL CABLE MANAGEMENT
CONDUIT IN THE FLOOR

NOT TO SCALE
INTERCONNECTIONS





















