VICOUSTIC VICB06007 Vic Studio VMT Box

Included

Not Included

Multifuser DC3 Installation
- Apply three lines of glue on the back of the acoustic panel. Do not wait longer than 10 minutes after applying the glue to attach the panel to the wall.

- Place the panel on the suitably chose position on the wall. Once in the desired place, press firmly against the wall for 15 seconds.

Cut the tip of the glue nozzle according to the diagram.

To ensure that you maximise the strength of the glue, don’t make any adjustments to the panel after bonding
Wall and ceilling surfaces should be examined prior to installation, ensuring they are clean, smooth, and dry. If you have unpainted gypsum board surfaces, these should be primed with a drywall primer (or another material manufactured especially for the purpose), to equalize the absorption between the gypsum board face paper, joint compound, and skin coating materials.
You should then apply the paint, and allow air circulation in order to dry the paint within the time frame specified by the paint manufacturer. Please ensure the paint is dry before installing the acoustic panel. Make sure the room has all the necessary conditions to receive the acoustic panels. After you apply the glue on the back of each acoustic panel, please ensure you hold the acoustic panel against the wall the required time (mentioned above), and ensure it stays fixed in place. This method is also applicable to ceiling installations.
You can also install de Multifuser DC3 with the supplied VicFix Mini. Please consult the Multifuser DC3 installation manual, available on vicoustic.com
VicSpacer Installation
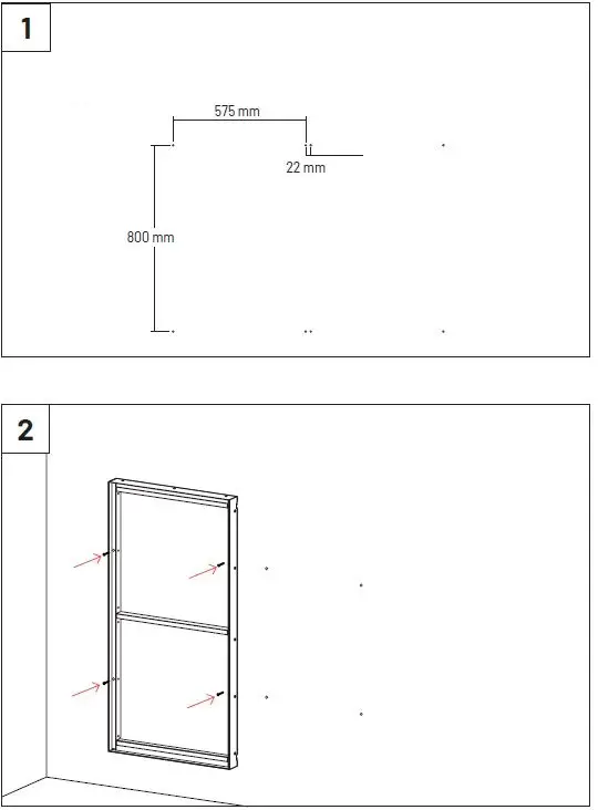
- Mark the drill holes of the VicSpacers according to the diagram.
In the case of installing two or more units, pay attention to the spacing between units.
The dimensions marked between VicSpacers are for use of only one metal joint between them.

- For wall installation and if you do not want a permanent fixation of the Flat Panel VMT, you can apply the panel directly to the Vicspacer, inserting it inside the metal frame. If you want a more secure and permanent fixation, fix the Flat Panel VMT with Flexi Glue Ultra by applying a bead of glue to the surface of the plywood structure. For ceiling installation, the Flat Panel VMT must be glued with Flexi Glue Ultra.

VicFix Corner Installation


Multifuser DC3
Included

Not Included

This product can be installed on the wall with VicFix Mini and on the ceiling using Flexi Glue Ultra (not supplied).

Ways of using the gauge

Wall installation – One panel
After defining the place where you want to install the panels, start marking the position of the Multifuser DC3 fixation clips.
This product can also be installed using Flexi Glue Ultra.

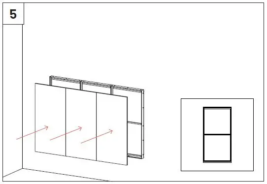
Wall installation – Installation up to three panels
Define the place where you want to install the panels and fix the First VicFix Mini. From there
and with the help of the gauge provided, mark the positioning of the remaining fixation clips.


To install the last Multifuser DC3, use it to mark the inner side of the last fixing clip.
Remove the last two panels again and use the gauge provided to ensure the clips are aligned. Fix the last clip. You can use a bubble level to help in this procedure.


Install the last two panels.

Wall Installation – Vertical Installation
Install the first panel according to step number 2.
Follow the steps described in the following diagrams.

Ceilling Installtion
- Apply three lines of glue on the back of the acoustic panel. Do not wait longer than 10 minutes after applying the glue to attach the panel to the wall.
- Place the panel on the suitably chose position on the ceilling. Once in the desired place, press firmly against the wall for 15 seconds.

To ensure that you maximise the strength of the glue, don’t make any adjustments to the panel after bonding
Wall and ceilling surfaces should be examined prior to installation, ensuring they are clean, smooth, and dry. If you have unpainted gypsum board surfaces, these should be primed with a drywall primer (or another material manufactured especially for the purpose), to equalize the absorption between the gypsum board face paper, joint compound, and skin coating materials. You should then apply the paint, and allow air circulation in order to dry the paint within the time frame specified by the paint manufacturer. Please ensure the paint is dry before installing the acoustic panel. Make sure the room has all the necessary conditions to receive the acoustic panels. After you apply the glue on the back of each acoustic panel, please ensure you hold the acoustic panel against the wall the required time (mentioned above), and ensure it stays fixed in place. This method is also applicable to ceiling installations.
Main Office, R&D & Logistics
Avenida do Pólo 3, Nº 159, Carvalhosa
4590-137 Paços de Ferreira, Portugal
Office
Rua Quinta do Bom Retiro Nº 16, Armazém 9
2820-690 Charneca da Caparica, Portugal
T (+351) 212 964 100
Info and Sales
E [email protected]
www.vicoustic.com
Vicoustic, 2021 | V3
No parts of this document might be copied and/or published without written consent of Vicoustic.





















