
72″ BRECKENRIDGVEANITY
330-V72-LNO

Features
Materials
Solids (Species): Ash
Veneers: Flat Cut White Oak
Panels: Plywood
Number of Basins: Single
Vanity Top : Sold Separately – 3cm Top with Sink
Basins Included: No
Number of Doors: Two
Number of Drawers: Six
Number of Tip Outs: No
USB/Power Component:Yes (ETL5011080)
Assembly Required: No
Bamboo Storage Tray: One
Drawer Box Material and Construction: 12mm Plywood/English Dovetail Joinery
Hardware Material and Finish: Zinc Alloy in Matte Black
Fits Drain Hole Size: 1-3/4″
Full Extension, Soft Close Glides European Soft Close Hinges Aluminum Laminate Drawer Liners
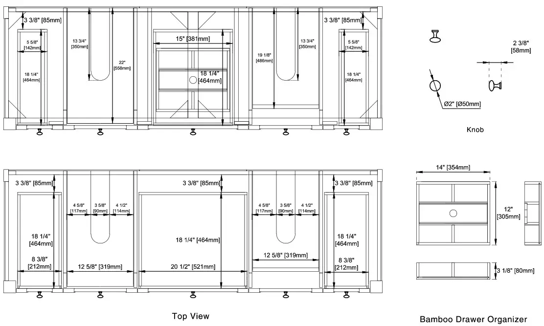
Dimension
Width:71-7/8″
Depth:23-1/2″
Height:33″
Rough-In Height:21-1/2″




Diagrams are of cabinets only –James Martin Optional Countertops and sinks are not shown
Visit website for warranty and installation information
www.jamesmartinvanities.com
Version:202211


















