
SLID’UP 240
SU5372
INSTRUCTIONS FOR ASSEMBLY
x1
x2
x5
x2
x2
x1
x4
x4
x5
x5
x2
x1 

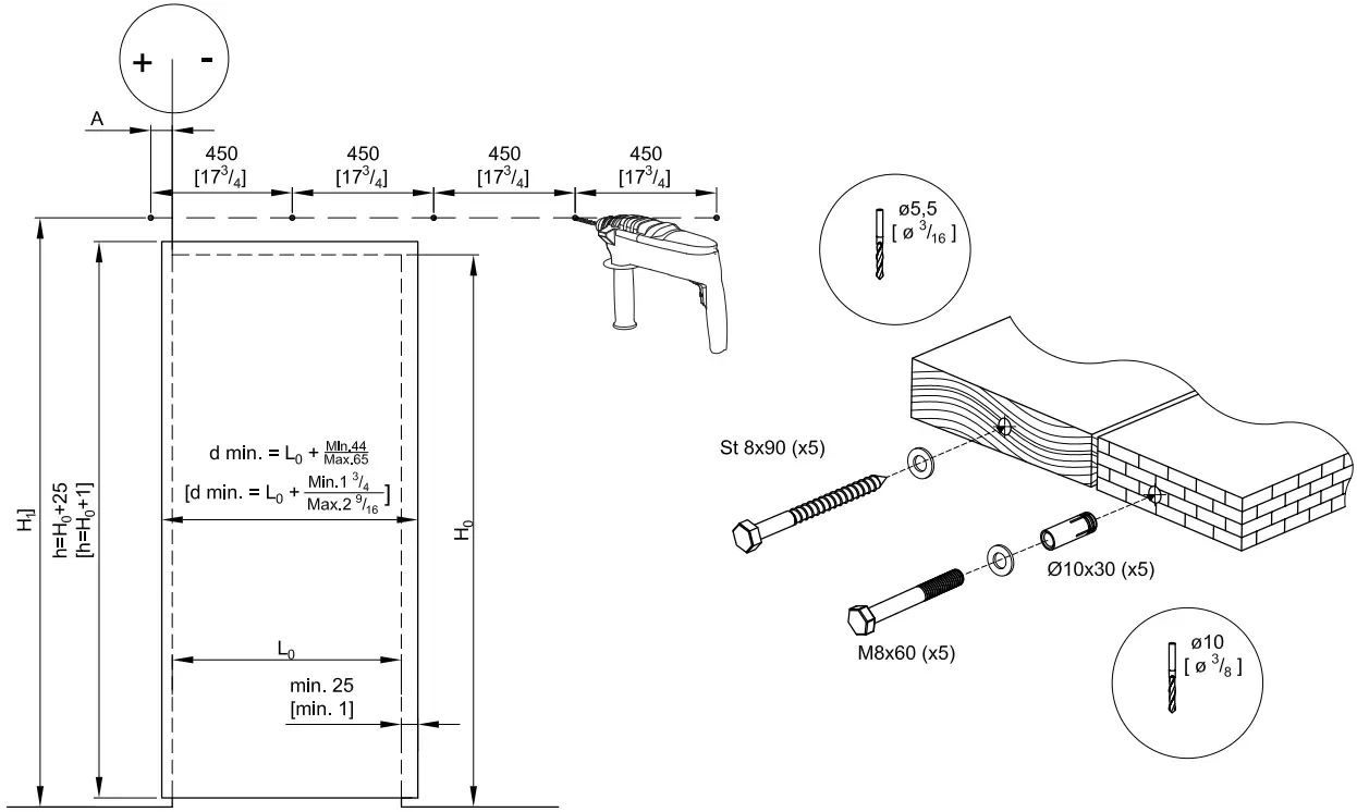
1

| L0 [mm] | ≥ 900 | 800≤L0>900 |
| A [mm] | -25 | + 40 |
| L0 [inch] | ≤ 35 7/16 | ≥ 31 1/2 |
| A [inch] | -1 | + 1 9/16 |


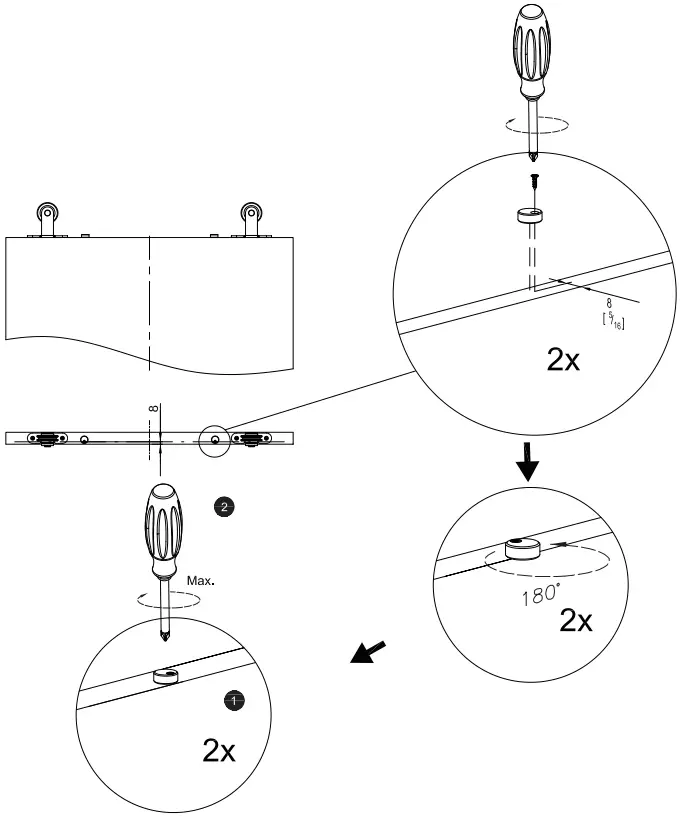
2

3

4

5

6


7

A 08-2017 www.slidup.net

x1
x2
x5
x2
x2
x1
x4
x4
x5
x5
x2
x1 

1

| L0 [mm] | ≥ 900 | 800≤L0>900 |
| A [mm] | -25 | + 40 |
| L0 [inch] | ≤ 35 7/16 | ≥ 31 1/2 |
| A [inch] | -1 | + 1 9/16 |


2

3

4

5

6


7

A 08-2017 www.slidup.net
Download manual
Here you can download full pdf version of manual, it may contain additional safety instructions, warranty information, FCC rules, etc.