
Model GF-1000LHM/LHD
Installation & Owners Manual
Please Read And Save These Instructions
- Installation by anyone other than a qualified contractor voids the warranty.
- Product designed for residential installation only. Commercial installation voids warranty.
- Modification or alteration of product, parts, installation instructions, or local safety codes voids warranty.
- Read our full warranty policy at the end of this document.

WARNING!
This symbol indicates IMPORTANT INSTRUCTIONS!
Failure to heed them can result in serious injury or death.
CAUTION!
This symbol indicates IMPORTANT INSTRUCTIONS!
Failure to heed them can result in serious injury or material property damage.
IMPORTANT INSTALLATION INSTRUCTIONS
GF-1000LHM/LHD model fan-power humidifier has a built-in transformer.
A 24V SPST (Single-Pole Single-Throw) relay is field supplied by the contractor and required for model 1000LHM/LHD installation.
• DO NOT connect yellow wires to the furnace board.
• DO NOT use red wires in installation.
• ONLY connect yellow wires as follows:
– Load side of 24V relay (C) to (C) on GF-MHX3 Humidistat.
– Load side of 24V relay (NO) wired with yellow wire on the humidifier. Then connect the other yellow wire on a humidifier to (NO) on Humidistat to complete the circuit.
– Coil side of relay wired to C/W for heat call at Control board of the furnace
Specifications
- Model: GF-1000LHM/LHD Elite Flow-Through Humidifiers
- Type: Fan Powered Flow-Through
- GPD: 18 Based on 120° F / 49° C Plenum Temperature
- Warranty (Years): 10
- Replacement Vapor Pad®: GF-GA900 (Replace 1-2 times per season)
- Dimensions (Inches): 16 W x 16-1/2 H x 10-1/2 D
- Weight (Pounds): 15
- Home Size (sq. Ft.): To 3,000

- Installation: Warm Air / Return Air Plenum
- Plenum Opening (Inches): 14-1/8 W X 12 H
- Pallet Qty: 24
- Cabinet Construction: UV-Stable Automotive Grade Plastic
- Humidistat (Included): GF-1000LHM -GF-MHX3 / GF-1000LHD – GF-X3
- Voltage: 120VAC
- In The Box: GF-1000LHM: GF-MHX3 / GF-1000LHD: GF-X3 (Included) Humidifier, Humidistat, Control Bypass Damper, Solenoid Valve, Vapor Pad, Saddle Valve, (GCV3412 Code Valve – GF-1000LHD), Installation Instructions, Template, Parts.
Expected Humidity Performance Coverage in Square Feet Based on Construction Type
| Model No. | GPD | Loose (0.75 AC/H) | Average (0.50 AC/H) | Tight (0.30 AC/H) |
| Elite 1000 | 18 | 1175 sq. Ft. | 1770 sq. Ft. | 3000 sq. Ft. |
Humidifier Performance Baseline Criteria
| Outside Design Temperature | 0° F / -18° C |
| Outside Design R.H. | 70% R.H. |
| Inside Design Temperature | 70° F / 21° C |
| Inside Design R.H. | 30% R.H. |
| Air Changes/Hour (AC/H) | 0.3 |
| Ceiling Height (Feet) | 8 |
| Furnace Plenum Temperature | 120° F / 49° C |
| Furnace Run Time For Calculating sq. Ft. | 8 Hour /1 Day |
Unit Location
- For installation on a vertical surface of the warm air plenum of any forced air furnace.
WARNING: Disconnect electrical power before beginning installation.- Do not install where temperatures fall below 32°F / 0° C or where plenum temperatures exceed 200° F / 93° C.
For maximum evaporative capacity, install this humidifier on the warm air supply plenum.
Additional Materials That May Be Necessary:
- 1/4″ Diameter plastic supply tubing for cold water applications, or 1/4″ copper supply tubing for hot water applications
- Current sensing relay (Model GF-GA50) / or single pole single throw isolation relay
- Junction box, 115V grounding outlet, cover, and wire
- 1/2” I.D. Drain hose / 3/4″ PVC drain
- #8 Self-piercing sheet metal screws
- Misc. wire and connectors
Installation
- Select a location on the vertical surface of the warm air plenum of a forced air handling system for mounting a humidifier that allows for service and maintenance. Do not install a humidifier where the blanked-off ends of a cooling coil will restrict air flow to the humidifier. Cut out a square section 12-1/8” tall by 14-1/8” wide as shown.

- Open the cover and remove the evaporator pad assembly.
The humidifier chassis is self-retaining. Slide the top side in first, then slide the chassis down. Level the chassis and install the eight screws (included).
- Mount the self-tapping saddle valve on either a cold or a hot water pipe. A side or top mount is best to avoid clogging from pipe sediment. Connect 1/4” O.D. tubing to the saddle valve. Copper tubing requires a brass compression nut and brass sleeve. Plastic tubing requires a brass insert inside the tubing in addition to a plastic ferrule and brass nut.
CAUTION: do not use plastic tubing on hot water or in contact with any hot plenum surface or duct. Installation of this saddle valve must meet or exceed local codes and ordinances.
- Connect 1/4″ water supply tube to the inlet of the solenoid.
Connect drain hose to 1/2″ spout on humidifier cabinet using hose clamp if necessary. Run 1/2″ hose to suitable drains such as floor drain, sewer, or laundry sink. Be sure the hose has a continuous slope and is not kinked at any point.
Installation Cont. - GCV3412 Code Valve Installation Instructions*
Copper Pipe:
CAUTION: Turn off the water supply.- Clean pipe, fittings, and valve with sandpaper or wire brush.
- Apply a thin layer of flux to all surfaces to be soldered.
- Assemble valve to pipe and/or fittings.
- Cooling the valve by wrapping a wetted rag around the valve is optional.
WARNING: For your safety, this should be performed by a licensed contractor only. Heat the joints with a torch. Apply solder to each joint. Continue to apply heat sufficient to keep solder liquid.- After the solder has filled the entire joint area, remove heat and allow the joint to cool. Do not move or disturb.

- Slide the compression nut over a 1/4” copper tube followed by a compression sleeve.
- Insert the tube into the valve fully and tighten the nut.
- Turn on the water supply and check for leaks.
*Code Valve Is Included With Automatic Models Only
Installing The Control

Installing The Control, Cont.

WARNING: All Wiring Should Comply With Local Electrical Codes.
6A With Furnace Circuit Board
Use with mechanical humidistat only. On furnaces with output terminals, ACC or EAC check output voltage to determine that terminals are 115V. Connect the on-off switch in series with the hot wire. Install humidistat and connect to yellow wires on the humidifier.
6B With Constant Power To Humidifier
Use with mechanical humidistat only. Mount a junction box and 115V grounded outlet. Connect the on-off switch in series with the hot or black wire. Install a field-supplied 24V relay and attach it to HUM and C on the furnace control board. Install the humidistat and connect one side to one yellow wire on the humidifier. Connect the other side of the humidistat to one end of the switch side of the relay. Connect the other switch side of the relay to the remaining yellow wire on the humidifier.
CAUTION: Red humidifier leads are not used for this wiring method.
CAUTION: Do not touch red wires together. Damage to the humidifier will result.
6C With Electronic Humidistat – Pressure Sensing
On furnaces with a two-speed blower, the humidifier and a Model 12500 Air Pressure Switch may be wired from a continuous 115V power source. Install the on/off switch in series with hot or black wire and the Air Pressure Switch in series with the humidistat circuit. The Air Pressure Switch will detect furnace operation and supply power to the humidifier accordingly.
6D With Electronic Humidistat – Current Sensing
On furnaces with a two-speed blower, the humidifier may be wired from a continuous 115V power source.
Install the on/off switch in series with the hot or black wire. Install the GF-GA50 Current Sensing Relay in series with the humidistat circuit. The Current Sensing Relay will detect furnace operation and supply power to the humidifier accordingly.
Final Steps Of Installation
Replace evaporator pad assembly and humidifier cover.
CAUTION: To prevent possible injury, ensure the cover is fully seated before continuing to the next step.
Insert low voltage six connector wiring harness from cover into chassis solenoid harness.
Turn on the water supply and plug in the power cord to check the operation of the humidifier. Set the humidistat to a demanding setting. With the furnace off, the solenoid valve should be closed and the humidifier fan not running. Start the furnace, the solenoid valve should open and the humidifier fan runs when the blower or burner circuit is energized. Check the flow of water through the distributor through an evaporator pad. The standard GA4231 yellow orifice will supply approximately 3.5 GPH of water at a line water pressure of 60 PSI. For low water pressures (20-40 PSI) a larger orifice GA4299 is available to provide the same flow. Leave humidistat set at the recommended setting.
How The Humidifier Works
- The operating principle of the humidifier is based on the most efficient and economical means of evaporating water into the air. The heat necessary for evaporating water is produced by the furnace.
- The water supply to the humidifier is controlled by the electric solenoid valve. The solenoid valve and humidifier fan are controlled by a humidistat connected through an isolation relay. The humidistat is designed for wall mounting in the living area or surface mounting on the return air duct.
- Water flows through a strainer, is metered through an orifice to provide the proper amount of water, and is supplied to the evaporator pad by the distributor trough. Air from the warm air plenum is pulled through the wetted evaporator pad by the humidifier fan and returned to the warm air plenum to be circulated through the living area. Moisture is evaporated to the air passing through the evaporator pad.
| At Ou side Temperature | Recommended Setting | |
| -20°F | -29°C | 15% |
| -10°F | -23°C | 20% |
| 0°F | -18°F | 25% |
| +10°F | -12°C | 30% |
| +20°F | -7°C | 35% |
| +30°F | -1°C | 40% |
- Minerals are not blown into the air stream as occurs in atomizing humidifiers; they are left on the evaporator pad where a high percentage is carried off with the wastewater.
- When the humidifier is installed and operating, no adjustments are necessary other than setting the control knob on the humidistat to the desired level of humidification.
- To turn the humidifier off, close the water supply valve, switch the electrical power off, and turn the humidistat off.
CAUTION: Do not set relative humidity too high during cold weather. Excessive humidity may cause condensation on windows or in walls. Refer to recommended settings as described in the humidistat owners manual.
Maintenance
Your humidifier is engineered to give helpful and trouble-free humidification. For maximum efficiency the following cleaning procedures should be carried out at the end of each heating season:
- Turn off the water supply and electrical power to the humidifier.
- Remove cover, water distributor trough, used Vapor Pad®, pad rails, and drain pan. Clean excessive mineral deposits from the distributor trough, drain pan, pad rails, and humidifier cabinet. A solution of 1/2 vinegar & 1/2 water will help loosen mineral deposits. Inspect drain hose, clean or replace as necessary.
- Insert a new GF-GA900 Vapor Pad®(black notch on top). Install trough, pad rails, and drain pan. Replace the cover, and reconnect the electrical plug. Replace Vapor Pad® yearly for peak performance.
- In heavy mineral areas or if the solenoid valve fails to function disconnect the 1/4” water supply line from the solenoid valve. Carefully pull the strainer screen from the valve body. Clean the mineral deposits from all parts. If the orifice is clogged, it may be opened by inserting a small pin. Reinsert the filter into the valve body.
- Reconnect the 1/4” water line to the solenoid valve if necessary. Turn on the water supply and check all points for leakage. The operation of the unit may be checked by starting the furnace. The humidifier operates only when the furnace blower is running or the burner circuit is energized. The humidifier is now ready for operation.
- During the summer, turn OFF the water supply and electrical power to the humidifier.
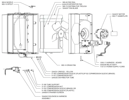
Parts Drawing

Humidifier Chassis Cut Out

Inside Your Box
Model GF-1000LHD includes:
Humidifier components: GF-GA900 Vapor pad, Solenoid Assembly
Accessories: GF-X3 Automatic Digital Humidistat, Code Valve, Saddle Valve
Model GF-1000LHM includes:
Humidifier Components: GF-GA900 Vapor Pad, Solenoid Assembly, Relay Circuit
Board Accessories: GF-MHX3 Manual Humidistat, Saddle Valve
Troubleshooting
- My humidifier will not operate.
Check for the following:
• Set thermostat to operate both furnace burner and blower. The operation may be necessary for system power.
• humidity level in the home may be higher than the humidistat setting. Increase humidity setting on humidistat.
• Verify water supply is on.
• Check for voltage at the solenoid valve. The voltage should be 24VAC.
• Verify wiring of humidifier and humidistat.
• Contact licensed GeneralAire®contractor to verify voltage in and out of the relay board, and replace if necessary. - The proper voltage is present at the solenoid valve (24 VAC) but no water flow.
This can be caused by any of the following:
• Verify water supply is on.
• Verify metering orifice is not obstructed. Very hard water with high mineral content may restrict the metering orifice in as little as one heating season. Replace Yellow metering orifice GF-GA4231 if restricted. - The humidifier runs without furnace operation or the humidifier never shuts off.
Check for the following:
• Verify humidifier and humidistat wiring. The humidifier should operate with a furnace burner or blower cycle. - Too much humidity in-home and/or condensation on windows.
• Reduce the setting on the humidistat. Refer to the How The Humidifier Works Section of this manual to estimate a humidity setting for the home based on outside temperature (humidistat generally located on furnace return plenum or on an inside wall in the living space).
To ensure your safety and the longevity of your unit, we recommend contacting a licensed contractor to perform any repairs or maintenance.
FAQ’s
- How does a humidifier help with my allergies?
Dry air can lead to a host of problems for allergy and asthma sufferers. Dry climates, winter air, and artificial heat all contribute to the discomfort by drying out your skin, throat, and delicate sinus passages and airways (which can contribute to sinusitis). Winter is an especially bad time for dry air as home heating systems, especially forced-air
systems, reduce the amount of moisture in the air while humidity levels outdoors typically dip as well. - What range of humidity is ideal?
Research shows that 40-60% relative humidity is ideal. Outside this range, your risk of being adversely affected increases. - How often should I change my Vapor Pad®?
We recommend replacing your Vapor Pad ®at least once per year. Minerals build up on the Vapor Pad ® over time, which in turn:
• Reduces the Vapor Pad’s ability to absorb water.
• Prevents the warm air from flowing through the pad. Warm air moving through the water-soaked pad causes the water in the pad to evaporate. It is this process that delivers moisture throughout your home via the home’s duct system. - Can I clean my Vapor Pad ® instead of replacing it?
A coating is applied to the Vapor Pad ® that helps it absorb water and control water flow. If you subject the Vapor Pad ® to cleaning, you usually remove much of the coating and the pad becomes ineffective. This reduces the output of the humidifier and increases water consumption.
Replace the Vapor Pad ® annually. - Why would I want to install a humidifier?
For many reasons:
1. Since the air in your home is always trying to reach its saturation point, it will absorb water wherever it can; from the bodies of you and your children, your pets, your furniture, and even your house plants. As a result, your skin, throat, and nasal passages dry out, leaving you more susceptible to physical discomfort, colds, flu, and even infection. Allergy and asthma sufferers can be especially affected by air that’s too dry.
2. Dry air causes dry, itchy skin.
3. Dry air cracks expensive woodwork, floors, musical instruments, artwork, and furnishings.
4. Annoying static electricity (caused by dry air) can damage computers, VCRs,s, and other electronic equipment, requiring an expensive repair.
5. Dry air can cause harm to expensive musical instruments like pianos and violins.
6. Dry air causes gaps in window & door frames, letting cold outdoor air in; causing you to turn up the heat and increasing your heating bills! Controlled humidity from the GeneralAire ® Humidifier allows you the luxury of dialing the thermostat back & reducing annual heating bills. For example, 68° at 40% relative humidity feels just as warm as 74° at 20% humidity. Setting your thermostat back by as little as three degrees can reduce annual heating bills by as much as 5%.


400 Midwest Rd.
Toronto, ON M1P 3A9
Canada
Toll-Free: (888) 216-9184
www.generalaireiaq.ca
[email protected]


























