WOLF EC24-S Coffee System User Guide
Coffee System
Make professional-quality coffee, espresso, cappuccino, latte, and more. The Wolf coffee system automatically steams and foams the milk perfectly. The water temperature and brew strength are adjustable. It uses either whole-bean or ground coffee. The design pairs beautifully, either side-by-side or in a tower application, with other Wolf products such as the convection steam oven. The coffee system can be installed in a standard or flush inset application. All 30″ trim options are based on model EC24/B.
- 24″ MODELS

- TRANSITIONAL

- PROFESSIONAL

- CONTEMPORARY

DIMENSIONS

WIDTH: W
- 24″ Model: 23 1/2″ (597)
- 30″ Trim: 29 7/8″ (759)
Planning Information
The coffee system can be installed in a standard or flush inset application. Trim kits are available for vertical, single and horizontal configurations. All 30″ trim options are based on model EC24/B. There are no trim options for model EC24/S.
The sides of the cabinetry opening must be adequate to support installation of the mounting slides. Refer to the illustration below.
Finish the edges of the opening. They may be visible when the unit is slid forward.
For standard installations, the face trim will overlap stiles and rails. Refer to the chart below.
For flush inset installations, a minimum 1/8″ (3) reveal is required on all sides. To ensure consistent reveals, each corner of the opening must be exactly 90°.
INSTALLATION REQUIREMENTS
| BASE SUPPORT | MIN | |
| Coffee System | 100 lb (45 kg) | |
| TRIM OVERLAP | 24″ MODEL | 30″ TRIM |
| Top | 3/16″ (5) | 3/16 (5) |
| Bottom | 0″ (0) | 0″ (0) |
| Sides | 11/46″ (18) | 31/2″ (9 8) |

Side support
COMBINATION INSTALLATIONS
IMPORTANT NOTE: If a product is installed next to the coffee system, a horizontal kit must be specified. For all other configurations, a vertical kit must be specified.
To install a coffee system above a cup warming drawer, one opening for both units must be specified. To achieve the minimum reveal between the units, place the coffee system support rails on top of the cup warming drawer, then secure the rails to the sides of the cabinet. Any material between the units will increase the horizontal reveal between the two products.
ELECTRICAL REQUIREMENTS
Installation must comply with all applicable electrical codes.
Locate the electrical supply as shown in the illustrations on the following pages. A separate circuit servicing only this appliance is required. A ground fault circuit interrupter (GFCI) is not recommended and may cause interruption of operation.
- Electrical Supply: grounded, 120 VAC, 60 Hz
- Service: 15 amp dedicated circuit
- Receptacle: 3-prong grounding-type
- Power Cord: 6′ (1.8 m)
STANDARD INSTALLATION

NOTE: 24″ (610) model and model with 30″ (762) trim require the same opening dimensions.
OPENING WIDTH: W
- 24″ Model: 22 1/8″ (562)
- 30″ Trim: 22 1/8″ (562)
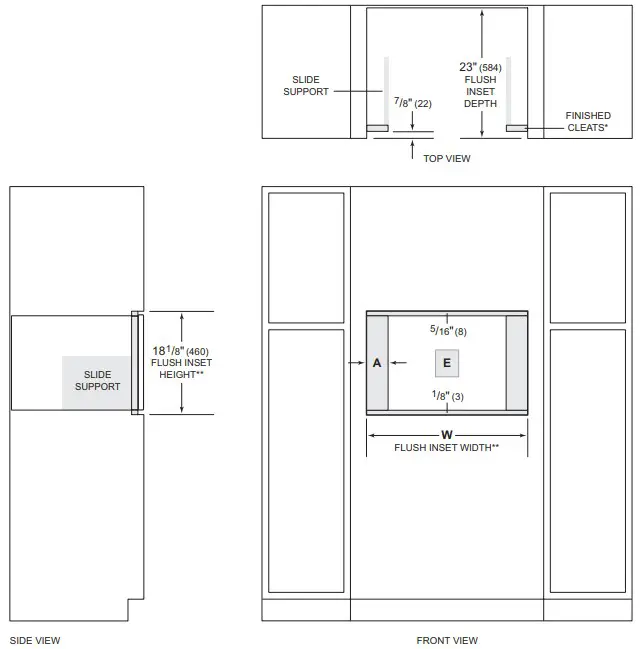
FLUSH INSET INSTALLATION

*Will be visible and should be finished to match cabinetry.
**Dimension provides minimum reveals.
| FLUSH INSET WIDTH | W | A |
| 24″ Model | 23 3/4″ (603) | 13/16″ (21) |
| 30″ Trim | 30 1/8″ (765) | 4″ (102) |
Warranty
Wolf Appliance Residential Limited Warranty
FOR RESIDENTIAL USE
FULL TWO YEAR WARRANTY*
For two years from the date of original installation, this Wolf Appliance product warranty covers all parts and labor to repair or replace, under normal residential use, any part of the product that proves to be defective in materials or workmanship. All service provided by Wolf Appliance under the above warranty must be performed by Wolf Factory Certified Service, unless otherwise specified by Wolf Appliance, Inc. Service will be provided during normal business hours.
LIMITED FIVE YEAR WARRANTY
For five years from the date of original installation, Wolf Appliance will repair or replace the following parts that prove to be defective in materials or workmanship: gas burners (excludes appearance), electric heating elements, blower motors (ventilation hoods), electronic control boards, magnetron tubes and induction generators. If the owner uses Wolf Factory Certified Service, the service provider will repair or replace these parts with the owner paying for all other costs, including labor. If the owner uses non-certified service, the owner must contact Wolf Appliance, Inc. (using the information below) to receive repaired or replacement parts. Wolf Appliance will not reimburse the owner for parts purchased from non certified service or other sources.
TERMS APPLICABLE TO EACH WARRANTY
The warranty applies only to products installed for normal residential use. The warranty applies only to products installed in any one of the fifty states of the United States, the District of Columbia or the ten provinces of Canada. This warranty does not cover any parts or labor to correct any defect caused by negligence, accident or improper use, maintenance, installation, service or repair.
THE REMEDIES DESCRIBED ABOVE FOR EACH WARRANTY ARE THE ONLY ONES THAT WOLF APPLIANCE, INC. WILL PROVIDE, EITHER UNDER THIS WARRANTY OR UNDER ANY WARRANTY ARISING BY OPERATION OF LAW. WOLF APPLIANCE, INC. WILL NOT BE RESPONSIBLE FOR ANY CONSEQUENTIAL OR INCIDENTAL DAMAGES ARISING FROM THE BREACH OF THIS WARRANTY OR ANY OTHER WARRANTY, WHETHER EXPRESS, IMPLIED OR STATUTORY.
Some states do not allow the exclusion or limitation of incidental or consequential damages, so the above limitation or exclusion may not apply to you. This warranty gives you specific legal rights and you may also have other legal rights that vary from state to state.
To receive parts and/or service and the name of Wolf Factory Certified Service nearest you, contact Wolf Appliance, Inc., P.O. Box 44848, Madison, WI 53744; check the Product Support section of our website, wolfappliance.com, email us at [email protected] or call 800-222-7820.
- Stainless steel (doors, panels, handles, product frames and interior surfaces) are covered by a limited 60-day parts and labor warranty for cosmetic defects.
- Replacement filters for ventilation hood recirculating kits are not covered by the product warranty.





















