
Installation MANUAL
VIJ5301 Insulated Jacket
Insulated Jacket
For Outdoor Products
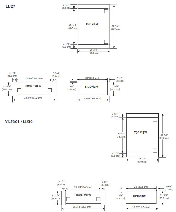
| VIJ5301 | LIJ27 |
| VIJ5361 | LIJ30 |
| VIJ5421 | LIJ36 |
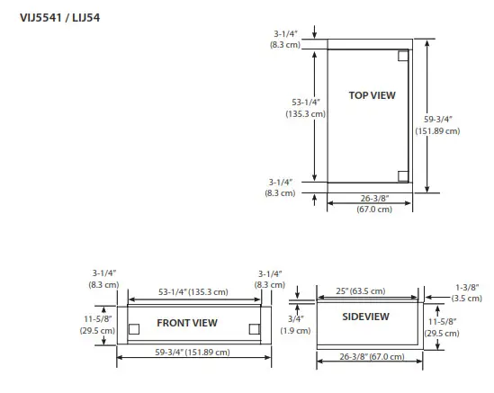
| VIJ5541 | LIJ42 |
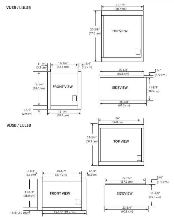
| VIJSB | LIJ54 |
| VIJPB | LIJLSB2 |
| LIJLPB |
IMPORTANT: Before you build the frame, you must take into consideration the total weight of the liner, grill and any fi nishing materials.
Refer to the cutout dimension table for the proper framing dimensions for the insulation jacket. Determine the entry point for both the gas inlet and electrical connections. Make the 4” square holes for gas and electrical connections (rear or bottom access) based on your requirements.
Note: that the electrical connections are located on the left side and the gas connections are located on the right side.
A Carpenter’s “spirit level” should be used to assure that the framing is level, both front to back and side to side. Note: Never under any circumstance should you install the transformer or run a quick disconnect hose inbetween the grill and the inside of the insulating jacket.
Liner Installation
Position the liner into the frame. No part of the combustible enclosure can protrude above the top surface or in front of the face surface of the liner. Shim the liner if necessary.
Grill Installation
Use the proper equipment to support the grill. Place the grill into the liner and engage it over the liner lip across the back and sides. The liner is designed to support the grill without additional fasteners.
If desired any gap remainng between the liner and the combustible enclosure may be fi lled with a non-combustilble sealant or caulk.
Cutout Dimensions
| Model | A | B | C | D | E | F |
| LIJ27 | 30″ | 5″ | 23 3/4″ | 4 1/2″ | 3″ | 11 5/8″ |
| (76.2 cm) | (12.7 cm) | (60.3 cm) | (11.4 cm) | (7.6 cm) | (29.5 cm) | |
| VI15301 / LI130 | 36″ | 5″ | 26’/2″ | 4 1/2″ | 3″ | 11 5/8″ |
| (91.4 cm) | (12.7 cm) | (67.3 cm) | (11.4 cm) | (7.6 cm) | (29.5 cm) | |
| VIJ5361 / LIJ36 | 42″ | 5″ | 23 3/4″ | 4 1/2″ | 3″ | 11 5/8″ |
| (106.7 cm) | (12.7 cm) | (60.3 cm) | (11.4 cm) | (7.6 cm) | (29.5 cm) | |
| VIJ5421 / LIJ42 | 48″ | 5″ | 26’/2″ | 4’/2″ | 3″ | 11 5/8″ |
| (121.9 cm) | (12.7 cm) | (67.3 cm) | (11.4 cm) | (7.6 cm) | (29.5 cm) | |
| VIJ5541 / LIJ54 | 60″ | 5″ | 26’/2″ | 4 1/2″ | 3″ | 11 5/8″ |
| (152.4 cm) | (12.7 cm) | (67.3 cm) | (11.4 cm) | (7.6 cm) | (29.5 cm) | |
| VIJSB / LIJLSB2 | 15’/2″ | 3’/2″ | 26’/2″ | 4 3/4″ | 3 1/8″ | 11 5/8″ |
| (39.4 cm) | (8.9 cm) | (67.3 cm) | (12.1 cm) | (8.0 cm) | (29.5 cm) | |
| VIJPB / LIJLPB | 26’A” | 5 3/8″ | 23 7/8″ | 4 3/4″ | 3 1/8″ | 11 5/8″ |
| (68.0 cm) | (13.7 cm) | (62.7 cm) | (12.1 cm) | (8.0 cm) | (29.5 cm) |

WARNING
The regulator to be installed outside the insulating jacket. It can be positioned anywhere in the gas supply line between the grill and the shutoff valve.
Gas tubing should never be installed within the insulated jacket.
Insulated Jacket Dimensions




Viking Range, LLC
111 Front Street
Greenwood, Mississippi 38930 USA
(662) 455-1200
For product information, call 1-888-(845-4641) or visit our web site at vikingrange.com
072267-000B (080122)



















