


Wood Fired Pizza-Hearth Oven
User ManualXOPIZZA2FS
WOOD FIRED PIZZA/HEARTH OVEN
I worked really hard on this manual so please readit.
XOPIZZA2FS Wood Fired Pizza-Hearth Oven
When buying any XO appliance you can be confident you have chosen a high quality, innovative and stylish product from a company that cares about you!
If you require service or have questions, Help is only a phone call away call: 973-403-8900
Talk to one of our undercounter experts.
CONGRATULATIONS on purchasing your XO.
Before you proceed, take just a moment to register your XO at: www.xoappliance.com/register-your-product/
REGISTRATION HELPS YOU BY –
Ensuring warranty coverage should you need service Providing ownership verification for insurance purposes Let’s XO notify you in the event of product changes or recalls.
Please read and follow all safety instructions
It’s for your own good… Honest.
This is the model covered in this book
WOOD-FIRED PIZZA/HEARTH OVEN

Record your serial number here in case you need it later
Your safety matters
THIS APPLIANCE GENERATES EXTREME HIGH TEMPERATURES. Always use caution when lighting or using your oven. FAILURE TO FOLLOW THESE INSTRUCTIONS COULD RESULT IN SERIOUS PROPERTY DAMAGE, BODILY INJURY OR DEATH.
SAVE THESE INSTRUCTIONS FOR REFERENCE.
CAUTION: ONLY USE THIS OVEN OUTDOORS IN A WELL VENTILATED AREA ONLY.
Do not use in a garage, building, breezeway, or any other enclosed area.
Keep the oven on a secure. level surface at all times.
Do not use oven within four feet of any combustible material.
Combustible materials include. but are not limited to. wood or treated wood decks. patios and porches.
Use only cooking materials. containers. utensils, gloves and pot holders etc designed for high temperatures.
KEEP CHILDREN AND PETS OUT OF REACH WHILE THE OVEN IS IN USE.
Please read the entire manual before you install the oven. Contact your local building or fire officials about restrictions and installation inspection in your area. FOR YOUR SAFETY: Do not store or use gasoline or other flammable vapors or liquids in the vicinity of this or any other appliance. Always keep the area under and around this appliance free and clear of any and all combustible materials. Outer oven surfaces can reach temperatures above 120°F. Keep all combustible materials beyond a three (3) foot minimum radius of the oven. Maintain a minimum safe distance of 8 inches from non-combustable surfaces or any other equipment.
CAUTION: When being used. place the oven at a safe minimum distance from flammable materials or any other substance that can be damaged by heat.
OVENS MUST BE PLACED ON LEVEL, FIREPROOF SURFACES WITH ENOUGH LOAD-BEARING CAPACITY TO ACCOMODATE 300 lbs.
Never move the oven while hot. Counters. tables or carts must be fixed in place during use.
BURN DRY, WELL SEASONED HARDWOOD ONLY AS FUEL – Do not use your oven to burn other materials.
For use beneath any structure, consult your code official as to local regulations and enlist the assistance of a professional skilled in the installation of wood burning stoves. Do not use indoors! This oven is designed for outdoor use in a well-ventilated area and is not intended for and should never be used as a heater. If used indoors. toxic fumes will accumulate and cause serious bodily injury or death.
Position the oven on a flat, level. fireproof surface where it is protected from strong winds. Sparks may be ejected from the oven during operation – make certain to remove any materials which are flammable or may be damaged by hot sparks from the vicinity of the oven.
NEVER LEAVE THE OVEN UNATTENDED DURING USE
To extinguish the fire, place the oven door in front of the oven mouth to completely seal the opening and allow it to go out. NEVER THROW WATER ONTO THE FIRE
LEAVE THE DOOR CLOSED AT LEAST 30 MINUTES AFTER THE FIRE HAS BEEN EXTINUISHED.. USE CAUTION OPENING THE DOOR AFTERWARD – THE SUDDEN RE-INTRODUCTION OF AIR CAN CAUSE THE FIRE TO BURST BACK INTO FLAMES.
Avoid excessively large fires that can cause flames to come back out the door. If this occurs, close the door and wait for the flames to die down.
Do not throw firewood into the oven, as it can damage the interior of the oven. Gently place firewood into the oven using long, heavy-duty, fire-proof gloves, or long handled tongs designed for that purpose.
Burn only well-seasoned, dry hardwood. Never use pressure treated or laminated wood, never use chipped or wood pellet products, never use softwood.
NEVER BURN CHARCOAL, COAL, ARTIFICIAL LOGS, STARTER/LIGHTER FLUID, KEROSENE, OILS, GASOLINE OR ANY OTHER ACCELERANTS.
When cooking dishes that may contain grease or oils, use caution to avoid spillage which may be ignited by the fire.
Keep a safe distance of at least 24″ away from the front of the oven when lighting.
After every use remove the ash using a metal shovel and place in a metal bucket or container and leave outside for 2-3 days to ensure that all embers are completely extinguished and cool – then dispose of in accordance with local requirements.
Never place sealed tins or containers in the hot oven. As the contents heat, pressure will build up creating an explosion hazard.
IN THE EVENT OF A GREASE FIRE – CLOSE THE DOOR AND WAIT FOR IT TO COMPLETELY EXTINGUISH. WARNING – RE-OPENING THE DOOR TOO SOON MAY CAUSE IT TO RE-IGNITE.
WARNING![]()
This product can expose you to Chromium, a metal known by the State of California to cause cancer, birth defects or other reproductive harm. For more Intommtlon go to this website www.P6SWARNINGS.ca.gov
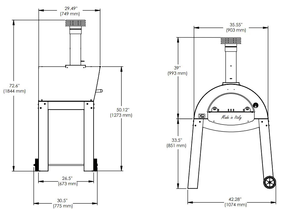
Dimensions

Handy tips
Some parts have a plastic film on them that protects them during manufacture. Remove all of this protective film before any assembly or use. This will prevent it from getting trapped between parts during assembly.
Failure to remove the plastic will result in it “Baking” on to the surface making it very difficult to remove.
If you are having trouble removing the plastic film, warm the surface with a hair dryer. Do not use a scraper or knife as this will scratch the surface.
When cleaning your oven, do not use scouring pads or metal scrapers – this can damage the finish of your oven.
To clean your oven, use warm soapy water with a mild, non-abrasive cleaner.
Some parts of the oven may experience discoloration from the high temperatures, such as the chimney. This is normal and does not affect the oven performance.
Your XO Oven can be used throughout the year. However, during cold months when the outside temperature is near or below freezing, build the fire slowly allowing the oven to warm up gradually. Rapid temperature changes can thermally shock parts of the oven resulting in premature stress cracking particularly of the ceramic hearth.
Chips and hairline cracks in the refractory will normally form over time and these will not adversely affect oven performance.
Always close the oven door when not in use – this will help prevent rain and other elements from entering the oven.
Using the oven
LOCATION:
Place the oven on a flat, even, level suface away from any combustible materials. Ideally a stone or concrete surface is preferable. Consult local building and fire regulations regarding rcommended safe distancing from buildings, partitions and coverings such as pergolas and roofs. Additional parts may be required. Check for the wind direction to ensure the wind is not blowing directly into the oven. This will cause ash to blow around inside the oven and reduce temperature.
LIGHTING THE OVEN:







Before lighting the oven, make certain the chimney damper operates freely and is wide open.
The handle will be in line with the chimney.
USE DRY, SEASONED HARDWOOD ONLY:
Place your wood in the center of the oven’s cooking floor stacking it in a loose criss cross to ensure good air flow.
Smaller pieces will ignite faster – add larger wood as the fire grows.Place an odor-free fire starter, such as Royal Oak Tumbleweed or Fatwood below the. stack. DO NOT USE ANY ACCELERANTS, such as charcoal lighter fluid. Place the
steel wood holder (brazier) to the right of the wood stack. This will be used later to move the fire to the left side of the oven. Light the firestarter with a match or lighter. Some people use a propane torch or electric firestarter but this is not necessary with a fire starter. Let the fire get started and burn for about 5 minutes with no door, then close the door and wait for another 15 minutes.
After 15 minutes with the door closed, the ambient temperature in the oven should have reached approximately 600+ degrees F (320+ degrees C) as seen on the external thermometer.To prepare for cooking:
Remove the door (CAUTION | Extremely Hot) and set aside safely.
Using the tool provided, heavy fire tongs and/or fire resistant gloves – slide the steel wood holder (brazier) with the burning wood and coals all the way to the left hand side of the oven.After moving the fire to the left side of the oven, brush the oven floor clean of ash and debris. Use a long handle brush with brass or copper bristles. Never use steel wire brushes, wet cloths, natural or plastic fiber brushes to clean the oven floor.
Watch as your beautiful rolling fire follows the internal dome of the oven.
Add additional wood as needed to maintain your desired temperature. Never toss or throw wood into the oven.
Before cooking, check the oven floor temperature using a non-contact infrared digital themometer.
Cooking + temperature
TYPES OF WOOD MATTER
Hardwood burns hotter and cleaner than softwoods like pine or fir. In addition, hardwoods like hickory, apple or cherry add different flavors to your favorite recipes.
TEMPERATURE | COOKING | |
| FAHRENHEIT | CELSIUS | Neopolitan pizza (thin crust), naan, garlic bread |
| 750 ° F + | 400°C + | |
| 540 – 600° F | 280 – 320° C | Grilling steak, shrimp, sardines |
| 450 – 540° F | 230 – 280° C | Roasting poutry, vegetables, whole fish |
| 400 – 450° F | 200 – 230° C | Baking hearth breads, foccacia |
| 320 – 400° F | 160 – 200° C | Baking sweet breads and desserts |
| 210 – 250° F | 100 – 120° C | Slow cooking pulled pork, ribs, stews |

Cooking times can also vary based on the size of and type dishes being prepared.
Generally, cooking in a wood-fired oven is done by cooking the the foods that require the highest temperature and have the shortest cooking times first such as pizza. As the oven cools, other foods would follow such as grilled meats, then roasted vegetables, fish and finally breads or desserts.
OPEN DOOR COOKING
Open door cooking is the most common method where an active flame is present. Fire needs oxygen to burn well. Use this method for dishes that require high heat, such as pizza.
CLOSED DOOR COOKING
Closed door cooking is used for cooking dishes longer at lower temperatures such as baking or roasting. Closing or partially closing the oven door helps to reduce the flame and regulate temperature.
For baking let the fire die down and close the door.
This will allow the embers to continue to glow and help maintain temperature. Avoid large flames whilebaking or roasting. Small flames with a good bed of embers is better.
It is also advisable to place a small container of water in the oven to maintain humidity. Containers must be stainless steel, cast iron, terracotta or a similar material that is suitable for the high temperatures of the oven. You can also close the damper to 45 degrees to retain heat.
CAUTION: Use a fire mitt, handle may be hot. Remember to open it again completely if building up the fire.
BASIC PIZZA DOUGH: This recipe will make (2) 12” pizza crusts.
INGREDIENTS
Warm Water: 1 and 1/3 cups (320ml) between 100-110°F, 38-43°C
IMPORTANT – water above 130°F will kill the yeast
Instant Yeast: 2 and 1/4 teaspoons (7g) (1 standard packet)
Olive Oil: 2 Tablespoons (30ml) (plus some to coat the bowl – see below)
Salt: 3/4 teaspoon (optional)
All-Purpose Flour: 3 and 1/2 cups (438g) spoon & leveled (plus more for hands and working surface)
Cornmeal: for dusting the peel
Whisk warm water, yeast, and a tablespoon of the flour together in a mixing bowl.
Cover and allow to rest for 5 minutes. Bubbles should form in the mixture.
This is known as proofing. If bubbles do not form, start over with new yeast.
Add the olive oil, salt, and the rest of the flour.
Mix gently for approximately 2 minutes and turn the dough out onto a lightly floured surface.
With lightly floured hands, knead the dough for 3-4 minutes.
After kneading, the dough should feel soft and elastic.
Lightly oil the mixing bowl with olive oil or nonstick spray and return the dough to the bowl turning it to coat all sides in the oil.
Cover the bowl with plastic wrap and a clean kitchen towel.
Allow the dough to rise at room temperature for 60-90 minutes until double in size.
To accelerate the rise – place the bowl on a heating pad or in a proofing oven until double in size. (Remember too much heat can kill your yeast)
Learn more about how to make your perfect Neopolitan Pizza by scanning the QR code and watching the video. https://xoappliance.com/how-to-make-the-perfect-pizza/
TO EXTINGUISH THE FIRE – CLOSE THE DOOR TIGHTLY AND ALLOW THE FIRE TO BURN ITSELF OUT. AFTER THE FIRE IS COMPLETELY OUT, REMOVE THE ASH WITH A METAL SHOVEL AND PLACE IT OUTSIDE IN A FIREPROOF CONTAINER. ALLOW THE ASH TO REMAIN THERE 2-3 DAYS BEFORE PROPERLY DISPOSING OF IT.
More cooking

The XOPIZZA2FS pizza/hearth oven was designed and built in Italy to cook the perfect, Italian wood-fired pizza in beautiful homes like yours. The ceramic refractory hearth stone floor of the oven can reach temperatures of 750°F in as little as 15 to 20 minutes, allowing you to create authentic pizza cooked to perfection. Moreover, the XOPIZZA2FS does this while using about 1/5 of the wood required by traditional ovens making your oven dramatically more efficient. It can also be easily moved using the optional cart. For Neopolitan style pizza lovers, the insulated refractory floor of the oven allows cooking at temperatures up to 850° F without burning the bottom of the crust.
The generous size cooking chamber and hearth are capable of cooking 2 personal size pizzas at the same time. The XOPIZZA2FS is engineered and built to perform. CONVECTION COOKING
The curved dome of the interior oven chamber is designed to have the fire banked to the left side allowing the flames to curl up and over the cooking zone creating a natural convection cooking environment. Like other convection cooking systems, this results in decreased cooking times.
RADIANT COOKING
During the pre-heating process heat is stored in the refractory materials of the oven. During cooking – this heat is radiated back to the food from every direction.
CONDUCTIVE COOKING
Heat stored in the ceramic refractory floor of the oven is directly transferred to the food or dishes placed upon it. Pizza and bread are cooked directly from below sitting on the hot hearth stone. Other dishes prepared in cast iron or terracotta cookware adsorb heat and transfer it directly just as they would on a stove top.
OPTIONAL COOKING TOOLS (XOPIZZATOOL3)
XO has an optional set of tools specifically designed to assist you in cooking with your new oven. The three tool set which includes a large peel for adding or removing pizza from the oven, a small diameter peel for periodically rotating food as it cooks (also handy for moving the fire) and a brush for clearing the hearth.
A little tlc
MAINTAINING YOUR XOPIZZA4 OVEN
CLEANING THE EXTERIOR
Clean the exterior of your oven with warm soapy water and a mild non-abrasive cleaner.
Never use scrubbing pads or scrapers which can scratch and mar the finish.
CLEANING THE INTERIOR
Periodically check the chimney for obstructions and remove any ash or soot build up that may have accumulated in the pipe.
Once a fire has been completely extinguished, use a metal shovel to carefully place the ashes in a metal bucket or other fireproof container. Leave this outdoors in a safe location for 2-3 days to ensure that all embers are completely extinguished. Once the ashes are completely out and cold, dispose of them properly in accordance with local regulations.
Never leave ash or burned wood in the oven where it will absorb moisture.
Your XOPIZZA2FS is a self-cleaning oven. Any cheese, toppings or spills from a pizza, roasts or other dishes will be carbonized by the high temperatures of the oven and are then easily removed.
Move some of the hot embers directly over the area that requires cleaning and allow the fire to burn for several minutes. Then sweep the fire back into place on the left side of the oven and sweep the hearth clean as before.
Fasteners included
You will need help to support the oven during assembly and team lift the oven.
| (16) M5 x 15 Phillips Head Screws | ![]() |
| (4) M4.2 x 15 Phillips Head Self Tapping Screws | ![]() |

TIP
USE THE PACKING MATERIAL YOUR XOPIZZA2FS ARRIVED IN TO PAD AND CUSHION THE PARTS DURING ASSEMBLY AND PREVENT SCRATCHES TO THE FINISH!You Will Need:
A Phillips Head Screwdriver and a pair of Pliers.
and Large, Strong Friends who will work for pizza to help pick the oven up…
Assembly




Using the (16) M5x15 screws provided securely fasten the (4) support legs to the corners of the oven.
IMPORTANT NOTE:
The two shorter legs with the hole in the bottom must be assembled on the right hand side (viewed from the front).
THIS ASSEMBLY REQUIRES MORE THAN ONE PERSON.
THE FINAL ASSEMBLED OVEN AND LEGS HAVE A COMBINED WEIGHT OF 286 LBS.THIS ASSEMBLY REQUIRES MORE THAN ONE PERSON.
To install the wheels,
Place one of the two wheels onto the axle, sliding it all the way to the end.
Raise the oven to allow the wheel/axle to be inserted into the hole at the bottom of the front leg.
Insert the axle completely, so that it passes through the hole at the bottom of the rear leg.
Slide the second wheel onto the axle, Secure the wheel in place by inserting the split cotter pin through the hole in the end of the axle and bend the pin over so that it is fixed in place
THE FINAL ASSEMBLED OVEN AND LEGS HAVE A COMBINED WEIGHT OF 286 LBS.
Setting the oven

THE OVEN IS VERY HEAVY! TEAM LIFT TO AVOID INJURY OR DAMAGE!
ATTACH THE CHIMNEY
After the oven legs are securely in place, and the wheels have been installed fit the chimney to the outlet in the top of the oven.
The chimney has interlocking tabs that will hold it securely in place while allowing it to be removed if you wish.
Alternately – you may choose to attach the chimney using the (4) 4,2 x 16 self-tapping screws supplied.
After attaching the chimney, slide the chimney cap into place and you are ready to start cooking.
FAQS
– Check to make certain the wood is not wet or green. If you hear a hissing noise while burning – that is an indicator that the wood is not dry.
– Do not burn softwood or birch with the bark on.
– Make certain that you have robust flames. Smoke is a product of incomplete combustion, builld up the fire with small dry wood and see if it clears.
– Pre-heat your oven longer. The chamber is hot but the floor of the oven has not had enough time to heat up to temperature.
– If you are using parchment paper, remove it as soon at the pizza can be moved without sticking.
– Position your pizza toward the right, rear corner of the oven.
– Virtually anything you might roast or bake in a conventional oven; sausage, poultry, fish, vegetables, bread, cookies, desserts and much more.
– Remember because of higher temperatures most cooking times will be reduced.
– The three tools you will need are a large pizza peel for adding and removing food, a smaller round peel for rotating dishes while in the oven and a brush used for removing ash and manipulating the fire. You may want additional accessories later based on your cooking preferences.
– Burn dry, seasoned hardwood only, such as; oak, maple, apple, elm, beech, cherry, ash, hickory, chestnet there are many varieties available. Remember to remove the bark from birch before burning and avoid softwoods such as pine, spruce or fir.
– Refer to page 13 for instructions on cleaning the interior and exterior of your oven.
– Once the oven has been properly pre-heated (650 – 750 F) it only takes about 2-3 minutes to cook a pizza.
– Roasting is done once the oven temperature drops to about 450 F.
– Baking is done last after the oven temperature has had an opportunity to drop. This permits bread to rise without burning.
– Remember to rotate dishes periodically as they bake or roast to ensure they are cooking and browning evenly.
THE WARRANTY

Your XOPIZZA4 oven is covered by a 2 Year Parts and Labor Warranty.
Should your oven require service either within warranty or beyond, call the number below or reach out to us on-line.
CALL 973-403-8900 -or- ONLINE AT WWW.XOAPPLIANCE.COM

Award-Winning Luxury Appliance Service
SERVICE THAT EXCEEDS EXPECTATIONS

Even the best appliances occasionally need the attention and care of a qualified service technician. At EMC Service, we see to it that service representatives and installers have
much more than just a cursory glance at a service manual. Our service and installation training, complete with manufacturer representatives working with live appliances, trains and certifies participants so that they may better fully diagnose a service issue.
Complementing their education is access to blow-up diagrams of every product as well as a fully stocked parts warehouse and repair workshop. Rush parts delivery is available
We are all committed to ensuring the best experience with our products at every level.
Service Area – Direct and 3rd Party Affiliate
Eastern Marketing Service provides professional, factory trained field service and support in the Northeast / Mid-Atlantic states.
All other markets are served by our 3rd party affiliates.
This capable team has the full support from Eastern Marketing Service Team. Service Training, Parts, Tech Help Line and quick warranty payments.

CALL 973-403-8900 -or-
VISIT US ONLINE AT
WWW.XOAPPLIANCE.COM


















