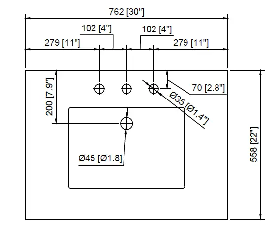
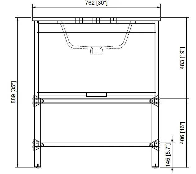
HOME DECORATORS COLLECTION TJ-0401V3022BR Single Basin Vanity 
Installation
- Carefully read the instructions before starting the installation.
- This vanity should be installed by an experienced plumber.
- Drain pipe and drain trap are not supplied. Connect to an existing drain pipe.



















