schweigen BRB700 Venting Kit for Silent Exhaust Fan

Welcome
Thank you for purchasing this Schweigen BRB700 system. To get the maximum output from this unit, please read through this operating guide before use and installation. The operating guide contains important information on the correct use and maintenance of the unit, as well as important safety notes. This will ensure your personal safety and the lasting value of your motor system. We trust that you will enjoy your new Schweigen BRB700 system. Please always retain your proof of purchase to aid in any warranty queries. This appliance and its packaging are produced by processes that minimise waste and respect the environment. Please help us to continue this effort to protect the environment by using the appliance efficiently and dispose of the packaging in a responsible manner.
Your Safety
WARNING
Please read this section thoroughly before attempting to operate the appliance. Inspect your product upon receipt. Any damage or defects MUST be reported within 48 hours, or no claim will be recognised.
DO NOT INSTALL THIS APPLIANCE IF YOU FIND IT DAMAGED.
If this product is installed damaged, the supplier, nor the retailer, will be responsible for the costs associated with the repair, replacement, removal or re-installation of the appliances.
- This appliance is not intended for use by person/s (including children) with reduced physical, sensory or mental capabilities, or lack of experience and/or knowledge. Unless the person has been given supervision or instruction concerning the use of the appliance by a person responsible for their safety. Children should be supervised to ensure that they do not play with the appliance, it is not a toy.
- Air exhaust must be installed in accordance with local laws.
Before Installation
We recommend this appliance to be installed or repaired by a qualified Schweigen Home Appliances technician. Please see our website www.schweigen.com.au for recommended installers. It is dangerous to modify any part of this appliance. Modification of any kind, will immediately void the warranty. The manufacturer declines all responsibility in case of failure to adopt proper safety measures. Ensure that the location in which this appliance is installed, has good and permanent ventilation. Please consult local laws and regulations and install in accordance. Use an electrical connector with earth that is correct for your location. Check that the voltage in your area corresponds to the appliance as indicated on the rating label.
Electrical Cord
Ensure the supply cord is not exposed to heat, chemicals or sharp objects. If the supply cord is damaged, it must be replaced by the manufacturer, service agent or a similarly qualified person in order to avoid a hazard.This manual is for the installation of the motor systems use for bathroom and general extraction.
Motor Features
- Universal mounting all position with IPX4 degree of weather protection
- Patented anti water intrusion system.
- Acoustic dome with super quiet, long vane, backward curved centrifugal fan.
- Airflow is dependant on installation and the ducting used.
- Using a single 150mm flexi duct run you should attain 600m3/hr depending on the ducting installation.
- The use of a smaller 125 ducting would result in a loss of airflow.
- Simple installation: – Mounts onto a 100mm PVC pipe for ultimate strength and allows for easy Dektite roof sealing.
- Industrial quality motor and fan made in Germany and rated at 40,000 hours.
- Motor is a high efficiency PSC type and rated at 62W.
- WARRANTY 5 YEARS return to manufacturer. Covers faulty manufacturing or components. It does not cover normal wear and tear.
This fan unit is designed to be installed using 100mm PVC pipe as the initial connection duct to the fan module, and is supplied with a 100mm PVC pipe to 150mm flexible duct bell-mouth adaptor.
This fan is suitable for connection to multiple duct runs with a minimum inlet area of 11,000 mm². Ducting runs should be more than 2 metres away from the unit and no more the 4-5 metres (check with supplier if longer duct length required). Flexible ducting must be extended sufficiently to present a smooth air passage with bends of at least the radii of twice the diameter of the duct.
WARNING: The BRB700 must not be ducted into a wall cavity or a ceiling space, where a build up of grease can occur and become a potential fire risk.
NOTE: Fan module and dual foil flexi-duct are acoustically matched. The use of semi-rigid or rigid ducting will result in increased noise levels and void the warranty. See installation instruction notes ‘Why flexi-duct’.
Recommended Installation Distance
For the BRB700 motor system, a minimum of 2-3 metres is recommended.
NOTE: Installation closer than these distances will result in higher noise levels. Maximum duct length 4-5 metres. Check with supplier if longer length is required. Do not reduce the duct size at any time and avoid sharp bends.
General
Minimum Mounting Height
This fan unit is intended for mounting at a minimum height of 2.1 metres (measured to the lower part of the fan impeller) above floor/ground level.
Avoidance of Back Flow
Care should be taken to avoid the back flow of gases into the room.
Safety of Children
This fan is not intended for use by young children or infirm persons without supervision.
Replacement of supply cord
If the supply cord is damaged, it must be replaced by a service agent or suitably qualified person in order to avoid a hazard.
Why Flexi-duct
Some internet sites strongly recommend the use of rigid ducting over fully flexible ducting. The use of a complete rigid or semi-rigid ducting system will cause an organ piping effect to occur; like a didgeridoo, where a noise is produced at one end of a hollow rigid pipe and the noise is amplified out the other. The motor system puts the noise outside the house.
Warning: Installation without the use of at least the minimum recommended length of acoustically matched flexi-ducting will void performance expectations. Any installation problems must be reported to Schweigen. Call outs relating to incorrect installation will result in a service fee direct to the customer. Schweigen takes no responsibility for problems caused by faulty installation. Faulty installation may void warranty. A preferred installer list can be obtained from the Schweigen website www.schweigen.com.au or call 1300 881 693.
Installation
Three options for mounting the unit

Roof Installation (Recommended duct length: 2-3 metre)
- Mount the 100mm rigid PVC pipe securely to the beams, trusses or other appropriate structures, refer figure 1. on the next page.
- The pipe should be mounted either vertically or perpendicular to the roof cladding with the roof penetration being sealed using a Dektite or other sealing device. Please note Schweigen do not provide any sealing kits.
- Ensure that the pipe protrudes at least 80mm past the top of the Dektite, checking that the mounting flange clears the roof cladding at upper edge as shown in figure 1.
- The maximum recommended protrusion is 500mm. Fit mounting flange, refer figure 1, to pipe using silicon sealant, then tape in position until sealant has set.
- Fit fan module to the mounting flange by placing in position, rotating clockwise to engage bayonet fingers and secure by screwing in locking screw (while holding fan module firmly in the fully clockwise position).

Eaves Installation
After ensuring sufficient clearance exists for the mounting flange and ducting (figure 1), cut a circular hole 165mm Ø, maintaining adequate clearances. The eave sheeting must be reinforced. Pre-drill mounting flange recess (figure 4).
If access to the eave space is restricted, before fixing the mounting flange to the eave, preassemble the mounting flange, PVC pipe, bell-mouth adaptor and flex-duct, then feed up into roof space. Remember to run power cord through the assembly and out the slotted PVC pipe wall (figure 4). Fit the fan module to mounting flange by placing in position, rotating clockwise to engage bayonet fingers then secure by screwing in locking screw (while holding fan module firmly in the fully clockwise position).

Wall Installation
The installation should be similar to eaves mounting if access to the inside is limited, but if unrestricted. Refer to EAVES INSTALLATION and figure 5.

BRB722 Duel Vent System or optional DVK700 Installation

IMPORTANT
- Do not reduce the ducting size. 150mm must
- No sharp bends in the ducting
- Do not kink the ducting
- Do not use semi-rigid or solid ducting
Back Draft Shutter System
Back Draft Shutter System Fitment to Bell-mouth Adaptor
This back draft shutter system cannot be installed in eave type installation.

Flexible Ducting
Flexible ducting must be fully extended and cut to the required length upon installation. Maximum fan performance will not be achieved unless the ducting is fully extended. Failure to fully extend the ducting results in smaller air passage and lower airflow. Incorrect installation may reduce airflow and increase noise levels. Call outs relating to incorrect installation will result in a service fee directed to the customer. Schweigen will take no responsibility for problems caused by faulty installation. Installation must be carried out by a qualified technician. A preferred installer list can be obtained from Schweigen website www.schweigen.com.au.

Shallow Roof Space
In shallow roof spaces, 90 degree elbow PVC joint can be used as a substitute for the bend.

Securing Flexible Duct
Flexible duct must be installed with supports at maximum intervals of 1.5 metres. Flexible ductwork can be supported by using gaffer or electrical tape, provided that it does not restrict the internal diameter of the ducting. Ducting installed looped over hanging beams should be installed in such a manner as to ensure the changes of direction are gradual. Support of the ducting with the use of hangers may be required, see option 2.
NOTE: Ducting should be kept taut at all times.

Maintenance
Roof Restoration or Cleaning
Before roof restoration or cleaning, please completely cover the outside motor system and avoid all chemical contact.

IMPORANT
Any damages caused by the use of chemical products are not covered by warranty.
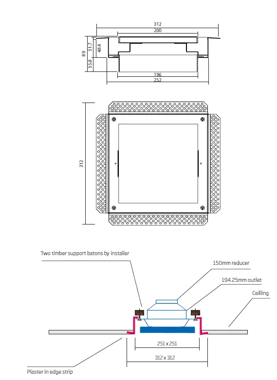
Measurements
Vent

BRB700 Motor

Warranty / Disclaimer
Calling the Technical Assistance Service Hotline
In the event that the failure is not due to the faults mentioned in Trouble Shooting, contact Customer Service. In Australia, Customer Service 1300 881 693 In New Zealand, Customer Service 0800 200 510
Lodging an online Service Request
In the event that failure is not due the reason/s in the trouble shooting section, you can lodge an online Service Request. To lodge a Service Request, visit our website www.schweigen.com.au/pages/support/service-warranty and click on the link to download the service request form. A service request will require the following information:
- The purchase date
- The rangehood model and motor type
- The rangehood serial number or batch number (this number is on a sticker inside the rangehood)
- A copy of the purchase receipt (without a receipt your service request cannot be processed)
Faulty Installation
It is not the responsibility of Schweigen Home Appliances to rectify any incorrect installations. A service call out fee will be charged for any Schweigen technician that attends a call, whereby it is established that the fault is due to an incorrect installation or non-manufacturing fault. Should the appliance be installed in such a way that the service agent is unable to gain access to the appliance, the person/s who own the premises where the appliance resides — will be responsible to provide access to the appliance at their expense.
WARRANTY
(See insert for more information) Motor has a 5-Year replacement product warranty. This is a change over warranty. The consumer is responsible for any charges associated with removal of the faulty unit and installation of the new unit. The customer is also responsible for any freight charges incurred in the change over process.
Disclaimer
Under our policy of continuous product development, product specifications may change without notice. Prospective purchasers should therefore check with the retailer to ensure this publication correctly describes the products being offered for sale. All information supplied is to be used for general reference purposes only and is on the understanding that Schweigen Home Appliances will not be liable for any loss, liability or damage of whatever kind arising as a result of any reliance upon such information. All pictures used in the guide are for illustrative purposes only.
















