HEATSTRIP THE 1800 Flush Mount Enclosure

Product Information
The Flush Mount Enclosure is a one-piece unit designed to neatly install the HEATSTRIP Elegance into a ceiling. It is suitable for all HEATSTRIP Elegance models and can be used with any building grade ceiling materials. The ideal mounting height of the enclosure is between 2.3m-2.5m, with a maximum ceiling height of 2.7m in a fully enclosed outdoor environment. The product is available in three models: THE 1800, THE 2400, and THE 3600, with corresponding part numbers THEAC-040, THEAC-041, and THEAC-042, respectively. The weight of the enclosure varies depending on the model, with THEAC-040 weighing 5.2kg, THEAC-041 weighing 6.2kg, and THEAC-042 weighing 9.0kg. The hole cutout dimensions and overall dimensions also vary by model.
Product Usage Instructions
- Ensure all minimum clearance requirements are met and the materials used are compliant with local building codes.
- Prepare the site to be fixed with the hole cut to the correct size and the mounting points securely in place.
- Attach the brackets to the rear of the heater according to the dimensions listed in the table.
- Screw the Flush Mount Enclosure into the battens using screws (not included).
- If there is no roof access, connect the heater to the power source ensuring that the power is OFF.
- Lift the heater into the Flush Mount Enclosure, ensuring that the brackets are to the side of the mounting cut-outs.
- Push the heater to the left, ensuring that the brackets engage in the mounting hole cut-outs. It will then drop in. Gently shake the heater to ensure that it is securely mounted.
When using the product, it is important to follow safety guidelines. The heater gets very hot, so do not touch any part of it while it is turned on or until 30 minutes after it is turned off. The product should not be used by persons (including children) with reduced physical, sensory, or intellectual capabilities, or lack of experience and knowledge, unless they have been given supervision or instruction concerning use of the product by a person responsible for their safety. Children should be supervised to ensure they do not play with the product. Do not allow any cables, furnishings, flammable materials, or other items to come in contact with any surface of the Flush Mount Enclosure. If installed in wet areas, the heater switches or controls must be located so that they cannot be touched by persons in the bath or shower. The Flush Mount Enclosure needs to be installed as per the installation instructions paying special attention to the minimum clearances. The heater needs to be mounted on a rigid bracket or fixing.
Flush Mount Enclosure
The Flush Mount Enclosure is an ideal way to neatly install the HEATSTRIP into a ceiling. They are available for all HEATSTRIP Elegance models and are supplied as a one-piece unit suitable for mounting individual heaters. Flush mounting can be used with any building grade ceiling materials. An ideal mounting height is 2.3m-2.5m, with a maximum ceiling height of 2.7m in a fully enclosed outdoor environment. Maximum mounting heights should be strictly followed, otherwise the performance of the units may be reduced.
| SUITABLE FOR MODEL | PART No | HOLE CUTOUT DIMENSIONS (mm) | OVERALL DIMENSIONS (mm) | WEIGHT(kg) |
| THE 1800 | THEAC-040 | 1030 x 240 | 1080 x 290 x 125 | 5.2 |
| THE 2400 | THEAC-041 | 1260 x 240 | 1310 x 290 x 125 | 6.2 |
| THE 3600 | THEAC-042 | 1860 x 240 | 1910 x 290 x 125 | 9.0 |

Flush Mount Enclosure Dimensions

| PART No | MODEL | “A” (mm) | “B” (mm) | “C” (mm) |
| THEAC-040 | THE1800 | 1080 | 1024 | 1020 |
| THEAC-041 | THE2400 | 1310 | 1254 | 1250 |
| THEAC-042 | THE3600 | 1910 | 1854 | 1850 |
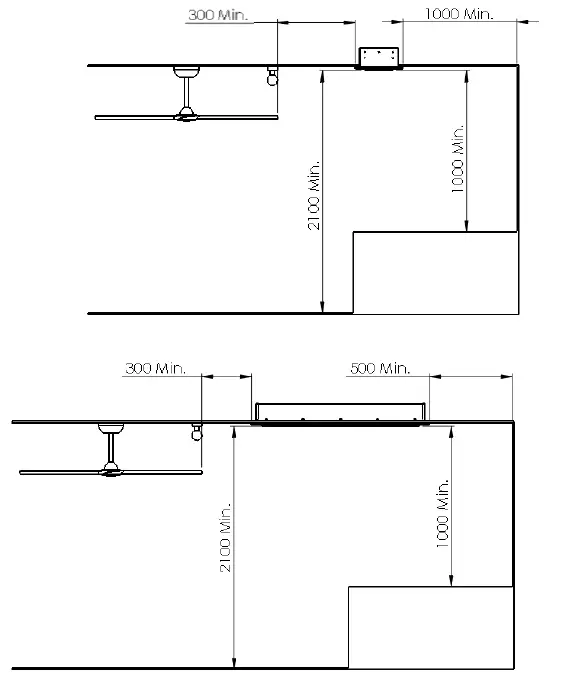
Installation Location
The diagrams below and on the following page give the minimum clearances required for the installation of the Flush Mount Enclosure. It is imperative that all cables, insulation and other materials are kept clear of the back and the sides of the Flush Mount Enclosure. The enclosure has a number of openings for ventilation and air movement into the ceiling space; these openings must not be covered. The enclosure shall, under no circumstances, be covered with insulating material or similar material.
It is recommended to use only the provided holes in the ends of the enclosure for mounting. Ensure all clearances detailed in the HEATSTRIP ELEGANCE PRODUCT MANUAL are strictly followed. The diagrams below shows the general location constraints.
Installation Clearance Dimensions
The diagrams below give the minimum clearances installation of the Flush Mount Enclosure. It is recommended to use only the provided holes in the ends of the enclosure for mounting.
- The minimum distance between the back of the enclosure and any building material is 50mm.
- The minimum distance between the sides of the enclosure and any support structure is 50mm.
- The minimum distance between adjacent enclosures is 200mm.
VIEW FROM SIDE

VIEW FROM BELOW

Installation Instructions
Ensure all minimum clearance requirements are met and the materials used are compliant to your local building codes. Before installing the FME, ensure the site to be fixed is fully prepared with the hole cut the correct size and the mounting points securely in place.
| MODEL | “D”DISTANCE FROM END TO BRACKET (mm) |
| THE1800 | 175 |
| THE2400 | 225 |
| THE3600 | 300 |
- STEP 1: Attach the brackets to the rear of the heater. The di-mensions for the spacing of the brackets are listed in the table.

- STEP 2: Screw the FME into the battens. NOTE: screws are not included.

- STEP 3: If there is no roof ac-cess, connect the heater to the power source, ensure the power is OFF.

- STEP 4: Lift the heater into the FME ensuring the brackets are to the side of the mounting cut-outs.

- STEP 5: Push the heater to the left ensuring the brackets engage in the mounting hole cut-outs. It will then drop in. Gently shake the heater to ensure that it is securely mounted.

Safety
- In operation, this heater is VERY HOT— do not touch any part of the heater while it is turned on. Do not touch any part until 30 minutes after it is turned off.
- This appliance is not intended for use by persons (including children) with reduced physical, sensory or intellectual capabilities, or lack of experience and knowledge, unless they have been given supervision or instruction concerning use of the appliance by a person responsible for their safety. Children should be supervised to ensure they do not play with the appliance.
- Do not allow any cables, furnishings, flammable materials or other items come in contact with any surface of the Flush Mount Enclosure.
- If installed in wet areas, the heater switches or controls must be located so that they cannot be touched by persons in the bath or shower.
- The Flush Mount Enclosure needs to be installed as per the installation instructions paying special attention to the minimum clearances. The heater needs to be mounted on a rigid bracket or fixing.
- See the heater Operations, Installation and Maintenance Manual for the heater-specific guidelines.
Maintenance
- The Flush Mount Enclosure is made from durable materials, however regular care and maintenance of your product will help prolong its life.
- It is recommended that you wipe down your Flush Mount Enclosure. With a soft cloth and mild detergent gently wipe the surfaces of the FME to remove the built up contaminants from the environment. Then with a clean cloth ensure all detergent is removed.
- All chemicals in the atmosphere including cigarette smoke, pollution etc. will tarnish the surface of the Flush Mount Enclosure. In this case, additional cleaning and maintenance may be required. The cleaning process at least every three months will reduce the amount of build up and keep it looking as best it can. If the Flush Mount
- Enclosure is in a corrosive environment eg. salt spray, we recommend that you clean the FME every week.
- Before cleaning or inspection activity, the heater must be switched off and cooled down completely.
- Do not use any abrasive materials or products to clean the Flush Mount Enclosure, this includes solvents, citrus-based cleaners or other harsh cleaning products.
- When handling the Flush Mount Enclosure, ensure that your hands are clean or that you use clean gloves as grease or dirt can mark the surface of the heater.
- Do not use high pressure water to clean Flush Mount Enclosure. It is not recommended to hose down the FME and heater as water may penetrate the roof cavity.
Warranty Terms & Conditions
The below Warranty Terms and Conditions apply for New Zealand and Australia only. For international warranty please refer to international warranty terms and conditions.
Thermofilm warrants to the original owner that the FLUSH MOUNT ENCLOSURE product will be free from defects in materials and workmanship for a period of 12 months from the date of purchase in accordance with the following warranty terms and conditions.
Provision of this warranty is subject to:
- The HEATSTRIP FME product must be installed in accordance with the Installation Instructions and relevant electrical standards and codes.
- The HEATSTRIP FME product must be maintained and cleaned according to instructions detailed in the Installation Manual.
- There is no warranty expressed or implied with regard to capacity requirements. The selection of the unit or units depends entirely upon the system design and capacities as determined by the purchaser.
- The customer has not repaired, opened or altered the product in any unauthorised manner.
- This warranty excludes damage to the product or components arising from circumstances outside the control of Thermofilm, including, but not limited to, where the product is not used for intended purpose; where the product has been rectified in any way; incorrect installation; incorrect power supply; damaged caused during delivery; misapplication, misuse, abuse, vandalism, lack of maintenance or accident.
- Thermofilm’s obligations under this warranty are limited to repair or replacement at Thermofilm’s factory of any components of the product which Thermofilm identifies to its satisfaction to be defective.
- Transportation charges involved in return of the product to the Thermofilm factory (or any other location authorised in writing by Thermofilm) is the sole responsibility of the customer.
- All products are inspected and tested before despatch and are at the risk of the purchaser after the shipment from the Thermofilm factory, if not delivered by Thermofilm to destination.
- Discolouration of the surface may occur after a period of time, this does not constitute a warrantable event.
- No products or components will be supplied in advance of an examination of the faulty product or components by Thermofilm or an authorized representative of Thermofilm.
- Thermofilm does not participate in any site-related costs or labour expenses incidental to replacement of parts, repairing, removing, installing, servicing, transportation or handling of parts to complete products, and assumes no liability on parts repaired or replaced without written authorisation. Thermofilm shall not be liable for any default or delay in performance of its warranty obligations caused by any circumstances beyond its control, including, but not limited judicial or government restrictions, strikes, fires, floods, abnormal weather conditions, delayed supply of components.
Should products be determined as damaged on arrival, immediately notify the transport company of the condition and have them noted on the freight documents. If damage is discovered after unpacking, demand immediate inspection by the transportation company and insist that a record of the damage is made on the freight documentation.
The customer warrants using the product in accordance with:
- Any instructions provided to it by Thermofilm from time to time.
- All government and local regulations, including but not limited to all relevant electrical, environmental laws and regulations governing the installation, storage, use, handling and maintenance of the goods.
- All necessary and appropriate precautions and safety measures relating to the installation, storage, use, handling and maintenance of goods.
Our goods come with guarantees that cannot be excluded under the Australian Consumer Law. You are entitled to a replacement or refund for a major failure and for compensation for any other reasonably foreseeable loss or damage. You are also entitled to have the goods repaired or replaced if the goods fail to be of acceptable quality and the failure does not amount to a major failure. All warranty requests for repairs or replacements must be accompanied by a complete “Warranty Claim Form” available from Ther-film, together with proof of purchase (and where possible, photos of the installation) and the heater returned to the place of purchase. In the event of a warranty claim, the goods need to be returned to the distributor/retailer for repair/replacement. Contact
Thermofilm Australia Pty Ltd
8 Lakeview Drive Scoresby, Victoria 3179
Ph: +61 3 9562 3455
E: [email protected]
E: [email protected]
























