
TCR1420S
Instruction manual

REVERSING THE DOOR OPENING
The door of the appliance can be opened on the right or left side. In order to reverse the door opening, please observe the
instructions below. It would be best to do this with two people.
Attention: switch off the thermostat and remove the plug from the socket. Remove all items from the refrigerator before
reversing the door opening.
- Remove the guard cover from the upper hinge and unscrew the screws from the hinge.
- Remove the left cover plate from the top.
- Move the cover cap from the left to the right side of the door. Carefully lift the door from the lower hinge and place it on a blanket or something similar to prevent scratches.
- Remove the middle hinge from the door. Remove the door and place it on a blanket or something similar to prevent scratches.
- Move the cover caps of the hinge to the other side.
- Unscrew the screws from the lower hinge. Remove both adjustable feet.
* Caution: remove this screw when present. - Screw the pen out of the lower hinge and turn the hinge around by 180 degrees.
7b. Then screw the pen back in the lower hinge. - Place the bracket at the lower hinge again. Attach both adjustable feet.
- Move the cover caps of the hinge to the other side.
- Place the hinge on the left side. Turn the door around and attach the door to the hinge.
- Place the door against the appliance and make sure the bottom side is properly placed on the hinge. Make sure the door is straight in relation to the exterior of the larder.
Place the upper hinge and screw tight. - Place the guard cover and cover plate.
- Carefully remove the door rubbers and rotate them 180° before you attach them again.
Allow the appliance to rest for approx. 3 hours before inserting the plug in the socket.
SAFETY INSTRUCTIONS
- First, carefully read the instruction manual in full prior to using the appliance and store the manual in a safe place for future reference.
- Only use this appliance for the purposes described in the instruction manual. The appliance is suitable for storing food.
- The appliance must be connected to an alternating current supply, via an earthed wall socket, with a mains voltage that matches the information given on the information plate of the appliance.
- Do not use single/multiple adapters or extension cords.
- Do not use the appliance if the plug, cord, or appliance is damaged, or if the appliance is no longer functioning properly, or has been dropped or damaged in any other way. If this is the case, consult the retailer or our maintenance service. Never replace the plug or cord yourself.
- The appliance must be moved and installed by two or more persons.
- Be careful when moving the appliance to prevent the floor from getting damaged.
- During installation, do make sure the power cable is not damaged.
- Check that the appliance is not placed too close to a heat source.
- In order to ensure proper ventilation, a free space of 10 cm should be maintained around the appliance.
- Never cover the ventilation holes.
- Make sure the cooling pipes do not get damaged.
- Install the appliance on a sturdy, flat and stable surface.
- Install the appliance in a dry and well-ventilated room.
The appliance is intended for use in a room where the ambient temperature falls within the applicable class, depending on the climate class found on the information plateClimate class Ambient temperature SN From 10°C to 32°C N From 16°C to 32°C ST From 16°C to 38°C T From 16°C to 43°C - Do not store explosive or highly flammable substances in the appliance. The vapors could cause a fire hazard or an explosion.
- Do not store glass bottles or jars with liquids in the freezer, as they could break when frozen.
- Do not use mechanical, electrical, or chemical agents to speed up the defrosting process.
- Make sure that children are unable to play with the appliance, such as hide in it. This is dangerous.
- Keep the appliance out of reach of children. Children do not see the dangers associated with handling electrical appliances.
Therefore, never allow children to operate electrical appliances without supervision. Keep the appliance and cord out of reach of children younger than 8 years of age. - The appliance can be used by children of 8 years and older and persons with a limited physical, sensory or mental capacity or lack of experience or knowledge, provided they use the appliance under supervision or have been instructed about its safe use and understand the hazards involved.
Note: Children between 3 and 8 years of age are permitted to place items in cooling appliances and remove them. - The appliance must not be cleaned or maintained by children unless this is done under supervision.
- Repairs to electrical appliances should only be performed by skilled persons. It is dangerous to perform a repair whereby the base unit of the appliance must be opened.
- Only use and store the appliance indoors.
- Never bend the power cord sharply or allow it to run across hot parts.
- Always remove the plug from the socket when the appliance must be cleaned or repaired.
- Never use the appliance with components that are not recommended or supplied by the manufacturer.
- Do not pull the cord and/or appliance to remove the plug from the wall socket. Never touch the plug with wet or moist hands.
- Be careful with ice cubes and ice pops. If these are consumed directly out of the freezer, there is a risk of frostbite.
- Never submerge the appliance, cord, or plug in water.
- The appliance cannot be used with a timer or separate remote control.
- This appliance is only suitable for household use. If the appliance is not used as intended, no compensation can be claimed in case of defects or accidents and the warranty will be invalidated.
REFRIGERANT
The refrigerant isobutene (R600a) is located in the refrigerant circuit of the appliance. This is natural and highly environmentally friendly gas, but it is still combustible. During transport and installation of the appliance, make sure that no parts of the refrigerant circuit are damaged. The refrigerant (R600a) is combustible.
WARNING: refrigerators contain refrigerant and insulation gases.
Refrigerants and gases must be disposed of professionally, as they can cause eye injuries or could ignite. Make sure the tubes of the refrigerant circuit do not get damaged before the appliance is disposed of as waste.
WARNING: Risk of fire/combustible material
When the refrigerant circuit gets damaged:
– Avoid open fire and ignition sources.
– Thoroughly ventilate the room in which the appliance is located.
It is hazardous to change the specifications or adapt this product in any way. Damages to the main cord could lead to short circuits, fire, and/or electric shocks.
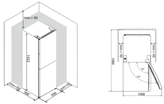
REQUIRED SPACE FOR PLACEMENT
Ensure sufficient room to be able to open the door.

Caution: the appliance is not suitable for use as a built-in appliance.
PRODUCT DESCRIPTION
- Thermostat with interior lighting
- Door compartment
- Bottle compartment
- Adjustable feet
- Freezer drawer
- Small freezer drawer
- Vegetable drawer
- Glass shelf

USING THE APPLIANCE FOR THE FIRST TIME
Before using the appliance for the first time, you should proceed as follows: carefully unpack the appliance and remove all packaging material and any promotional stickers. Keep the packaging (plastic bags, polystyrene, and cardboard) out of the reach of children. After unpacking the appliance, carefully check it for external damage that may have occurred during transport. Place the appliance on a sturdy, flat surface and make sure there is enough space all around for sufficient ventilation.
A minimum space of 5 cm is required between the appliance and the surrounding walls. In this way, the appliance is able to release heat properly, cool well, and function in an energy-efficient way.
- You can use the adjustable feet to the left and right to level the appliance.
- Turn the adjustable feet clockwise to lower the appliance.
- Turn the adjustable feet counter-clockwise to raise the appliance.

Do not place the appliance near heat sources such as central heating or a stove. Do take note of the climate class of the appliance. When placed in a room that is too cold, the refrigerator will not function properly.
After placing the appliance, leave it for at least 3 hours before inserting the plug into the socket.
First, clean the interior of the appliance. Use warm soapy water with, for instance, washing-up liquid, all-purpose cleaner, or soda. Wipe the inside of the appliance after cleaning with clean water and properly wipe everything dry. Leave the appliance to dry for 1 to 2 hours.
USE
The control unit of the appliance is located on the inside. Check that the thermostat is off [0]. Check that the voltage corresponds with the voltage stated on the information plate and insert the plugin into the socket.
Adjusting the temperature
By means of the thermostat, you are able to switch on the appliance and change the temperature in the refrigerator.
The possible positions of the thermostat:
| 0 | no cooling, now power |
| 1 | Maximum temperature, the least cold |
| 6-Feb | optimum temperature |
| 7 | minimum temperature, the coldest |

Set the temperature with the thermostat knob and select a position between 1 and 7. We recommend setting the appliance to position 3-4. The appliance will now cool continuously until the set temperature has been reached. Allow the appliance to reach the set temperature, before filling it with food. Usually, this will take 2 to 3 hours. After that, you can set the thermostat to the required position and fill the appliance with food.
To switch off the appliance, set the thermostat to the [0] position and remove the plug from the socket.
Recommended temperature setting
The ambient temperature affects the operation of the compressor. To prevent the compressor from running continuously (in the summer) or not switching on at all (in the winter), we recommend adjusting the thermostat to the ambient temperature.
| Ambient temperature | Summer | Normal | Winter |
![]() | ![]() | ![]() | |
| The setting of the thermostat | Position 2-4 | Position 4-5 | Position 5-6 |
Attention:
The ambient temperature, the frequency of opening the door, and the position of the appliance have an effect on the temperature in the appliance. Take this into account when setting the thermostat.
- Do not place hot food in the appliance.
- You should never place hazardous, highly flammable, or explosive substances such as alcohol, acetone, or petrol in the appliance because there will be a hazard of explosion.
- Carefully package meat and fish to prevent unpleasant smells.
- Do not place food against the rear wall of the appliance.
- Leave sufficient space between the different foods, to allow the air to circulate properly.
- Do not leave the door open for longer than necessary.
- The inner lighting starts to flash when the door of the cooler section has remained open for too long.
TIPS
- A high ambient temperature will have a negative effect on energy consumption. Direct sunlight and other heat sources near the appliance also have a negative effect.
- Keep ventilation holes free. Covered and dirty holes cause higher energy consumption. Ensure sufficient space around the larder, so that proper ventilation and airflow around the appliance are possible.
- Do not open the door of the appliance more often than necessary and leave the door open as briefly as possible.
- The distance between the shelves and the rear wall ensures free air circulation. Do not place food against the rear wall.
- Set the thermostat to a lower setting if circumstances allow.
- Allow cooked food that you want to store in the appliance to cool down to room temperature before placing it in the appliance.
- Frost or ice will increase power consumption. Therefore, these should be removed regularly once they are 3 to 5 mm thick.
- A door rubber that does not close properly could increase the power consumption.
- If the instructions are not observed, this could lead to higher power consumption.
Observe the following instructions to prevent food from getting contaminated
– When the door remains open for a longer period of time, the temperature in the compartments of the appliance could rise significantly.
– Clean surfaces that could come in contact with food and regularly clean accessible discharge systems.
– Store raw meat and raw fish in suitable packaging in the refrigerator, so they cannot come in contact with other food or leak liquid on other food.
– Freezer compartments with two stars are suitable for storing already frozen food, storing or making ice, and making ice cubes.
– Compartments with one, two, or three stars are not suitable for freezing fresh food.
| Sequence | Compartments TYPE | Recommended storage temp. [°C] | Suitable food |
| 1 | Refrigerator | +2 — +8 | Eggs, prepared food, packaged food, fruit and vegetables, dairy, cakes, drinks, and other food that is not suitable for freezing. |
| 2 | (***)* Freeze | 5.-18 | Seafood (sea fish, shrimps, shellfish), freshwater products, and meat products (recommended storage time maximum 3 months, the longer the storage time, the more the taste and nutritional value deteriorate), suitable for frozen fresh food. |
| 3 | *** Freezer | 5.-18 | Seafood (sea fish, shrimps, shellfish), freshwater products, and meat products (recommended storage time maximum 3 months, the longer the storage time, the more the taste and nutritional value deteriorate), suitable for frozen fresh food. |
| 4 | ** Freezer | 5.-12 | Seafood (sea fish, shrimps, shellfish), freshwater products, and meat products (recommended storage time maximum 3 months, the longer the storage time, the more the taste and nutritional value deteriorate), suitable for frozen fresh food. |
| 5 | * Freezer | 5.-6 | Seafood (sea fish, shrimps, shellfish), freshwater products, and meat products (recommended storage time maximum 3 months, the longer the storage time, the more the taste and nutritional value deteriorate), suitable for frozen fresh food. |
| 6 | 0 stars | -6 — 0 | Fresh pork, beef, fish, chicken, packaged processed food, etc. (consumption on the same day recommended, preferably within 3 days). Partially packaged processed food (not suitable for freezing). |
| 7 | Cooling | -2 — +3 | Fresh/frozen pork, beef, chicken, freshwater products, etc. (stored for 7 days below 0°C, above 0°C consumption on the same day is recommended, preferably no more than 2 days). Seafood (less than 0°C during 15 days, it is not recommended to store this above 0°C). |
| 8 | Fresh food | 0 — +4 | Fresh pork, beef, fish, chicken, prepared processed food, etc. (consumption on the same day recommended, preferably within 3 days). |
| 9 | Wine | +5 — +20 | Red wine, white wine, sparkling wine, etc. |
Caution: store different types of food according to the instructions on the compartments or the recommended storage temperature of the products you bought.
– If the refrigerator remains empty for a longer period of time, switch it off, defrost, clean and dry it and leave the door open to prevent the formation of mold in the appliance.
Cleaning the water dispenser (specifically for products with a water dispenser):
– Clean the water tanks if they have not been used for 48 hours; fully flush the water system if no water has been tapped for 5 days.
WARNING – Package food in bags and liquids in bottles or another leak-proof packaging. As a result, the refrigerator requires less cleaning.
CLEANING AND MAINTENANCE
Regularly clean the refrigerator to guarantee a proper function. Before cleaning the appliance, switch it off by switching off the thermostat [0] and removing the plug from the wall socket.
DEFROSTING
Defrost the appliance when the layer of ice has reached a thickness of 3 to 5 mm.
Switch off the thermostat knob [0] and remove the plug from the socket. Remove all food from the refrigerator.
Store any frozen products in a cool location, packaged in newspapers and blankets.
Place a receptacle under the appliance and wait for the ice to defrost. Defrosting can be accelerated by placing a tray with hot water in the appliance.
Remove ice using a plastic ice scraper.
Warning: Never remove ice with sharp objects, defrosting sprays, a hairdryer, a heater, or something similar. This could lead to unsafe situations and cause irreparable damage to the appliance.
Clean the interior of the appliance. Use warm soapy water with a neutral cleaning agent to prevent nasty smells. Wipe the inside of the refrigerator after cleaning with clean water and properly wipe everything dry. Leave the appliance to dry for 1 to 2 hours. The shelves, vegetable drawer, and door compartments can be removed from the refrigerator easily and washed by hand. The components may not be cleaned in the dishwasher.
Defrost water is automatically routed to a drain outlet and into a container from which it evaporates. The drain hole should be cleaned periodically with the defrost drain plug to prevent the water from collecting on the bottom of the refrigerator instead of flowing out.
For areas in the refrigerator that are difficult to clean, such as small openings or corners, it is recommended to wipe them clean regularly with a soft cloth or brush. If necessary, a tool can be used, such as thin sticks (cocktail sticks, for example), to make sure no contamination can occur in these areas.
Clean the outside of the refrigerator and the door rubbers with a soft damp cloth.
Clean the rear of the refrigerator at least once per year with a vacuum cleaner so that the condenser and ventilation holes remain clean and the refrigerator is able to function as optimally as possible.
Do not use hard brushes, steel wool, abrasives (such as toothpaste), organic solvents (such as alcohol, acetone, oil, etc.), boiling water, acid or alkaline products to clean the refrigerator, as this could damage the surface and interior of the refrigerator. Boiling water and benzene could deform or damage plastic components.
REPLACING THE LED LAMP
This appliance has been provided with a LED lamp. This lamp lasts for a longer period of time. When the LED lamp in the appliance is broken, you are not able to replace it yourself. Contact the Tomado service department.
RESOLVING FAILURES YOURSELF
| Breakdown | Cause | Solution |
| The appliance no longer works | The thermostat knob is on [01. | Set the thermostat to a position between 1 and 7 to switch on the appliance. |
| The plug is not in the socket. | Insert the plug into the socket. | |
| Temperature in the appliance is too high or too low | Wrong setting of the thermostat. | Turn the thermostat to a different position. |
| The door of the appliance is opened too frequently or remains open for too long. | Open the door less often and/or reduce the time that the door remains open. | |
| A large amount of warm food has been placed in the appliance in the last 24 hours. | Temporarily set the thermostat to a lower position. | |
| The ambient temperature is higher or lower than the temperature indicated in the table with technical data. | The appliance is intended for operation at an ambient temperature indicated in the table with technical data supplied with the appliance. | |
| The appliance is located in direct sunlight or near a heat source. | Change the location of the appliance according to the instructions in the instruction manual. | |
| There is water in the lower section of the appliance. | The opening of the defrost water drain is clogged. | Clean the opening of the defrost water drain by means of the skewer. |
| The inner lighting flashes 3 times. | The door has been open for too long or does not close properly. | Check that there is nothing between the door that prevents it from closing and close the door. |
| The inner lighting flashes 1 or 2 times. | The temperature button or sensor is defective. | Contact the customer service. |
| Unusual or loud noises | The appliance is not level and stable. | Level the appliance with adjustable feet. |
| The appliance is standing against something. | Place the appliance in such a way that it is not standing against anything. | |
| The side of the appliance Is very warm | The condenser is located at the side of the appliance. | It is normal for the exterior to become warm. |
During normal use of the cooling appliance, different types of noises can occur that do not have any effect on the correct operation of the appliance.
Noises that can be heard during normal use of the appliance are caused by the operation of the thermostat, compressor (activation), cooling system (shrinkage and expansion of the material under the influence of temperature differences and flow of cooling liquid).
If the door opening must be reversed, please observe the instructions on pages 4-9.
RECYCLING
This symbol means that this product should not be disposed of with regular household waste (2012/19/EU).
Observe the rules that apply in your country for the separate collection of electric and electronic products.
Correct disposal of the product prevents negative consequences for the environment and for public health.
The packaging material of this product can be recycled 100% and returned packaging material separately.
PRODUCT FICHE
| TOMADO | |
| Type number | TCR1420.5 |
| Type refrigerator/freezer | refrigerator/freezer |
| Category | 7 |
| Energy efficiency class | E |
| Energy consumption [Aec] in kWh per year | 194 kWh |
| Nett capacity – total | 173 liters |
| Nett capacity – cooler section | 121 liters |
| Nett capacity – freezer section *** | 52 liters |
| Max. storage time in case of power failure (number of hours) | 7 |
| Freezing capacity [kg/24 hour] | 2.6 |
| Climate class | N/ST |
| Noise emission dB(A) | 40 dB |
| Appliance type | free-standing |
| Construction | |
| Colour | silver |
| Number of doors | 2 |
| Reversible door opening | yes |
| Number of shelves | 3 |
| Total number of door compartments/bottle racks | 3 |
| Number of vegetable drawers | 1 |
| Number of freezer drawers | 3 |
| Free of CFC/HFC | free |
| Type of coolant | R600a |
| Number of compressors | 1 |
| Technical data | |
| Dimension (wxdxh) in cm | 50 x 56 x 142.2 cm |
| Nett weight in kg | 39.0 kg |
| Gross weight in kg | 42..0 kg |
| Electrical connected load [W] | 100 w |
| Mains voltage [V] / mains frequency [Hz] | 220-240V– 50Hz |
| Length of connection cord [m] | 1.6 |
| Plug type | VDE plug 90° |
Note: On the information plate you will also find the technical data of the appliance.
ORDERING ACCESSORIES
Go to www.tomado.com/support to purchase accessories or spare parts.
WARRANTY CONDITIONS
A 24-month warranty is provided for this product. Your warranty is valid if the product has been used in accordance with the user instructions and for the purpose for which it was made. Also, the original proof of purchase must be submitted, stating the date of purchase, the name of the retailer, and the item number of the product. For extensive warranty information, you are referred to our website: www.tomado.com/support
Tomado Electric Appliances
Postbus 159
6920 AD Duiven
The Netherlands
[email protected]
www.tomado.com























