CautionKucht KDF302 Dual Fuel Range

Thank you for purchasing!
Thank you for purchasing your KDF series professional Range.
We appreciate your business and we recommend that you read this entire user’s manual before operating your new appliance for the first time.
This manual contains instructions on how to properly install and set up your new range, as well as insights into many of the unique features that our product offers. Please keep this manual for future reference, as it contains the answers to questions that you might have as you begin to cook.
WELCOME TO THE KUCHT FAMLY
State of California Proposition 65 Warning : The Burning of gas cooking State of California Proposition 65 Warning: The burning of gas cooking fuel generates some by-products that are on the list of substances which are known by the State of California to cause cancer or reproductive harm. California law requires businesses to warn customers of potential exposure to such substances. To minimize exposure to these substances, always operate this unit according to the use and care manual, ensuring you provide good ventilation when cooking with gas.
WARNING
If the information in this manual is not followed exactly, a fire or an explosion may result causing property damage, personal injury or even death.
Do not store or use gasoline, liquid propane cylinder or other flammable vapors and liquids in the vicinity of this appliance
What to do if you smell gas?
Do not try to light any appliance.
Do not touch any electrical switch.
Do not use any phone in your residence.
Immediately call your gas supplier from a neighbor’s phone. Follow the gas supplier’s instructions.
If you cannot reach your gas supplier, call the fire department.
For installation and service of your range product, it must be performed by a licensed installer, an approved service agency or your gas supp
SAFETY INSTRUCTIONS
Definitions
This is a safety alert symbol. It will alert you to potential personal or property safety hazards. Obey all safety messages to avoid any property damage, personal injury or death
WARNING
WARNING indicates a potentially hazardous situation which, if not avoided, could result in serious injury or death.
CAUTION
CAUTION indicates a moderate hazardous situation which, if not avoided, could result in minor or moderate injury.
CAUTION
CAUTION – when used without the safety alert symbol, indicates a potentially hazardous situation which, if not avoided, could result in property damage.
IMPORTANT
IMPORTANT used for installation, operation and maintenance information that are not related to safety.
If the information in this manual is not followed exactly, a fire or an explosion may result causing property damage, personal injury or even death.
Do not store or use gasoline, liquid propane cylinder or other flammable vapors and liquids in the vicinity of this appliance.
Save this manual for future references.
SAFETY INSTRUCTIONS
What to do if you smell gas?
- Do not try to light any appliance.
- Do not touch any electrical switch.
- Do not use any phone in your residence.
- Immediately call your gas supplier from a neighbor’s phone.
Follow the gas supplier’s instructions. - If you cannot reach your gas supplier, call the fire department.
IMPORTANT
The installation and service of your range product must be performed by a licensed installer, ! an approved service agency or your gas supplier
WARNING
A child or adult can tip the range and be killed.
Verify the anti-tip bracket has been installed.
Ensure the anti -tip bracket is engaged when the range is moved.
Do not operate the range without the anti-tip bracket in place.
Failure to follow these instructions can result in death or serious burns to children and adult s.
Show specific manufacturer ill ustrations fo r checking instal lation/e ngagem ent of anti-tip brackets.
CONSUMER INFORMATION – THE INSTALLER SHALL NOT REMOVE
Before removing label, ensure anti-tip bracket is properly installed.
To reduce the risk of tipping the appliance, the appliance must be secured by properly installed anti-tip device packed with the appliance.
All ranges can tip and cause injuries.
Install anti-tip device packaged with range
Follow all Installation Instructions.
Slide range forward.
Make sure the anti-tip bracket is securely attached to the wall behind the range.
Safely tilt the front of the range upward slightly and move back against wall, Making sure the pin slides under bracket.
UNPACKING AND HANDLING
WARNING
Extremely Heavy.
Proper equipment and adequate manpower when move the range to avoid personal injury or damage to the unit or the floor. The unit is heavy and rests on adjust able steel legs.
Failure to follow this advice may result in damage or personal injury.
DO NOT lift range by the oven door handles !
This is a safety alert symbol. It will alert you to potential personal or property safety hazards. Obey all safety messages to avoid any property damage, personal injury or death.
WARNING
Do not store or use gasoline, liquid propane cylinder or other flammable vapors and liquids in the vicinity of this appliance.
The installation and service of your range must be performed by a qualified installer, an approved service agency or the gas supplier.
Gas appliances can cause minor exposure to four of these substances, namely benzene, carbon monoxide, formaldehyde and soot, caused primarily by the incomplete combustion of natural gas fuel. When operating your range on natural gas, the flames from the burners should be blue in color. In addition, the flames should be stable, free of yellow tipping, excessive noise and lifting. However, this yellow tipping should be restricted to the primary flame kernels only. Properly adjusted burners, indicated by a bluish rather than a yellow flame, will minimize incomplete combustion. Exposure to those substances can be minimized by venting with an open window or use of a ventilation fan or hood.
ELECTRICAL GROUNDING INSTRUCTIONS
IMPORTANT
This indoor cooking appliance is equipped with a three-prong (grounding) plug for your protection against shock hazard and should be plugged directly into a properly grounded three-pronged receptacle. DO NOT cut or remove the grounding prong from this plug. FOR MORE
INSTALLATION AND OPERATION INSTRUCTIONS
To ensure proper and safe operation, read all instructions before using the product. Install or locate the product only in accordance with the provided Installation Instructions.
WARNING
All servicing should be performed to a qualified technician.
Do not attempt to adjust, repair, service or replace any part of your appliance unless it is specifically recommended in this guide.
Do not use the range for warming or heating the room.
Do not leave children alone or unattended in the area where the range is in use. Never allow them to sit or stand on any part of the range. Do not let children play with the range.
Have the technician show you the location of the gas shut off valve and how to shut it off in an emergency situation.
Always disconnect power to appliance before any type of servicing.
Do not use abrasive or caustic cleaners or detergents on this appliance. They may cause permanent damage to the surface.
When cooking, set the burner controls so that the flame heats only the bottom of the utensil and does not overlap at the sides of the utensil.
Utensils (pots and pans) that conduct heat slowly, i.e. glass pots, should be used in conjunction with burner flames at a low or medium setting.
Turn off all controls and wait for appliance parts to cool down before touching them. Do not touch the burner grates or surrounding areas until cool.
Do not use water on grease fires.
Clean appliance with caution.
Always turn pot handles to the side or back of the range. Do not turn handles towards the area where they can be easily burned. Handles should not extend over the adjacent burners.
Use the range only for cooking tasks as outlined in this manual. When using the range, do not touch the grates, burner caps, burner bases, or any other parts in proximity to the flame. These components may be hot enough to cause burns.
Use dry pot holders. Moist or damp pot holders on hot surfaces may result in burns from steam.
Remove pot holder away from hot surface areas.
Do not use a towel or other bulky cloth.
Do not heat unopened food containers. Build up of pressure may cause the container to explode and result in injury.
During and after use, do not touch interior surfaces of the oven until cool.
INSTALLATION INSTRUCTIONS
IMPORTANT
Keep appliance area clear and free from combustible materials, gasoline, and other flammable vapors.
Gas Supply Requirements
Installation of this range must conform with local codes, or in the absence of local codes, the National Fuel Gas Code, ANSI Z223.1 / NFPA 54. In Canada, installation must conform to the current natural Gas Installation /code, CAN 1-1.1-M81 and with local codes where applicable.
This range has been design-certified according to ANSI Z21.1b-2012 latest edition.
A statement of the maximum gas supply pressure in accordance with the inlet pressure rating of the gas appliance pressure regulator supplied.
MINIMUM GAS SUPPLY PRESSURE TO APPLIANCE FOR LP GAS—14.0 IN.W.C.
MINIMUM GAS SUPPLY PRESSURE TO APPLIANCE FOR NG — 6 IN.W.C.
APPLIANCE REGULATOR IS SET AT 5.0 IN. W.C. OUTLET PRESSURE.
Do not obstruct the flow of combustion air into the range and ventilation air away from the range.
Ventilation: it is recommended that the unit be operated with an oven head, vented exhaust hood of sufficient size and capacity.
Before installing the range, you must locate and secure the included anti-tip bracket to the wall for your range.
CAUTION
The use of cabinets for storage above the appliance may result in a potential fire hazard. Combustible items may ignite; metallic items may become hot and cause burns. If a cabinet storage is to be provided, the risk can be reduced by installing a range hood that projects horizontally a minimum of 5″ (12.7cm) beyond the bottom of the cabinets.
WARNING
The appliance shall not be used for space heating. This information is based on safety considerations. All openings in the wall behind the appliance and in the floor under the appliance shall be sealed.
Dimensions and Clearances
The range may be installed flush to the rear wall. You may install a non-combustible material on the rear wall above the range and up to the vent hood. It is not necessary to install non-combustible materials behind the range below the counter top height.
The minimum distance from the side of the range above the counter top to combustible sidewalls must be at least 10 inches.


Installation
Dimensions and Clearances

Installation Diagram


Electric Power Supply Requirements
Your range must be electrically grounded in accordance with local codes or, in the absence of local codes, in accordance with the National Electrical Code (ANSI/NFPA 70, latest edition). In Canada, electrical grounding must be in accordance with the current CSA C22.1 Canadian
Electrical Code Part 1 and/or local codes. A copy of this standard may be obtained from:
National Fire Protection Association, 1 Batterymarch Park, Quincy, Massachusetts 02269-9101.
The power supply must be the correct polarity. Reverse polarity will result in continuous sparking of the electrodes, even after flame ignition. If there is any doubt as to whether the power supply has the correct polarity or grounded, have it checked by a qualified electrician.
Use 240V, 60Hz, and properly grounded branch circuit protected by a 15-amp or 20-amp circuit breaker or time delay fuse.
WARNING
Electrical Grounding Instructions: this indoor gas cooking appliance is equipped with a three prong (grounding) plug for your protection against shock hazard and should be plugged directly into a properly grounded three-pronged receptacle.
Do Not cut or removes the grounding prong from the plug.
Caution Label all wires prior to disconnection when servicing controls. Wiring errors can cause improper and dangerous operation. Verify proper operation after servicing.
Grounding
- The power cord is equipped with a three-prong (grounding) plug which mates with a standard three-prong grounding wall receptacle to minimize the possibility of electrical shock hazard from the range.
- All cord connected appliance shall include instructions relative to location of the wall receptacle and a warning to the user to disconnect the electrical supply before serving the appliance.
- Where a standard two-prong wall receptacle is encountered, it is the responsibility and obligation of the customer to have it replaced with a properly grounded threeprong wall receptacle. Do not cut or remove the grounding prong from the power cord
Connect Range to Gas Supply
- Install a manual gas line shut-off valve in the gas line in an easily accessed location outside the range in the gas piping external to the appliance for the purpose of turning on or shutting off gas to the appliance.
- Install male ½” flare union adapter to ½” NPT internal thread elbow at inlet of regulator. On models equipped with standard twin burners, install the male pipe thread end of the ½” flare union adapter to the ½” NPT internal thread at inlet of pressure regulator. Use a wrench on the regulator fitting to avoid damage.
- Install male ½” or¾” flare union adapter to the NPT internal thread of the manual shut-off valve, taking care to secure the shut-off valve to keep it from turning.
- The gas supply pressure for checking the regulator setting is 6in (Natural Gas) and 11 inch LP gas connect flexible gas line connector to the regulator on the range. Position range to permit connection at the shut-off valve.
- When all connections have been made, check that all range controls are in the “off’ position and turn on the main gas supply valve.
- Leak testing of the appliance shall be conducted according to the manufacture’s instructions .Use some soap water (50% water and 50% soap) or a leak detector at all joints and connections to check for leaks in the system. Do not use a flame to check for gas leaks.
- The appliance must be isolated from the building’s gas supply piping system by closing its individual manual shut-off valve during any pressure testing of the gas supply piping system at test pressure equal to or less than½ psig (3.SkPa).
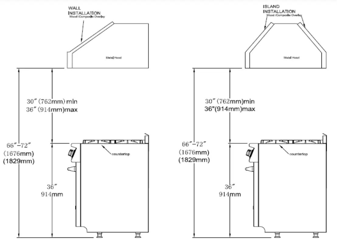
Hood/Composite Overlay Install

The bottom of the hood should be 30″ min. to 36″ above the counter top. This would typically result in the bottom of the hood being 66″ to 72″ above the floor. These dimensions provide safe and efficient operation of the hood.
After Installation:
Check ignition of cooktop burners.
Check the air shutter adjustment – sharp blue flame, with no yellow tipping or lifting flames.
Check ignition of oven burner.
Visually check tubular burner (oven burner) re-ignition to be sure both rows of burner ports are relighting each time.
Check for gas leaks at all gas connections (using a gas detector, never a flame).
Check oven bake and convection bake function.
COOKTOP OPERATION
Surface Burner Ignition
![]() | ![]() | ![]() |
| Push to release gas. | Turn to Ignite and ‘Hi’ position. | Adjust to appropriate flame height. |
To light the surface burners, push and turn the appropriate control knob counter clockwise to a
“Hi” position. You will hear a clicking noise – the sound of the electric spark igniting the burner.
Once burner ignition has been achieved, turn the burner control knob to adjust the flame size. If
the knob stays at “Hi”, it will continue to click.
NOTE: When one burner is turned to the “Hi” position, all the burners will spark. Do not
attempt to disassemble or clean around any burner while another burner is on. Do not touch any
burner cap, burner base, or igniter while the igniters are sparking.
Heat Settings:
| Hi | Ignites the burners. |
| Simmer | Melting small quantities, steaming rice, warming food, melting chocolate or butter |
| Low | Melting large quantities. |
| Low-Medium | Low-temperature frying, simmering large quantities, heating milk, cream sauces, gravies. |
| Medium | Sauteing and browning, braising, pan-frying, maintaining slow boil on large quantities. |
| Medium – Hi | High-temperature frying, pan boiling, maintaining slow boil on large quantities. |
| Hi | Boiling liquid quickly, deep frying. |
Simmer and Boil
- A smaller flame will give the best simmer results. Small flames offer precise cooking performance for delicate foods, keeping food warm, melting chocolate or butter, and for cooking that need to cook over low heat for a long time.
- The highest (larger) flame settings provide the maximum heat that is available on your range. This setting should be used for heavy cooking loads such as water boiling and pasta cooking.
Flame Size
- When you select the flame size, watch the flame when you tum the knob.
- Any flame larger than the bottom of the cookware is wasted.
- The flame should be steady and blue in color. Foreign material in the gas line may cause an orange flame during initial operation.


Power Failure
- If the gas does not ignite within four seconds, tum off the valve and allow at least five minutes for any gas to dissipate. Repeat the lighting procedure.
- If the power fails, the surface burners can be lighted manually. Hold a lighted match near a burner and tum knob counterclockwise to “HI”. After burner lights, tum knob to setting.
Cooktop
- To prevent the cooktop from discoloring or staining, clean cooktop after each use, and wipe up acidic or sugary spills as soon as the cooktop has cooled.
- The sealed burners of your range are not secured to the cooktop and are designed to be removed. Boil overs or spills will not seep underneath the cooktop. The burners should be cleaned after each use.
Oven Vent
- Do not block the ducts at the rear of the range when cooking in the oven. It is important that the flow of hot air from the oven and fresh air into the oven burner never be interrupted. Avoid touching the vent opening or nearby surfaces during oven or broiler operation – they may become hot.
WARNING
FOOD SAFETY
According to the United States Department of Agriculture: DO NOT hold foods at temperatures between 40°F to 140°F more than 2 hours. Cooking raw foods below 275°F is not recommended.
WARNING
Never use this appliance as a space heater to heat or warm the room, Doing so many result in carbon monoxide poisoning and overheating of the oven. Never use this appliance as a storage space and storage cabinet areas
WARNING
Never use this appliance doors or drawers such as stepping. Leaning or setting on the doors or drawers, may result in hazards and injuries
Burner Grates
- The grates must be properly positioned before cooking. Improper installation of the grates may result in scratching of the cooktop and / or poor combustion.
- Do not operate the burners without a pan or utensil on the grates

Oven Operation
WARNING
DO NOT cover any slots, holes or passages in the oven. DO NOT cover the oven racks with materials such as aluminum foil. Doing so blocks air flow through the oven and affect cooking performance. Aluminum foil lining may also trap heat, causing a fire hazard. Do not use Aluminum Foil on any porcelain surface. Doing so will damage the porcelain
Oven Function
Bake
The BAKE mode is used to prepare a variety of food using heated air in the oven. Refer to recipes from cook books and food websites or packaging directions for oven temperature settings, preheat and baking times.
Rotate the Oven Temperature Control Knob to the recommended temperature setting. The Oven Cycle Light shall tum on to indicate oven is in operation. In PREHEAT, the upper and lower heating elements shall tum on and off, intermittently. The Oven Cycle Light shall tum off when the temperature is reached.
Keep the oven door closed to minimize heat loss. Use the oven light switch to tum on the oven light and see the inside of oven without opening door.
Convection Bake
Heat is transferred from the lower heating element located in the bottom of the oven cavity. The convection fan in the rear of the oven then circulates it. This convection process provides even heat distribution throughout the oven cavity. Multiple rack use is possible for large baking jobs. Convection cooking is faster, can be accomplished at lower temperatures and provides even temperatures than regular cooking.
To use convection, follow the steps similar to standard BAKE, then press the convection fan switch to ON position.
Keep the oven door closed to minimize heat loss. Use the oven light switch to tum on the oven light and see the inside of oven without opening door. For best result, use shallow uncovered pans and cookie sheet without sides.
Broil
The intense heat from the upper heating element is used to cook thin slices of meat, poultry and fish. The heating element coils turns red when the oven control knob is set to BROIL.
Place food in the recommended rack position after the oven has completed the PREHEAT cycle. Refer to recipes or packaging for broiling instructions and cook times.
Rotate the Oven Temperature Control Knob to the BROIL position. The Oven Cycle Light shall tum on to indicate oven is in operation. The upper heating elements is energized to maintain 550°F.
Keep the oven door closed. Use the oven light to see inside of oven
WARNING
BEFORE USING THE APPLIANCE – it is recommended that the oven be turned on to burn off the manufacturing oils. Setthe oven control knob to 450°F (230°C) and let the oven run for 20 to 30 minutes. Turn on the range hood to remove odors or smoke away from the kitchen. Turn off appliances when done. Please note that the cooling fan shall continue to run until such time that the oven has cooled down. This is normal oven operation.
WARNING
DO NOT use aluminum foil on the porcelain surface area of the oven. DOING SO WILL DAMAGE THE PORCELAIN.
Broiler Operation
Note: Door must be closed during broiling operation.
Broiling is a method of cooking tender cuts of meat directly under the infrared broiler in the oven . Broiling in the oven is accomplished with the oven door closed. It is normal and necessary for some smoke to be present to give the food a broiled flavor.
Preheating
Preheating is suggested when searing rare steaks (Remove the broiler pan before preheating with the infrared broiler. Foods will stick on hot metal). To preheat, turn the “Oven” selector knob to the “Broil” position. Wait for the burner to become hot, approximately 2 minutes. Preheating is not necessary when broiling meat well-done.
To Broil
Broil one side until the food is browned; turn and cook on the second side. Season and serve. Always pull the rack out to the “stop” position before turning or removing food.
Setting Broil
The “Oven” selector knob controls the Broil feature. When broiling, heat radiates downward from the oven broiler for even coverage. The Broil feature temperature is 500°F (260°C).
The broil pan and insert used together allow dripping grease to drain and be kept away from the high heat of the oven broiler DO NOT use the broil pan without the insert. DO NOT cover the broil pan insert with foil. The exposed grease could catch fire.
To set the oven to Broil:
- Place the broiler pan insert on the broiler pan. Then place the food on the broiler pan insert
- Arrange the interior oven rack and place the broiler pan on rack. Be sure to center the broiler pan and position directly under the broil burner. If preheating the broil burner first, position the broiler pan after the broil burner is preheated.
- Tum selector knob to Broil.
The oven indicator light will remain on until the selector knob is turned to the off position or the temperature control cycles off.
Griddle Operation
Before Using the Griddle
- Clean the griddle thoroughly with warm, soapy water to remove dust or any protective coating.
- Rinse with clean water and wipe off to dry with soft, clean, lint-free towel/cloth.
- A stainless steel cover that is sized to fit on top of the surface when the griddle is not being used is provided. Please note – the cover must be removed before turning the griddle on.
- Make sure the grease tray is under the front edge of the griddle. Position the tray under the griddle overhang to catch grease or food residue.
Use of the Griddle
- Push and turn the control knob counter-clockwise to the preferred cooking temperature.
- Preheat the griddle for 10-12 minutes
- When the griddle is preheated to the desired temperature, the indicator light will tum on.
- Butter or cooking oil can be added for more flavor, then place the food to cook.
CAUTION:
The surface of the griddle is hot after use. Please allow sufficient time for the griddle to cool prior to cleaning.
When using the appliance or the first time, the oven and broiler burners should be turned on the burn off the manufacture oils. Turn the oven on the 450 [230 for 20 to 30 minutes, then turn the oven control knob to “Broil” for the same length of time. It is recommended to turn on the ventilator above the range at this time
WARNING
Before Baking or Broiling the oven and broiler should be turned on to bum off the manufacturing oils. Tum the oven on to 450°F (230°C) for 20 to 30 minutes; then tum the broiler to “Broil” for the same length of time. You may wish to tum on the ventilator above your range at this time.
Care and Cleaning
Cooktop
- To avoid electrical shock or bums, tum off all controls and ensure the cooktop is cool before cleaning.
- Before cleaning the cooktop, ensure that all burners are turned off and that all components are cool enough to safely touch.
- Do not use harsh or abrasive cleaning agents, waxes, polishes, or commercial cooktop cleaners to clean the cooktop.
- Use only a sponge, soft cloth, fibrous or plastic brush, and nylon pad for cleaning.
- Always dry components completely before using the cooktop.
Control Panel, Door Handle, Control Housing
- Clean the control panel, door handle and control housing with a solution of mild detergent and warm water.
- Do not use abrasive cleaners or scrubbers; they will permanently damage the finish.
- Dry the components with a soft, lint-free cloth.
Oven Window
- Clean all glass surfaces with a solution of mild detergent and hot water. Use a mild glass cleaner to remove fingerprint or smears.
- Dry completely with a soft, lint-free cloth.
Porcelain Surfaces
- Clean oven interior and inner door liners with a solution of mild detergent and hot water. Rinse and dry with a soft cloth. Do not use abrasives or commercial oven cleaners.
Stainless Steel Surfaces
- Do not use any cleaning product containing chlorine bleach.
- Do not use a steel-wool pad; it will scratch the surface.
- Use a hot, damp cloth with a mild detergent. Use a clean, hot, damp cloth to remove soap. Dry with a dry, clean cloth.
- Do not use aluminum foil on the stainless steel surfaces. Doing so will cause damages that affect the life of stainless steel.
Metal Finishes
- Wash with soap and water, glass cleaner, or mild liquid sprays.
Plastic Finishes
- When control panel trim and end caps are cool, clean with soap and water, rinse and dry.
- Use a glass cleaner and soft cloth.
Oven Racks
- Clean oven racks with solution of detergent and hot water. To clean heavy soil, use a scouring pad such as steel wool with plenty of water.
Oven Frame
- Clean with hot water, soap-filled steel-wool pads or cleaners. Rinse well with clean water and dry.
Oven Gasket
- Do not clean the gasket. The fiberglass material of the oven door gasket cannot withstand abrasion.
- It is necessary for the gasket to remain intact.
Replacing the Oven Light
- Tum off the power at the main power supply.
- Remove the lens cover from the housing by pulling straight out.
- To prevent electrical shock or personal injury, make sure the oven and light bulb are cool and power to the oven has been turned off before replacing the light bulb. Make sure the lens cover is in place when using the oven.
Outer Oven Door
- Use soap and water to thoroughly clean the top, sides and front of the oven door. Rinse well. You may also use a glass cleaner to clean the glass on the outside of the door.
- Do not use oven cleaners, cleansing powders of harsh abrasives on the outside of the door.
Inner Oven Door
- Do not allow excess water to run into any holes or slots in the door. Any soap left on the liner causes additional stains when the oven is heated.
- Before you call for service, please review the potential problem / possible causes and remedies shown in the table below.
Troubleshooting
Before you call for service, please review the potential problem / possible causes and remedies shown in the table below.
| Nothing works | Oven is not connected to the electrical power. Power supply is not energized. | Have oven connected to a properly sized electrical power supply by a qualified electrician. Have an electrician check tbe power supply, induding the house cirmit breaker, wiring and fuses |
| Top burners do not light or do not bum evenly | Plug on range is not completely inserted in the electrical outlet. Burner holes on the side of the burner may be clogged. | Make sure the unit is properly connected to the power supply Remove the hurncr heads and clean them. Check The electrode area for burned on food or grease. |
| Burner flames very large and yellow. | Burner bezel ports are dogged. Burner ports or burner caps are not position ed properly. Cooktop is being operated with the wrong type of gas. Regulator is not installed, is faulty, or is set for the wrong type of gas. | Clean burner bezel ring ports w:ith straightenedpaper clip , needle, or wire. Remove and carefully reins tall burner bezel. a nd caps. Ensure that the type of cooktop matches the natural gas supply. Check installation, replace regulator , or set regulator for proper gas. |
| Spark.mg but no flam ignition. | Gas shut-off valve is in the ‘ OFF ‘ position . | Turn shut-off valve to the ‘ON’ position. |
| Igniters spark cot1tinuously after flame ignition. | Power supply polarity is reversed. igniters a.re wet or dirty. | Have polarity corrected. Dry or clean igniters. |
| Burner flame goes out at low setting. | Low gas supply pressure. Air intake hole around knobs are obstructed. | Contact gas company. Remove obs truction. |
| Oven will not heat | Oven settings are not corrected | Follow mode sele ction and clock. settings as specified in Oven Operation ection of the manual |
| Foods over-cooked or under-cooked | Incorrect cooking time or temperature. | Adjust time, temperature, or rack position. |
| ‘Cracking ‘ or ‘ Popping’ should. | This is the sound of metal heating and cooling. | This is nonnal |
Warranty and Product Registration
Kucht is not responsible for incidental or consequential damages. Under no circumstances will Kucht ‘s liability exceed the cost that you paid for the product. Some provinces/states do not allow the exclusion or limitation of incidental or consequential damages, so the above limitation or exclusion may not apply to you.
This warranty gives you specific legal rights, and you may also have other rights that vary from state to state.
Remember to register your product at www.kucht.com

WARRANTY
KUCHT Warranty covers defects in Parts and Labor for functional parts that are the result of normal usage for a period of time of 4 Years for Parts and Labor * from date of purchase. Functional parts are those components parts that are critical to the performance of the product’s essential function. Nonfunctional parts are those that are not critical like knobs, handles, or cosmetic parts. KUCHT will repair or replace the unit or any parts, therefore, as required, subject to these terms and conditions.
General Conditions:
a. Warranty does not cover failure as a result of misuse, abuse, rust or corrosion, spilled liquids or foreign objects found inside the unit; repair of damage caused by accident, theft, fire, flood, external causes such as, but not limited to, blow fuses, inadequate electrical power, water and gas lines beyond the equipment, or any use of the product not authorized by the manufacturer.
b. The maximum liability of the warranty for product replacement or repair shall not exceed the original purchase price of the product.
c. KUCHT reserves the right to repair or replace the covered product with a comparable feature model of like kind.
d. Warranty does not cover deterioration of the appearance of the product, any cosmetic part such as paint, porcelain, glass, dents, scratches, chips, rust or peeling.
e. Any damage resulting from unauthorized replacement parts, improper service, or modifications made to the covered product are not covered.
f. KUCHT is released from all liability due to indirect, consequential, or incidental damages.
Kucht Liability is limited to the original price of the covered equipment.
(*): 4-Year Warranty period is valid for every appliance bought after September 1st, 2020 in the U.S. territory. – Not valid for accessories, parts, or wine coolers. All the appliances acquired before September 1st, 2020, and Wine Coolers, are covered with a 2-year warranty for parts and labor.
In addition, Kucht gives full UNLIMITED LIFETIME SUPPORT. This means that if our customers come across any problem after the warranty has expired, a qualified Kucht member will provide assistance using video chat in any repair process. Users and technicians will also have access to repair videos, tutorials, manuals, and any extra help that is available.
RETURN POLICY
Kucht will accept return requests for purchases within the first 90 days after delivery. Shipping discrepancies or products that arrive damaged must be reported to Kucht Customer Support within 5 business days of delivery in order to be eligible for a full refund.
Once a return request is approved, Kucht will send a Return Merchandise Authorization (RMA). From this time, the customer will have 15 calendar days to return the item to Kucht.
All merchandise returned to Kucht must be in original packaging with all original items (e.g., manuals, remotes, cables, etc.) that came in the box. Returns with missing items will result in a partial refund.
Returns without an RMA number will not be accepted and credit will not be issued.
Part(s) must be returned in new condition, including: all components, manuals, registration cards and original undamaged packaging.
FOR MORE INFORMATION VISIT WWW.KUCHT.COM/ONLINE/WARRANTY/
WE TRANSFORM A SIMPLE KITCHEN INTO A PRO ONE.
THIS IS WHY WE CARE ABOUT MAKING VERY HIGH PERFORMANCE
RANGES AND HOODS, TO MAKE YOU FEEL LIKE A PRO AND STYLISH COOKER.























