UNDERCOUNTER REFRIGERATOR
Use and Care Guide and Installation Instruction
REFRIGERATOR SAFETY
Your safety and the safety of others are very important.
We have provided many important safety messages in this manual and on your appliance. Always read and obey all safety messages.
This is the safety alert symbol.
This symbol alerts you to potential hazards that can kill or hurt you and others.
All safety messages will follow the safety alert symbol and either the word “DANGER” or “WARNING.”
These words mean:
DANGER You can be killed or seriously injured if you don’t immediately follow instructions.
WARNING You can be killed or seriously injured if you don’t follow instructions.
All safety messages will tell you what the potential hazard is, tell you how to reduce the chance of injury, and tell you what can happen if the instructions are not followed.
IMPORTANT SAFETY INSTRUCTIONS
WARNING: To reduce the risk of fire, electric shock, or injury when using your refrigerator, follow these basic precautions:
- Plug into a grounded 3 prong outlet.
- Do not remove ground prong.
- Do not use an adapter.
- Do not use an extension cord.
- Disconnect power before servicing.
- Replace all parts and panels before operating.
- Remove doors from your old refrigerator.
- Use non flammable cleaner.
- Do not store or use petrol, flammable liquids or gas in the vicinity of this or other electrical appliances.
The fumes can cause fires or explosions. - Do not store explosive substances such as aerosol cans with a flammable propellant in this refrigerator.
- Do not use or place electrical devices inside the refrigerator compartments if they are not of the type expressly authorized by the manufacturer.
- Use two or more people to move and install refrigerator.
- This appliance is not intended for use by persons (including children) with reduced physical, sensory or mental capabilities, or lack of experience and knowledge, unless they have been given supervision or instruction concerning use of the appliance by a person responsible for their safety.
- Children should be supervised to ensure that they do not play with the appliance.
- To avoid the risk of children becoming trapped and suffocating, do not allow them to play or hide inside the refrigerator.
- If the power supply cord is damaged, it must be replaced by the manufacturer or its service agent or a similarly qualified person.
- Keep ventilation openings, in the appliance enclosure or in the built-in structure, clear of obstruction.
- Do not use mechanical devices or other means to accelerate the defrosting process, other than those recommended by the manufacturer
- Do not damage the refrigerant circuit.
SAVE THESE INSTRUCTIONS
Proper Disposal of your Old Refrigerator
WARNING: Risk of child entrapment. Before You Throw Away Your Old Refrigerator or Freezer:
- Take off the door.
- Leave the shelves in place so that children may not easily climb inside.
WARNING
Suffocation Hazard
Remove doors or lid from your old appliance.
Failure to do so can result in death or brain damage.
IMPORTANT: Child entrapment and suffocation are not problems of the past.
Junked or abandoned refrigerators are still dangerous –even if they will sit for “just a few days.”
If you are getting rid of your old refrigerator, please follow these instructions to help prevent accidents.
Important information to know about disposal of refrigerants:
Dispose of refrigerator in accordance with Federal and Local regulations. Refrigerants must be evacuated by a licensed, EPA certified refrigerant technician in accordance with established procedures.
INSTALLATION REQUIREMENTS
Tools and Parts
Gather the required tools and parts before starting installation.
Tools and parts needed:
- Phillips screwdriver.
- Custom Overlay Door Panel – Refer “Custom Overlay
Panel Preparation”.
- Custom handle and mounting hardware (optional).
Parts supplied: - M4 x 30 flathead screws (8).
Location Requirements
| Explosion Hazard Keep flammable materials and vapors, such as gasoline, away from refrigerator. Failure to do so can result in death, explosion, or fire. |
IMPORTANT: This appliances is intended to be used in household and similar applications such as:
- Staff kitchen areas in shops, offi ce and other working environments;
- Farm houses and by clients in hotels, motels and other residential type environments;
- Bed and breakfast type environments;
- Catering and similar non-retail applications.
NOTES:
- For the refrigerator to be fl ush with the front of the base cabinets, remove any baseboards or moldings from the rear of the opening. Refer “Product Dimensions” and later in this section, “Opening Dimensions.”
- It is recommended that you do not install the refrigerator near an oven, radiator, or other heat source.
- Do not install in a location where the temperature will fall below 55 °F (13 °C). For best performance, do not install the refrigerator behind a cabinet door or block the base grille.
Opening Dimensions:
- Height dimensions are shown with the leveling legs extended to the minimum height.
NOTE: When leveling legs are fully extended, add 5/8” (15 mm) to the height dimensions. Refer “Product Dimensions.” - If the fl oor of the opening is not level with the kitchen fl oor, shim the opening to make it level with the kitchen fl oor.

Opening and utility location dimensions
| Opening width – A | 24” (60.96 cm) min. |
| Opening depth – B | 24” (60.96 cm) min. |
| Opening height – C | 341/2” (87.6 cm) min. 35” (88.9 cm) max. |
| Dimension – D | 121/16” (30.64 cm) |
| Dimension – E | 213/4” (55.16 cm) |
| Dimension – F | 13/4” (4.44 cm) |
| Dimension – G | 3” (7.55 cm) |
| Dimension – H | 41/2” (11.37 cm) |
| Dimension – I | 91/4” (23.47 cm) |
For fl ush installation, the power outlet can be installed in adjacent cabinetry with a cutout on the power cord side for routing of the power cord.
The power outlet can also be recessed on the back wall behind the unit as per recommended receptacle locations in the above illustration.
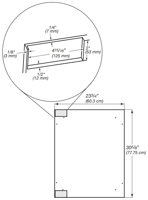
Product Dimensions
Overall product
| Width (up to hinge cover) | 237 /8” (60.72 cm) |
| Height (up to hinge cover) | 343 /8” (87.32 cm) |
| Panel ready models depth (with 3/4” panel and no handle) | 2313 /16” (60.5 cm) |
| Raw Door Height | 305 /8” (77.75 cm) |
| Depth (no handle) | 235 /8” (60.01 cm) |
NOTE: The power cord is 60” (152.4 cm) long.
Custom Overlay Panel
NOTE: For standard stainless steel or glass door models, skip these instructions and go to “Electrical Requirements” section.
If you plan to install a custom overlay panel, you will need to create the panel yourself or consult a qualifi ed cabinetmaker or carpenter. Refer dimension drawings for panel specifi cations.
IMPORTANT:
- The thickness of the overlay panel must be 3/4” (19 mm).
- Custom solid door overlay panel must not weigh more than 20 lb (9.07 kg).
- Custom glass door overlay panel must not weigh more than 10 lb (4.54 kg).
- Overlay panels weighing more than recommended may cause damage to your appliance.
Solid door overlay panel – Preparation:
Create the custom overlay panel using the dimensions shown in the illustration “Solid door overlay panel and hinge routing dimensions”. Rout shaded areas to a 1/2” (12 mm) depth as shown.
IMPORTANT: The following graphic shows a custom panel for a door with the hinges installed on the right-hand side.
If your refrigerator has the hinges installed on the left-hand side, rotate the custom frame 180° so the hinge markings will be on the left.

Solid door overlay panel and hinge routing dimensions
Glass door overlay panel – Preparation:
Create the custom overlay panel using the dimensions shown in the illustration “Glass door overlay panel and hinge routing dimensions”. Rout shaded areas to a 1/2” (12 mm) depth as shown.
IMPORTANT: The following graphic shows a custom panel for a door with the hinges installed on the right-hand side. If your refrigerator has the hinges installed on the left-hand side, rotate the custom frame 180° so the hinge markings will be on the left.
Glass door overlay panel and hinge routing dimensions
Handle (optional)
Custom handles are typically attached to the custom overlay door panel only.
Refer instructions received with KitchenAid handle kits to install these handles on custom wood panels.
Custom handle needs to be installed on the door panel with countersunk holes and installed before the custom overlay door panel has been installed on the refrigerator door.
Electrical Requirements
| Electrical Shock Hazard Plug into a grounded 3 prong outlet. Do not remove ground prong. Do not use an adapter. Do not use an extension cord. Failure to follow these instructions can result in death, fire, or electrical shock. |
Before you move your refrigerator into its fi nal location, it is important to make sure you have the proper electrical connection.
Recommended grounding method:
A 115 V, 60 Hz, AC only, 15 A or 20 A fused, grounded electrical supply is required. It is recommended that a separate circuit serving only your refrigerator be provided.
Use an outlet that cannot be turned off by a switch. Do not use an extension cord.
NOTE: Before performing any type of installation, cleaning, or removing a light bulb, unplug refrigerator or disconnect power.
INSTALLATION INSTRUCTIONS
Unpack the Refrigerator
WARNING
Excessive Weight Hazard
Use two or more people to move and install or uninstall appliance.
Failure to do so can result in back or other injury.
Before using your refrigerator, all packaging materials should be removed and the interior should be cleaned.
- Remove tape and glue residue from surfaces before turning on the refrigerator. With your fi ngers, rub a small amount of liquid dish soap over any adhesive and wipe with warm water to remove.
- Do not use sharp instruments, rubbing alcohol, fl ammable fl uids, or abrasive cleaners to remove tape or glue.
These can damage the surfaces of your refrigerator.
For more information, refer “Refrigerator Safety” section. - Dispose of and/or recycle all packaging materials.
- After all packaging materials have been removed, clean the inside of your refrigerator. Refer the cleaning instructions in “Cleaning” section.
Important information to know about glass shelves and covers:
Do not clean glass shelves or covers with warm water when they are cold. Shelves and covers may break if exposed to sudden temperature changes or impact, such as bumping.
Tempered glass is designed to shatter into many small, pebblesize pieces. This is normal. Glass shelves and covers are heavy.
Use both hands when removing them to avoid dropping.
NOTE: For standard stainless steel or glass door models, skip to “Door Closing” section.
Custom Overlay Panel Installation
IMPORTANT:
- Create custom overlay panel according to the specifi cations in the “Custom Overlay Panel” section.
- KitchenAid is not responsible for the removal or addition of molding or decorative panels that would not allow access to the refrigerator for service.
- Open the door completely to 115°.

- Remove the gasket from the corners of the door, pulling gently until the two screw holes in each corner of the door can be seen.
NOTE: The gasket does not have to be removed from the door, only the corners.
A. Screw holes
B. Gasket - Using two people, hold the custom overlay panel against the door. Be sure that the top and bottom hinges fit accurately into the routing on back of the custom wood panel.
NOTE: Handle needs to be installed before the custom overlay door panel has been installed on the refrigerator door. - Fasten the custom panel to the door using two wood screws (provided in installation kit) at each corner.
A. M4 x 30 fl athead screws (provided in installation kit) - Press the gasket firmly back into it’s original position.

Installation and Door Closing
Your refrigerator has four leveling legs. If your refrigerator seems unsteady or you want the door to close more easily, adjust the refrigerator’s tilt using the instructions below.
| Electrical Shock Hazard Plug into a grounded 3 prong outlet. Do not remove ground prong. Do not use an adapter. Do not use an extension cord. Failure to follow these instructions can result in death, fire, or electrical shock. |
- Plug into a grounded 3 prong outlet.
WARNING
Excessive Weight Hazard
Use two or more people to move and install or uninstall appliance.
Failure to do so can result in back or other injury.
When moving your Refrigerator:
Your refrigerator is heavy. When moving the refrigerator for cleaning or service, be sure to cover the oor with cardboard or hardboard to avoid door damage.
Always pull the refrigerator straight out when moving it.
Do not wiggle or “walk” the refrigerator when trying to move it, as oor damage could occur. - Move the refrigerator into its final location.
- Turn the leveling legs to the right to lower the refrigerator, or turn the leveling legs to the left to raise it. It may take several turns of the leveling legs to adjust the tilt of the refrigerator.
NOTE: Having someone push against the top of the refrigerator takes some weight off the leveling legs.
This makes it easier to adjust the leveling legs.
- Open the door and check that it closes as easily as you like. If not, tilt the refrigerator slightly more to the rear by turning both front leveling screws to the right.
It may take several more turns, and you should turn both leveling legs the same amount.
USING REFRIGERATOR
Controls
NOTES:
- The control panel is located at the top of the compartment and facing front.
- The control of the refrigerator has no mechanical parts or buttons. When disconnected, the control panel displays nothing and may be diffi cult to locate.
- Turning Control On/Off
The first time that the refrigerator is plugged in, the control will be in Cool Off mode.
Cool On and Cool Off will be the only options that display.
Press Cool On for 3 seconds to turn on the refrigerator.
All menus and recommended temperature settings will be displayed.
- Max Cool
Decrease internal temperatures to their lowest point for 24 hours.
Press Max Cool to turn on the feature.
The feature will activate.
Press Max Cool to turn off the feature and return to the previous settings.
- Control Lock
Avoids unintended temperature changes and makes it easy to clean the controls.
To activate Lock Mode, press and hold LOCK for 3 seconds. After the countdown, all other displays will turn off and become unavailable except Cool On, Cool Off and Lock.
- Using Presets
For your convenience, your refrigerator also has controls that are preset to recommended storage temperatures for specific products. Pressing any preset option will set the temperature value to recommended temperature for each category:
Deli: 39 °F (3 °C)
Assorted: 37 °F (2 °C)
Beverage: 34 °F (1 °C)
Meat: 32 °F (0 °C) - Adjusting the Temperatures To adjust set point temperatures, press “+” (plus) or “-” (minus) until the desired temperature setting is reached. The control is set correctly when milk and beverages are as cold as you like it.
NOTES:
The default recommended temperature for the refrigerator is 37 °F (2 °C). The set point range for this model is 32 °F to 42 °F (0 °C to 5 °C).
Wait at least 24 hours between adjustments so the refrigerator can acclimate. - Viewing Celsius/Fahrenheit Temperatures Press the F/C touch pad to toggle between displaying the temperature in degrees Fahrenheit and degrees Celsius.
The corresponding indicator will illuminate.
- Sabbath Mode
Allows the door of the refrigerator to be opened or closed on the Sabbath or other religious holidays without directly turning on or off any lights, digital readouts, fans, valves, tones or alarms. By selecting this feature, the temperature set points remain unchanged, but the control panel lights, interior lights, and control audio turn off. For most efficient refrigerator operation, it is recommended to exit the Sabbath Mode when it is no longer required.
Press and hold SABBATH for 3 seconds to turn on the feature. After the 3-second countdown, the feature will activate and all other displays will turn Off.
Press and hold SABBATH for 3 seconds to turn off the feature and turn on the display. - Over Temp Alarm
Helps avoid food from spoiling by giving an audible and visual alert if the temperature rises above the preset range for 4 hours.
The audio alarm will shut off automatically when the temperature returns to normal. To let you know an Over Temperature condition occurred, the indicator light will continue to flash until the Reset Alarm touch pad is pressed. If the over temperature condition is still present when an Over Temp reset is performed, the indicator light will continue to reactivate every 4 hours until the refrigerator temperature is below preset range.
NOTE: These features will not appear on your control unless your refrigerator is above preset range and the alarm requires a reset. - Auto Light (Glass Door Models)
The refrigerator has a sensor that will turn on the interior display light automatically when someone walks by. When motion is no longer detected, the interior display light will go off after 2 minutes.
Press the Auto Light option to activate this feature.
When the Auto Light is not activated, the interior display light will only turn on when the door is opened.
NOTE: Leaving the light on for an extended period of time will slightly increase the temperature of the refrigerator. - Door Open Alarm
Helps avoid food from spoiling by giving an audio and visual alert if the door is left open for 5 minutes.
If the door is open longer than 5 minutes, an alarm will sound every 2 minutes until the door is closed or any control is pressed. - Showroom Mode
This mode is used only when the refrigerator is on display in a retail store. To activate Showroom Mode, press and hold both Cool On and Sabbath for 3 seconds.
If you unintentionally turn on Showroom Mode, Cool Off will light up on the display, and the controls will appear to work. Exit Showroom Mode by pressing and holding COOL ON and SABBATH at the same time for 3 seconds.
Normal Sounds
Your new refrigerator may make sounds that your old one didn’t make. Because the sounds are new to you, you might be concerned about them. Most of the new sounds are normal. Hard surfaces, such as the fl ooring and surrounding structures, can make the sounds seem louder. The following describes the kinds of sounds and what may be making them.
Your refrigerator is designed to run more effi ciently to keep your food at the desired temperatures and to minimize energy usage. The high effi ciency compressor and fans may cause your refrigerator to run longer than your old one.
- You may also hear a pulsating or high-pitched sound from the compressor or fans adjusting to optimize performance.
- Rattling noises may come from the fl ow of refrigerant or items stored inside the refrigerator.
- As each cycle ends, you may hear a gurgling sound due to the refrigerant fl owing in your refrigerator.
- You may hear water running into the drain pan when the refrigerator is defrosting.
- You may hear clicking sounds when the refrigerator starts or stops running.
Refrigerator Shelves To remove or adjust upper shelves:
- Remove the shelf by lifting it up and out of the shelf brackets.

- Replace the shelf by inserting it into the shelf brackets.
NOTE: Be sure the shelf is leveled.
To remove and replace bottom shelf:
- The very bottom glass shelf slides straight out.

- Replace the shelf by aligning the edges with the guides and pushing it in toward the back of the refrigerator.

Door Bins (Solid Door Models)
Your refrigerator has two door bin locations for maximum storage capacity.
To remove and replace the door bins:
- Remove the door bin by tilting it forward and pulling it out.
- Replace the bin by placing the rear of the bin under the support on the door and sliding into place.

The refrigerator has an interior light that illuminates when the door is opened.
NOTE: The light is an LED which does not need to be replaced. If the LED does not illuminate when the door is opened, call Service. Refer “Assistance” section for contact information.
CARE AND CLEANING
Cleaning
| Explosion Hazard Risk of fire or explosion. Flammable refrigerant used. Do not use mechanical devices to defrost refrigerator. Do not puncture refrigerant tubing. |
Clean the refrigerator once a month to avoid buildup of odors. Wipe up spills immediately.
To clean your refrigerator:
- Unplug refrigerator or disconnect power.
- Remove all shelves and bins from inside the refrigerator.
- Hand wash, rinse, and dry removable parts and interior surfaces thoroughly. Use a clean sponge or soft cloth and a mild detergent in warm water.
To avoid damaging wooden tines and trim pieces, wipe them off with a clean sponge or soft cloth and warm water.
Do not use detergent or immerse the entire rack into water when cleaning.
Do not use abrasive or harsh cleaners such as window sprays, scouring cleansers, fl ammable fl uids, cleaning waxes, concentrated detergents, bleaches or cleansers containing petroleum products on plastic parts, interior and door liners or gaskets. Do not use paper towels, scouring pads, or other harsh cleaning tools. These can scratch or damage materials.
To help remove odors, you can wash interior walls with a mixture of warm water and baking soda (2 tbs to 1 qt [26 g to 0.95 L] of water). - Wash stainless steel and painted metal exteriors with a clean sponge or soft cloth and a mild detergent in warm water. Do not use abrasive or harsh cleaners, or cleaners containing chlorine. These can scratch or damage materials. Dry immediately with a soft, dry cloth to absorb any remaining water.
NOTE: To keep your stainless steel refrigerator looking like new and to remove minor scuffs or marks, it is recommended that you use the manufacturer’s approved Stainless Steel Cleaner and Polish.
IMPORTANT:
This cleaner is for stainless steel parts only!
Do not allow the Stainless Steel Cleaner and Polish to comeinto contact with any plastic parts such as the trim pieces, dispenser covers or door gaskets. If unintentional contact does occur, clean plastic part with a sponge and mild detergent in warm water. Dry immediately with a soft, dry cloth to absorb any remaining water. - Replace the shelves and bins.
| Explosion Hazard Risk of fire or explosion due to puncture of refrigerant tubing. Follow handling instructions carefully. Flammable refrigerant used. |
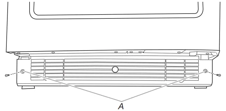
- Remove the base grille to access condenser for cleaning.
Refer “Removing Base Grille” section. - Clean the condenser coils regularly. They are located behind the base grille. Coils may need to be cleaned as often as every other month. This may help save energy.
Removing Base Grille
You must remove the base grille to access the condenser coils for cleaning.
To remove the base grille:
- Open the refrigerator door.
A. Screws - Using a Phillips screwdriver, remove the two screws.
- Remove the base grille.
To replace the base grille:
- Open the refrigerator door.
- Position the base grille so that both tabs align and the base grille snaps into place. Replace two screws. Tighten the screws.
Vacation Care
If you choose to turn the refrigerator off before you leave, follow these steps.
- Remove all food from the refrigerator.
- Unplug the refrigerator.
- Clean the refrigerator. Refer “Cleaning” section.
- Tape a rubber or wood block to the top of the door to prop it open far enough for air to get in. This stops odor and mold from building up.
Moving Care
When you are moving your refrigerator to a new home, follow these steps to prepare it for the move.
- Remove all food from the refrigerator.
- Unplug the refrigerator.
- Clean, wipe, and dry it thoroughly.
- Take out all removable parts, wrap them well, and tape them together so they don’t shift and rattle during the move.
- Tape the doors shut and tape the power cord to the refrigerator.
When you get to your new home, put everything back and refer to the “Installation Instructions” section.
TROUBLESHOOTING
Try the solutions suggested here first in order to avoid the cost of an unnecessary service call.
| Electrical Shock Hazard Plug into a grounded 3 prong outlet. Do not remove ground prong. Do not use an adapter. Do not use an extension cord. Failure to follow these instructions can result in death, fire, or electrical shock. |
| GENERAL OPERATION | Possible Causes and/or Recommended Solutions |
| Refrigerator will not operate | Power supply cord unplugged? Plug into a grounded 3 prong outlet. Is outlet working? Plug in a lamp to see if the outlet is working. Household fuse blown, or a circuit breaker tripped? Replace the fuse or reset the circuit. If the problem continues, call an electrician. Are controls on? Be sure that the refrigerator controls are on. Refer “Controls” section. |
| The motor seems to run too much | Is the temperature outside hotter than normal? Expect the motor to run longer under warm conditions. At normal temperatures, expect your motor to run about 40 % to 80 % of the time. Under warmer conditions, expect it to run even more of the time. Has a large amount of food just been added to the refrigerator? Adding a largeamount of food warms the refrigerator. It is normal for the motor to run longer in order to cool the refrigerator back down. Is the door opened often? Expect the motor to run longer when this occurs. In order to conserve energy, try to get everything you need out of the refrigerator atonce, keep food organized so it is easy to fi nd, and close the door as soon as the food is removed. Is the control set correctly for the surrounding conditions? Refer “Controls” section. Is the door closed completely? Push the door fi rmly shut. If it will not shut all the way, refer “The door will not close completely” later in this section. Are the condenser coils dirty? This obstructs air transfer and makes the motor work harder. Clean the condenser coils. Refer “Cleaning” section. |
| Temperature is too warm | Is the door opened often? Be aware that the refrigerator will warm up when this occurs. In order to keep the refrigerator cool, try to get everything you need out of the refrigerator at once, keep food organized so it is easy to fi nd, and close the door as soon as the food is removed. Has a large amount of food just been added to the refrigerator? Adding a large amount of food warms the refrigerator. It can take several hours for the refrigerator to return to the normal temperature. Is the control set correctly for the surrounding conditions? Refer “Using the Controls.” Is the base grille blocked? For best performance, do not install the refrigerator behind a cabinet door or block the base grille. |
| There is interior moisture buildup | Is the door opened often? To avoid humidity buildup, try to get everything you need out of the refrigerator at once, keep food organized so it is easy to fi nd, and close the door as soon as the food is removed. When the door is opened, humidity from the room air enters the refrigerator. The more often the door is opened, the faster humidity builds up, especially when the room itself is very humid. Is it humid? It is normal for moisture to build up inside the refrigerator when the air is humid. Is the food packaged correctly? Check that all food is securely wrapped. Wipe off damp food containers before placing in the refrigerator. Is the control set correctly for the surrounding conditions? Refer “Controls” section. |
| DOOR | Possible Causes and/or Recommended Solutions |
| The door is difficult to open | WARNING Explosion Hazard |
| The door will not close completely | Are food packages blocking the door open? Rearrange containers so that they fi t more tightly and take up less space. Are the shelves out of position? Put the shelves back into their correct positions. Refer “Refrigerator Use” for more information. Is the gasket sticking? Clean the gasket and the surface that it touches. Rub a thin coat of paraffi n wax on the gasket following cleaning. |
ASSISTANCE
If you need service:
Before calling for assistance or service, please check “Troubleshooting.” It may save you the cost of a service call.
If you still need help, follow the instructions below.
When calling, please know the purchase date and the complete model and serial number of your appliance.
This information will help us to better respond to your request. Please refer to the warranty page in this manual for more information on service.
If you need replacement parts:
Component parts should be replaced with like components and servicing should be done by factory authorized service personnel, so as to minimize the risk of possible ignition due to incorrect parts or improper service.
In the U.S.A.
Call the KitchenAid Customer eXperience Center toll free: 1-800-422-1230.
Our Consultants Provide Assistance With:
- Features and specifi cations on our full line of appliances.
- Installation information.
- Use and maintenance procedures.
- Accessory and repair parts sales.
- Specialized customer assistance (Spanish speaking, hearing impaired, limited vision, etc.).
- Referrals to local dealers, repair parts distributors, and service companies. KitchenAid designated service technicians are trained to fulfi ll the product warranty and provide after-warranty service, anywhere in the United States.
To locate the KitchenAid designated service company in your area, you can also look in your telephone directory Yellow Pages.
For Further Assistance
If you need further assistance, you can write to KitchenAid with any questions or concerns at:
KitchenAid Brand Home Appliances Customer eXperience Center 553 Benson Road
Benton Harbor, MI 49022-2692
Please include a daytime phone number in your correspondence.
In Canada
Call the KitchenAid Canada Customer eXperience Centre toll free: 1-800-807-6777.
Our Consultants Provide Assistance With:
- Features and specifi cations on our full line of appliances.
- Use and maintenance procedures.
- Accessory and repair parts sales.
- Referrals to local dealers, repair parts distributors, and services companies. KitchenAid Canada designated service technicians are trained to fulfi ll the product warranty and provide after-warranty service, anywhere in Canada.
For Further Assistance
If you need further assistance, you can write to KitchenAid
Canada with any questions or concerns at:
KitchenAid Canada
Customer eXperience Centre
200 – 6750 Century Ave.
Mississauga, Ontario L5N 0B7
Please include a daytime phone number in your correspondence.
Accessories
The following accessories are available for your wine cellar.
To order an accessory, contact us and ask for the Part Number.
In the U.S.A., visit our webpage
www.kitchenaid.com/accessories or call 1-800-442-9991.
In Canada, visit our webpage www.whirlpoolparts.ca or call 1-800-807-6777.
Stainless Steel Cleaner and Polish Order Part #4396095
®/™ ©2020 All rights reserved. Used under license in Canada.
W11515231B

A. Screw holes
NOTE: Handle needs to be installed before the custom overlay door panel has been installed on the refrigerator door.
A. M4 x 30 fl athead screws (provided in installation kit)




For your convenience, your refrigerator also has controls that are preset to recommended storage temperatures for specific products. Pressing any preset option will set the temperature value to recommended temperature for each category:
NOTES:
Allows the door of the refrigerator to be opened or closed on the Sabbath or other religious holidays without directly turning on or off any lights, digital readouts, fans, valves, tones or alarms. By selecting this feature, the temperature set points remain unchanged, but the control panel lights, interior lights, and control audio turn off. For most efficient refrigerator operation, it is recommended to exit the Sabbath Mode when it is no longer required.
Helps avoid food from spoiling by giving an audible and visual alert if the temperature rises above the preset range for 4 hours.
The refrigerator has a sensor that will turn on the interior display light automatically when someone walks by. When motion is no longer detected, the interior display light will go off after 2 minutes.


A. Screws

















