Royer Labs R-122V Vacuum Tube Ribbon Velocity Microphone

Introduction
Congratulations on your purchase of a Royer model R-122V vacuum tube ribbon microphone. The R-122V is a handcrafted precision instrument capable of delivering superior sound quality and exceptional performance. The R-122V represents a new level of performance for ribbon microphones, combining sophisticated technological advancements with old-world craftsmanship. The R-122V incorporates a vacuum tube head amplification system that operates in conjunction with a dedicated AC operated power supply. This enables the R-122V to deliver the same sensitivity and output performance that the recording industry has grown accustomed to with modern condenser microphones. In addition, the active circuitry completely isolates the ribbon element from impedance mismatches, short-circuits and other anomalies that can degrade microphone performance or damage the ribbon. The R-122V is the first professional grade ribbon microphone that utilizes vacuum tube electronics and Royer’s patented Offset Ribbon transducer assembly.
This operator’s manual describes the R-122V, its function and method of use. It also describes the care and maintenance required to ensure proper operation and long service life. The User Guide section of this manual offers practical information that is designed to maximize the performance capabilities of your microphone.
Royer Labs products are manufactured to the highest industrial standards using only the finest materials obtainable. Your model R-122V went through extensive quality control checks before leaving the factory. Normal care is all that is required to assure a lifetime of trouble-free service.
Please read this manual thoroughly in order to become familiar with all of the R-122V’s capabilities. It will assist you in making the most of your microphone’s superior acoustic properties. This operator’s manual is a handy reference guide and we suggest you refer to it whenever questions arise about the use and care of your R-122V active ribbon microphone.
Active Ribbon Technology
Royer Labs pioneered the first active ribbon microphones with the introduction of the R-122 in 2002. The R-122 is a solid-state microphone that operates from standard 48-volt simplex power. The development of that microphone was the result of several years of effort that actually began with our developing several vacuum tube versions first. The tube circuitry research was crucial to the development of the specialized audio transformer used in the R-122, and a necessary step for the development of our solid-state, phantom powered ribbon microphones. Technically speaking, Royer vacuum tube ribbon microphones predate our phantom powdered models, which are now industry standards.
The heart of the R-122V (and all Royer Active Series microphones) is a proprietary system consisting of a specially designed toroidal transformer and electronic buffering stage. These work together as a single unit to provide excellent frequency response, very low noise, very low distortion and very high SPL handling without the use of pads. The system gives the R-122V an output level comparable to that of condenser microphones, and its buffer stage provides a low impedance output while presenting a perfect impedance load to the ribbon element. Non-powered ribbon microphones suffer substantially degraded frequency response and lowered sensitivity when they are paired to a preamp with too low of an input impedance. With the R-122V’s vacuum tube circuitry, the microphone’s frequency response and output are much less affected by variations in the input impedance of the following preamp.
Sonically, the R-122V differs from the non-powered R-121 and the phantom powered R-122 in a few subtle, but significant, ways. Due to the extra iron in the R-122V’s much larger transformer, low-end frequencies sound slightly tighter and more focused than with the R-121 (the R-122 also utilizes this special Royer designed transformer). Compared with that of the R-121, the transient response of the R-122 and R-122V is faster, giving the sense of a more open high-end response.
Sonically, the R-122V is set apart by its increased midrange reach and detail, and a lushness that is hard to describe. The R-122V also has an enormous amount of headroom available, making it useful on extremely loud applications. Phantom powered microphones are limited with regard to maximum headroom as a result of the phantom power source. With the vacuum tube design, greater headroom is achievable because the voltage source is supplied by a dedicated power supply. The vacuum tube operates with a supply voltage greater than twice that of a phantom powered microphone. The vacuum tube also provides the extremely high input impedance required for the specialized ribbon matching transformer and offers transient response superior to any solid-state component.
Key points:
- No longer is it necessary to mate a ribbon microphone to an ultrahigh gain, low noise preamplifier for optimum performance. Any preamplifier of nominal gain will provide good results with the R-122V.
- No longer is it necessary to carefully consider impedance matching characteristics when choosing a preamplifier. Microphone loading is a non-issue (although we still suggest that the load is above 2,000-ohms for optimum technical performance).
- No longer is it necessary to be concerned about damaging the ribbon element with phantom power. The vacuum tube electronics completely isolate the ribbon element.
- No longer is it necessary to worry about the effects of long cable runs degrading the performance of your ribbon microphone. The vacuum tube electronics provide a robust low impedance signal that can handle long cable lengths without loss of signal.
Description
The R-122V is a compact, active, bi-directional (figure-eight) velocity type tube ribbon microphone designed for professional applications. The figure-eight pickup pattern allows the R-122V to be addressed from either side with equal sensitivity. The in-phase signal is achieved when the microphone is addressed from the front, indicated by the “ROYER” logo.
The R-122V is reasonably tolerant of shock and vibration, and performance is unaffected by changes in temperature or humidity. However, ribbon microphones are somewhat more sensitive to direct blasts of air and the R-122V is no exception to this rule. Discretionary use of a windscreen or pop screen, such as the Royer PS-101, WS58 or equivalent, is highly recommended for close-miking vocalists or certain types of percussion and wind instruments.
Applications
The Royer Labs model R-122V is a versatile microphone and is ideally suited for many critical recording applications. Its smooth frequency response characteristics and ability to capture detail make it a fine choice for many instruments, as well as for general broadcast applications. Its gentle low-frequency proximity effect makes it especially useful for vocalists and announcers. Female vocalists often benefit from the R-122V’s ability to capture high frequencies without distortion or edginess. Orchestral instruments are captured in a natural-sounding way, free from microphone-induced “hype.” The R-122V has exceptionally smooth high frequency characteristics and is devoid of microphone induced ringing. Phase-related distortion and irregular frequency peaks are conspicuously absent. These features make the R-122V vacuum tube ribbon microphone an ideal choice for strings, woodwinds, percussion and amplified instruments. Theater organs and electric guitar amplifiers sound big and fat, without unnatural coloration, when recorded with the R-122V. Acoustic pianos can be captured accurately without the comb-filtering effects associated with condenser microphones.
Ribbons in the Digital World
Digital recordings benefit greatly from the properties inherent in ribbon microphones. Since A to D converters cannot distinguish between the sound source being recorded and the complex distortion components often associated with condenser microphones, they sometimes have difficulty tracking the signal, resulting in ringing and edgy-sounding tracks. With quality ribbon microphones, ringing is almost nonexistent due to the ribbon’s lack of distortion artifacts and high frequency peaks. A to D converters have less difficulty tracking the ribbon-generated signal, resulting in very smooth digital recordings free of microphone-related edginess.
User Guide
Using the R-122V vacuum tube Ribbon Microphone
The head amplification system used in the R-122V consists of a sub-miniature military grade vacuum tube configured as a cathode follower. This circuit arrangement offers ideal impedance matching properties and very high headroom. The vacuum tube is powered from a dedicated power supply that supplies high voltage B+ and heater current through the microphone cable. The tube’s heater supply is a “constant current” design that enables the tube to perform correctly, even with microphone cables of varying lengths.
To ensure long service life for your R-122V vacuum tube ribbon microphone, care should be taken when connecting the microphone to its power supply. We have prepared a few tips to ensure that your R-122V ribbon microphone will perform perfectly for many years; a general set of good habits that apply to both tube ribbon microphones and tube condenser microphones.
CAUTION! Before plugging your power supply into an AC source, confirm that the VOLTAGE SELECTOR SWITCH is in the correct position for the country in which it will be used. Failure to follow this procedure may result in a blown fuse or damage to your microphone.
The microphone must be plugged into the power supply via the 7-pin cable before the supply is turned on. Do not operate the power supply without the microphone connected!
- Always be certain that the correct microphone cable is used with the microphone, and that the cable is in good serviceable order. The R-122V uses a 7-pin cable configuration that provides the tube’s working voltages and carries the audio signal to the preamplifier. The cable is specific to Royer products and may not be substituted with a cable from another manufacturer unless the pin out and wiring configuration are identical to the R-122V’s cable.
The audio output signal is available at the power supply and utilizes a standard 3-pin configuration where a shield ground is carried through Pin-1, and a balanced differential signal carried along Pins-2 and 3. Pin-2 is signal hot (positive) and Pin-3 is signal cold (negative). - Although it is usually safe to “hot plug” most phantom powered and passive microphones to a preamplifier or console with the phantom activated, we suggest that you de-activate the phantom power prior to plugging the microphone to the cable, if possible. This reduces the possibility of loud pops being transmitted to your monitor speakers should the volume control be raised. Serious damage to your speakers could result from this mistake.
- Be certain that the input channel fader or volume control is set to minimum before plugging in any microphone. Preamplifier gain trim should be set to minimum.
- Vacuum tube circuits require several minutes to stabilize. The R-122V’s power supply ramps up power to the microphone slowly, minimizing stress on the microphone’s electronics and extending the life of the tube. We recommend letting the R-122V warm up for at least 15 minutes prior to use. When the microphone becomes operational, bring the channel fader to 0-dB (unity) and use the trim to set the desired level. This technique maximizes the signal-to-noise performance of the preamplifier or console input channel.
- When disconnecting the microphone, bring the channel fader down, turn the R122V’s power supply OFF and unplug the microphone cable from the power supply.
- If the studio has the microphone lines brought to a patch bay (tie lines), never crosspatch a microphone line when phantom is applied or the monitor volume is raised. This could cause damage to your monitor speakers or, if passive ribbon microphones are involved, it could cause ribbon failure.
Power Supply Input Module 
The power OFF/ON switch and the Power Input Module are located on the rear side of the power supply (Image 1). The Power Input Module (Image 2) serves multiple functions, and is integral to the design of the power supply. It serves as a means to connect and remove the AC mains cable, it houses the AC line fuses, provides a convenient method of voltage changeover, and also serves as an RF line filter.
AC power is supplied to the unit via a removable IEC type business machine cable that plugs into the bottom section of the Power Input Module. The power cord must be removed to gain access to the door to change fuses or set the unit to a different AC input voltage.
Fuse replacement
Two fuses are used to protect the circuitry of the power supply, one on each side of the mains line. To inspect or replace the line fuses (necessary when changing voltage settings), first remove the power cord. Insert a medium size flat-blade screwdriver into the lip at the top of the module and gently pry the door open (Image 3). Be careful not to damage the The fuses are located inside two carriers, each marked with an arrow pointing to the right. These carriers can be pulled out with the tip of a screwdriver blade or a pair of needle nose pliers (Image 4). Once the carriers are removed, the fuses can be pulled out with your fingers. Replacing the fuse carriers is the reverse of removal. They can only be inserted with the arrow facing to the right and they should go in very easily.CAUTION! Never attempt to bypass a fuse or use one of a higher rating! Not only is this an unsafe practice, but it will void the factory warranty.
Voltage Changeover
The power supply can be set to operate from voltages ranging from 100 to 240 volts AC. For 230V operation, use the 240V setting. A small window at the rear of the Input Power Module will display the current voltage setting. To change operation to a different AC voltage requires repositioning a selector drum within the module. Remove the power cord and open the module door in the same manner as to access the fuses. The drum can be removed with a small pair of needle nosed pliers or the thumb and forefinger (Image 5). Rotate the drum for the desired voltage so that the selected voltage will appear in the window of the module (Image 6). Gently push the drum back into position and close the door. The door will snap shut when fully closed.
It is important to note that changing voltage settings also requires changing the fuses to different values. The correct values can be found in the specifications section of this manual.
Operation
There are a few important facts about ribbon microphones that are key in understanding how to use them intelligently.
- The R-122V is a side address, bi-directional microphone and it’s rejection in the “dead” areas is very strong. Due to this directionality, the R-122 should be placed at 1.3 times the distance normally used with omni-directional microphones, or at about the same distance used for cardioid microphones. This method is used to achieve the same ratio of direct to reflected sound.
- In the horizontal plane, the R-122V does not discriminate against the highs off axis; nor does it boost highs on axis. Therefore, several instruments or vocalists can be placed in front of the microphone without favoring the performer positioned in the center of the group. Several performers can be grouped at both the front and back of the microphone, with one proviso: since the outputs are out of phase at the front and back of the microphone, cancellation can result if, for example, two tenors are placed at opposite sides at equal distances and they are singing in unison, so listen to the feed before committing to it.
- 3. When using the R-122V to record loud signal sources, placing the microphone slightly off axis relative to the signal source (either horizontally or vertically) minimizes the effect of high pressure sound levels displacing and possibly damaging the ribbon element.
- Always provide adequate protection for your R-122V, or any ribbon microphone. If the microphone is to remain set up on a stand when not in use, place a “mic sock” (supplied with every Royer microphone) over it until it is to be used. Do not carry the microphone around without placing a mic sock over it. Failure to follow this commonsense practice may yield a stretched ribbon and compromised performance.
- Do not allow the microphone to be dropped on hard surfaces such as floors or tables depending on how the mic falls, the ribbon could be stretched. The microphone would likely continue to operate, but performance could be compromised and re-ribboning the microphone would be necessary to restore normal operation.
Amplification Considerations
Almost any quality microphone preamplifier with nominal gain characteristics will give excellent results with your R-122V vacuum tube ribbon microphone. Unlike standard ribbon microphones that require a proper impedance match to deliver optimal performance, the input impedance of your preamplifier will have minimal affect on the R-122V’s operational performance because the ribbon element is loaded perfectly via the microphone’s electronics package. However, preamplifier impedances below 2,000-ohms will impair headroom.
Careful consideration should be given to the quality of the microphone preamplifier. Studio-grade preamplifiers generally sound much better than cheap ones. Headroom, noise floor, transparency and coloration are all factors to consider in determining which preamplifier is most suitable for your studio or live sound application. Other features are usually secondary and fall into the category of conveniences or interface capabilities (such as digital or optical outputs).
A good preamplifier should sound natural, with no sign of edginess or excessive noise. Vacuum tube preamplifiers sound warm, yet wonderfully airy and transparent. Do not expect a vacuum tube preamplifier to be as quiet as a solid-state preamp, as electron emissions from tubes tend to convey more “thermal” noise than transistors. Tube preamplifier noise is far less of an issue with the R-122V than with conventional ribbon microphones because the R-122V’s high output will largely override the noise. Transformer coupled designs tend to sound punchy and full-bodied and offer the added benefit of true electronic isolation. This greatly enhances their ability to interface with other equipment with minimal noise or hum. There are many excellent preamplifiers on the market today. Choose one that fits your budget and offers good performance, but remember that you get what you pay for. If you have the opportunity to audition one or more preamplifiers before you buy one, do so. Microphones and preamplifiers work together like a team and some are better matches than others.
The R-122V vacuum tube ribbon microphone is capable of substantial output signal, especially if used in conjunction with very loud signal sources such as guitar amplifiers. It is therefore recommended that the microphone preamplifier have a switchable pad to prevent the possibility of overloading the preamplifier’s input stage electronics. Some preamplifiers are more thoughtfully designed than others, and a suitable pad will be provided before the active electronics, not incorporated into a “feedback loop” as with some cheaper models. Even with the pad engaged, a poorly designed preamplifier can still produce unwanted distortion due to overloading.
With variable input impedance preamplifiers, a good rule of thumb is to set the Z-switch for the highest input impedance.
In conclusion, preamplifier coloration is optional and a matter of personal taste. Some engineers enjoy the effect of coloration while others strive for absolute transparency.
Equalization & Ribbon Microphones
One of the great strengths of ribbon microphones is how well they take EQ. Even with substantial amounts of equalization, ribbons retain their natural, “real” quality. For example, when a lead vocal is being performed on an R-122V, you can actually boost upper-end frequencies to the point where the R-122V emulates the performance curve of a condenser mic with excellent results. This is not to say that ribbon microphones can replace quality condenser mics in all circumstances, but the EQ friendliness inherent in ribbon microphones does allow for an enormous amount of flexibility.
Ribbon mics take EQ extremely well due to their inherent low self-noise (less than 15dB), unusually smooth response characteristics, and freedom from off-axis coloration. Dialing in high amounts of equalization on condenser or dynamic microphones brings up equal amounts of the microphone’s distortion products and noise; garbage that contributes to an unnatural, unpleasant sound. Because distortion and self-noise are almost nonexistent in quality ribbon microphones, high levels of EQ can be used without adding harshness or excessive noise.
Hum, Noise & Mic Orientation
All dynamic microphones, including ribbons, are electromagnetic devices and are, to some degree, susceptible to picking up stray EMF (electro-magnetic fields). Power transformers (such as those found in guitar amplifiers) and alternating current motors are the most likely sources of radiated noise. Building wiring and electrical utility transformers are other likely sources. A well-designed microphone provides shielding to minimize the effects of stray magnetic radiation. In severe cases complete isolation is impossible and the result is hum or buzz. Passive ribbon microphones can potentially manifest this condition to a greater degree because of their higher gain requirements. Even an active ribbon microphone like the R-122V is not completely immune to this phenomenon. Vintage ribbon microphones often have poor shielding and the problem can be worse. The cure for this problem is to identify the source of the noise and move the microphone away from it. Another trick is to alter the orientation of the microphone in such a way that the noise is cancelled out. If you ever experience this situation while in the studio, try rotating the microphone to identify the “null” point, and then reposition the mic and the sound source. This is much like having a guitar player with single coil pickups turn around until amplifier hum disappears.
Another source of noise can be traced to the microphone cable and its proximity to a noise generating source. Electromagnetically induced noise can effectively be eliminated in cables simply by moving the cable away from the offending source.
The Sweet Spot
Finding and Working with the Sweet Spot
Good engineers know the importance and benefits of finding and working with the “sweet spot” of a given microphone. The sweet spot is usually defined as the optimum placement (working distance and angular position) of any microphone relative to the sound source.
Each microphone has its own sweet spot, whether it is a ribbon, dynamic or condenser type. The sweet spot will vary with the type of sound source and its volume intensity, the polar pattern of the microphone and how consistent it is with frequency, and the acoustic environment.
Being in the sweet spot means the microphone and the sound source are in a harmony of sorts; the acoustic information is exciting the microphone in such a fashion that the resulting reproduction is very desirable, usually without the need for additional equalization or electronic manipulation. There are only general rules as to where the sweet spot may be found for any given microphone, and usually experimentation reveals it. The sweet spot can be extremely variable since it depends on the quirks of a given microphone and acoustics of a given room. Once the sweet spot is discovered, this placement can become a rule of thumb starting point for future microphone placement with similar sound sources. Remember this; if it sounds good, it’s probably right. If it doesn’t, move the microphone. It’s almost always more effective to reposition the microphone than to start fiddling with knobs. Knob twisting can affect headroom and phase coherency and add unwanted noise.
The following is a list of variables that account for “sweet spot” effect.
- Frequency response variations due to proximity effect.
- Frequency response variation due to treble losses as a result of absorption and “narrowing” of the pattern at high frequencies, causing weakening of highs as the microphone is moved away from the sound source.
- Variation in ratio of direct to reverberant sound. Tendency of a microphone to favor the nearest sound source due to a combination of these items, plus the influence of the inverse square law. The inverse square law states that for each halving of source-to-microphone distance, the sound pressure level quadruples.
Other Types of Microphones
For the same ratio of direct to reverberant sound, omni-directional microphones must be closer to the sound source than cardioid or bi-directional microphones. Microphones should generally face the sound source head-on; if not, treble losses due to phase cancellation can result. The exception here is for large diaphragm condenser microphones, which often give the flattest response at an angle of about 10-20 degrees (off axis), where phase loss and diffraction effect offset each other somewhat.
Proximity Effect and Working Distance
The Sound That Is “More Real than Real”
Ribbon microphones have long been renowned for rich bass. This effect is largely due to the fact that ribbon microphones generally have excellent bass response to begin with, and at the same time exhibit an effect known as proximity effect.
As illustrated in the following graph, a typical bi-directional ribbon microphone will have a flat frequency response at a distance of about six feet from the microphone, but at shorter distances the bass response becomes boosted; the effect becomes increasingly pronounced as the distance between the microphone and the sound source is reduced.
This bass-boosting characteristic can become quite intense and, if desired, can be corrected by equalization. However, for a multiple microphone setup, the pronounced bass boosting (due to proximity effect) can be turned to an advantage. If an instrument, such as a trumpet, is extremely close-miked and the bass is cut to restore flat response, unwanted low-frequency sounds are cut back by upwards of 20dB compared to an unequalized microphone with a flat response. This discrimination is independent of the microphone’s polar response.
Another area where proximity effect can be turned to an advantage is to make things sound more “real than real.” For example, many voices and certain musical instruments produce fundamental frequencies within the bass range (below 150Hz or so) but the fundamentals are weak. If a microphone that has no proximity effect and a rising high frequency response is used on an upright piano, or on a person with a thin, weak voice, the recorded sound is likely to sound even thinner than it was in real life. In contrast, using a microphone with strong proximity effect on such sound sources can deliver a “better than real” sound, since the boosted bass response will compensate for the weak fundamentals in the sound source. Since the fundamentals are present, but weakened, boosting them by several dB will sound natural, even though the sound has been sweetened.
Radio and television announcers have long relied on proximity effect to give a full, rich, authoritative quality to their voices. By knowing how to work with the proximity effect, the engineer can get several useful effects without resorting to an outboard unit.
Microphone Techniques
General Tips for Using the Royer R-122V
The following are good basic starting places for recording with the R-122V. These positions are known to produce good results, but experimentation is the key to getting the most out of your recordings! Photographs of many of the following techniques can be found at www.royerlabs.com.
- Brass Instruments and R-122V go together very well. Mic the instrument from a distance of a couple of feet, and increase the working distance a little if several instruments are being used.
- Reed Instruments sound full and never edgy when captured with an R-122V. Normal working distances are about a foot or two from the instrument.
- Strings sound very sweet and clean when recorded with R-122Vs. Place the microphone several feet from the instrument. For larger string sections, try placing the microphone slightly above the instrumentalists and angled down; a distance of three or four feet will do the trick nicely.
- Pianos sound excellent when recorded with R-122Vs and are free of phase-related comb filtering. The bass is full and rich while the top remains clean with no clatter. Mic the piano at a distance of one foot to several feet, depending on taste. A more direct “up front” sound will be achieved when the microphone is placed closer to the soundboard.
For capturing a piano in stereo, place a pair of R-122Vs apart, one over the bass strings and the other over the high strings. The farther the mics are from each other, the wider the stereo spread. For a more direct stereo effect, the microphones may be placed in an X-Y pattern a couple of feet from the center of the soundboard. - Amplified Instruments should be miked from a distance of 6-8 inches or more. The smooth undistorted response of a ribbon microphone is very useful for electric guitars and electric bass. The response of the R-122V is particularly lush on electric guitar. Since guitar amplifier speakers are often beamy, experiment with mic placement to find just the right spot. Placing the mic at greater distances from the speaker cabinet adds more room ambience to the mix. You will find that the R-122V does not add undesirable elements to the sound. Basically, what you hear at the amp is what you get in the control room and in your recordings.
- Choirs and Orchestras can be picked up well using a pair of R-122V’s. Place the microphones at a height of ten feet or so and a few feet behind the conductor. The microphones should be spaced apart approximately one foot and angled, one toward the left and one toward the right, or in the classic Blumlein configuration.
- Drums and Percussion instruments sound full-bodied and natural when recorded with a pair of R-122Vs. For a drum set, placing the microphone(s) at a distance of four to six feet above the kit works very well without making the cymbals sound splattered. A kick drum should be miked at a distance of at least 18 inches and possibly used in conjunction with a pop filter to prevent excessive ribbon movement. If the front head has a hole cut in it, position the microphone away from the hole to avoid excessive air blasts. An R-122V used as a mono room mic, four to six feet in front of the kit and compressed, will yield a surprisingly large, full drum sound.
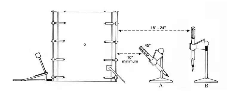
For closer miking of a kick drum (10 to 18 inches), the microphone should be leaned forward at a 45-degree angle to protect the ribbon element from excessive plosive forces (See Example 3).
This microphone position also provides good kick drum isolation because the top of the microphone, which does not pick up sound, is aimed at the rest of drum kit. - Recording Loud or Plosive Sounds
With all ribbon microphones, wind is the enemy! Air movement is far more damaging to ribbon microphones than high SPL’s. Some sound sources can generate powerful blasts of air that should be avoided. Kick drums and electric guitar and bass cabinets are typical examples of sound sources that can produce harmful air currents. One way to determine if the air pressure is excessive is to place your hand in front of the sound source (the kick drum, the guitar cab, etc.) and see if you can feel actual air movement. If you feel air movement, do not put your ribbon microphone there.
A simple technique that can avert damage due to over-stressing the ribbon is as follows: After choosing the optimum placement for the microphone, slightly angle the microphone in such a way that the percussive wave is not directed head on at the front of the mic. Often, a slight angular tilt (either vertically or horizontally) is all that is required to prevent harm to the ribbon (see examples 1, 2 and 4). It should be noted that as the microphone is tilted vertically, relative to the sound source, the highs will begin to roll off.
Example of the Vertical Positioning Technique
Slight off-axis positioning will minimize stressing the ribbon on loud sound sources
Example of Horizontal PositionTechnique
Angling the microphone slightly will minimize stressing the ribbon. Due to the microphone’s pick-up pattern, sound will not be affected
Side View of Kick Drum miking Technique
- A) Close miking – angle mic so that pressure wave iss off-axis
- B) Standard miking position
Horizontal Positioning Technique
Applied to kick drum – similar to that utilized for other loud or percussive instruments 
Stereophonic Microphone Techniques
Classic Blumlein Technique
For many years, several “coincident” microphone setups have been widely used for picking up sounds in stereo as naturally as possible. 
Classic Blumlein or coincident miking technique
The “Blumlein” technique, named for A.D. Blumlein of England, involves the use of two figure-eight microphones positioned as in the sketch (see Figure 1), so that one faces left and the other right, at an angle of 90 degrees (i.e. each displaced 45 degrees from center).
Each microphone ultimately feeds one speaker in a stereo system, and due to the directionality of the microphones, the result is a very well defined stereo effect on playback. For classical music, particularly, the reproduction can be very satisfying.
Mid-Side (M-S) Technique
In the early days of stereo radio broadcasting, the mid-side recording technique was developed to allow for 1) simultaneous stereo and mono feeds from the same mic array and 2) electronic manipulation of the width of the stereo image.
In M-S recording, one mic faces sideways, one faces forward as shown in Figure 2, and they are connected as shown in Figure 3.
If the outputs of the two microphones are equal (or made equal using gain controls), the stereo pickup will be similar to that of two microphones placed as a Blumlein X-Y pair, delivering a wide stereo image.
As you reduce the level of the “side” microphone, the width of the stereo image will narrow until, with the side microphone turned all the way down, you have just the “mid” mic panned center for a mono pickup.
If the outputs of the “mid” and “side” microphones are recorded on separate tracks, the electrical connections shown in Figure 3 can be made at the mixer outputs and the adjustment of the stereo separation can be done during mixdown, rather than during the actual recording.
Specialized Recording Techniques
Recording on the Back Side of the R-122V
The R-122V incorporates an “offset ribbon” design that enables it to handle high sound pressure levels such as those produced by loud guitar amplifiers and other instruments. An interesting phenomenon as a result of this offset ribbon construction is that the R-122V records slightly brighter on its back side than on its front (logo) side, when the microphone is three feet or closer to the sound source. This can be extremely useful when a brighter response is desirable, such as when recording acoustic instruments or vocalists.
When recording vocals on either side of an R-122V, a quality pop filter (such as the Royer PS-101 metal pop screen) is essential to protect the ribbon element from wind blasts. As with any figure-8 microphone, the front side of the R-122V is in-phase and the back side is out-of-phase. We suggest that you reverse the phase polarity on your microphone preamplifier to achieve in-phase recordings when tracking on the back side of an R-122V.
Normal proximity effect (increase of bass), which is prevalent on the R-122V and all ribbon microphones, starts to occur normally at 4-6 feet from the microphone and increases with closeness. Vocalists and voice-over talents often work the microphone closely to take advantage of proximity effect, which gives an authoritative quality or rich texture to their voice.
Cautionary Note:
It is important to note that the SPL handling capability of the rear side of the R-122V is lower than its front side. The R-122V is rated for 135dB SPL on its front side, but recordings on the rear side should not exceed 115dB SPL. When tracking loud sounds on the front side, the R-122V’s offset-ribbon design allows ample space for rearward excursions of the ribbon element. However, tracking on the back side causes the ribbon to move forward towards the front side of the microphone, where the internal dampening screen is much closer to the ribbon element. Rear-side recordings of loud, low-frequency sounds, or vocalists with no pop filter, can drive the ribbon into the front dampening screen, creating noise and possibly damaging the ribbon element. Limit back side recording on your R-122V to lower SPL sound sources.
Care & Maintenance
The R-122V is a well-built, precision instrument. All that is required to ensure proper operation of this microphone is to follow some commonsense rules.
- Avoid transducer damage by not exposing the microphone to severe shock or vibration. If the microphone is accidentally dropped, test it to see if damage has occurred before returning it to service. Low output or a dull sound would indicate a stretched ribbon.
- Do not expose the microphone to direct blasts of air or strong air currents! Use a windscreen or suitable pop filter when close miking a vocalist or certain types of wind instruments. P-popping does not necessarily damage the ribbon element but may produce unacceptable preamplifier overload and could cause damage to speaker systems.
- Do not expose the microphone to liquids or caustic smoke.
- Do not expose the microphone to strong EMF (electro-magnetic fields), such as the power transformers in amps, or hum may result.
- Use a soft cloth to clean the microphone body. A small amount of denatured alcohol can be used to remove fingerprints and other stains.
- Keep metal filings away from the microphone at all times. The R-122V’s strong magnets can attract even the smallest metal particles into the ribbon transducer, which can result in compromised performance and the need for a re-ribbon.
- When not in use, store the microphone, power supply and cabling in it’s protective case.
- Leave disassembly of the microphone to a trained technician. Disassembly of the microphone will void your warranty. There are no user-serviceable parts inside.
- The R-122V’s power supply has no user serviceable parts inside so do not attempt to make repairs. There are lethal voltages present that can cause serious injury if mishandled. Leave servicing to a qualified electronic technician.
The vacuum tube located inside the microphone body is a sub-miniature type that is permanently wired into place. The mil-spec 5840 tube has a minimum service life of over 50,000 hours, so tube failure is highly unlikely. However, if the microphone should develop a vacuum tube related problem, it must be returned to the factory for service.
Voltage Conversion
The R-122V is energized from a dedicated power supply that operates from an AC voltage source. The supply can be configured to operate with the following voltages:
100-120 Volts 50-60HZ
220-240 Volts 50-60HZ
Fuse Replacement
The AC line fuse is located within the IEC power connector. Your power supply was shipped with a fuse rating suitable for the country in which it was sold. Should the fuse require replacement, two types are used.
200-ma, Slow-Blow type for 100-120 volt operation
100-ma, Slow-Blow type for 220-240 volt operation
If when replacing a blown fuse the new fuse blows, your power supply must be serviced. Never substitute a larger size fuse in an attempt to make a faulty power supply work! This invalidates the R-122V’s lifetime warranty and could precipitate a fire, shock or other health hazard.
R-122V CABLE PINOUT
7-Pin XLR Function Specifics:
- Pin 1 Ground
- Pin 2 Signal Hot (+) (unbalanced)
- Pin 3 No Connection (open)
- Pin 4 High DC Plate Supply (approximately
- Voltage 135-VDC)
- Pin 5 Heater supply (6-Volts DC)
- Pin 6 Ground
- Pin 7 No Connection (open)
(See page 8 for complete instructions on changing fuses and voltage)
Caution!
Keep recorded tapes, spring-wound watches, and personal credit cards using magnetic coding away from the microphone to prevent possible damage to them caused by the transducer’s powerful magnets.
Troubleshooting
Most troubleshooting issues can be traced to some form of pilot error, so we’ll cover the obvious first. If the microphone produces no output whatsoever, establish that the cables are properly connected and that none of the pins in the 7-pin cable-set are damaged, bent or missing. This also applies to the 7-pin male connector at the bottom of the microphone. Make sure that the power supply is connected and set to the proper voltage. The pilot light should illuminate when the power switch is turned on. In addition a small ballast lamp located at the base of the microphone should also glow dimly.
If the power supply fails to power up, check the fuse. The safety fuse should fail only if a problem is present. If the power supply blows a fuse, check the cable set for damage. If none is found, make sure the fuse is of the correct type. Make certain the power supply is set to the correct voltage for your area. If the supply still refuses to power up, contact the factory.
If the supply and microphone indicate that power is being supplied properly but the mic still produces no sound, make sure the preamplifier is working properly and that the 3-pin microphone cable is in good working order. Use another microphone to establish that the signal path is indeed working. If this fails to resolve the problem, contact the factory.
If the mic works but is noisy or has low output, there could be a problem with the ribbon element or the vacuum tube. In either case, the microphone is not user serviceable and repairs should be directed to an authorized service center.
Features
- Very high overload characteristics – maximum SPL greater than 135dB
- Vacuum tube electronics offer greatly enhanced output and constant, optimized impedance to the ribbon element
- Extremely low residual noise
- Ribbon element is unaffected by heat or humidity
- Absence of high frequency phase distortion
- Excellent phase linearity – even off axis
- Equal sensitivity from front or back of element
- Consistent frequency response regardless of distance
- Compact size
Electrical Specifications
- Acoustic Operating Principle: Electro-dynamic pressure gradient
- Polar Pattern: Figure-8
- Generating Element: 2.5 micron aluminum ribbon
- Frequency Range: 30HZ – 15,000HZ ± 3dB
- Sensitivity: -36dBv Ref 1 v/pa
- Self Noise: <18dB
- Output Impedance: 200 Ohms balanced
- Rated Load Impedance: 1000 Ohms minimum
- Maximum SPL: > 135dB
- Microphone Cable: 7-Pin male to female XLR
- Output Connector: Male XLR 3 pin (pin 2 hot)
- Vacuum Tube: 5840-W miniature type with wire leads
- Power Requirements: 100-120 VAC 50-60HZ, 220-240 VAC 50-60HZ
- Fuse Type (2 Slo-Blo): Located in IEC power connector 200-ma for 110-120 volts, 100-ma for 220-240-volts
All Royer monaural microphones are also available in matched pairs.
Mechanical Specifications
High-grade Neodymium magnet assembly in Royer’s patented Flux-Frame 1.5” x 3/16” x 2.5-micron ribbon assembly Stainless steel internal baffle and dampener
- Dimensions: 206 mm L x 25 mm W (8-1/8” L x 1” W)
- Microphone Weight: 10.2 oz, 290 g
- Power Supply Weight: 3.5 lbs, 1.6 Kg
- Shipping Weight: 15.5 lbs, 7 Kg
- Finish: Dull Satin Nickel, Matte Black Chrome or Gold Plate
- Accessories: Dedicated power supply, 7-Pin microphone cable, AC line cord, protective wooden case, protective mic sock, RSM-1 shock-mount, camera style carrying case, instructions and documentation.
Polar Pattern
To learn more about Royer products and their usage, visit our website at www.royerlabs.com.
Warranty
PLEASE RETAIN YOUR ORIGINAL BILL OF SALE AS YOU WILL NEED TO PRESENT IT SHOULD YOU REQUIRE SERVICE UNDER THIS WARRANTY.
TO VALIDATE THIS WARRANTY, THE REGISTRATION CARD AND A PHOTOCOPY OF THE SALES RECEIPT FROM AN AUTHORIZED ROYER DEALER MUST BE ON FILE WITH ROYER LABS.
Royer Labs warrants all Royer products sold by Royer Labs’ authorized dealers and/or distributors worldwide with the following terms and conditions.
WARRANTY PERIOD
- 10-year full warranty coverage on materials, workmanship, and finishes to the original owner.
- Ribbon Element – First re-ribbon free to the original owner within one year of purchase.
- Extended Ribbon Element policy – First re-ribbon free within five years of purchase if the microphone is registered by the original owner within one year of purchase. Microphones must be registered within one year of purchase for extended ribbon element warranty coverage.
SCOPE OF WARRANTY:
From the date of original purchase and for the respective periods specified above, Royer Labs agrees to repair all Royer Labs products which are defective in material and workmanship.
EXCLUSIONS:
This warranty does not apply in the event of the following:
- Defects or damage caused by accident, fire, flood, lightning or other acts of nature.
- Defects or damage caused by abuse, misuse, negligence or failure to observe the instructions contained in
- the owner’s manual furnished at the time of original purchase.
- Products that have been altered or repaired by anyone other than a Royer Labs authorized service facility.
- This warranty applies to the original owner only and is not transferable.
- Normal wear and tear of the finish.
OBTAINING WARRANTY SERVICE:
Warranty service is provided by Royer Labs or Royer Labs authorized repair facilities. All products returned for warranty or repair service must be accompanied by a Royer Labs Repair Authorization Form. These forms are available on our website at:
US Repair Authorization Form – contact Royer for RA number
Non-US Repair Authorization Form – contact Royer for RA number
The product(s) must be returned in original packaging, or packaged as shown in the Repair & Service section of our website. Royer Labs is not responsible for warranty or service-related shipping charges.
ROYER Labs
2711 Empire Ave.
Burbank, California 91504
Telephone 818.847.0121
www.royerlabs.com






















