MONOGRAM ZISB480DN 48 Inch Built-In Side-By-Side Refrigerator
WIFI CONNECT
Enjoy the convenience and freedom of wirelessly controlling functions from your smartphone
LED LIGHTING
Light columns in the freezer and fresh food compartments extend the full length of the interior and LED lighting located inside the vegetable and climate-control drawers illuminate contents without compromising space
COLOR-MATCHED DISPENSER WITH PROXIMITY SENSOR
Designed to accommodate glassware of all sizes, from pitchers to tumblers; control graphics light up as you approach and automatically switch off when
GE® WATER FILTER
Has been moved from the fresh food compartment to the overhead cabinet, where it is discreetly out of sight
DELI DRAWER ON FULL-EXTENSION SLIDES
Keeps meats, cheeses and other everyday foods within easy reach For questions about your.
SEALED VEGETABLE DRAWER
Helps preserve the freshness of foods
ADJUSTABLE GLASS SHELVES
Easily accommodate party trays and platters
GALLON-SIZE DOOR BIN
Holds milk containers, two-liter bottles and pitchers
ADJUSTABLE DOOR BINS
Can be moved to one of two positions in seven locations
DAIRY BIN WITH CENTER DIVIDER
Has a unique magnetic seal that locks in freshness
FILTER-CHANGE INDICATOR LIGHT
Located on the upfront control panel, provides a visual reminder when it’s time to replace the filter for the water dispenser
SABBATH MODE
Designed to disable functions in accordance with Sabbath-observing practice.
SECTION 1
STANDARD INSTALLATION
1/4″ FRAMED PANELS 3/4″ OVERLAY PANELS
SECTION 2
FLUSH INSET INSTALLATION
SPECIFICATIONS
- Overall Width 48″ (12192 cm)
- Overall Height 84″ (213.36 cm)
- Overall Depth 25 3/4″ (654 cm)
- Door Clearance 28 5/8″ (72.l cm)
- Cutout Width 47 1/2″ (1207 cm)
- Cutout Height 84±.500 (212.l – 214.6 cm)
- Cutout Depth 24″ (61 cm)
- Plumbing Requirements 1/4″ OD copper tubing or GE
- Smart Connect kit
- Shipping Weight 775 lb
ATTENTION ELECTRICIAN:
A 115 volt 60Hz., 15 or 20 amp power supply is required. An individual properly grounded branch circuit or circuit breaker is recommended. Install a properly grounded 3-prong electrical receptacle recessed into the back wall.
STANDARD INSTALLATION
Shipping height. Use leveling legs and wheels for maximum 1″ height adjustment from shipping height.
These refrigerators are equipped with a 3-position door stop. The factory-set 115° door swing can be adjusted to 90° if clearances to adjacent cabinets or walls is restricted. Allow full 130° door swings for pan removal. If the 90° door stop position is used, pan access is maintained, but pan removal is restricted. Dimensions based on custom handle height of 2 9/16″ (6.5).
The refrigerator will project forward, slightly beyond adjacent cabinetry
ANTI-TIP BRACKET
HELPFUL TIPS
- Mounting the junction box in this location will also allow for front accessibility through access panel.
- Water supply area.
WARNING:
The refrigerator is top heavy and must be secured to prevent the possibility of tipping forward.
Failure to do so may result in death or serious injury.
The information below is for cabinet design only. When installing the anti-tip system you must use the product installation instructions.
Determine your installation construction and required anti-tip configuration:
Installed Under Soffit
After installing unit into installation opening, raise grille panel and screw metal case sides to adjacent cabinet. When installed under a so flit, the so flit cannot exceed 2411 deep. The top case trim overlaps the bottom of the so flit.
- Wooden Wall Studs and No So flit
- Cut a 211 x 411 block and secure to brackets provided.
- Secure brackets to back wall of opening at 84 11 or your installation height from the floor.
- Metal Wall Studs and No So flit This method requires securely fastened cabinets on both sides and a 3/411 minimum wood brace above unit, with it’s front surface 2411 from back wall.
- After installing unit into opening, raise grille panel and attach metal case top trim to 3/411 minimum wood brace.
- The brace spanning the enclosure must be securely fastened to cabinets on both sides.
See Installation Instructions for detailed instructions.
CUSTOM SIDE PANELS
HELPFUL TIPS
- Side panels must be used whenever the sides of the refrigerator will be exposed. The 1/4″ side panels will slip into the side case trim. Secure the panels to the refrigerator with stick-on hook and loop fastener strips. Order the side panels from the cabinet manufacture
1/.4″ FRAMED PANEL DIMENSIONS
HELPFUL TIPS
Trimmed refrigerators are designed to be customized with decorative panels. Field-installed custom door and grille panels are required.
1/4″ FRAMED PANELS:
For 1/4″ thick custom panels ordered from your cabinet maker; the decorative panels slide into the trim.
MAXIMUM TOTAL PANEL WEIGHT:
- Fresh food door panel – 75 lbs.
- Freezer drawer panel – 53 lbs.
- Grille panel – 18 lbs
3/4″ OVERLAY PANEL DIMENSIONS
3/4′ OVERLAY PANELS:
For 3/4″ thick custom panels ordered from your cabinet maker; the decorative panels slide into the trim.
The overlay panel must be secured to a 1/4″-thick backer panel which slides into the trim .
A spacer panel 0.10″ thick must be placed between the overlay and backer panels.
Center each panel over the other.
Assemble the panels with glue and screws. Screws must be countersunk into the backer panel.
NOTE: Left-to-right offset is not always equal to top-to-bottom offset.
MAXIMUM TOTAL PANEL WEIGHT:
- Fresh food door panel – 75 lbs.
- Freezer drawer panel – 53 lbs.
- Grille panel – 18 lbs
Door handles not included.
Custom handles supplied by your cabinet maker may be used.
Optional visor handle kit ZKLN is available for ordering. Kit includes two handles.
DISPENSER TRIM
RAISED OVERLAY PANEL DESIGN ON DISPENSER MODELS
HELPFUL TIPS
These refrigerators are supplied with two dispenser trims, one for framed panels and one for overlay panels.
1/4″ PANEL DISPENSER TRIM:
The framed panel must be 1/4″ nominal thickness to fit the dispenser trim.
- The dispenser trim :fits over the custom panel and snaps into the freezer door.
- If the panel is less than 0.250″ thick, a noticeable gap may be created around the dispenser trim. Foam tape may be applied on the door to improve the fit.
- If the panel is more than 0.250″ thick, the dispenser trim cannot be secured to the door.
3/4″ OVERLAY PANEL DISPENSER TRIM:
The 3/4″ overlay dispenser trim is designed to fit a total panel thickness of 1.100″.
- If the panel is less than 1.100″ thick, a noticeable gap may be created around the dispenser trim.
- If the panel is more than 1.100″ thick, the dispenser trim cannot be secured to the door.
- The overlay panel must be constructed according to the specifications shown to achieve the correct total thickness.
- Alternative panel construction methods such as securing a 3/4″ panel to a 1/4″ backer panel cannot be used.
Another method, routing a 3/4″-thick panel on all sides, cannot be used. These methods will not result in the required 1.100″ panel thickness. - When a raised panel design is to be used, a custom middle rail is required.
RAISED OVERLAY PANEL DESIGN ON DISPENSER MODELS:
When a raised panel design is to be used, a custom wide middle rail is required to accept the dispenser trim. - The middle rail must be wide enough to allow for the dispenser trim to overlap the opening.
- The middle rail must be 1.10″ total thickness to accept the dispenser trim.
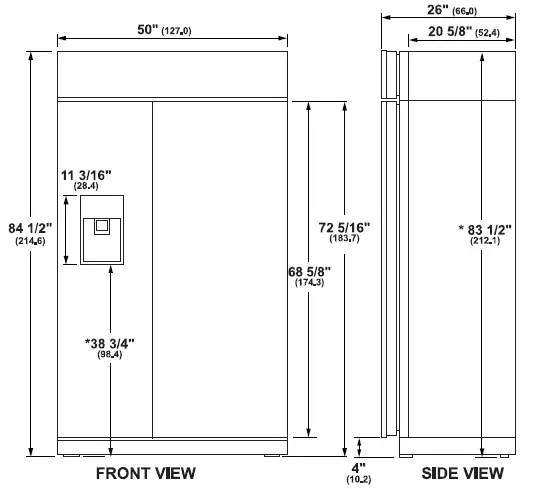
SPECIFICATIONS
- Overall Width 50″ (1270 cm)t
- Overall Height 84 l/2″ (214.6 cm) t
- Overall Depth 26″ (66.0 cm) t
- Door Clearance 28 5/8″ (72.l cm)
- Cutout Width 51″ (1295 cm)
- Cutout Height 85″ (215 9 cm)
- Cutout Depth 26 3/16″ (665 cm)
- Plumbing Requirements l/4″ OD copper tubing or GE
- Smart Connect kit
- Shipping Weight 775 lb (3515 kg)
- Dimensions include 3/4″ custom cabinet panel
ATTENTION ELECTRICIAN:
A 115 volt 60Hz., 15 or 20 amp power supply is required. An individual properly grounded branch circuit or circuit breaker is recommended. Install a properly grounded 3-prong electrical receptacle recessed into the back wall.
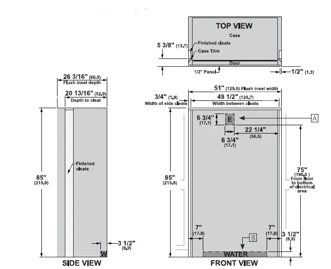
FLUSH INSET INSTALLATION
OVERALL DIMENSIONS
AFTER PANEL INSTALL
Use leveling legs and wheels for maximum 1″ height adjustment from shipping height. Nominal installation height is 84″
These refrigerators are equipped with a 3-position door stop. The factory-set 115° door swing can be adjusted to 90° if clearances to adjacent cabinets or walls is restricted.
Allow a 15″ minimum clearance to wall for pan removal. If the 90° door stop position is used, pan access is maintained, but pan removal is restricted. A 130° door swing option is available for standard installation only. Dimensions based on custom handle height of 2-9/16″ (6.5).
Dimensions in parentheses are in centimeters unless otherwise noted. Actual product dimensions may vary due to manufacturing tolerances.
FLUSH INSET INSTALLATION 3/4″ PANELS
FLUSH INSET KIT ZKFN REQUIRED
ANTI-TIP BRACKET
HELPFUL TIPS
- Mounting the junction box in this location will also allow for front accessibility through access panel.
- Water supply area.
WARNING:
The refrigerator is top heavy and must be secured to prevent the possibility of tipping forward.
Failure to do so may result in death or serious injury.
The information below is for cabinet design only. When installing the anti-tip system you must use the product installation instructions.
Determine your installation construction and required anti-tip configuration:
- Cut a 1″ x 4″ block 35″ long.
Measure and mark under the
sofli.t,
5 1/4″ from the front edge of the cabinet. Secure the wood block under the sofli.t. From the bottom of the block to the finished floor should measure 84″. - Wooden Wall Studs and No
Sofli.t- Cut a 2″ x 4″ block and secure to brackets provided.
- Secure brackets to back wall of opening at 84″ or your installation height from the floor.
See Installation Instructions for detailed instructions
FLUSH INSET KIT ZKFN REQUIRED
Anti Tip Bracket
HELPFUL TIPS
- Mounting the junction box in this location will also allow for front accessibility through access panel.
- Water supply area.
WARNING:
The refrigerator is top heavy and must be secured to prevent the possibility of tipping forward.
Failure to do so may result in death or serious injury.
The information below is for cabinet design only. When installing the anti-tip system you must use the product installation instructions.
Determine your installation construction and required anti-tip configuration:
- Cut a 1″ x 4″ block 35″ long.
Measure and mark under the soffit, 5 3/8″ from the front edge of the cabinet. Secure the wood block under the soffit. From the bottom of the block to the finished floor should measure 84″. - Wooden Wall Studs and No Soffit
- Cut a 2″ x 4″ block and secure to brackets provided.
- Secure brackets to back wall of opening at 84″ or your installation height from the floor.
See Installation Instructions for detailed instructions.
FLUSH INSET 3/4″ PANEL DIMENSIONS
3/4″ RAISED DOOR PANEL ROUTING
HELPFUL TIPS
Trimmed refrigerators are designed to be customized with decorative panels. Field-installed 1/2″ or 3/4″ custom door and grille panels are required. For 3/4″ raised door and grille panels, routing is required.
The router depth is 1/4″ all the way around the panel’s backs. Additional panel width reductions are required per the diagrams shown. This will create “picture frame” routing allowing the panels to slide into the attached door and grille trims.
MAXIMUM TOTAL PANEL WEIGHT:
- Fresh food door panels – 75 lbs.
- Freezer drawer panel – 53 lbs.
- Grille panel – 18 lbs.
DOOR HANDLES
Door handle not included. A custom handle supplied by your cabinet maker may be used.
WARNING:
Door Trim Pinch Point Hazard Improper installation can lead to a finger pinch point hazard between the side door trim and the cabinets when operating the door, especially with children. To minimize this risk you must follow the installation instructions for cabinet dimensions, trim assembly and door stop angle.
3/4″ RAISED GRILLE PANEL ROUTING
HELPFUL TIPS
Trimmed refrigerators are designed to be customized with decorative panels. Field-installed 1/2″ or 3/4″ custom door and grille panels ar required. For 3/4″ raised door and grille panels, routing is required.
The router depth is 1/4″ all the way around the panel’s backs. Additional panel width reductions are required per the diagrams shown. This will create “picture frame” routing allowing the panels to slide into the attached door and grille trims.
MAXIMUM TOTAL PANEL WEIGHT:
- Fresh food door panels – 75 lbs.
- Freezer drawer panel – 53 lbs.
- Grille panel – 18 lbs.
DOOR HANDLES
Door handle not included. A custom handle supplied by your cabinet maker may be used.
DISPENSER TRIM
RAISED PANEL DESIGN ON DISPENSER MODELS
HELPFUL TIPS
These refrigerators are supplied withv a dispenser trim for flush inset panels.
PANEL DISPENSER TRIM:
The provided dispenser trim is designed to fit a total panel thickness of3/411 or 0.8511
- If the panel is less than 3/ 4 11 thick, a noticeable gap may be created around the dispenser trim.
- If the panel is more than 0.8511 thick, the dispenser trim cannot be secured to the door.
- The overlay panel must be constructed according to the specifications shown to achieve the correct total thickness.
- When a raised panel design is to be used, a custom middle rail is required.
RAISED PANEL DESIGN ON DISPENSER MODELS:
When a raised panel design is to be used, a custom wide middle rail is required to accept the dispenser trim.
- The middle rail must be wide enough to allow for the dispenser trim to overlap the opening.
- The middle rail must be 3/411 total thickness for 3/ 4 11 panels or 0.85″ total thickness for 1/211 panels to accept the dispenser trim.
FLUSH INSET 1/2″ PANEL DIMENSIONS
1/4″ BACKER ASSEMBLY ROUTING DIMENSIONS
HELPFUL TIPS
The 1/2″ overlay panel must be secured to a .10″ spacer panel and a 1/4″ thick backer panel, which slides into the trim.
ASSEMBLE THE PANELS WITH GLUE AND SCREWS:
- Center the spacer panel on the backer panel, left to right and top to bottom. Secure the panels with glue.
- Refer to the chart for locaring the backer panel to the overlay panel. Secure the overlay panel to the backer panel with glue and screws. Screws must be countersunk into the backer panel.
MAXIMUM TOTAL PANEL WEIGHT:
- Fresh food door panel – 75 lbs.
- Freezer drawer panel – 53 lbs.
- Grille panel – 18 lbs.
PANEL DIMENSIONS











































