Sit Proflame GTM System

The Proflame GTM is a modular remote control system that directs the functions of a hearth appliance. The Proflame GTM is configured to control the on/off main burner operation, its flame levels, and provides on/off and Smart thermostatic control of the hearth appliance. Comfort control is advanced by the Smart thermostat feature which automatically modulates flame height optimizing temperature management and room ambiance. The Proflame is specifically developed to be used together with the 829 NOVA mV multifunctional gas control or with the 820 NOVA mV converted with the step motor modulating kit.
TECHNICAL DATA
Remote Control
- Supply voltage 4.5 V (three 1.5 V AAA batteries)
- Ambient temperature ratings 0 – 50 °C (32 – 122 °F)
- Radiofrequency 315 MHz
Receiver
- Supply voltage 6.0 V (four 1.5 V AA batteries)
- Ambient temperature ratings 0 – 60 °C (32 – 140 °F)
- Radiofrequency 315 MHz
WARNING: THE TRANSMITTER AND RECEIVER ARE RADIO FREQUENCY DEVICES. PLACING THE RECEIVER IN OR NEAR METAL MAY SEVERELY REDUCE THE SIGNAL RANGE.
- ATTENTION!
- TURN “OFF” THE MAIN GAS SUPPLY OF THE APPLIANCE DURING INSTALLATION OR MAINTENANCE OF THE RECEIVER.
- PLACE THE RECEIVER’S 3-POSITION SLIDER SWITCH IN THE “OFF” POSITION
- DURING INSTALLATION OR MAINTENANCE.
- TURN “OFF” THE MAIN GAS SUPPLY TO THE APPLIANCE PRIOR TO REMOVING OR REINSERTING THE BATTERIES IN THE RECEIVER.
SYSTEM DESCRIPTION
The Proflame Remote Control System consists of two elements:
- Proflame Transmitter.
- Proflame Receiver and a wiring harness to connect the Receiver to the gas valve and stepper motor.
TRANSMITTER (REMOTE CONTROL WITH LCD DISPLAY)
- The Proflame Transmitter uses a streamlined design with a simple button layout and informative LCD display (Fig. 1).
- The Transmitter is powered by 3 AAA-type batteries.
- A Mode Key is provided to Index between the features and a Thermostat Key is used to turn on/off or index through thermostat functions (Fig. 1 & 2).

RECEIVER
- The Proflame Receiver (Fig. 3) connects directly to the gas valve and stepper motor with a wiring harness. The Receiver is powered by 4 AA-type batteries. The Receiver accepts commands via radio frequency from the Transmitter to operate the appliance in accordance with the particular Proflame system configuration. The Receiver three position slider switch can be set to one of three positions: ON (Manual Override), Remote (Remote control), or Off.

INSTALLATION
- The Receiver can be placed inside a standard Junction type wall box or a low-temperature area of the appliance.
Wall Mounting
- Connect the wiring harness to the back of the Receiver.
- Install the Receiver in the Junction box using the existing J-box screws. (Fig. 4)
- Insert the 4 AA-type batteries in the battery compartment with the correct polarity.
- Place the slider into the cover plate.
- Put the Receiver switch in the “OFF” position.
- Make sure the Receiver and cover plate words “ON” and “UP” are on the same side.
- Align the slider with the switch on the Receiver and couple the switch into the slider.
- Align the screw holes.
- Using the two (2) screws provided secure the cover plate to the Receiver.
Hearth Mounting
- Connect the wiring harness to the back of the Receiver.
- Install the 4 AA-type batteries in the battery compartment with the correct polarity.
- Make sure the Receiver and cover plate words “ON” and “UP” are on the same side.
- Place the slider into the cover plate.
- Align the slider with the switch on the Receiver and couple the switch into the slider.
- Using the two (2) screws provided secure the cover plate to the Receiver.
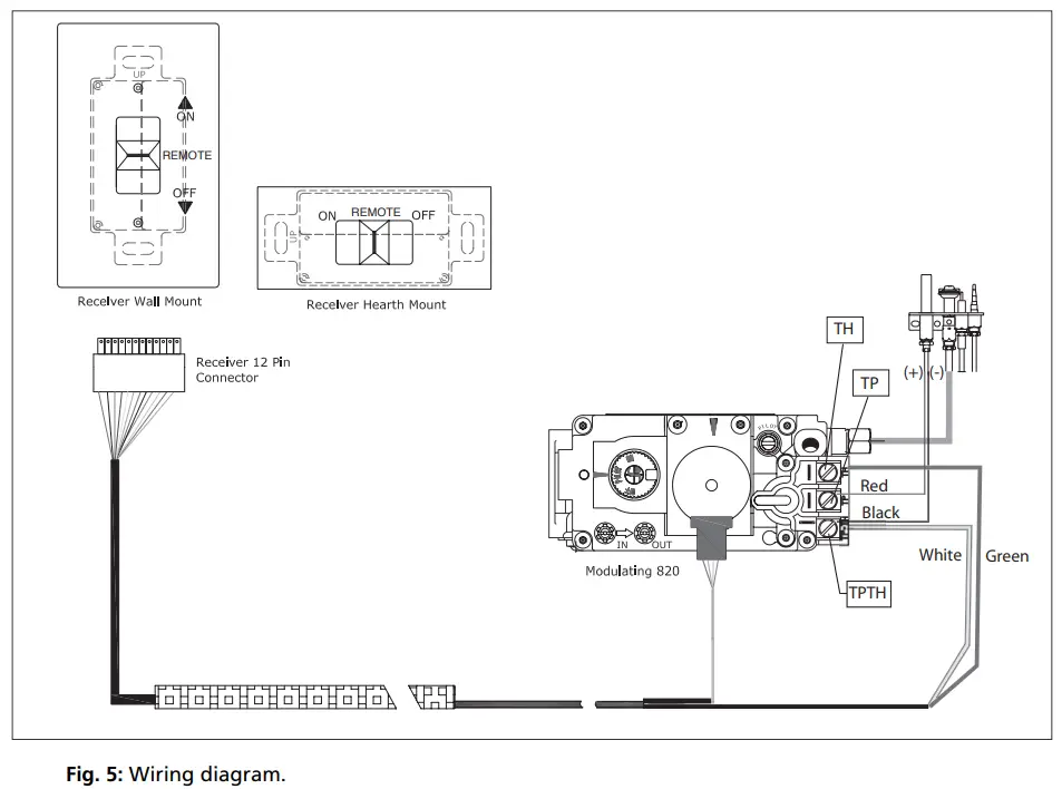
- Connecting to the Gas Valve
- The wiring harness for the Proflame GTM system has two wires labeled “TH” & “TPTH”. Connect the wires to the gas valve as labeled. (TH to TH and TPTH to TPTH).
- Additionally, there is a connector labeled “Motor”. Connect this “Motor” connector to the stepper motor on the gas valve. (Fig. 5)

OPERATING PROCEDURE
- Initializing the System for the first time
- Install the 4 AA batteries into the receiver battery bay. Note the polarity of battery and insert into the battery bay as indicated on the Battery cover (+/-). Place the 3 position slider switch in the “Remote” position.
- Using the end of a paper clip, or other similar object, insert the end of the paper clip into the hole marked “PRG” on the Receiver front cover. The Receiver will “beep” three (3) times to indicate that it is ready to synchronize with a Transmitter. Install the 3 AAA type batteries in the Transmitter battery bay, located on the base of the
- Transmitter. With the batteries already installed in the Transmitter, push the On button. The Receiver will “beep” four times to indicate the Transmitter’s command is accepted and sets to the particular code of that Transmitter. The system is now initialized.
Temperature indication Display
- With the system in the “OFF” position, press the Thermostat Key and the Mode Key at the same time. Look at the LCD screen on the Transmitter to verify that a C or F is visible to the right of the Room Temperature display. (Fig. 6)

- Turn on the Appliance
- Press the ON/OFF Key on the Transmitter. The Transmitter display will show all active Icons on the screen. At the same time the Receiver connects the thermopile to the gas valve millivolt coil and the appliance main burner turns on. A single “beep” from the Receiver will confirm reception of the command.
- Turn off the Aplliance
- Press the ON/OFF Key on the Transmitter. The Transmitter LCD display will only show the room temperature and Icon (Fig.7). At the same time the Receiver disconnects the thermopile from the gas valve millivolt coil and the appliance burner turns off. A single “beep” from the Receiver confirms reception of the command.
- Remote Flame Control
- The Proflame GTM has six (6) flame levels. With the system on, and the flame level at the maximum in the appliance, pressing the Down Arrow Key once will reduce the flame height by one step until the flame is turned off. The Up Arrow Key will increase the flame height each time it is pressed. If the Up Arrow Key is pressed while the system is on but the flame is off, the flame will come on in the high position. ( Fig. 8 & 9 ) A single “beep” will confirm reception of the command.

- ROOM THERMOSTAT ( Transmitter Operation)
- The Remote Control can operate as a room thermostat. The thermostat can be set to a desired temperature to control the comfort level in a room.
- To activate this function, press the Thermostat Key (Fig. 1). The LCD display on the Transmitter will change to show that the room thermostat is “ON” and the set temperature is now displayed (Fig. 10). To adjust the set temperature, press the Up or Down Arrow Keys until the desired set temperature is displayed on the LCD screen of the Transmitter.

- Smart Thermostat (Transmitter Operation)
- The Smart Thermostat function adjusts the flame height in accordance to the difference between the set point temperature and the actual room temperatures. As the room temperature gets closer to the set point the Smart Function will modulate the flame down. To activate this function, press the Thermostat Key (Fig. 1) until the word “SMART” appears to the right of the temperature bulb graphic (Fig. 12). To adjust the set temperature, press the Up or Down arrow Keys until the desidered set point temperature is displayed on the LCD screen of the Transmitter (Fig. 13).

KEY LOCK
- This function will lock the keys to avoid unsupervised operation.
- To activate this function, press the MODE and the UP Arrow Key at the same time (Fig. 18).
- To de-activate this function, press the MODE and the UP Arrow Key at the same time.

LOW BATTERY P0WER DETECTION
Transmitter
- The life span of the remote control batteries depends on various factors: quality of the batteries used, the number of ignitions of the appliance, the number of changes to the room thermostat set point, etc.
- When the Transmitter batteries are low, a Battery Icon will appear on the LCD display of the Transmitter (Fig. 19) before all battery power is lost. When the batteries are replaced this Icon will disappear.

Receiver
- The life span of the Receiver batteries depends on various factors: the quality of the batteries used, the number of ignitions of the appliance, the number of changes to the room thermostat set point, etc.
- When the Receiver batteries are low, No “beep” will be emitted from the Receiver when it receives an On/Off command from the Transmitter. This is an alert for a low battery condition for the Receiver. When the batteries are replaced the “beep” will be emitted from the Receiver when the ON/OFF Key is pressed (See Initialization of The System).
MANUAL BYPASS OF THE REMOTE SYSTEM
If the batteries of the Receiver or Transmitter are low or depleted, the appliance can be turned on manually by sliding the three position slider switch on the Receiver to the ON position. This will bypass the remote control feature of the system and the appliance main burner will come on if the gas valve is in the “On” position.
WARNING: Fire Hazard. Can cause severe injury or death
The Receiver causes the ignition of the appliance. The appliance can turn on suddenly. Keep away from the appliance burner when operating the remote system or activating manual bypass of the remote system.
CAUTION: Property Damage Hazard.
- Excessive heat can cause property damage.
- The appliance can stay lit for many hours. Turn off the appliance if it is not going to be attended for any lenght of time.
- Always place the Transmitter where children can not reach it.




























