
USER MANUAL
INALTO.HOUSE
60cm & 90cm Slideout
Rangehoods
MODEL CODE/S ASL60DR2S ASL90DR2S
FOR ALL AUSTRALIAN HOMES
V6.0 | 0422
Welcome
Residential Group Pty Ltd
ACN. 600 546 656
165 Barkly Avenue
Burnley, Victoria 3121
Australia
—
Applico Ltd
635 Great South Road
Penrose, Auckland 1061
New Zealand
— InAlto
www.inalto.house
/ inalto.house
/ inalto.house
Congratulations on purchasing your new appliance!
The InAlto brand is proudly distributed within Australia by Residentia Group Pty Ltd and within New Zealand by Applico Ltd.
Please refer to the warranty card at the rear of this manual for information regarding your product’s parts and labor warranty, or visit online at:
→ www.residential.group
→ www.applico.co.nz
→ www.inalto.house
Both Residential Group & Applico are customer-obsessed and our Support Teams are there to ensure you get the most out of your appliance. Should you want to learn more about recommended usage, the various features of your appliance, and importantly taking care of the unit when cleaning, our Support Teams are here to help.
Telephone Contacts:
→ AU: 1300 11 4357
→ NZ: 0800 763 448
It is important that you read through the following use and care manual thoroughly to familiarise yourself with the installation and operation requirements of your appliance to ensure optimum performance. Again, thank you for choosing an InAlto appliance and we look forward to being of service to you.
Customer Care
InAlto recommends the use of original spare parts. When contacting our customer service team on 1300 11 4357, please ensure that you have the following information
at hand (which can be found on your appliances’ rating plate).
- Model Number
- Serial Number
Safety Information
IMPORTANT INFORMATION
The following statements you will see in this booklet have these meanings:
WARNING: Indicating information concerning your personal safety.
CAUTION: Indicating information on how to avoid damaging the appliance or cabinetry.
IMPORTANT: Indicating tips and information about use of the cooker.
BEFORE USING YOUR APPLIANCE
This manual explains the proper use of your new InAlto rangehood. Please read this manual carefully before using the product. This manual should be kept in a safe place for handy reference. This rangehood (cooker hood) is a domestic appliance that has been manufactured and tested to comply with Australian and New Zealand Standard AS/NZS 60335.2.31.
This rangehood must only be installed in accordance with the instructions provided. Incorrect installation may cause harm to persons, damage property, and void the product’s warranty. Read the following carefully to avoid damage or injury.
IMPORTANT: Check for any damage or marks. If you find the appliance is damaged or marked, you must report it within 7 days if you wish to claim for damage/ marks under the manufacturer’s warranty. This does not affect your statutory rights.
WARNING: Follow these instructions carefully to avoid an electric shock or fire.
- Young children should be supervised to ensure they do not play with the cooker hood.
- This appliance is not intended for use by persons (including children) with reduced physical, sensory or mental capabilities, or lack of experience and knowledge unless they
have been given supervision or instruction concerning the use of the appliance by a person responsible for their safety. - Ensure the cooker hood is switched off before carrying out maintenance, to avoid any possibility of electric shock.
- Never carry out flambé cooking under the cooker hood.
- This cooker hood is not suitable for use over barbecues.
- This cooker hood cannot be installed for external use- only to be installed indoors.
- The Aluminium grease filters must be removed every four weeks (at a maximum) for cleaning to reduce the risk of fire.
- The exhaust from the cooker hood must not be discharged into any heating flue, which may carry combustion products from other sources. (Figure 1)
- Exhaust air must not be discharged into a wall cavity unless the cavity is designed for the purpose.
- There shall be adequate ventilation of the room when the range hood is used at the same time as appliances burning gas or other fuels (not applicable that only discharge the air back into the room).
- Regulations concerning the discharge of air have to be fulfilled.
- There must be adequate ventilation of the room when the cooker hood is used at the same time as appliances burning gas or other fuels.
- Your new rangehood is guaranteed against electrical or mechanical defects, subject to certain exclusions that are noted in the Warranty Terms and Conditions (at the rear
of this user manual). The foregoing does not affect your statutory rights. - Always cover lit gas burners with pots or pans when cooker hood is in use.
- Always switch off gas burners before you remove pots or pans.
- Do not leave lit gas burners exposed due to the risk of fire. (Figure 2)
![]() | ![]() |
Safety Information (Continued)
ELECTRICAL CONNECTION
Check that the mains voltage matches with the voltage on the data plate inside the cooker hood. Check that the installation complies with the standards of local building, gas, and electrical authorities. Before connecting to the mains supply ensure that the mains voltage corresponds to the voltage on the rating plate inside the cooker hood.
WARNING: If the supply cord is damaged, it must be replaced by the manufacturer or its service agent or a similarly qualified person in order to avoid a hazard.
WARNING: All electrical work must be done in accordance with local and national electrical codes as applicable and should be undertaken by licensed and qualified persons only.
SAFETY WARNINGS – FOR THE INSTALLER
When installing the cooker hood, make sure you adhere to the minimum and maximum distances from the cooker hood base to the cooktop surface (as per table on page 12)
Exhaust flue installation:
The following rules must be strictly followed to obtain optimal air extraction.
- Keep exhaust flue short and straight.
- Do not reduce the size or restrict exhaust flue.
- Keep bends in the exhaust flue to a minimum; the more bends the lower the extraction performance.
- When using flexible flue always install duct with helix pulled taut to minimize pressure loss.
- Failure to observe these basic instructions will drastically reduce the performance and increase the noise levels of the cooker hood. Exhaust air must not be discharged into a wall cavity unless the cavity is designed for that purpose. The exhaust from the cooker hood must not be discharged into any heating flue, which may carry combustion products from other sources.
NOTE: Some installations may require the expandable/telescopic ducting to be cut to length. Cut with sharp tin snips or a fine-tooth hack saw blade, taking care not to distort or dent the exhaust cover. When using expandable ducting, it’s important to have the ducting fully taught to maximize the efficiency of the airflow.
UNPACKING
During transportation, protective packaging was used to protect the appliance against any damage. After unpacking, please dispose of all elements of packaging in a way that will not cause damage to the environment. All materials used for packaging the appliance are environmentally friendly; they are 100% recyclable and are marked with the appropriate symbol.
CAUTION: During unpacking, the packaging materials (polythene bags, polystyrene pieces, etc.) should be kept out of reach of children.
DISPOSAL OF THE APPLIANCE
Old appliances should not simply be disposed of with normal household waste and should be delivered to a collection and recycling center for electric and electronic equipment. A symbol shown on the product, the instruction manual or the packaging shows that it is suitable for recycling.
Materials used inside the appliance are recyclable and are labeled with information concerning this. By recycling materials or other parts from used devices you are making a
a significant contribution to the protection of our environment.
Information on appropriate disposal centers for used devices can be provided by your local authority.
Your InAlto Rangehood
YOUR RANGEHOOD

Your Slideout Rangehood features switch controls with 2-speed levels of extraction.
KEY
- Rangehood housing
- Slide-out Front Fascia Rail
- Inner Aluminium Grease Filter
- Outer Aluminium Grease Filter
- On/Off Switch
- Fan Speed Switch
- Light
RANGEHOOD COMPONENTS
Your InAlto Undermount Rangehood is supplied with:
- 1 × Rangehood
- 1 × Rear-underside support mounting bracket
- 1 × 40mm Height Front Fascia Rail
- 1 × Set of pre-installed Charcoal Filters (2 pcs)
- 6 × Screws (ST4 × 30mm)
- 2 × Screws (ST4 × 8mm)
- 6 × Wall Plugs (8mm)
- 6 × Flat Washers
- 1 × Front Vent Cover (if external ducting is required)
- 1 × Flu Outlet Adapter
- 1 × User Manual
- 1 × Quick Start Guide
- 1 × User Manual
OPTIONAL ACCESSORIES
Residential Group (Australia) and Applico (NZ) sell a range of optional accessories, which can be purchased separately by contacting our After Sales Service Team.
Including:
- Carbon Filters
- Various ducting solutions (rigid ducting, adapters, vents/outlets and elbow bends)
Operation Instructions
- The rangehood will only operate once the slide-out rail is pulled outwards towards the kitchen.
- Close the front panel and the rangehood will stop working.
- The next time the front panel is pulled back out, the rangehood will start working at the previously set level. controls controls

ON/OFF SWITCH
I Turns the rangehood ON
O Turns the rangehood OFF
FAN SPEED SWITCH
= Turns on the fan motors to high speed for maximum extraction
O Turns off the fan motors for no extraction, the fan motors are off
— Turns on the fan motors to low-speed minimum extraction
Installation Instructions
WARNING: Before starting the installation, please refer to the Safety Information section.
- Always switch the power off prior to beginning the installation.
- Stainless steel is very easily damaged during installation.
- Wherever possible, protect the range hood with a cardboard box or plastic
- A power point must be located within 1.5m of the power cord exit from the range hood, and it should be always accessible to allow isolation from power during cleaning or
maintenance. - A 120mm round ducting adapter is supplied, however, all other ducting accessories are not.
- All ducting must comply with building codes and local requirements.
- Ensure that the range hood is mounted in a level position, both horizontally and vertically. This is essential to ensure the rangehood operates correctly and prevents grease build-up at one end.
IMPORTANT: Never use silicone around your rangehood or flue pieces. Never install the rangehood or flue pieces into the plaster ceiling which prevents easy access to the rangehood for servicing requirements.
IMPORTANT: Before installing your rangehood, please record the details of your rangehood’s rating label (located within the rangehood, behind the aluminum grease filters) into the form on page 23. This will be helpful should you need to contact our service team in the future.
POSITIONING THE RANGEHOOD
- The typical installation method for your slideout rangehood is into a purpose-built overhead/wall cabinet.
- Using a jigsaw, create the required cut-out for your range hood, as per the measurement dimensions in Figure 3A on page 8.
- Make sure the cut-out is at least 35mm from the cabinet edge.
IMPORTANT: The height of the rangehood underside must be a minimum of 600mm* to a maximum of 800mm from the top of your cooktop surface (for gas cooktops, this is the top of the gas burner).
* If the installation instructions for your cooktop specify a greater distance than the minimum, then that shall be the minimum height for installation.
| COOKTOP FUEL TYPE: | DIMENSION A | |
| Minimum* | Maximum | |
| Gas (multiple burners with maximum 45.4 MJ/h total output and no single burner exceeding 16.2 MJ/h output) | 600mm | 800mm |
| Gas (multiple burners with total output greater than 45.4 MJ/h but less than 77.8 MJ/h, and no single burner exceeding 17.3 MJ/h output) | 760mm | 800mm |
| Gas (single burner not exceeding 21.6 MJ/h output) | 650mm | 800mm |
| Gas (single burner with output greater than 21.6 MJ/h but not exceeding 29.2 MJ/h) | 760mm | 800mm |
| Electric | 600mm | 800mm |
ELECTRICAL CONNECTION
Check that the installation complies with the standards of local building, gas, and electrical authorities. Before connecting your rangehood to the mains supply, ensure that the mains voltage corresponds to the voltage on the rating plate inside the range hood.
BEFORE INSTALLATION
Before installation, please decide the extraction mode with the adjuster on the motor (Figure 4).

CHOOSING YOUR EXTRACTION METHOD
As a default setting, your range hood is set to Recirculation Mode. Although the rangehood is suitable for both External Ducting (Figure 5A) and Recirculation (Figure 5B), we recommend ducting your rangehood wherever possible, for maximum performance.

DUCTED INSTALLATION
Before beginning the installation of your range hood, consider your ducting method.
This rangehood has been supplied with expandable plastic ducting, however, for maximum performance, we recommend installing with rigid or semi-rigid ducting. Use cable ties or suitable duct tape to secure the flexible pipe or ducting to the range hood duct outlet.
WARNING: All ducting must be fire retardant. Depending on your situation, there are multiple options for ducting your rangehood, as follows:
- Straight up through your tiled or metal roof, using a roof cowl (not supplied with the rangehood).
- Into your ceiling cavity (were compliant with local and national building regulations/codes. Seek approval from the relevant authority or building inspector where necessary.
- Into your ceiling cavity and then vented to the atmosphere through your eaves, using no more than 2 x 90 degree bends within the ducting run.
- Through your wall.
IMPORTANT: Ducting can have a major effect on your rangehood performance. The following tips outline how to correctly duct your rangehood.
- Always use the correct size ducting. This range hood is designed for use with 120mm ducting to achieve optimum airflow performance and minimized noise.
- For maximum performance use semi-rigid or rigid ducting
- Always use non-flammable ducting
- Always duct to the outside atmosphere, unless your local building codes and regulations permit otherwise
- Where using flexible ducting, always install the ducting pulled taut to minimize pressure loss, and cut any excess ducting off.
- Where possible, avoid using 90-degree bends and in their place use, multiple 45-degree bends.
- Keep your total length of ducting to the shortest length possible.
- Ensure there are no kinks in your ducting.
- Use cylindrical ducting whenever possible
If you have chosen to operate your range hood in External Ducting Mode you will need to follow the steps below:
- Unscrew the 80mm fascia rail which is already installed on the rangehood (Figure 6).

- Using the same screws, attach the 40mm fascia rail supplied in the box.
- Remove the aluminum grease filters (Figure 8) from the underside of the rangehood.
- Turn the switch in the center of the motor housing to the External Ducting position (Figure 4).
- Remove the charcoal filters by twisting them anticlockwise (Figure 10). The charcoal filters are not required for the External Ducting mode.
- Clip-in the plastic Front Vent Cover over the vent holes on the front of the range hood.
- Using the screws provided, install the Flu Outlet Adaptor to the top of the rangehood.

- Install the ducting pipe (not supplied) to the outlet on the top of the range hood and vent to external air. It is recommended that the ducting pipe is 120mm in diameter.
WHITE PLASTIC COVER
For External Ducting, you can cover the front outlet the white plastic cover provided in the box (Figure 7).
RECIRCULATION INSTALLATION
This mode is the default setting. The rangehood will operate with carbon filters and vent the air back into the kitchen.
To ensure that the model is correct, remove the grease filters (see Figure 8) and check that the switch is in the Recirculation Mode position (see Figure 4).
CHARCOAL FILTERS
If you intend to use the range hood with the air recirculating back into the kitchen, it is important that you use the charcoal filters that are already installed to prevent the odors generated through cooking from being vented back into the kitchen.
Before installing the rangehood into the cabinet, please remember to remove the adhesive transit support tape on the carbon filters first (Figure 9).
REMOVING THE CHARCOAL FILTERS
To remove the charcoal filters you will first need to remove the grease filters (see Figure 8). Then twist anti-clockwise and pull down as shown in Figure 10.
To install new charcoal filters you will need to first remove the grease filters (Figure 11). Then align the charcoal filters with the centre of the motors, twist clockwise and push upwards until they lock into place.
REAR-MOUNTING TO THE WALL
- Using a spirit level, mark a horizontal line on the wall where the rangehood base will be, adhering to the minimum and maximum distances from the rangehood base to the cooktop surface (as per the table on page 12).
- Drill 4 holes of 08mm on the wall, as illustrated below (Figure 12).
- Hammer the wall plugs into the holes, then insert two ST4x3Omm screws into the lower wall plugs.
- Tighten the screws, but leave a 2mm gap so that you can hang the rangehood on the screws in the keyhole slots.
- Hang the hood to the wall screws, and make sure the hood is in balance and positioned correctly.
- Take away the Aluminum Filters, mark and drill another 2 holes of 08mm on the wall (Safety Screw Holes).
- Take back the hood and hammer the wall plugs, hang the hood again and fix the hood with two ST4x3Omm screws.
WARNING: Failure to install the screws or fix the device in accordance with these instructions may result in electrical hazards!
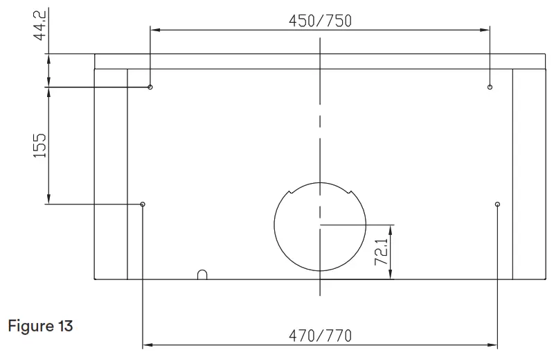
TOP-MOUNTING IN A CABINET
- Determine where in the top cabinet you want to install the range hood, then drill 4 holes of 04mm at the bottom of the hanging board of your cabinet (Figure 13).

- Install the rangehood onto the bottom of the cupboard and secure it in place with four ST4x3Omm screws (Figure 14).
- If there is a space between the wall and the rear of the rangehood, install the rear-underside support mounting bracket using the two ST4x8mm screws.
WARNING: Failure to install the screws or fix the device in accordance with these instructions may result in electrical hazards!
Maintenance & Cleaning
CAUTION:
- Before maintenance or cleaning is carried out, ensure the operation and light switches are set to the ‘0’ position and the range hood is disconnected from the main power supply. Ensure that the rangehood is switched off at the wall socket and the plug removed.
- Stainless steel is susceptible to scratches and abrasions, so please follow the cleaning instructions to ensure the best possible result is achieved without damage.
- The instructions within this manual must be followed to avoid fire risk.
- Keep the motor and other spare parts free from water, as this will cause damage to the appliance.
ALUMINIUM GREASE FILTER
- To remove the Aluminium grease filter, see Figure 8 on page 14.
- Your aluminum filters can be washed by hand in warm soapy water. After cleaning, allow the filters to completely dry before refitting into your rangehood.
CAUTION: We do not recommend washing the Aluminium filters in a dishwasher. This can damage the filter and cause discoloration of the filter.
EXTERIOR SURFACES
Clean surfaces using non-abrasive cleaning products that are specifically for use on stainless steel. To ensure the best results also use even pressure and follow the grain of the stainless steel. The use of a soft cloth reduces the risk of scratching. If the cloth is wet, ensure that a dry soft cloth is used to wipe down the surface again reducing the risk of any surface rust appearing.
CHARCOAL FILTERS
If your rangehood has been installed in recirculating mode, you should be using the Charcoal Filter accessories available for purchase separately. These filters can not be re-used
or cleaned and as a general rule, the activated charcoal filter should be replaced every 6 months (or more frequently depending on the amount and type of cooking you do).
To order a replacement filter, please contact our After Sales Service Team.
To remove and/or install new filters, please see page 15.
CHANGING A LIGHT GLOBE
If the light lamp needs replacing, proceed as follows:
- Slide-out the front panel for easier access and remove the two aluminum mesh filters

- Push out the lamp by hand from its back, pull out the lamp connecting lines together;

- Open the protective cover as shown in the picture below, and unplug the connected plastic shell to replace a new lamp.
Please contact our After Sales Service Team if you need assistance.
Troubleshooting
OPERATION IN CASE OF EMERGENCY
In the event of an emergency you should:
- Switch off all range hood controls.
- Switch the rangehood off at the power outlet and immediately unplug.
- Call After Sales Support.
Some minor faults can be fixed by referring to the instructions given in the table below.
IMPORTANT: If your appliance appears to be operating incorrectly, then you should disconnect it from your electrical supply and then contact After Sales Support.
WARNING: Do not attempt to repair the rangehood yourself.
Please note that if an engineer is asked to attend whilst the product is under warranty and finds that the problem is not the result of an appliance fault, then you may be liable for the cost of the call-out charge.
The appliance must be accessible for the engineer to perform any necessary repair. If your appliance is installed in such a way that an engineer is concerned that damage will be caused to the appliance or your kitchen, then they will not complete a repair. This includes situations where the rangehood has been tiled in or sealed in with a sealant.
Please refer to the conditions that appear on the warranty card at the rear of this user manual.
| FAULT | POSSIBLE CAUSE | COMMON SOLUTIONS |
| The extractor fan ceases to function | There is no electrical current in the network | Check with other appliances that your electricity supply is in working order |
| It is insufficient suction power | The wrong suction speed has been selected | Select suction speed ” II ” if speed ” I ” was selected |
| Ducting is loose, kinked, and too long or too many bends | Make sure your kitchen is adequately vented to allow the entry of fresh air | |
| The charcoal filter needs to be replaced. | Please replace the charcoal filter if food odor starts to become noticeable within your kitchen | |
| The distance between the range- hood and your cooktop is too great | Have your installer re-adjust the installation position, ensuring that the minimum distances are observed as per the building code and relevant standards | |
| The rangehood has lost power during operation | The switchboard may have tripped | Check the switchboard |
| Check if the rangehood has been installed below the height levels indicated in the “Installation” section | Re-installation may be required. If the height recommendations are not followed, the motor will cut out frequently, which may damage the rangehood | |
| The light does not illuminate | The bulbs are loose or have burnt out | Tighten the bulbs, or replace if necessary |
Technical Data
SPECIFICATIONS
| MODEL | ASL60DR2S | ASL90DR2S |
| Dimensions (W x D x H) | 599mm x 278mm x 176mm | 899mm x 278mm x 176mm |
| Extended Depth | 278-472mm | 278-472mm |
| Height of Front Panel | 40mm/80mm | 40mm/80mm |
| Weight | 9.2kg | 10.5kg |
| Speed Settings | 2 | 2 |
| Motor Power | 2 x 100W | 2 x 100W |
| Total Input Power | 202W | 202W |
| Lighting | LED, 1 x 2W | LED, 1 x 2W |
| Housing | Painted White with Stainless Steel Trim | Painted White with Stainless Steel Trim |
| Aluminum Mesh Filters | Yes, 2 | Yes, 2 |
| Charcoal Filters | 1 Set | 1 Set |
| Power supply | 220-240 Volts 50Hz Connects to standard household 10 Amp power point | 220-240 Volts 50Hz Connects to standard household 10 Amp power point |
This product complies with AS/NZS 60335.2.31:2004+A1:2006 +A2:2007+A3:2009+A4:2010 for electrical safety, and with EN 55014-1:2006+A1:2009+A2:2011 for electromagnetic compatibility.
Responsible disposal
At the end of their working life, do not throw any of these appliances out with your household rubbish. Electrical and electronic products contain substances that can have a detrimental effect on the environment and human health if disposed of inappropriately. Observe any local regulations regarding the disposal of electrical consumer goods and dispose of it appropriately for recycling. Contact your local authorities for advice on recycling facilities in your area.
Purchase Details
For future reference, please record the following information in the form below. The product details can be found on the rating plate (located within the rangehood, behind the aluminum grease filter), installation details, and purchase details which can be found on your sales invoice.
STORE DETAILS
STORE NAME |
ADDRESS |
TELEPHONE |
PURCHASE DATE |
PRODUCT DETAILS
MODEL NO.|
SERIAL NO.* |
INSTALLATION DETAILS
DATE OF INSTALLATION |
INSTALLED BY |
Warranty Information
AUSTRALIAN WARRANTY TERMS & CONDITIONS RANGEHOOD APPLIANCES
This document sets out the terms and conditions of the product warranties for Residentia Group Appliances. It is an important document. Please keep it with your proof of purchase documents in a safe place for future reference should you require service for your Appliance.
- IN THIS WARRANTY
(a) ‘acceptable quality as referred to in clause 10 of this warranty has the same meaning referred to in the ACL;
(b) ‘ACL’ means Trade Practices Amendment (Australian Consumer Law) Act (No.2) 2010;
(c) ‘Appliance’ means any Residentia Group product purchased by you accompanied by this document;
(d) ‘ASR’ means Residentia Group authorized service representative;
(e) ‘Residentia Group’ means Residentia Group Pty Ltd of 165 Barkly Avenue Burnley VIC, ACN 600 546 656 in respect of Appliances purchased in Australia;
(f ) ‘major failure’ as referred to in clause 10 of this warranty has the same meaning referred to in the ACL and includes a situation when an Appliance cannot be repaired or it is uneconomic for Residentia Group, at its discretion, to repair an Appliance during the Warranty Period;
(g) ‘Warranty Period’ means:
(i) where the Appliance is used for personal, domestic, or household use (i.e. normal single-family use) as set out in the instruction manual, the Appliance is warranted against manufacturing defects for 24 months (or 36 months where a valid extended warranty registration has occurred), following the date of original purchase of the Appliance;
(h) ‘you’ means the purchaser of the Appliance not having purchased the Appliance for re-sale, and ‘your’ has a corresponding meaning. - This warranty only applies to Appliances purchased and used in Australia and is in addition to (and does not exclude, restrict, or modify in any way) any non-excludable statutory warranties in Australia.
- During the Warranty Period, Residentia Group or its ASR will, at no extra charge if your Appliance is readily accessible for service, without special equipment and subject to these terms and conditions, repair or replace any parts that it considers to be defective. Residential Group or its ASR may use remanufactured parts to repair your Appliance. You agree that any replaced Appliances or parts become the property of the Residential Group. This warranty does not apply to light globes, batteries, filters, or similar perishable parts.
- Parts and Appliances not supplied by Residential Group are not covered by this warranty.
- You will bear the cost of transportation, travel, and delivery of the Appliance to and from Residentia Group or its ASR. If you reside outside of the service area, you will bear the cost of:
(a) travel of an authorized representative;
(b) transportation and delivery of the Appliance to and from Residentia Group or its ASR, in all instances, unless the Appliance is transported by Residentia Group or its ASR, the Appliance is transported at the owner’s cost and risk while in transit to and from Residentia Group or its ASR. - Proof of purchase is required before you can make a claim under this warranty.
- You may not make a claim under this warranty unless the defect claimed is due to faulty or defective parts or workmanship. Residential Group is not liable in the following situations (which are not exhaustive):
(a) the Appliance is damaged by:
(i) accident
(ii) misuse or abuse, including failure to properly maintain or service
(iii)normal wear and tear
(v) power surges, electrical storm damage or incorrect power supply
(iv) incomplete or improper installation
(vi)incorrect, improper or inappropriate operation
(vii) insect or vermin infestation
(viii) failure to comply with any additional instructions supplied with the Appliance;
(b) the Appliance is modified without authority from Residential Group in writing;
(c) the Appliance’s serial number or warranty seal has been removed or defaced;
(d) the Appliance was serviced or repaired by anyone other than Residentia Group, an authorized repairer, or ASR. - This warranty, the contract to which it relates, and the relationship between you and Residentia Group are governed by the law applicable where The appliance was purchased.
- To the extent permitted by law, Residentia Group excludes all warranties and liabilities (other than as contained in this document) including liability for any loss or damage whether direct or indirect arising from your purchase, use, or nonuse of the Appliance.
- For Appliances and services provided by Residentia Group in Australia, the Appliances come with a guarantee by Residentia Group that cannot be excluded under the Australian Consumer Law. You are entitled to a replacement or refund for a major failure and for compensation for any other reasonably foreseeable loss or damage. You are also entitled to have the Appliance repaired or replaced if the Appliance fails to be of acceptable quality and the failure does not amount to a major failure. The benefits to you given by this warranty are in addition to your other rights and remedies under a law in relation to the Appliances or services to which the warranty relates.
- At all times during the Warranty Period, Residentia Group shall, at its discretion, determine whether repair, replacement, or refund will apply if an Appliance has a valid warranty claim applicable to it.
- Missing parts are not covered by the warranty. Residential Group reserves the right to assess each request for missing parts on a case-by-case basis. Any parts that are not reported missing in the first week after purchase will not provide free of charge.
- To enquire about claiming under this warranty, please follow these steps:
(a) carefully check the operating instructions, user manual and the terms of this warranty;
(b) have the model and serial number of the Appliance available;
(c) have the proof of purchase (e.g. an invoice) available;
(d) telephone the numbers are shown below. - You accept that if you make a warranty claim, Residentia Group and its ASR may exchange information in relation to you to enable Residentia Group to meet its obligations under this warranty.
IMPORTANT
Before calling for service, please ensure that the steps in point 13 have been followed. Telephone contact
► Service: Please call 1300 11 HELP (4357)
The Australian Consumer Law requires the inclusion of the following statement with this warranty:
Our goods come with guarantees that cannot be excluded under the Australian Consumer Law. You are entitled to a replacement or refund for a major failure and for compensation for any other reasonably foreseeable loss or damage. You are also entitled to have the goods repaired or replaced if the goods fail to be of acceptable quality and the failure does not amount to a major failure.
Warranty Information
NEW ZEALAND WARRANTY TERMS & CONDITIONS FOR COOKING APPLIANCES
To help care for your investment, be sure to register your appliance online. Registration will help you if you need to arrange service in the future and serves as a record of your purchase – including critical information like model number and serial number – that you can refer to at any time.
Simply visit the below website, or ask your retailer for help: www.inalto.co.nz/register
WARRANTY:
These products are covered by a warranty for a period of 24 months from the date of purchase, subject to the following conditions*. The warranty covers rectification free of charge of any fault arising from defective materials or components, or faulty workmanship or assembly.
* The conditions above mentioned are:
- That the purchaser carefully follows all instructions packed with the product;
- That the purchaser and/or installer carefully follow the installation instructions provided and complies with electrical wiring regulations, gas and/or plumbing codes;
- That the purchaser carefully follows instructions provided in the owner’s handbook relating to the proper use and care of the product and does not use the product for any purpose other than the domestic use for which it has been designed;
- Commercial use of the product for professional or industrial purposes will void this warranty.;
- That the product was purchased and installed in New Zealand;
- That this warranty does not extend to:
a) optional glass lids for hobs apart from claims which relate to mechanical or physical damage thereof at the date of purchase;
b) ‘consumable’ parts such as light bulbs or filters;
c) damage to ceramic glass caused by liquid or solid spill-overs, lack of maintenance, or impact;
d) damage to surface coatings caused by cleaning or maintenance using products not recommended by the owner’s handbook;
e) defects caused by normal wear and tear, accident, negligence, alteration, misuse or incorrect installations;
f) a product dismantled, repaired, or serviced by any serviceman other than an authorized service agent;
g) a product not in possession of the original purchaser;
h) damage caused by power outages or surges
i) damage caused by pests (eg. rats, cockroaches, etc.) - What if the product is a freestanding microwave oven or small appliance it must be returned to the dealer/ retailer for service. These products, unless stated otherwise, have a 12-month warranty from the original date of purchase with 24 months on the microwave magnetron; Waste disposers have a 12-month warranty.
- The provision of service under this warranty is limited by a 25km boundary from the retailer where the product was purchased except for microwaves. Such traveling outside of these limits will incur commercial costs to be paid by you, regulated by the number of kilometers traveled beyond the 25km limit (50km return trip). Microwaves are to be delivered to the nearest authorized service agent by the customer.
Please refer to your user manual for any further conditions that may apply to your specific model.
Nothing herein contained shall be construed in any way as excluding or limiting your rights under the Consumer Guarantees Acts 1993.
For Service please visit www.applico.co.nz/service or contact the dealer/retailer from whom you purchased the product or call the 0800 number listed below.
If you are unable to establish the date of purchase, or the fault is not covered by this warranty, or if the product is found to be in working order, you will be required to bear all service call charges.
Registration of this warranty constitutes acceptance of the terms and conditions of this warranty.
Should you require any assistance, please call
Customer Services on 0800 763 448.
Distributed by Applico Ltd.
www.applico.co.nz
July 2019
After registering your appliance online, we recommend you fill out the below information for your reference and keep this warranty card in a safe place.
THIS WARRANTY IS VALID IN NEW ZEALAND ONLY.
DESIGNED IN MELBOURNE
FOR ALL AUSTRALIAN HOMES
WWW.INALTO.HOUSE







Please contact our After Sales Service Team if you need assistance.


















