HEYLO PF1400 PowerFilter Air Filter

General aspects
ATTENTION: Read carefully before starting up ! Please observe the notes in the operating instructions carefully. In case of non-observation, the warranty claims will become void. The manufacturer shall not be liable for any damage and/or consequential damage resulting.
PF 1400 is a mobile air filtration unit. The air drawn from the environment and is passed through a two-stage filtration system. In the process the filter collect particles from the air, such as coarse and fine dusts, mould spores, pollen, pet hair and smoke. Apart from circulating air operation, vacuum for refurbishment areas can be produced by connecting air hoses. In addition, the filtered air can be removed and/or added on the suction side and exhaust side by connection of hoses.
In order to produce “clean air”, the air flow and filtration are perfectly harmonised to each other by PF 1400. The motor directs the air through two different filter stages: a pre-filter and a main filter. The first filter stage (pre-filter) separates coarse dusts of up to 3 µm. The second filter stage (main filter) separates micro-dusts and suspended matter up to 1 µm. On account of the filter class used HEPA-H14 in conformity with German standard DIN EN 1822 or of dust class H in conformity with German standard DIN EN 60335, the filtration unit is suitable for the filtration of certain biological agents, such as mould spore and other contaminants. The number of required air exchanges depends on the type of noxious substance. Corresponding official and/or professional association regulations have to be observed. The operator of the unit shall be obligated to obtain information on handling hazardous materials. Potentially, the operator has to prepare a risk assessment prior to refurbishment work.
Scope of delivery
- 1 x filter unit PowerFilter 1400
- 1 x pre-filter cassette (without hose connection)
- 1 x pre-filter holder
- 1 x operating manual
Main filter as well as hose connection socket – see optional accessory
Safety guidelines
Target group: This manual is intended for technicians who install the unit, carry out maintenance work and replace faulty parts.
Copyright The duplication of the this manual in whole or in part shall be permitted only upon written approval of HEYLO GmbH.
Reservation: HEYLO GmbH reserves the right carry out modifications and improvements on the product and in the manual at any time without previous announcement.
Disposal: The unit has been designed for many years of operation. If it has to be disposed of, the competent legal regulations have to be observed in environmentally-gentle manner.
Keep away from children: Do not allow children to play with or in the vicinity of the unit.
Electric connection: Air cleaner, such as PF 1400, have been designed for operation on 230 V / 50 Hz and 60 Hz. The connection has to be fused with 16 A.
Use shock-proof plugs only. The sockets have to be earthed or protected by residual current circuit-breakers with at least 30 mA.
Protect the power cable against damage: Never use the unit with damaged power cable. If the power cable has been damaged, it has to be replaced by a cable of the same type and dimension.
Extension cable: Use approved extension cables only !
Handle with care: Do not drop or throw the unit as this may cause damage to the unit or wiring.
Operate on solid surface: Always set up the unit on a solid and plane surface.
Secure during transport: When transporting devices in vehicles, secure against slipping.
Keep dry: The unit must not be operated in puddles or in standing water. Do not store or operate outdoors. If the electric wires or parts of the unit get wet, the unit has to be thoroughly dried before re-using.
Keep the air openings free: Do not cover or block the air inlets and outlets.
Disposal: If the unit has been used in polluted air, pack the used filter in air-tight sacks and dispose of them professionally. The change of filter has to be carried out wearing breathing protection.
Environment: Do not use in explosive areas.
Putting into operation / operation

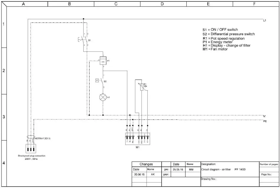
- Switching the unit on: To switch the unit on, the main switch (A) has to be turned to the right (then the switch is lit yellow).
- Power control: The power regulator (B) can be set to an air flow rate of between 0 and 100 per cent. It is recommended to operate the unit at 100 per cent.
ATTENTION: After switching the unit on, it will take about 10 s to start up the fan motor. This is no fault ! - Change of filter indicator: When the main filter is saturated, this will be indicated by display (C). When this signal is released, the main filter as well as the pre-filter has to be replaced. Please remember to have sufficient filter material available.
The service life of the filter depends on the quantity of dust drawn in. An integrated differential pressure switch is used to determine the air flow through the filter. - Energy metre: The energy metre (D) can be used to read off the power consumption in kW/h, which, if and when necessary, is included in the documentation or used for billing with the insurances.
Application / fields of operation
The main purpose of PF 1400 is the use in case of dust-intensive work at varying work locations. Here the unit is used for industrial safety and health protection, ensures the refurbishment targets and increases the efficiency of work. By air filtration, harmless ambient air is ensured. This is used for the protection of the employee, and at the same time increases the work performance. Unaffected areas and residents are protected against detrimental particles from spreading. By sealing off and by generating negative pressure in the refurbishment area, the success of micro-cleaning in the removal of contaminants is considerably increased.
ATTENTION: Like all low pressure units, PF 1400 must be operated only with the corresponding expertise when dealing with contaminants. The local trade association will inform you about the required proof of expertise.
ATTENTION: PF 1400 must not be used in explosive areas.
Design: If PF 1400 is used in areas, in which people are employed, the professional association of the building industry (BG-Bau in Germany) requires a 15-fold air exchange. In order to ensure maximum performance of PF 1400 and to achieve a correct display of the filters used, the air purifier has to be operated at maximum fan stage. If suction or exhaust hoses are used, all hose connections have to be fitted with hoses (exhaust air two hoses of 205 mm each – accessories see chapter (11)).
Circulating air operation: The PF 1400 must be set up in the middle of the area concerned. The suspended matter stirred up during work and/or use of the room is collected by the continuous air exchange of the unit and is found in the filter. In this case an air hose should be placed on the air outlet side or on the suction side in such a way that a ventilation is ensured by the entire area.

Collection at the source Particles should be collected as close as possible to the point of origin. Basically, quick-running tools should be fitted with dust extraction by means of safety vacuum cleaner. In order to collect additional free dust, the PF 1400 can be provided with air hoses. These should be placed as close as possible to the source. This minimises the spread of dust in the room air (optionally a holder is offered as an accessory).
Negative pressurisation: The refurbishment area has to be sealed off from the non-affected areas. This is done by dust protection wall or film doors. The working area should be kept as small as possible. Hoses are used to pass the filtered exhaust air from the refurbishment area into the open. PF 1400 can be set up in the refurbishment area as well as in front of the refurbishment area. Let PF 1400 run with low pressure for the duration of the work without interruption.

WARNING – breathing risk: When operating PF 1400 in a closed area, all power sources to open fires, such as chimneys, boilers, oven, water heaters and air conditioning units, have to be switched off in order to reduce the risk of the return of deadly carbon monoxide.
When the change of filter indicator lights up during operation, the pre-filter or the main filter has to be replaced immediately. More information is rendered in the chapters titled “Filter exchange” and “Maintenance”.
Laying of hoses: The connecting hose of PF 1400 or rather of the entire unit itself has to be laid as close as possible to the source of the air contamination. With increasing distance of the suction hose from the origin of the air contamination, the share of air contamination decreases disproportionately. For improved acquisition at the point of origin HEYLO provides a base stand to hose connection socket on the suction side. In order to place the hose ends at a higher position, the hoses can be attached to telescope rods using lashing straps. Ensure move of the suction hoses in the work area as close to time as possible. Hoses should be laid without kinks, if possible, and in a straight line to the air purifier. If and when necessary, auxiliary constructions have to be set up for overcoming differences in height, for example (by chamfering of supporting wood nailers, for example). In the area of the suction hoses, the constriction of the cross-section by kinks increases the suction air flow.
In the exhaust air hose, the exhaust air flow counter the cross-sectional constriction by kinks. The suction hose has to be arranged in such a way that contaminated air is removed from the breathing area of the employees, and fresh air and/or purified air is supplied to the employees. The purified exhaust air of the air purifier has to be passed to well ventilated areas and/or to the outside. A return of purified air into the working area is permitted only, if sufficient base ventilations with fresh air is ensured at the same time. A second air purifier may be set up for air ventilation, if and when necessary. Please observe the national health and safety regulations.
Required air exchange: The required air exchange depends on the type and volume of air pollutants. Correspondingly, air exchange rates of between triple and 20-fold of the room volume may be required. The professional associations recommend a 15-fold air exchange. In case of quartziferous A dusts, the occupational exposure limit value is 1.5 mg/cum, and in case of E dusts 10 mg/cum (TRGS 900).
Example:
A 15-fold air exchange is required for a room volume of 40 cum. The required air volume is 15 x 40 cum, thus at least 600 cum/h. When the filter display has been activated, HEYLO PF 1400 continues to have an output of approx. 600 cum/h. A sufficient air exchange is thus ensured.
The precise requirements are listed in the installation guidelines mentioned in chapter (8).
Filter / change of filter
Filter system: The PowerFilter PF 1400 uses a two-stage filter system which uses the latest HEPA filter technique. The first filter stage consists of one or two pre-filters, and the main filter stage of a robust HEYLO pleated filter in various filter classes.
Change of filter: ATTENTION: Basically, the filter shall be changed in the black area. Alternatively, the said can be carried out outside as well
(The area loaded with dust is referred to as black area; the white area is the adjacent “clean” area).
Independent of the change of filter indicator, both filters have to be replaced after every use involving contaminants. If the composition of the particles drawn in is not known, the filter should be replaced completely after use on the respective building site. Both filters have to be replaced so that the soiling (contamination) is not passed into clean areas.
Service life of filter: The service life of the filter depends on the quantity of dust drawn in. Very fine dust may drastically reduce the service life. Saturated filters have to be replaced.
Change of filter indicator: When the signal is triggered, the pre-filter and, if and when required, the main filter have to be replaced.
ATTENTION: Before changing the filter, put the unit out of service ! Please refer to the following table to determine which filter class is required for which material:

Change of filter
Pre-filter: The first filter stage consists of one Z line pre-filters. The pre-filter(s) is/are pushed into the filter cassette. In order to replace the pre-filter, the two clamp fasteners of the filter cassette have to be opened. Now the filter cassette can be removed from the front and the new pre-filter can be pushed in. Subsequently place the filter cassette in the unit again.
Main filter: To replace the filter, undo the quick-release fasteners of the pre-filter cassette, and remove the pre-filter cassette. Then take out the main filter panel, and place the main filter.
Disposal: If the unit has been used in polluted air, pack the used filter in air-tight sacks and dispose of them professionally. Wear personal safety equipment, especially suitable breathing protection, to change the filter.
- Open the side closures.
- Remove the pre-filter cassette.
- Remove the pre-filter holder.

- Place the main filter.
- Place the pre-filter holder.
- Place the pre-filter.

- Place the pre-filter cassette.
- Close the connections.

When using hoses, an optional front grille with hose connection nozzle as well as hose connection nozzle for the blow-out hose shall be used.
Connection of the suction hose:
- Replace the pre-filter cassette.
- Connect the hose.

Connection of the blow-out hose:
- Mount hose connection nozzle.
- Connect the hose.

After use
After every use PF 1400 has to be cleaned thoroughly before taking it out of the refurbishment area. This is done by using a safety vacuum cleaner and by moist wiping. Compressed air is not permitted here. The area around the air intake has to be cleaned especially thoroughly. For transport from a contaminated area, the unit can be closed with a sealing cover so that the contamination cannot be passed only (see optional equipment).
Attention: Let the unit dry before fitting a new filter !
Protective measures during change of location: If the location of the unit is changed, the pre-filters should be exchanged prior to transport. If necessary, separate transport in an air-tight transport container or an air-tight garbage bag may be sensible.
Types of filter
Pre-filter
Z line pre-filter (coarse dust filter) class G4 in conformity with EN 779
- Pre-filter for the main filter
- Filter for especially coarse dust of up to 3 µm
- Separation efficiency 85 to 98 per cent at 10 µm and 30 to 55 per cent at 1 µm
- Absorption of coarse dust
Pre-filter – activated carbon
- Pre-filter for cleaning air of organic matter.
- Binds odour molecules, such as scent of mould, tobacco smoke, oil odour, solvent vapours or ozone.
Main filter
Fine particle air filter of class F9 in conformity with EN 779 Dust class M in conformity with German standard EN 60335
- Main filter cartridge for suspended matter and particles up to 1 µm
- Separation efficiency 99.9 per cent
- suitable for refurbishment areas with heavy dust formation
Suspended matter filter HEPA H14 in conformity with German standard EN 1822. Dust class M in conformity with German standard EN 60335
- Main filter cartridge for suspended matter and particles up to 1 µm
- Separation efficiency 99.995 per cent
- Suitable for room with highest demands, in laboratories, in industry as well as in medicine.
Activated carbon filter
- Main filter for cleaning air of organic matter.
- Binds odour molecules, such as scent of mould, tobacco smoke, oil odour, solvent vapours or ozone.
Installation guidelines
- German Workplace Ordinance, Sections (5) and (14)
- German Workplace Regulations ASR (5)
- Accident Prevention Regulations VBG 43
- Ordinance on Hazardous Substances dated 1st January 2005
- BGR 128 (Trade Association)
(to be obtained from: Deutsches Informationszentrum für technische Regeln (DITR) in DIN, Burggrafenstrasse 6, D-10787 Berlin, Germany. HEYLO does not accept any liability for damage which is caused by incorrect and irregular installation and use of the air purifier PF 1400. Decommissioning and disposal of the unit HEYLO units have been designed for many years of operation. If it has to be disposed of, the competent legal regulations have to be observed in environmentally-gentle manner.
Technical data
| Type of unit | PF 1400 |
| Air flow rate max. (cum/h) | 1400 |
| Electric connection (V/Hz) | 230/50 230/60 |
| Performance (kW) | 0.175 |
| Power consumption (A) | 1.17 |
| Electrical protection (A) | 10 |
| Compression (Pa) | 1,000 |
| Loudness max. (dB(A)) 3 m | 0 – 61 |
| Cable length (m) H07RN-F 3G 1.5 sqmm | 4 |
| Protection class (IP) | 54 |
| Height / Width / Depth (mm) | 505 / 420 / 445 |
| Weight (kg) | 16 |
| Hose diameter – inlet / outlet side (mm) | 205 |
| Min. Extraction capacity with saturated filter (cum/h) | 600 |
| Max. room volume at an air exchange of 15 times (cum) | 40 |
| Max. room size at a ceiling height of 3 m (sqm) | 13.3 |
Attention: Within the scope of further development, technical data may be changed without prior announcement. Some values are approximate values.
Maintenance / fault finding
WARNING: Danger of electric shock ! The unit has to be disconnected from the mains before maintenance work is carried out. Electrical components must not be cleaned with a water hose or pressure washer because water may enter the electric unit and may cause an electric shock. When disassembling component parts, please tighten the screws by hand in order to prevent damage to the thread !
WARNING: Contamination hazard Always wear the recommended protective equipment and the breathing apparatus when removing or replacing the filter as well as when cleaning the HEPA filter. Prior to transport, the unit has to be cleaned completely or as an alternative has to be packed air-tight.
Fault detection and elimination
| Problem | Potential cause | Solution |
| The unit is not operational. | The unit has no power.
The unit has not been switched on. | Connect the unit to another socket; check whether the socket is live.
Switch the unit on. |
| Change of filter indicator is lit | Main filter is soiled.
Air inlet is blocked. | Change filter; cf. chapter on filter.
Remove kinks in the hose or remove the hose. |
| Impeller is not operational. | Fan is blocked. | Remove blockage. |
Optional accessories
| Description | HEYLO Item No. |
| Pre-filter “coarse dust” G4 (set of 5) | 1 110 925 |
| Pre-filter – activated carbon | 1 110 914 |
| Main filter – suspended matter (HEPA) H14 | 1 110 854 |
| Main filter fine dust F9, dust class M | 1 110 853 |
| Main filter – activated carbon filter | 1 110 855 |
| Pre-filter cassette (suction side with hose connection socket diam. 205 mm) | 1 200 076 |
| Hose connection socket (outlet side diam. 205 mm) | 1 200 074 |
| Air hose diam. 205 mm, length 7.6 m | 1 250 065 |
| Telescopic rod – length 3.6 m | 1 110 940 |
| Telescopic rod – length 6 m | 1 110 941 |
| Dust protection door DCD 3.0 | 1 110 975 |
List of spare parts
| Pos. | HEYLO Item No.. | Description |
| 1 | 1630971 | Grille |
| 2 | 1630973 | Filter frame |
| 3 | 1630975 | Grip plate (side) |
| 4 | 1630976 | Housing |
| 5 | 1306095 | Differential pressure switch |
| 6 | 1560306 | Ventilator |
| 7 | 1630979 | Front panel |
| DE-02-01646 | MID counter | |
| 1306092 | Main switch | |
| 1306096 | Filter display | |
| 8 | 1630980 | Counter-hook |
| 9 | 1630981 | Tension lock |
| 10 | 1631782 | Rubber foot |
| 11 | 1660005 | Grip plate |


Do you have any questions? Don’t hesitate to contact us!
- Tel. +49 (0) 42 02 – 97 55 15
- Fax +49 (0) 42 02 – 97 55 97
- Email [email protected]
HEYLO provides the complete program of mobile air systems for construction, industry and craft.

Do you already know our cleaning range “HEYLO POWER CLEAN”? Use the metal cleaner in combination with the air disinfectant spray for cleaning finned heat exchangers
HEYLO GmbH Im Finigen 9 28832 Achim [email protected] www.heylo.de























