CEDARSHED INDUSTRIES B83 Bayside 8X3 Lean-To Shed

Cedar shed Products are made of Western Red Cedar,
a beautiful, decorative and durable wood that will enhance your leisure space and provide you with years of enjoyment.
When exposed to the elements, natural unfinished Western Red Cedar will weather to a beautiful silvery grey.
If you prefer to maintain the natural wood colors, ask your Authorized Cedar shed Dealer to recommend a quality stain to apply after assembly.
Issue 01 1-Apr-22
ASSEMBLY INSTRUCTIONS
- Foundation Preparation
- Floor Assembly
- Wall Assembly
- Roof Assembly
- Trim
- Hardware
TOOLS YOU NEED
Garden tools for foundation leveling work Power drill & drill bits
4 Step ladders (8′ Min.)
36″ carpenters Level
Hammer, saw, tape measure, pencil etc.
16″ drill bit
MATERIALS REQUIRED
8 foundation or concrete foundation pads 1 tube of outdoor rated latex caulking
ASSISTANCE REQUIRED
A minimum of two people will be required to construct the Garden Shed, a third person will be helpful when working on the roof structure.
NOTE
Assembly of building will require the use of power tools and a ladder. Please take precautions at all times. Obtaining necessary permits is the sole responsibility of the purchaser.
Please visit our website at www.cedarshed.com for additional safety tips and other considerations to promote safe and enjoyable usage of your Cedar shed Product for years to come.
Do I Need A Building Permit?
Check with your local permit office for the regulations for your area. Generally, structures under 100 square feet do not require building permits. If a permit is required, your local permit office will have an application form. Obtaining necessary permits is the sole responsibility of the purchaser.
All Cedar shed products are constructed of Western Red Cedar. All framing components are a nominal
2″ x 3″ size. Wall and corner posts consist of 2″ x 3″s. Floor framing 2″ x 4″.
Safety Points and Other Considerations
As a proud owner of a Cedar shed gazebo, garden shed or outdoor furnishing(s), we want you to safely enjoy it for many years to come. Our products are built for use based on proper installation on level ground and normal residential use. Please follow the Assembly Manual when building the structure, and keep this manual as a reference for future maintenance.
When using power tools, ladders or any other tool, observe all safety precautions recommended by the manufacturer. Always use appropriate safety equipment, including eye protection.
Customers agree to hold Cedar shed Industries (1992) Inc. and any Authorized Dealers free of any liability for improper installation, maintenance and repair of any Cedar shed product.
Some Safety Tips to Consider Include
- Roof Snow Load Ratings vary by geographical location. If a heavy or wet snowfall occurs, it is advisable to clear the snow off the roof.
- If the structure is elevated above ground, local Building Code requirements are solely the owners responsibility, and should be abided by.
- In high or gusty wind conditions it is advisable not to use the structure, and it may be advisable to keep the structure securely grounded
- Have a regular maintenance plan to ensure floors, walls, doors, windows, roofing members etc. are secure and ready for adverse weather conditions.
- In some geographical regions, our products are not rated for human occupancy. Please check with local authorities if this is the intended use.
- It is important to properly prepare the foundation to ensure the proper construction of Cedar shed products.
Please review the information in this Assembly Manual or our web site or alternatively, consult with a professional with knowledge on properly preparing a foundation.
Our customers love telling us their Cedar shed stories and we are proud to hear them. Local conditions, personal construction abilities and other factors may affect the construction of any Cedar shed product, so it is possible that your experience may differ from those presented in this manual, in our catalogue or on our website.
Exploded View of ‘The 8 x 3 Bayside’
Specifications for ‘The 8 x 3 Bayside’
- Your Cedar shed Product is constructed of Western Red Cedar Exterior.
- Wall and Roof framing is 2 x 3 SPF, Floor is 2 x 4 Cedar with 58″ plywood.

| Measurements for Bayside B83 | |
| Area | 23.5 Sq. Ft. |
| Dimension | |
| A | 98″ |
| B | 34 1/2″ |
| C | 84″ |
| D | 94 3/4″ |
| Double Door | 31 1/16″ x 71 3/4″ x 2pcs |
| Weight | 702 lbs |

ACCESSORIES AND HARDWARE

| Part Number | Description | Size or Type | # of Pcs. |
| ACCESSORIES | |||
| P-H-PLAQS | Cede shed plaque | 1 | |
| P-H-MFLASS | Metal roof flashing | 3″ x 12″ | 8 |
| FASTENERS | |||
| P-H-SC2 | 2″ Screws | Bag | 54 |
| P-H-SC3 | 3″ Screws | Bag | 30 |
| P-H-SC3Z | 3″ Screws Zinc | Bag | 120 |
| P-H-NL 1.75 | 1 ¾” Finishing nails | Bag | 160 |
| DOOR HARDWARE | |||
| DR-003 | Dutch door | 34 1/2″ x 74 3/4″ | 1 |
| P-H-THING4 | Hinge | 4 | |
| P-H-HASP | Hasp | 1 | |
| P-H-DHAND | Door handle | 1 | |
| P-H-BBL4 | Barrel bolt | 1 | |
| Instruction manual, questionnaire and driver bit | |||
* Door trim-narrow to be used when door is located on 8ft side /
wide to be used when door is located on 4ft side.
To confirm you have received all materials, sort them according to this list. Call or e-mail us if you are missing any items and we will courier or ship as soon as possible.
Toll Free Customer Support Line: 1-800-830-8033
E-mail: [email protected]
Protect your building materials from wet weather by covering them when necessary.
Foundation Preparation for ‘The 8 x 3 Bayside’
WHAT SHOULD I DO TO PREPARE THE SITE?
Before you begin assembly, clear the construction area. Remove all debris; roots, grass, rocks etc. Make sure the ground slopes away from the site at least 10 feet in all directions. If necessary, build up the soil in the center of the site and slope away from the high point to provide drainage. Fill in any low spots within the perimeter of the site. GRADE A SLOPE OF 1/8″ PER FOOT, enough to prevent water accumulation. We recommend excavating the site 4″ deep and laying gravel or crushed rock where drainage may be a concern.
WHAT TYPE OF FOUNDATION SHOULD I USE?
Concrete Patio Stone Foundation (Option 1):
If the ground is stable and has sufficient drainage, you can set patio stones directly on firm compacted soil. If not, lay the Patio Stones on gravel or crushed rock. Place the Patio Stones at the load bearing points of the floor and under each doorway post. You may wish to slide the exterior Patio Stones a few inches under the Floor Joist System to reduce a tripping hazard.
With all of the Patio Stones in place, you are now ready to level the Patio Stone Foundation.
Using a shovel, add or remove soil beneath each Patio Stone to adjust the level. Use a carpenters level on a long straight piece of lumber on end to level from one Patio Stone to another for all the Patio Stones. Remember to compact (soil/sand/gravel) as much as possible under each Patio Stone. It is recommended that you level the outside Patio Stones first and then work your way inward.
Concrete Slab Foundation (Option 2)
Typically a slab 3″-4″ thick laid over a subbase of 4″ of gravel or crushed rock is sufficient but may vary (consult your local Cedar shed supplier). Either mix your own concrete or have it delivered to your site. A 10′ x 10′ x 4″ slab will require approximately 1 cubic yard of concrete. In any case, make sure you excavate the slab area to a depth of 6″, use 4″ of gravel as your subbase, Welded Wire Mesh as reinforcing (optional) and 4″ of concrete (trowel to allow for drainage away from the center high point).
THE CONSTRUCTION OF ‘THE GARDEN SHED’ MUST BE DONE ON A LEVEL FOUNDATION AND BE IN ITS FINAL LOCATION. PLACE ADDITIONAL FOUNDATION PADS AS YOU FEEL NECESSARY TO STABILIZE THE FLOOR SYSTEM. YOU MUST HAVE A LEVELED FOUNDATION BEFORE PROCEEDING TO LAY FLOOR ASSEMBLY.
Foundation Preparation

Floor Assembly Joist Box Assembly
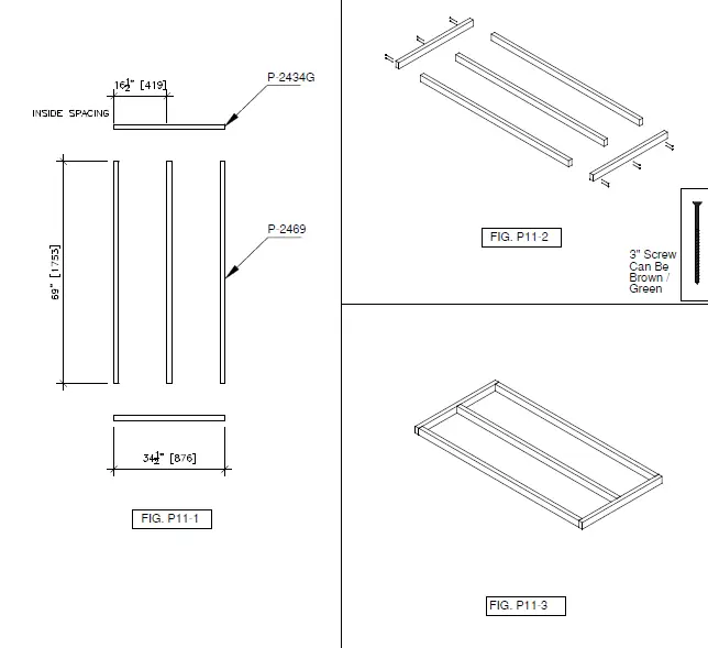
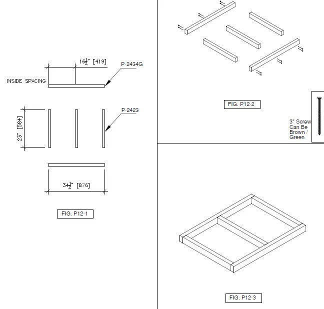
Lay the joist parts out as per Fig P-11-1 Using 2 – 3″ screws per joist. Assembly the joist box together as per Fig P-11-2 The completed joist box is pictured in Fig. P11-3.
34 21″ x 72″ Joist Box – P11
| Part Number | Description | Size or Type | # of Pcs. | CODE |
| FLOOR PARTS | ||||
| P – 2423 | Floor joist | 2 x 4 x 23″ | 3 | P-2423 |
| P – 2434G | Floor joist | 2 x 4 x 34 ½” | 4 | P – 2434G |
| P – 2469 | Floor joist | 2 x 4 x 69″ | 3 | P-2469 |
| P – PL – I1734G | Plywood sheet | 5/8″ x 17 x 34 ½” | 1 | P – PL – I1734G |
| P – PL – I2734G | Plywood sheet | 5/8″ x 27 x 34 ½” | 3 | P – PL – I2734G |

Attach P11 and P12 joist boxes together using 6 – 3″ screws. Please refer to figure F-1 and F-2.
Affix the plywood panels as per Fig. F-3 using 2″ screws on 12″ centers and affixing the plywood to each row of joist. The finished floor is shown in Fig. F-4.
- Layout all wall and door panels flat on the ground around the completed floor system as shown (FIGURE S1).
- Attach 2″ x 3″ Wall Headers to the 4 solid wall panels that do not have one with 3 – 3″ screws as shown (FIGURE S2).
- Starting from a rear corner, raise and attach an end wall panel to the floor with 3 – 3″ screws (FIGURE S3).

| Part Number | Description | Size or Type | # of Pcs. | CODE |
| WALL PARTS | AND PANELS | |||
| BW-002 | Solid Wall Panels | 34 1/2″ x 74 3/4″ | 2 | BW-002 |
| BW-003 | Solid Wall Panels | 46 1/2″ x 74 3/4″ | 2 | BW-003 |
| WW-003 | Window Wall Panel | 46 1/2″ x 74 3/4″ | 1 | WW-003 |
| DF-006 | Door Frame Vertical | 73 1/4″ | 2 | DF-006 |
| DF-012 | Door Frame Horizontal | 48″ | 1 | DF-012 |
| DR-003 | Dutch Door | 1 | DR-003 | |
| P-2346G | Headers | 2 x 3 x 46 1/2″ | 2 | P-2346G |
| P-2334G | Headers | 2 x 3 x 34 1/2″ | 2 | P-2334G |
Ensure the base plate of the wall panel is flush with the floor boards
Note – Siding must not sit on the floor panel, it should be on the outside
Wall Assembly
- Continue installing all panels except for the door panel using 5 – 3″ screws to attach each of the panels together and 3 – 3″ screws to attach to the floor.

Door Hinge Installation
- Before installing the door panel, the hinges need to be mounted. Make sure there is an 18″ [3mm] gap at the top of the door, middle, and of the non hinge vertical edge of the door. See Figure 8 below for details. These gaps will allow the door to open freely. Use the 116″ drill bit to pre-drill the holes before installing the hinges.
- Now attach the door panel into place using 12 – 3″ screws to attach the adjoining panels.

Top Plate & Infill Walls
- When all the Door and Wall Panels are standing, you will now attach the 2″ x 3″ Top Plates (FIGURE S9 & FIGURE S10)
- When all the Walls and Top Plates are in place, you will now attach the two Roof Gables and the two Infill Walls with 3″ screws (FIGURE S11 and FIGURE S12). Use 2 – 3″ screws to attach gable and infill walls together at each joint and use 3 – 3″ screws to attach each gable and infill wall to top of the walls,

| Part Number | Description | Size or Type | # of Pcs. | CODE |
| TOP PLATES | ||||
| P – 2371K | Top plates | 2 x 3 x 71 ¾” | 2 | P-2371K |
| P – 2326C | Top plates | 2 x 3 x 26 ¼” | 2 | P-2326C |
| P – 2329G | Top plates | 2 x 3 x 29 ½” | 2 | P – 2329G |
| GABLE PANELS | ||||
| GW – 006 | Gable panel (left & right) | 10 x 39 ½” | 2 | GW – 006 |
| IW – 006 | Infill wall panels | 46 ½” x 9 ¼” | 2 | IW – 006 |
Roof Assembly
- Slide first roof panel into place. Use 3 -3″ screws to attach to gable wall.
- Slide next roof panel into place ,using 3 – 3″ screws attach to opposite gable wall and an additional 3 – 3″ screws to attach to adjoining roof panel.

| Part Number | Description | Size or Type | # of Pcs. | CODE |
| ROOF PANELS | ||||
| RF-008 | Roof panel | 24″ x 40″ | 1 | RF-008 |
| RF-007Y | Roof panel (left & right) | 42 3/4″ x 40″ | 2 | RF-007Y |

Roof Flashing Installation
- When complete, take the Metal Flashing Shingles and slide them one by one between the rows of Cedar Shingles along the Roof Panels Joints (FIGURE S15)

Trim Board Installation
- Shown here is a cross-section diagram showing how the soffits and fascia would appear after they have been applied.
- All trim is minor bundled for easy identification.
- ALL TRIM BOARDS SHOULD BE APPLIED WITH THE ROUGH (OR WHAT IS NORMALLY REFERRED
TO AS THE RESAWN FACE) FACE EXPOSED. As you will note the cedar plywood face of the shed is also a resewn texture. This is done to allow the cedar fiber to better accept the stain. so to better protect your trim pieces they should also have the resewn exposed. - IT IS ALSO RECOMMENDED THAT A GOOD LATEX CAULK BE APPLIED TO THE SEAMS BETWEEN WALL PANELS. THIS HELPS TO KEEP ANY WATER OUT THAT MAY SOAK IN UNDER THE TRIM BOARDS.
- Depending on the choice of the door location there may be some trimming of the trim boards required.
Altering trim boards if door is on the 4 ft [1219mm] narrow side of the high wide side of the shed.
1 – 1 x 2 x 87 1/2″ (P-1287G) trim board needs to be cut to 1 – 80 ½” (P-1208G) and 1 – 10 1/2″ pieces. The P-1208G trim will be used as a trim board on the wide low side of the shed. The 10 1/2″ will be used on the gable panel above the door (refer to future steps for in trim details B & C.)
Altering trim boards if door is located on the wide high side of the shed.
This trim board cutting is in addition to the noted cut required.
1 – 1 x 3 ¼” x 87½” (P-13C87G) trim board needs to be cut to 1 – 79 ¼” (P-13C79C) and 1 – 10 1/2″ pieces. The P-13C79C trim will be used as a corner trim on the narrow low wall. The 10 1/2″ piece will be used on the high wall gable (refer to a future step in trim detail C.).
Here is the order they should be applied,
- Soffit (smooth both sides)
- Corner trim (resawn face out)
- Gable trim (resawn face out)
- Fascia (resawn face out)
(Detailed diagrams on following pages)
Installing the Top Skirting at Gable and High Wall Panels
Pry the last horizontal bevel siding piece on the bottom of the gable panel slightly. Do not use too much force or the bevel siding will break.
Slide in the skirting, behind the bevel siding as shown on diagram B
Nail the skirting piece through the bottom of the above piece of the bevel siding and through the bottom of the skirting piece as shown on diagram C
Trim – Soffit
- There are three pieces of soffit to be attached on the low wide side of the shed. Using 2 – 1 3 4″ nails for each end of the soffit and 1 – 1 3 4″ nail for the center of each soffit attach the soffit to the underside of the rafter ends. For details refer to Figure S20 below.

| Part Number | Description | Size or Type | # of Pcs. | CODE |
| SOFFITS | ||||
| P – G437 | Soffit | ½ x 4 x 37″ | 2 | P-G437 |
| P – G424 | Soffit | ½ x 4 x 24″ | 1 | P-G242 |
Top and Bottom Skirting
- Install all Exterior Trim, Corner Boards, Top and Bottom Skirting, Cedar shed Plaque, Soffit Boards, Fascia etc. with 1-3/4″ finish nails at 12″ centers (FIGURE 17 and FIGURE 18).


| Part Number | Description | Size or Type | # of Pcs. | CODE |
| SKIRTING | ||||
| P-B-G433 | Skirting | 1/2 x 4 x 33″ | 2 | P-B-G433 |
| P-B-G633 | Skirting | 1/2 x 6 x 33″ | 2 | P-B-G633 |
| P-B-G445 | Skirting | 1/2 x 4 x 45″ | 2 | P-B-G445 |
| P-B-G645 | Skirting | 1/2 x 6 x 45″ | 6 | P-B-G645 |
Trim – Fascia
- Installing the 8 pieces of fascia. Use 2 – 13 4″ nails to affix each end of the fascia boards and 1 – 3 4″ nail to affix the middle of the fascia boards to the rafter ends. FIGURE S21

| Part Number | Description | Size or Type | # of Pcs. | CODE |
| FASCIA | ||||
| P-1442 | Fascia | 1 x 4 x 42″ | 4 | P-1442 |
| P-1424 | Fascia | 1 x 4 x 24″ | 2 | P-1424 |
| P-1455Yg | Gable Fascia (L & R) | 1 x 4 x 42″ | 2 | P-1455Yg |
| TRIMS PARTS | ||||
| P-280G | Trim | 1 x 2 x 80 1/2″ | 2 | P-1280G |
| P-1287G | Trim | 1 x 2 x 87 1/2″ | 2 | P-1287G |
| P-13C79C | Trim | 1 x 3 1/4 x 79 1/4″ | 2 | P-13C79C |
| P-13C87C | Trim | 1 x 3 1/4 x 87 1/2″ | 2 | P-13C87C |
| P-12FULL48 | Top Door Trim | 1 x 2FULL x 48″ | 1 | P-12FULL48 |
| P-14B48 | Bottom Door Trim | 1 x 4 1/8 x 48″ | 1 | P-14B48 |
| P-G437 | Soffit | 1/2 x 4 x 37″ | 2 | P-G437 |
| P-G424 | Soffit | 1/2 x 4 x 24″ | 1 | P-G424 |
*Door trim -narrow to be used when door is located on 8ft side / wide to be used when door is located on 4 ft. side
Door Hardware Installation
- Pre-drill the holes before mounting the handles and hasp using 116″ drill bit.

Cedar shed Industries Plaque Installation
- Attach plaque with finishing nails. Rectangle shape plaques is attached to front fascia. See Figure S24.

CONGRATULATIONS
You have just successfully completed the construction of your Cedar shed Building. Thank you for choosing a Cedar shed Product. We hope that your entire experience was a rewarding one and that you will have years of enjoyment with our product.
By completing our questionnaire and mailing a picture of your finished Cedar shed product, we will send you a personalized plaque free of charge that you can mount on your building (max. 36 letters). Don’t forget to enter our ‘Best Picture Contest’. Refer to Questionnaire for details.
Please refer to the questionnaire or call Cedar shed if you require additional information.
TOLL FREE CUSTOMER SUPPORT:
- 1-800-830-8033
- e-Mail: [email protected]
- Visit our Website: www.cedarshed.com
Mailing Address:
- CS Manufacturing Inc.
- P.O. BOX 1019
- Vernon, B.C. V1T 6N2
- Canada


















