DRAPER Skylight 2 FlexShade

Overview – Components

- A Hem bar assembly with draw cable B Roller mounting brackets
- C Cable mounting brackets
- D Tensioning tool
- E Roller assembly
- F Guide cable assemblies
- G Fabric retainer
CAUTION
Read and understand all warnings (Page 2 of this document) before beginning installation.
Important Installation Information
- Inspect all boxes to make sure you have received the proper shades and parts. Controls may be shipped separately, or in same carton as shades.
- Open cartons lengthwise.
- Before mounting shades, verify measurements on label provided with shade, and ensure unit is installed at correct width.
- Before connecting switches, controls, or electrical, ensure that power is turned OFF. Wiring indicated in diagram by dashed lines must be completed by an electrician.
- Do not wire motors in parallel without written permission from Draper.
- 6. All endcaps, fascia, pocket headbox, and other hardware must be installed level. Shades must be level and square.
- Read the following installation guidelines thoroughly and follow them carefully. Failure to do so may cause product to fall or otherwise fail, and invalidates warranty.
- Installer is responsible for selecting mounting hardware appropriate for site conditions.
WARNING
Improper installation and use of the Skylight 2 Flexshade® can result in serious injury or death. Primarily, injuries can occur if the unit falls due to imprecise installation, mishandling of the unit during installation or installation on an insufficient wall or ceiling structure. Please use extreme care.
- Please read the following installation guidelines thoroughly and follow them carefully. Failure to do so may cause product to fall or otherwise fail, and could result in serious injury.
- Installation and calibration of the unit should only be performed by an authorized, qualified, and experienced professional. In particular, electrical work and wiring [indicated in diagram by dashed lines] must be completed only by a qualified professional electrician who has read this manual completely and is familiar with the construction and operation of this equipment and the hazards involved.
- Do not affix the unit to wall or ceilings that have inadequate strength to permanently hold the unit during use. It is the owner’s and installer’s responsibility to confirm the wall or ceiling to which the unit attaches is sufficient to permanently hold the weight and stress loads of the unit at all times. Draper, Inc., is not responsible for improper installation, application, testing, or workmanship related to the product at place of installation.
- It is the installer’s responsibility to make sure appropriate fasteners are used for mounting.
- All brackets, fascia, headboxes, pockets, wall clips, and other hardware must be installed level. Unit must be level and square.
- Never leave the area while operating the unit during installation, maintenance, or normal operation, unless it is secure and safe.
- Before testing or operation, carefully inspect the entire area and path of the shade and areas underneath the shade to be sure no persons or objects are in the area.
- Turn off power and any nearby equipment or cables carrying electricity before connecting switches, wires, controls, or electrical components.
- Make sure the limit switches are pointed down or accessible when placing the motor in brackets/endcaps.
- All motors should be tested and limits set using test cord before shades are wired.
- Do not wire motors in parallel without written permission from Draper, Inc.
- During testing or operation, carefully watch the surrounding area for any potential safety concerns including nearby persons or objects.
- After installation, the entire system, including all sensors, should be carefully tested to ensure safe and normal operation. Extreme care should be taken during testing to remain clear of moving parts to avoid possible injury.
- Operation of unit should be performed only by authorized and qualified personnel, who have been trained in the safe and effective operation of the unit and understand its safety features.
- The safety features of the unit , including sensors, should never be disabled, bypassed, or overridden. The system should not be operated until all safety features, including the sensors, are properly and completely installed, calibrated, and tested.
- Unit may need to comply with local, state, or district rules and regulations, in particular when installed in schools. All applicable rules and regulations should be reviewed before installation and use.
- Failure to precisely follow installation guidelines invalidates all warranties.
- Custom products/installations may not be reflected in this manual. Call Draper, Inc., if you have questions about the installation of custom products or any questions about your installation.
Before Beginning Installation
- Look for any job site conditions that could interfere with installation or operation of the system.
- Read carefully and be sure to understand all installation instructions and all related operations manuals. These instructions are intended to serve as a guide for the installer and owner. They should be followed closely and combined with the expertise of experienced qualified installers. Draper, Inc., is not responsible for improper installation, application, testing, or workmanship related to the product at place of installation. Please retain all instructions for future use.
- Open cartons lengthwise.
- Locate and lay out all pieces.
- Inspect all boxes to make sure you have received the proper shade and parts. Controls may be shipped separately, or in same carton as shade.
- If you have any difficulties with installing, servicing, or operating your shade, call your dealer or Draper, Inc., 765-987-7999.
Cleaning and Maintenance
Section 1 – Endcaps
Caution: Before mounting shades, verify measurements on label provided with shade, and ensure unit is installed at correct width.
Please Note: Installer is responsible for selecting mounting hardware appropriate for site conditions.
- Mark wall, jamb, or ceiling for placement of mounting brackets.
- Drill small starter holes (if necessary) in mounting surface.
- Mount brackets using appropriate fasteners for surface (Figure 1 for bracket dimensions).
- Mount fabric/roller assembly. Make sure limit switches are accessible from below the unit (Figure 1).
- Install optional bracket covers (if provided).
Section 2 – Connect Unit to Power
Shade operates on 110-120V, 60 Hz current. Shade is shipped with internal wiring complete and control switch(es) fully boxed, and standardly supplied with 8′ (244 cm) cable lead. Wire to connect shade to switch(es) and switch(es) to power supply should be furnished by installer. Connections should be made in accordance with attached wiring diagram, and wiring should comply with national and local electrical codes. DO NOT wire motors in parallel without written permission from Draper. All operating switches should be “off” before power is connected.
Please Note: For low-voltage wiring requirements, Draper recommends consulting with a professional low voltage electrical contractor. It is very important that shielded and stranded CAT 5 cable be used to prevent any electrical interference. See wiring diagrams on page 7.
Section 3 – Hem Bar
Please Note: Please refer to Figure 2 below.
- Remove one endcap from hem bar.
- Remove fabric retainer.
- Slide fabric retainer into hem pocket.
- Slide hem bar onto fabric panel and retainer.
- Replace endcap.
- Center fabric panel in hem bar assembly.
Section 4 – Guide Cables and Draw Cable
Please Note: Make sure that the Hem Bar is close enough to unit to make the following steps as easy as possible, but no closer than 1″-2″ (25-51 mm) from the unit.
- Insert Guide Cable through roller mounting bracket and hem bar endcap (Fig. 3).
Please Note: The rope end must be absolutely free of oil and grease. Degrease with solvent if necessary. - Remove the nut and ferrules from the Guide Cable Tensioner.
- Route the Guide Cable over the outside pulley and through the Guide Cable Tensioner (Fig. 4).
- Pull the Guide Cable tight and install the Tensioner ferrules (Fig. 5).
Caution: Do not shorten the guide cable.
- Tighten the ferrule nut to approximately 13 ft-lb (18 Nm).
- Extend the tensioner to tighten the Guide Cable. Do not allow the tensioner to rotate in the bracket.
- Route the draw cable around the two inside pulleys (Fig. 6).

- Wind the Draw Cable 1-2 turns around the Cable Spool at each end of the roller assembly.

- Insert the Draw Cable through the Cable Spool and Cable Clamp at each end of the assembly (Fig. 7).
- Pull slightly on the Draw Cable to ensure that the Cable Clamp has secured the Draw Cable.
- Tighten the Draw Cable by pulling it through one of the Cable Clamps.
- Ensure the Draw Cable is routed properly around the pulleys inside the Hem Bar assembly, as well as around the pulleys in the Mounting Brackets (Fig. 8).

- Cut off the excess Draw Cable for each end of the Roller Assembly. Insert the Tensioning Tool into the Spring Cassette Cable Spool and tension the shade 10-20 turns (Fig. 9).

- Set the Motor limits so that the shade stops about ½”
(13 mm) away from the Mounting Brackets at both ends of shade travel (see “Limit Setting” section).
Caution: Allowing the Hem Bar to run into the Brackets may result in damage to the unit. Ensure that the pinch points between the Bracket and Hem Bar are clear during operation. - Cycle the unit and make sure the Hem Bar does not contact the Draw Cable during operation. If it does, then more tension is required in the Guide Cable. If required, retract the Tensioner, loosen the Nut, pull more of the Guide Cable through the Tensioner, re-tighten the Nut, and extend the Tensioner. Repeat as needed until the Hem Bar does not contact the Draw Cable.
- After confirming that the Hem Bar does not contact the Draw Cable and that the installation is complete, shorten the Guide Cables (Fig. 10).
Caution: Once the Guide Cables are shortened, they may need to be replaced if more tension is needed.
Section 5 – Limit Setting
Please Note: These instructions are for standard motors. For instructions on setting limits on RTS motors, contact Draper, Inc.
Caution: If limit is not set, hem bar could come into contact with the mounting brackets, creating a pinch point and possibly damaging the unit.
- Determine which direction of fabric travel corresponds with arrows on motor.
- Operate shade to desired “Closed” stop position. Adjust the limit by turning the proper socket toward the “+” or “-”.
- Operate shade to desired “Open” stopping position. Adjust the limit by turning the proper socket toward the “+” or “-”.
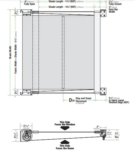
Section 6 – Dimensions

Section 7 – Skylight 2 FlexShade Diagram (Completed)

Section 8 – Wiring Diagrams

























